Property
Account |
| Property ID: | 158983 | Abbreviated Legal Description: | 29 - IN S/2 SE NE: BG E/4 CR SEC 31 W1127.58' TPB W85 .30' N9*E110.24' S31*E128 .24' TPB WELL TRACT |
| Geographic ID: | R33131-268-4360 | Agent Code: | |
| Type: | Real | | |
| Tax Area: | 540 - APPRAISER-Stan/Cam Schl Dist, Special Dist, improved & less than 1 acre | Land Use Code | 91 |
| Open Space: | N | DFL | N |
| Historic Property: | N | Remodel Property: | N |
| Multi-Family Redevelopment: | N | | |
| Township: | 31 | Section: | 31 |
| Range: | R3 |
Location |
| Address: | | Mapsco: | |
| Neighborhood: | Cycle 5 | Map ID: | 943 |
| Neighborhood CD: | 5 |
Owner |
| Name: | FLUEGGE, KURT | Owner ID: | 296573 |
| Mailing Address: | STINA FLUEGGE 7425 134TH AVE SE NEW CASTLE, WA 98059 | % Ownership: | 100.0000000000% |
| | | Exemptions: | EX |
Taxes and Assessment Details
Values
| (+) Improvement Homesite Value: | + | $0 | |
| (+) Improvement Non-Homesite Value: | + | $0 | |
| (+) Land Homesite Value: | + | $0 | |
| (+) Land Non-Homesite Value: | + | $17,000 | |
| (+) Curr Use (HS): | + | $0 | $0 |
| (+) Curr Use (NHS): | + | $0 | $0 |
| | | -------------------------- | |
| (=) Market Value: | = | $17,000 | |
| (–) Productivity Loss: | – | $0 | |
| | | -------------------------- | |
| (=) Subtotal: | = | $17,000 | |
| (+) Senior Appraised Value: | + | $0 | |
| (+) Non-Senior Appraised Value: | + | $17,000 | |
| | | -------------------------- | |
| (=) Total Appraised Value: | = | $17,000 | |
| (–) Senior Exemption Loss: | – | $0 | |
| (–) Exemption Loss: | – | $17,000 | |
| | | -------------------------- | |
| (=) Taxable Value: | = | $0 | |
Taxing Jurisdiction
| Owner: | FLUEGGE, KURT | | |
| % Ownership: | 100.0000000000% | | |
| Total Value: | $17,000 | | |
| Tax Area: | 540 - APPRAISER-Stan/Cam Schl Dist, Special Dist, improved & less than 1 acre |
| CF | Conservation Futures | 0.0313996660 | $17,000 | $0 | $0.00 | | |
| EMS1 | Fire & Rescue Dist #1 Camano GEN (EMS) | 0.4998471806 | $17,000 | $0 | $0.00 | | |
| FIRE1 | Fire & Rescue Dist #1 Camano GEN | 1.2496603404 | $17,000 | $0 | $0.00 | | |
| FIRE1BOND | Fire & Rescue Dist #1 Camano BOND | 0.1630371212 | $17,000 | $0 | $0.00 | | |
| CE | County Current Expense | 0.3674210519 | $17,000 | $0 | $0.00 | | |
| CR | County Roads | 0.4614296361 | $17,000 | $0 | $0.00 | | |
| LIB | Library Sno-Isle GEN | 0.3039084203 | $17,000 | $0 | $0.00 | | |
| SCH205_401 | School 205-401 Enrichment | 1.3697998934 | $17,000 | $0 | $0.00 | | |
| SCH205BOND | School 205-401 BOND | 0.9354199323 | $17,000 | $0 | $0.00 | | |
| ST | State School | 1.4761226122 | $17,000 | $0 | $0.00 | | |
| ST2 | State School Part 2 | 0.7953803475 | $17,000 | $0 | $0.00 | | |
| | Total Tax Rate: | 7.6534262019 | | | | | |
| | | | | Taxes w/Current Exemptions: | $0.00 | | |
| | | | | Taxes w/o Exemptions: | $130.10 | | |
Improvement / Building
Sketch
| No sketches available for this property. |
Property Image
Land
| 1 | 12 | SQ (00000-06000) | 0.1100 | 4791.60 | 0.00 | 0.00 | 1.00 | $17,000 | $0 |
Roll Value History
| 2026 | N/A | N/A | N/A | N/A | N/A |
| 2025 | $0 | $17,000 | $0 | $17,000 | $0 |
| 2024 | $0 | $17,000 | $0 | $17,000 | $0 |
| 2023 | $0 | $9,000 | $0 | $9,000 | $0 |
| 2022 | $0 | $9,000 | $0 | $9,000 | $0 |
| 2021 | $0 | $7,000 | $0 | $7,000 | $0 |
| 2020 | $0 | $5,000 | $0 | $5,000 | $0 |
| 2019 | $0 | $5,000 | $0 | $5,000 | $0 |
| 2018 | $0 | $2,593 | $0 | $2,593 | $0 |
| 2017 | $0 | $2,593 | $0 | $2,593 | $0 |
| 2016 | $0 | $2,593 | $0 | $2,593 | $0 |
| 2015 | $0 | $2,593 | $0 | $2,593 | $0 |
| 2014 | $0 | $2,593 | $0 | $2,593 | $0 |
| 2013 | $0 | $2,593 | $0 | $2,593 | $0 |
| 2012 | $0 | $2,593 | $0 | $2,593 | $0 |
| 2011 | $0 | $2,593 | $0 | $2,593 | $0 |
| 2010 | $0 | $2,593 | $0 | $2,593 | $0 |
| 2009 | $0 | $0 | $0 | $0 | $0 |
| 2008 | $0 | $0 | $0 | $0 | $0 |
| 2007 | $0 | $0 | $0 | $0 | $0 |
Deed and Sales History
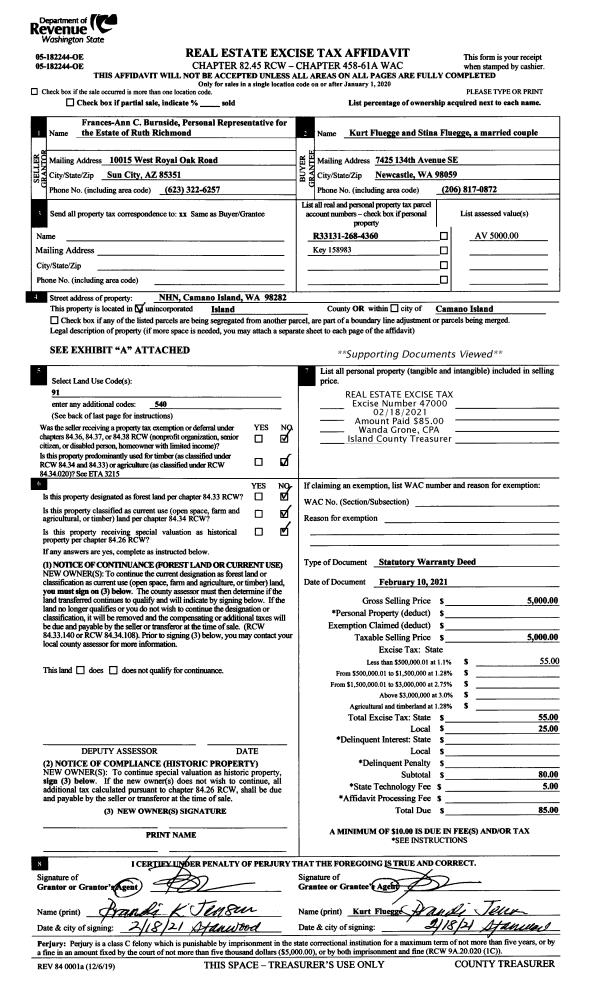
| 1 | 02/10/2021 | WD | Warranty Deed | RICHMOND, RUTH F | FLUEGGE, KURT | | | $5,000.00 | 47000 | 4511339 |
| 2 | 06/01/1994 | PRD | Personal Representatives Deed | RICHMOND, JOHN D | RICHMOND, RUTH F | | | $0.00 | 42658 | 94014658 |
| 3 | 01/01/1900 | OTHER | Other - Misc. Documents | Unknown | RICHMOND, JOHN D | | | $0.00 | 0 | 0 |
Payout Agreement
| No payout information available.. |