Property
Account |
| Property ID: | 159152 | Abbreviated Legal Description: | 109 - IN SE NE:BG E/4 CR SEC 31 N656.89' W899.77' N2 *W330.04' TPB N2*W330.04' W300.04' S2*E330.39' TP W FR TPB E300.02' TPB (TR A SP 75-5) |
| Geographic ID: | R33131-377-4480 | Agent Code: | |
| Type: | Real | | |
| Tax Area: | 542 - APPRAISER-Stan/Cam Schl Dist, Special Dist, improved, greater than 1 acre | Land Use Code | 11 |
| Open Space: | N | DFL | N |
| Historic Property: | N | Remodel Property: | N |
| Multi-Family Redevelopment: | N | | |
| Township: | 31 | Section: | 31 |
| Range: | R3 |
Location |
| Address: | 2101 WAGNER RD CAMANO ISLAND, WA 98282 | Mapsco: | |
| Neighborhood: | Cycle 5 | Map ID: | 943 |
| Neighborhood CD: | 5 |
Owner |
| Name: | SIGVARTSON, CODY J. | Owner ID: | 306551 |
| Mailing Address: | 2101 WAGNER RD CAMANO ISLAND, WA 98282 | % Ownership: | 100.0000000000% |
| | | Exemptions: | |
Taxes and Assessment Details
Values
| (+) Improvement Homesite Value: | + | N/A | |
| (+) Improvement Non-Homesite Value: | + | N/A | |
| (+) Land Homesite Value: | + | N/A | |
| (+) Land Non-Homesite Value: | + | N/A | Ag / Timber Use Value |
| (+) Curr Use (HS): | + | N/A | N/A |
| (+) Curr Use (NHS): | + | N/A | N/A |
| | | -------------------------- | |
| (=) Market Value: | = | N/A | |
| (–) Productivity Loss: | – | N/A | |
| | | -------------------------- | |
| (=) Subtotal: | = | N/A | |
| (+) Senior Appraised Value: | + | N/A | |
| (+) Non-Senior Appraised Value: | + | N/A | |
| | | -------------------------- | |
| (=) Total Appraised Value: | = | N/A | |
| (–) Senior Exemption Loss: | – | N/A | |
| (–) Exemption Loss: | – | N/A | |
| | | -------------------------- | |
| (=) Taxable Value: | = | N/A | |
Taxing Jurisdiction
| Owner: | SIGVARTSON, CODY J. | | |
| % Ownership: | 100.0000000000% | | |
| Total Value: | N/A | | |
| Tax Area: | 542 - APPRAISER-Stan/Cam Schl Dist, Special Dist, improved, greater than 1 acre |
| CF | Conservation Futures | N/A | N/A | N/A | N/A | | |
| CCD | Camano Conservation District | N/A | N/A | N/A | N/A | | |
| EMS1 | Fire & Rescue Dist #1 Camano GEN (EMS) | N/A | N/A | N/A | N/A | | |
| FIRE1 | Fire & Rescue Dist #1 Camano GEN | N/A | N/A | N/A | N/A | | |
| FIRE1BOND | Fire & Rescue Dist #1 Camano BOND | N/A | N/A | N/A | N/A | | |
| CE | County Current Expense | N/A | N/A | N/A | N/A | | |
| CR | County Roads | N/A | N/A | N/A | N/A | | |
| LCIB | Library Sno-Isle BOND (Camano Island) | N/A | N/A | N/A | N/A | | |
| LIB | Library Sno-Isle GEN | N/A | N/A | N/A | N/A | | |
| SCH205_401 | School 205-401 Enrichment | N/A | N/A | N/A | N/A | | |
| SCH205BOND | School 205-401 BOND | N/A | N/A | N/A | N/A | | |
| ST | State School | N/A | N/A | N/A | N/A | | |
| ST2 | State School Part 2 | N/A | N/A | N/A | N/A | | |
| PTMBNAREG | Port of Mabana Regular Levy | N/A | N/A | N/A | N/A | | |
| | Total Tax Rate: | N/A | | | | | |
| | | | | Taxes w/Current Exemptions: | N/A | | |
| | | | | Taxes w/o Exemptions: | N/A | | |
Improvement / Building
| Improvement #1: | RESIDENTIAL | State Code: | Y | 2004.0 sqft | Value: | N/A |
| Bathrooms: | 1 | Bedrooms: | 1 | | Ceiling: | BEAM PAINTED | Exterior Wall/Cover: | WOOD SIDING | | Floor Covering: | CARPET/VINYL 80-20 | Floor Structure: | WOOD W/SUBFLOOR | | Foundation: | CONCRETE | Heating: | FHA GAS | | Interior Finish: | DRYWALL PAINT | Plumbing Fixture Cnt: | 6 | | Roof Slope: | 8" IN 12" | Roof Structure/Cover: | BEAM ASPHALT |
|
| | Type | Description | Class CD | Sub Class CD | Year Built | Area |
| | BAS | BASE/MAIN FLOOR | 3 | 0 | 1991 | 1512.0 |
| | OWC | OPEN WOOD PORCH W/STEPS/ROOF/C | 3 | 0 | 1991 | 96.0 |
| | LOF | LOFT | 3 | 0 | 1991 | 240.0 |
| | oUTI | UTILITY | 3 | 0 | 1991 | 0.0 |
| | UPS | UPPER STORY | 3 | 0 | 1991 | 252.0 |
Sketch
Property Image
Land
| 1 | 18 | AC (02.01-03.00) | 2.3000 | 100188.00 | 0.00 | 0.00 | 1.00 | N/A | N/A |
Roll Value History
| 2026 | N/A | N/A | N/A | N/A | N/A |
| 2025 | $239,738 | $290,000 | $0 | $529,738 | $529,738 |
| 2024 | $238,528 | $280,000 | $0 | $518,528 | $518,528 |
| 2023 | $241,663 | $270,000 | $0 | $511,663 | $511,663 |
| 2022 | $222,204 | $260,000 | $0 | $482,204 | $482,204 |
| 2021 | $184,973 | $180,000 | $0 | $364,973 | $364,973 |
| 2020 | $181,133 | $150,000 | $0 | $331,133 | $331,133 |
| 2019 | $138,902 | $200,000 | $0 | $338,902 | $82,725 |
| 2018 | $139,323 | $150,000 | $0 | $289,323 | $82,725 |
| 2017 | $140,163 | $135,000 | $0 | $275,163 | $82,725 |
| 2016 | $141,844 | $105,000 | $0 | $246,844 | $82,725 |
| 2015 | $145,235 | $50,000 | $0 | $195,235 | $78,094 |
| 2014 | $147,020 | $50,000 | $0 | $197,020 | $128,063 |
| 2013 | $148,803 | $50,000 | $0 | $198,803 | $129,222 |
| 2012 | $150,588 | $74,400 | $0 | $224,988 | $136,812 |
| 2011 | $152,372 | $93,000 | $0 | $245,372 | $136,812 |
| 2010 | $157,837 | $93,000 | $0 | $250,837 | $136,812 |
| 2009 | $152,816 | $217,500 | $0 | $370,316 | $136,812 |
| 2008 | $156,282 | $215,818 | $0 | $372,100 | $82,724 |
| 2007 | $157,031 | $216,853 | $0 | $373,884 | $82,724 |
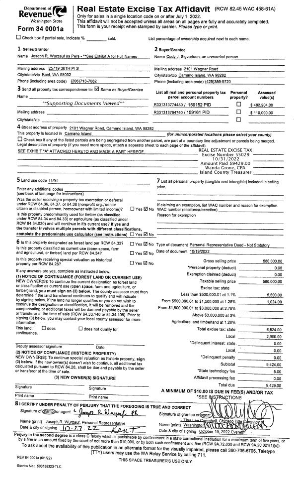
Deed and Sales History
| 1 | 10/19/2022 | WD | Warranty Deed | WURZAUF, DELMAR H | SIGVARTSON, CODY J. | | | $580,000.00 | 55029 | 4553201 |
|   | |
| 2 | 11/01/1986 | DECREE | Divorce Decree/Legal Separation | WURZAUF, DELMAR | WURZAUF, DELMAR H | | | $0.00 | 63122 | 86014084 |
| 3 | 11/01/1980 | CD | DNU - Correction Deed | WOLF, JAS A | WURZAUF, DELMAR | | | $0.00 | 4034 | 377065 |
| 4 | 11/01/1979 | EXECUTORD | Executor Deed | THILBERG, LEONARD D | WOLF, JAS A | | | $18,000.00 | 95415 | 361596 |
| 5 | 01/01/1900 | OTHER | Other - Misc. Documents | Unknown | THILBERG, LEONARD D | | | $0.00 | 0 | 0 |
Payout Agreement
| No payout information available.. |