Property
Account |
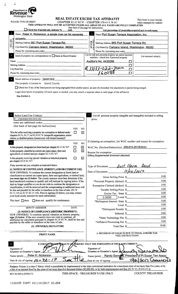
| Property ID: | 160088 | Abbreviated Legal Description: | 1 - IN GL1:BG CLN TR A & E LN PT SUSAN TERR S72*E591. .12' TPB N72*W591.12' S153. 03' S61*E479.38' S57*E100' S57*W80.4' S18*E66.5' S56* W58.96' N38*E TO SHORELN NW ALG SHORELN TP N18*E FR TPB S18*W TPB TGW ADJ TIDES EX TL3 EX PT ASSESSED W/SL 2 TR 13 BRET |
| Geographic ID: | R33133-022-3000 | Agent Code: | |
| Type: | Real | | |
| Tax Area: | 542 - APPRAISER-Stan/Cam Schl Dist, Special Dist, improved, greater than 1 acre | Land Use Code | 11 |
| Open Space: | N | DFL | N |
| Historic Property: | N | Remodel Property: | N |
| Multi-Family Redevelopment: | N | | |
| Township: | 31 | Section: | 33 |
| Range: | R3 |
Location |
| Address: | 951 PORT SUSAN TERRACE RD CAMANO ISLAND, WA 98282 | Mapsco: | |
| Neighborhood: | Cycle 5 | Map ID: | 949 |
| Neighborhood CD: | 5 |
Owner |
| Name: | LESLIE, JOHN T | Owner ID: | 290174 |
| Mailing Address: | DEBBIE HUBERT-LESLIE 951 PORT SUSAN TERRACE RD CAMANO ISLAND, WA 98282 | % Ownership: | 100.0000000000% |
| | | Exemptions: | |
Taxes and Assessment Details
Values
| (+) Improvement Homesite Value: | + | $0 | |
| (+) Improvement Non-Homesite Value: | + | $1,093,147 | |
| (+) Land Homesite Value: | + | $0 | |
| (+) Land Non-Homesite Value: | + | $1,652,500 | |
| (+) Curr Use (HS): | + | $0 | $0 |
| (+) Curr Use (NHS): | + | $0 | $0 |
| | | -------------------------- | |
| (=) Market Value: | = | $2,745,647 | |
| (–) Productivity Loss: | – | $0 | |
| | | -------------------------- | |
| (=) Subtotal: | = | $2,745,647 | |
| (+) Senior Appraised Value: | + | $0 | |
| (+) Non-Senior Appraised Value: | + | $2,745,647 | |
| | | -------------------------- | |
| (=) Total Appraised Value: | = | $2,745,647 | |
| (–) Senior Exemption Loss: | – | $0 | |
| (–) Exemption Loss: | – | $0 | |
| | | -------------------------- | |
| (=) Taxable Value: | = | $2,745,647 | |
Taxing Jurisdiction
| Owner: | LESLIE, JOHN T | | |
| % Ownership: | 100.0000000000% | | |
| Total Value: | $2,745,647 | | |
| Tax Area: | 542 - APPRAISER-Stan/Cam Schl Dist, Special Dist, improved, greater than 1 acre |
| CF | Conservation Futures | 0.0313996660 | $2,745,647 | $2,745,647 | $86.21 | | |
| EMS1 | Fire & Rescue Dist #1 Camano GEN (EMS) | 0.4998471806 | $2,745,647 | $2,745,647 | $1,372.40 | | |
| FIRE1 | Fire & Rescue Dist #1 Camano GEN | 1.2496603404 | $2,745,647 | $2,745,647 | $3,431.13 | | |
| FIRE1BOND | Fire & Rescue Dist #1 Camano BOND | 0.1630371212 | $2,745,647 | $2,745,647 | $447.64 | | |
| CE | County Current Expense | 0.3674210519 | $2,745,647 | $2,745,647 | $1,008.81 | | |
| CR | County Roads | 0.4614296361 | $2,745,647 | $2,745,647 | $1,266.92 | | |
| LIB | Library Sno-Isle GEN | 0.3039084203 | $2,745,647 | $2,745,647 | $834.43 | | |
| SCH205_401 | School 205-401 Enrichment | 1.3697998934 | $2,745,647 | $2,745,647 | $3,760.99 | | |
| SCH205BOND | School 205-401 BOND | 0.9354199323 | $2,745,647 | $2,745,647 | $2,568.33 | | |
| ST | State School | 1.4761226122 | $2,745,647 | $2,745,647 | $4,052.91 | | |
| ST2 | State School Part 2 | 0.7953803475 | $2,745,647 | $2,745,647 | $2,183.83 | | |
| | Total Tax Rate: | 7.6534262019 | | | | | |
| | | | | Taxes w/Current Exemptions: | $21,013.60 | | |
| | | | | Taxes w/o Exemptions: | $21,013.60 | | |
Improvement / Building
| Improvement #1: | RESIDENTIAL | State Code: | Y | 4799.2 sqft | Value: | $1,093,147 |
| Bathrooms: | 4 | Bedrooms: | 5 | | Ceiling: | BEAM PAINTED | Exterior Wall/Cover: | SHINGLE | | Floor Covering: | SOFTWOOD/VINYL 80-20 | Floor Structure: | WOOD W/SUBFLOOR | | Foundation: | SLAB/CONCRETE | Heating: | FHA GAS | | Interior Finish: | DRYWALL PAINT | Plumbing Fixture Cnt: | 17 | | Roof Slope: | 4" IN 12" | Roof Structure/Cover: | CJ ASPHALT |
|
| | Type | Description | Class CD | Sub Class CD | Year Built | Area |
| | BAS | BASE/MAIN FLOOR | 5 | 0 | 1986 | 2086.2 |
| | BAS | BASE/MAIN FLOOR | 5 | 0 | 1986 | 640.0 |
| | BIG | BUILT IN GARAGE | 5 | 0 | 1986 | 610.0 |
| | UPS | UPPER STORY | 5 | 0 | 1986 | 1134.0 |
| | UPS | UPPER STORY | 5 | 0 | 1986 | 819.0 |
| | OWC | OPEN WOOD PORCH W/STEPS/ROOF/C | 5 | 0 | 1986 | 1671.2 |
| | DGR | DETACHED GARAGE | 5 | 0 | 1986 | 280.0 |
| | UPH | HALF STORY | 5 | 0 | 1986 | 120.0 |
| | UTY | STORAGE/UTILITY | 5 | 0 | 1986 | 224.0 |
| | CPD | OPEN CARPORT DIRT FLOOR | 5 | 0 | 1986 | 360.0 |
| | UTY | STORAGE/UTILITY | 5 | 0 | 1986 | 1408.0 |
| | UTY | STORAGE/UTILITY | 5 | 0 | 1986 | 228.0 |
| | ATU | ATTIC UNFINISHED | 5 | 0 | 1986 | 512.0 |
Sketch
Property Image
Land
| 1 | LB | LOW BANK | 3.8200 | 166399.20 | 250.00 | 0.00 | 1.00 | $1,650,000 | $0 |
| 2 | 55 | TIDES | 0.0000 | 0.00 | 250.00 | 0.00 | 1.00 | $2,500 | $0 |
Roll Value History
| 2026 | N/A | N/A | N/A | N/A | N/A |
| 2025 | $1,093,147 | $1,652,500 | $0 | $2,745,647 | $2,745,647 |
| 2024 | $1,088,206 | $1,652,500 | $0 | $2,740,706 | $2,740,706 |
| 2023 | $1,100,822 | $1,652,500 | $0 | $2,753,322 | $2,753,322 |
| 2022 | $1,008,246 | $1,602,500 | $0 | $2,610,746 | $2,610,746 |
| 2021 | $791,058 | $1,302,500 | $0 | $2,093,558 | $2,093,558 |
| 2020 | $773,546 | $802,500 | $0 | $1,576,046 | $1,576,046 |
| 2019 | $719,331 | $852,500 | $0 | $1,571,831 | $1,571,831 |
| 2018 | $721,537 | $802,500 | $0 | $1,524,037 | $1,524,037 |
| 2017 | $587,899 | $802,500 | $0 | $1,390,399 | $1,390,399 |
| 2016 | $595,035 | $802,500 | $0 | $1,397,535 | $1,397,535 |
| 2015 | $508,162 | $802,500 | $0 | $1,310,662 | $1,310,662 |
| 2014 | $514,377 | $802,500 | $0 | $1,316,877 | $1,316,877 |
| 2013 | $520,590 | $843,474 | $0 | $1,364,064 | $1,364,064 |
| 2012 | $526,805 | $843,474 | $0 | $1,370,279 | $1,370,279 |
| 2011 | $533,020 | $1,053,718 | $0 | $1,586,738 | $1,586,738 |
| 2010 | $570,398 | $1,053,718 | $0 | $1,624,116 | $1,624,116 |
| 2009 | $594,259 | $1,136,314 | $0 | $1,730,573 | $1,730,573 |
| 2008 | $602,942 | $1,404,125 | $0 | $2,007,067 | $2,007,067 |
| 2007 | $611,652 | $1,402,375 | $0 | $2,014,027 | $2,014,027 |
Deed and Sales History
| 1 | 05/30/2019 | WD | Warranty Deed | NICKERSON, PETER H | LESLIE, JOHN T | | | $2,625,000.00 | 38892 | 4465037 |
|   | |
| 2 | 10/26/2017 | QCD | Quit Claim Deed | NICKERSON, PETER H | PORT SUSAN TERRACE ASSOCIATION, INC | | | $0.00 | 31897 | 4434058 |
| 3 | 07/22/2013 | DECREE | Divorce Decree/Legal Separation | NICKERSON, PETER H | NICKERSON, PETER H | | | $0.00 | 12637 | 4347493 |
| 4 | 04/13/2000 | WD | Warranty Deed | WILL, ROBERT I | NICKERSON, PETER H | | | $1,398,560.00 | 1388 | 20006860 |
| 5 | 06/01/1987 | QCD | Quit Claim Deed | WILL, ROBERT I | WILL, ROBERT I | | | $0.00 | 71949 | 87008990 |
| 6 | 01/01/1900 | OTHER | Other - Misc. Documents | Unknown | WILL, ROBERT I | | | $0.00 | 0 | 0 |
Payout Agreement
| No payout information available.. |