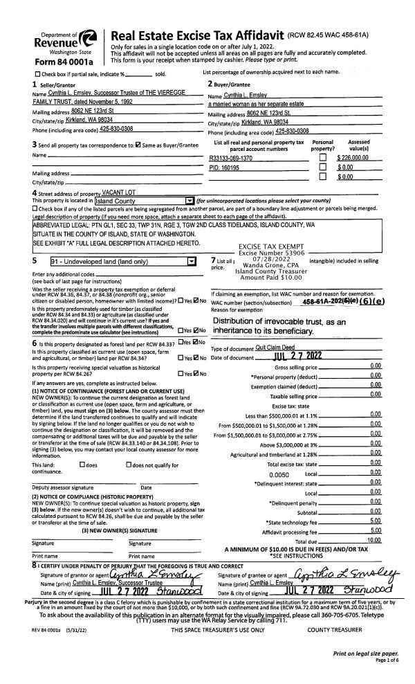
Property
Account |
| Property ID: | 160195 | Abbreviated Legal Description: | 7 - IN GL 1 INCL ADJ TIDES THAT PTN OF W100' OF GL1 LY N OF RD TGW TIDES |
| Geographic ID: | R33133-069-1370 | Agent Code: | |
| Type: | Real | | |
| Tax Area: | 549 - APPRAISER-Stan/Cam Schl Dist, Special Dist, vacant & 50 acres or less | Land Use Code | 91 |
| Open Space: | N | DFL | N |
| Historic Property: | N | Remodel Property: | N |
| Multi-Family Redevelopment: | N | | |
| Township: | 31 | Section: | 33 |
| Range: | R3 |
Location |
| Address: | | Mapsco: | |
| Neighborhood: | Cycle 5 | Map ID: | 949 |
| Neighborhood CD: | 5 |
Owner |
| Name: | EMSLEY, CYNTHIA L | Owner ID: | 305181 |
| Mailing Address: | 618 CHERYL DR CAMANO ISLAND, WA 98282 | % Ownership: | 100.0000000000% |
| | | Exemptions: | |
Taxes and Assessment Details
Values
| (+) Improvement Homesite Value: | + | $0 | |
| (+) Improvement Non-Homesite Value: | + | $0 | |
| (+) Land Homesite Value: | + | $0 | |
| (+) Land Non-Homesite Value: | + | $251,000 | |
| (+) Curr Use (HS): | + | $0 | $0 |
| (+) Curr Use (NHS): | + | $0 | $0 |
| | | -------------------------- | |
| (=) Market Value: | = | $251,000 | |
| (–) Productivity Loss: | – | $0 | |
| | | -------------------------- | |
| (=) Subtotal: | = | $251,000 | |
| (+) Senior Appraised Value: | + | $0 | |
| (+) Non-Senior Appraised Value: | + | $251,000 | |
| | | -------------------------- | |
| (=) Total Appraised Value: | = | $251,000 | |
| (–) Senior Exemption Loss: | – | $0 | |
| (–) Exemption Loss: | – | $0 | |
| | | -------------------------- | |
| (=) Taxable Value: | = | $251,000 | |
Taxing Jurisdiction
| Owner: | EMSLEY, CYNTHIA L | | |
| % Ownership: | 100.0000000000% | | |
| Total Value: | $251,000 | | |
| Tax Area: | 549 - APPRAISER-Stan/Cam Schl Dist, Special Dist, vacant & 50 acres or less |
| CF | Conservation Futures | 0.0313996660 | $251,000 | $251,000 | $7.88 | | |
| EMS1 | Fire & Rescue Dist #1 Camano GEN (EMS) | 0.4998471806 | $251,000 | $251,000 | $125.46 | | |
| CE | County Current Expense | 0.3674210519 | $251,000 | $251,000 | $92.22 | | |
| CR | County Roads | 0.4614296361 | $251,000 | $251,000 | $115.82 | | |
| LIB | Library Sno-Isle GEN | 0.3039084203 | $251,000 | $251,000 | $76.28 | | |
| SCH205_401 | School 205-401 Enrichment | 1.3697998934 | $251,000 | $251,000 | $343.82 | | |
| SCH205BOND | School 205-401 BOND | 0.9354199323 | $251,000 | $251,000 | $234.79 | | |
| ST | State School | 1.4761226122 | $251,000 | $251,000 | $370.51 | | |
| ST2 | State School Part 2 | 0.7953803475 | $251,000 | $251,000 | $199.64 | | |
| | Total Tax Rate: | 6.2407287403 | | | | | |
| | | | | Taxes w/Current Exemptions: | $1,566.42 | | |
| | | | | Taxes w/o Exemptions: | $1,566.42 | | |
Improvement / Building
Sketch
| No sketches available for this property. |
Property Image
Land
| 1 | HB | HIGH BLUFF | 1.4300 | 62290.80 | 100.00 | 0.00 | 1.00 | $250,000 | $0 |
| 2 | 55 | TIDES | 0.0000 | 0.00 | 100.00 | 0.00 | 1.00 | $1,000 | $0 |
Roll Value History
| 2026 | N/A | N/A | N/A | N/A | N/A |
| 2025 | $0 | $251,000 | $0 | $251,000 | $251,000 |
| 2024 | $0 | $251,000 | $0 | $251,000 | $251,000 |
| 2023 | $0 | $226,000 | $0 | $226,000 | $226,000 |
| 2022 | $0 | $226,000 | $0 | $226,000 | $226,000 |
| 2021 | $0 | $201,000 | $0 | $201,000 | $201,000 |
| 2020 | $0 | $201,000 | $0 | $201,000 | $201,000 |
| 2019 | $0 | $201,000 | $0 | $201,000 | $201,000 |
| 2018 | $0 | $201,000 | $0 | $201,000 | $201,000 |
| 2017 | $0 | $201,000 | $0 | $201,000 | $201,000 |
| 2016 | $0 | $201,000 | $0 | $201,000 | $201,000 |
| 2015 | $0 | $201,000 | $0 | $201,000 | $201,000 |
| 2014 | $0 | $201,000 | $0 | $201,000 | $201,000 |
| 2013 | $0 | $185,009 | $0 | $185,009 | $185,009 |
| 2012 | $0 | $185,009 | $0 | $185,009 | $185,009 |
| 2011 | $0 | $231,011 | $0 | $231,011 | $231,011 |
| 2010 | $0 | $231,011 | $0 | $231,011 | $231,011 |
| 2009 | $0 | $260,690 | $0 | $260,690 | $260,690 |
| 2008 | $0 | $221,736 | $0 | $221,736 | $221,736 |
| 2007 | $0 | $221,036 | $0 | $221,036 | $221,036 |
Deed and Sales History
| 1 | 07/27/2022 | QCD | Quit Claim Deed | VIEREGGE, RAYMOND R | EMSLEY, CYNTHIA L | | | $0.00 | 53906 | 4548767 |
| 2 | 11/01/1992 | QCD | Quit Claim Deed | VIEREGGE, RAYMOND R | VIEREGGE, RAYMOND R | | | $0.00 | 25001 | 92024688 |
| 3 | 04/01/1963 | EXECUTORD | Executor Deed | Unknown | VIEREGGE, RAYMOND R | | | $16,500.00 | 13812 | 0 |
Payout Agreement
| No payout information available.. |