Property
Account |
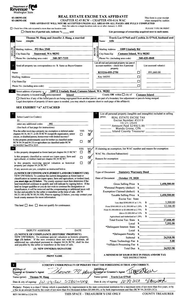
| Property ID: | 160293 | Abbreviated Legal Description: | 10 - IN GL 1: BG SWCR GL 1 N1079.9'TO ML ALG ML S59*E 277.69' ALG ML S49*E58.2' S901.25'TO SLN GL1 W291.93' TPB EX E99.93' EX RD |
| Geographic ID: | R33216-055-2750 | Agent Code: | |
| Type: | Real | | |
| Tax Area: | 592 - APPRAISER-Stan/Cam Schl Dist, Special Dist, improved, greater than 1 acre | Land Use Code | 11 |
| Open Space: | N | DFL | N |
| Historic Property: | N | Remodel Property: | N |
| Multi-Family Redevelopment: | N | | |
| Township: | 32 | Section: | 16 |
| Range: | R3 |
Location |
| Address: | 1009 E UTSALADY RD CAMANO ISLAND, WA 98282 | Mapsco: | |
| Neighborhood: | North Camano | Map ID: | 952 |
| Neighborhood CD: | 06-C |
Owner |
| Name: | O'NEIL, TRAVIS LEE | Owner ID: | 297149 |
| Mailing Address: | CYNTHIA JO O'NEIL 1009 UTSALADY RD CAMANO ISLAND, WA 98282 | % Ownership: | 100.0000000000% |
| | | Exemptions: | |
Taxes and Assessment Details
Values
| (+) Improvement Homesite Value: | + | $0 | |
| (+) Improvement Non-Homesite Value: | + | $847,078 | |
| (+) Land Homesite Value: | + | $0 | |
| (+) Land Non-Homesite Value: | + | $700,000 | |
| (+) Curr Use (HS): | + | $0 | $0 |
| (+) Curr Use (NHS): | + | $0 | $0 |
| | | -------------------------- | |
| (=) Market Value: | = | $1,547,078 | |
| (–) Productivity Loss: | – | $0 | |
| | | -------------------------- | |
| (=) Subtotal: | = | $1,547,078 | |
| (+) Senior Appraised Value: | + | $0 | |
| (+) Non-Senior Appraised Value: | + | $1,547,078 | |
| | | -------------------------- | |
| (=) Total Appraised Value: | = | $1,547,078 | |
| (–) Senior Exemption Loss: | – | $0 | |
| (–) Exemption Loss: | – | $0 | |
| | | -------------------------- | |
| (=) Taxable Value: | = | $1,547,078 | |
Taxing Jurisdiction
| Owner: | O'NEIL, TRAVIS LEE | | |
| % Ownership: | 100.0000000000% | | |
| Total Value: | $1,547,078 | | |
| Tax Area: | 592 - APPRAISER-Stan/Cam Schl Dist, Special Dist, improved, greater than 1 acre |
| CF | Conservation Futures | 0.0313996660 | $1,547,078 | $1,547,078 | $48.58 | | |
| EMS1 | Fire & Rescue Dist #1 Camano GEN (EMS) | 0.4998471806 | $1,547,078 | $1,547,078 | $773.30 | | |
| FIRE1 | Fire & Rescue Dist #1 Camano GEN | 1.2496603404 | $1,547,078 | $1,547,078 | $1,933.32 | | |
| FIRE1BOND | Fire & Rescue Dist #1 Camano BOND | 0.1630371212 | $1,547,078 | $1,547,078 | $252.23 | | |
| CE | County Current Expense | 0.3674210519 | $1,547,078 | $1,547,078 | $568.43 | | |
| CR | County Roads | 0.4614296361 | $1,547,078 | $1,547,078 | $713.87 | | |
| LIB | Library Sno-Isle GEN | 0.3039084203 | $1,547,078 | $1,547,078 | $470.17 | | |
| SCH205_401 | School 205-401 Enrichment | 1.3697998934 | $1,547,078 | $1,547,078 | $2,119.19 | | |
| SCH205BOND | School 205-401 BOND | 0.9354199323 | $1,547,078 | $1,547,078 | $1,447.17 | | |
| ST | State School | 1.4761226122 | $1,547,078 | $1,547,078 | $2,283.68 | | |
| ST2 | State School Part 2 | 0.7953803475 | $1,547,078 | $1,547,078 | $1,230.52 | | |
| | Total Tax Rate: | 7.6534262019 | | | | | |
| | | | | Taxes w/Current Exemptions: | $11,840.46 | | |
| | | | | Taxes w/o Exemptions: | $11,840.46 | | |
Improvement / Building
| Improvement #1: | RESIDENTIAL | State Code: | Y | 3377.2 sqft | Value: | $847,078 |
| Bathrooms: | 3 | Bedrooms: | 3 | | Ceiling: | DRYWALL PAINTED | Cooling: | HEAT PUMP/CONV/V | | Exterior Wall/Cover: | CEMENT FIBER | Floor Covering: | CARPET/VINYL 60-40 | | Floor Structure: | WOOD W/SUBFLOOR | Foundation: | CONCRETE | | Interior Finish: | DRYWALL PAINT | Plumbing Fixture Cnt: | 15 | | Roof Slope: | 12" IN 12" | Roof Structure/Cover: | CJ ASPHALT |
|
| | Type | Description | Class CD | Sub Class CD | Year Built | Area |
| | BAS | BASE/MAIN FLOOR | 5 | 0 | 2016 | 2017.0 |
| | UPS | UPPER STORY | 5 | 0 | 2016 | 1360.2 |
| | BIG | BUILT IN GARAGE | 5 | 0 | 2016 | 939.5 |
| | OP4 | OPEN PORCH W/CEILING-ROOF | 5 | 0 | 2016 | 146.0 |
| | OP4 | OPEN PORCH W/CEILING-ROOF | 5 | 0 | 2016 | 258.5 |
Sketch
Property Image
Land
| 1 | HB | HIGH BLUFF | 0.0000 | 0.00 | 67.50 | 0.00 | 1.00 | $700,000 | $0 |
Roll Value History
| 2026 | N/A | N/A | N/A | N/A | N/A |
| 2025 | $847,078 | $700,000 | $0 | $1,547,078 | $1,547,078 |
| 2024 | $853,853 | $700,000 | $0 | $1,553,853 | $1,553,853 |
| 2023 | $860,631 | $650,000 | $0 | $1,510,631 | $1,510,631 |
| 2022 | $760,905 | $600,000 | $0 | $1,360,905 | $1,360,905 |
| 2021 | $666,986 | $400,000 | $0 | $1,066,986 | $1,066,986 |
| 2020 | $541,660 | $350,000 | $0 | $891,660 | $891,660 |
| 2019 | $435,850 | $375,000 | $0 | $810,850 | $810,850 |
| 2018 | $436,971 | $350,000 | $0 | $786,971 | $786,971 |
| 2017 | $439,211 | $250,000 | $0 | $689,211 | $689,211 |
| 2016 | $95,154 | $200,000 | $0 | $295,154 | $295,154 |
| 2015 | $0 | $250,000 | $0 | $250,000 | $250,000 |
| 2014 | $0 | $300,000 | $0 | $300,000 | $300,000 |
| 2013 | $0 | $390,211 | $0 | $390,211 | $390,211 |
| 2012 | $0 | $390,211 | $0 | $390,211 | $390,211 |
| 2011 | $0 | $390,211 | $0 | $390,211 | $390,211 |
| 2010 | $0 | $390,211 | $0 | $390,211 | $390,211 |
| 2009 | $0 | $432,021 | $0 | $432,021 | $432,021 |
| 2008 | $0 | $432,021 | $0 | $432,021 | $432,021 |
| 2007 | $0 | $432,021 | $0 | $432,021 | $432,021 |
Deed and Sales History
| 1 | 10/19/2020 | WD | Warranty Deed | HAAG, THOMAS M | O'NEIL, TRAVIS LEE | | | $1,450,500.00 | 45319 | 4500010 |
| 2 | 08/04/2017 | EZ | Easement | HAAG, THOMAS M | HAAG, THOMAS M | | | $2,775.00 | 30662 | 4428247 |
|   | |
| 3 | 07/31/2015 | WD | Warranty Deed | WINDLE, MACK R | HAAG, THOMAS M | | | $233,000.00 | 20753 | 4383395 |
| 4 | 10/01/1966 | TRUSTEED | Trustee's Deed | NORMANDIN, ETHEL R | WINDLE, MACK R | | | $0.00 | 24051 | 0 |
| 5 | 01/01/1900 | OTHER | Other - Misc. Documents | Unknown | NORMANDIN, ETHEL R | | | $0.00 | 0 | 0 |
Payout Agreement
| No payout information available.. |