Property
Account |
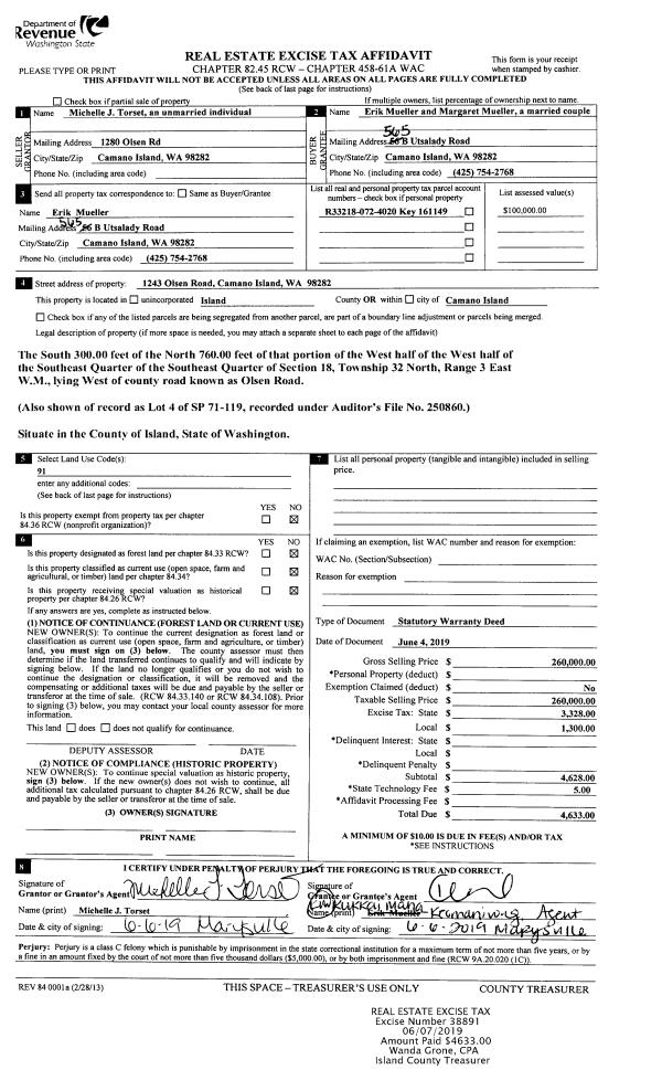
| Property ID: | 161149 | Abbreviated Legal Description: | 38 - S300' OF N760' OF W/2 W/2 SE SE LY W OF OLSEN RD TGW EZ |
| Geographic ID: | R33218-072-4020 | Agent Code: | |
| Type: | Real | | |
| Tax Area: | 510 - APPRAISER-Stan/Cam Schl Dist, improved & 1 acre or less | Land Use Code | 11 |
| Open Space: | N | DFL | N |
| Historic Property: | N | Remodel Property: | N |
| Multi-Family Redevelopment: | N | | |
| Township: | 32 | Section: | 18 |
| Range: | R3 |
Location |
| Address: | 1243 OLSEN RD CAMANO ISLAND, WA 98282 | Mapsco: | |
| Neighborhood: | North Camano | Map ID: | 958 |
| Neighborhood CD: | 06-C |
Owner |
| Name: | GUTE, GERALD DOUGLAS | Owner ID: | 308424 |
| Mailing Address: | LINDA B BLANKENSHIP 1243 NORTH OLSEN RD CAMANO ISLAND, WA 98282 | % Ownership: | 100.0000000000% |
| | | Exemptions: | |
Taxes and Assessment Details
Values
| (+) Improvement Homesite Value: | + | $0 | |
| (+) Improvement Non-Homesite Value: | + | $1,140,928 | |
| (+) Land Homesite Value: | + | $0 | |
| (+) Land Non-Homesite Value: | + | $430,000 | |
| (+) Curr Use (HS): | + | $0 | $0 |
| (+) Curr Use (NHS): | + | $0 | $0 |
| | | -------------------------- | |
| (=) Market Value: | = | $1,570,928 | |
| (–) Productivity Loss: | – | $0 | |
| | | -------------------------- | |
| (=) Subtotal: | = | $1,570,928 | |
| (+) Senior Appraised Value: | + | $0 | |
| (+) Non-Senior Appraised Value: | + | $1,570,928 | |
| | | -------------------------- | |
| (=) Total Appraised Value: | = | $1,570,928 | |
| (–) Senior Exemption Loss: | – | $0 | |
| (–) Exemption Loss: | – | $0 | |
| | | -------------------------- | |
| (=) Taxable Value: | = | $1,570,928 | |
Taxing Jurisdiction
| Owner: | GUTE, GERALD DOUGLAS | | |
| % Ownership: | 100.0000000000% | | |
| Total Value: | $1,570,928 | | |
| Tax Area: | 510 - APPRAISER-Stan/Cam Schl Dist, improved & 1 acre or less |
| CF | Conservation Futures | 0.0313996660 | $1,570,928 | $1,570,928 | $49.33 | | |
| EMS1 | Fire & Rescue Dist #1 Camano GEN (EMS) | 0.4998471806 | $1,570,928 | $1,570,928 | $785.22 | | |
| FIRE1 | Fire & Rescue Dist #1 Camano GEN | 1.2496603404 | $1,570,928 | $1,570,928 | $1,963.13 | | |
| FIRE1BOND | Fire & Rescue Dist #1 Camano BOND | 0.1630371212 | $1,570,928 | $1,570,928 | $256.12 | | |
| CE | County Current Expense | 0.3674210519 | $1,570,928 | $1,570,928 | $577.19 | | |
| CR | County Roads | 0.4614296361 | $1,570,928 | $1,570,928 | $724.87 | | |
| LIB | Library Sno-Isle GEN | 0.3039084203 | $1,570,928 | $1,570,928 | $477.42 | | |
| SCH205_401 | School 205-401 Enrichment | 1.3697998934 | $1,570,928 | $1,570,928 | $2,151.86 | | |
| SCH205BOND | School 205-401 BOND | 0.9354199323 | $1,570,928 | $1,570,928 | $1,469.48 | | |
| ST | State School | 1.4761226122 | $1,570,928 | $1,570,928 | $2,318.88 | | |
| ST2 | State School Part 2 | 0.7953803475 | $1,570,928 | $1,570,928 | $1,249.49 | | |
| | Total Tax Rate: | 7.6534262019 | | | | | |
| | | | | Taxes w/Current Exemptions: | $12,022.99 | | |
| | | | | Taxes w/o Exemptions: | $12,022.99 | | |
Improvement / Building
| Improvement #1: | RESIDENTIAL | State Code: | Y | 3666.8 sqft | Value: | $1,140,928 |
| Bathrooms: | 3.5 | Bedrooms: | 3 | | Ceiling: | DRYWALL PAINTED | Cooling: | HEAT PUMP/CONV/V | | Exterior Wall/Cover: | CEMENT FIBER | Floor Covering: | HARDWOOD/CARP 60-40 | | Floor Structure: | WOOD W/SUBFLOOR | Foundation: | CONCRETE | | Interior Finish: | DRYWALL PAINT | Plumbing Fixture Cnt: | 23 | | Roof Slope: | 5" IN 12" | Roof Structure/Cover: | CJ ASPHALT |
|
| | Type | Description | Class CD | Sub Class CD | Year Built | Area |
| | BAS | BASE/MAIN FLOOR | 5 | 0 | 2020 | 2390.0 |
| | DWN | DOWNSTAIRS LIVING AREA | 5 | 0 | 2020 | 1276.8 |
| | AGR | ATTACHED GARAGE | 5 | 0 | 2020 | 806.0 |
| | OWP | OPEN WOOD PORCH W/STEPS | 5 | 0 | 2020 | 114.0 |
| | OWC | OPEN WOOD PORCH W/STEPS/ROOF/C | 5 | 0 | 2020 | 371.0 |
| | OWC | OPEN WOOD PORCH W/STEPS/ROOF/C | 5 | 0 | 2020 | 70.0 |
| | DGR | DETACHED GARAGE | 5 | 0 | 2020 | 1853.2 |
| | ENP | ENCLOSED PORCH | 5 | 0 | 2020 | 414.2 |
| | UTY | STORAGE/UTILITY | 5 | 0 | 2020 | 78.8 |
| | OP4 | OPEN PORCH W/CEILING-ROOF | 5 | 0 | 2020 | 192.0 |
Sketch
| No sketches available for this property. |
Property Image
Land
| 1 | 16 | AC (00.51-01.00) | 0.0000 | 0.00 | 0.00 | 0.00 | 1.00 | $430,000 | $0 |
Roll Value History
| 2026 | N/A | N/A | N/A | N/A | N/A |
| 2025 | $1,140,928 | $430,000 | $0 | $1,570,928 | $1,570,928 |
| 2024 | $919,543 | $430,000 | $0 | $1,349,543 | $1,349,543 |
| 2023 | $926,841 | $420,000 | $0 | $1,346,841 | $1,346,841 |
| 2022 | $848,056 | $360,000 | $0 | $1,208,056 | $1,208,056 |
| 2021 | $621,937 | $240,000 | $0 | $861,937 | $861,937 |
| 2020 | $581,657 | $200,000 | $0 | $781,657 | $781,657 |
| 2019 | $0 | $110,000 | $0 | $110,000 | $110,000 |
| 2018 | $0 | $100,000 | $0 | $100,000 | $100,000 |
| 2017 | $0 | $100,000 | $0 | $100,000 | $100,000 |
| 2016 | $0 | $100,000 | $0 | $100,000 | $100,000 |
| 2015 | $0 | $100,000 | $0 | $100,000 | $100,000 |
| 2014 | $0 | $100,000 | $0 | $100,000 | $100,000 |
| 2013 | $0 | $100,000 | $0 | $100,000 | $100,000 |
| 2012 | $0 | $100,000 | $0 | $100,000 | $100,000 |
| 2011 | $0 | $150,000 | $0 | $150,000 | $150,000 |
| 2010 | $0 | $150,000 | $0 | $150,000 | $150,000 |
| 2009 | $0 | $175,000 | $0 | $175,000 | $175,000 |
| 2008 | $0 | $175,000 | $0 | $175,000 | $175,000 |
| 2007 | $0 | $175,000 | $0 | $175,000 | $175,000 |
Deed and Sales History
| 1 | 04/19/2023 | WD | Warranty Deed | SINGH, PRABHDEEP | GUTE, GERALD DOUGLAS | | | $1,924,000.00 | 56467 | 4559058 |
| 2 | 05/14/2021 | WD | Warranty Deed | MUELLER, ERIK | SINGH, PRABHDEEP | | | $1,750,000.00 | 48277 | 4519545 |
| 3 | 06/04/2019 | WD | Warranty Deed | TORSET, MICHELLE J | MUELLER, ERIK | | | $260,000.00 | 38891 | 4465034 |
| 4 | 06/15/2016 | REC | Real Estate Contract | SHROYER, DAVID | TORSET, MICHELLE J | | | $119,000.00 | 24862 | 4401612 |
|   | |
| 5 | 08/27/2000 | WD | Warranty Deed | SHROYER, DAVID | SHROYER, DAVID | | | $0.00 | 23524 | 4395830 |
| 6 | 08/27/1993 | WD | Warranty Deed | SHROYER, DAVID | SHROYER, DAVID | | | | 23524 | 4395829 |
| 7 | 09/01/1993 | WD | Warranty Deed | SHROYER, DONNA F | SHROYER, DAVID & | | | $6,000.00 | 33523 | 93018305 |
| 8 | 08/01/1993 | WD | Warranty Deed | OLSEN, HATTIE R | SHROYER, DONNA F | | | $0.00 | 33522 | 93018304 |
| 9 | 06/01/1982 | PACD | Purchaser's Assignment | OLSEN, ERNEST M | OLSEN, HATTIE R | | | $1.00 | 59500 | 0 |
| 10 | 01/01/1900 | OTHER | Other - Misc. Documents | Unknown | OLSEN, ERNEST M | | | $0.00 | 0 | 0 |
Payout Agreement
| No payout information available.. |