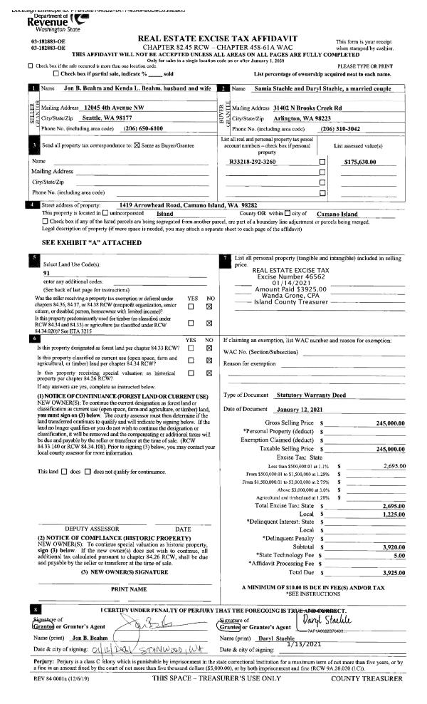
Property
Account |
| Property ID: | 161693 | Abbreviated Legal Description: | 60 - IN GL 2: N/2 OF: BG NE CR GL2 W178.2' S18*W1078.25 TPB N83*W TO ML SLY ALG ML TO NLN VAN HORN TR AF#190387 E ALG NLN SD TR TO WLN RD NLY ALG RD TPB INCL ADJ TIDES TGW UNDIV 1/2 INT IN WELL |
| Geographic ID: | R33218-292-3260 | Agent Code: | |
| Type: | Real | | |
| Tax Area: | 519 - APPRAISER-Stan/Cam Schl Dist, vacant & 50 acres or less | Land Use Code | 91 |
| Open Space: | N | DFL | N |
| Historic Property: | N | Remodel Property: | N |
| Multi-Family Redevelopment: | N | | |
| Township: | 32 | Section: | 18 |
| Range: | R3 |
Location |
| Address: | 1419 ARROWHEAD RD CAMANO ISLAND, WA 98282 | Mapsco: | |
| Neighborhood: | North Camano | Map ID: | 959 |
| Neighborhood CD: | 06-C |
Owner |
| Name: | STAEHLE, SAMIA | Owner ID: | 297731 |
| Mailing Address: | DARYL STAEHLE 31402 N BROOKS CREEK RD ARLINGTON, WA 98223 | % Ownership: | 100.0000000000% |
| | | Exemptions: | |
Taxes and Assessment Details
Values
| (+) Improvement Homesite Value: | + | $0 | |
| (+) Improvement Non-Homesite Value: | + | $0 | |
| (+) Land Homesite Value: | + | $0 | |
| (+) Land Non-Homesite Value: | + | $350,630 | |
| (+) Curr Use (HS): | + | $0 | $0 |
| (+) Curr Use (NHS): | + | $0 | $0 |
| | | -------------------------- | |
| (=) Market Value: | = | $350,630 | |
| (–) Productivity Loss: | – | $0 | |
| | | -------------------------- | |
| (=) Subtotal: | = | $350,630 | |
| (+) Senior Appraised Value: | + | $0 | |
| (+) Non-Senior Appraised Value: | + | $350,630 | |
| | | -------------------------- | |
| (=) Total Appraised Value: | = | $350,630 | |
| (–) Senior Exemption Loss: | – | $0 | |
| (–) Exemption Loss: | – | $0 | |
| | | -------------------------- | |
| (=) Taxable Value: | = | $350,630 | |
Taxing Jurisdiction
| Owner: | STAEHLE, SAMIA | | |
| % Ownership: | 100.0000000000% | | |
| Total Value: | $350,630 | | |
| Tax Area: | 519 - APPRAISER-Stan/Cam Schl Dist, vacant & 50 acres or less |
| CF | Conservation Futures | 0.0313996660 | $350,630 | $350,630 | $11.01 | | |
| EMS1 | Fire & Rescue Dist #1 Camano GEN (EMS) | 0.4998471806 | $350,630 | $350,630 | $175.26 | | |
| CE | County Current Expense | 0.3674210519 | $350,630 | $350,630 | $128.83 | | |
| CR | County Roads | 0.4614296361 | $350,630 | $350,630 | $161.79 | | |
| LIB | Library Sno-Isle GEN | 0.3039084203 | $350,630 | $350,630 | $106.56 | | |
| SCH205_401 | School 205-401 Enrichment | 1.3697998934 | $350,630 | $350,630 | $480.29 | | |
| SCH205BOND | School 205-401 BOND | 0.9354199323 | $350,630 | $350,630 | $327.99 | | |
| ST | State School | 1.4761226122 | $350,630 | $350,630 | $517.57 | | |
| ST2 | State School Part 2 | 0.7953803475 | $350,630 | $350,630 | $278.88 | | |
| | Total Tax Rate: | 6.2407287403 | | | | | |
| | | | | Taxes w/Current Exemptions: | $2,188.18 | | |
| | | | | Taxes w/o Exemptions: | $2,188.18 | | |
Improvement / Building
Sketch
| No sketches available for this property. |
Property Image
Land
| 1 | HB | HIGH BLUFF | 0.8000 | 34848.00 | 63.00 | 0.00 | 1.00 | $350,000 | $0 |
| 2 | 55 | TIDES | 0.0000 | 0.00 | 63.00 | 0.00 | 1.00 | $630 | $0 |
Roll Value History
| 2026 | N/A | N/A | N/A | N/A | N/A |
| 2025 | $0 | $350,630 | $0 | $350,630 | $350,630 |
| 2024 | $0 | $350,630 | $0 | $350,630 | $350,630 |
| 2023 | $0 | $315,630 | $0 | $315,630 | $315,630 |
| 2022 | $0 | $300,630 | $0 | $300,630 | $300,630 |
| 2021 | $0 | $200,630 | $0 | $200,630 | $200,630 |
| 2020 | $0 | $175,630 | $0 | $175,630 | $175,630 |
| 2019 | $0 | $175,630 | $0 | $175,630 | $175,630 |
| 2018 | $0 | $150,630 | $0 | $150,630 | $150,630 |
| 2017 | $0 | $150,630 | $0 | $150,630 | $150,630 |
| 2016 | $0 | $150,630 | $0 | $150,630 | $150,630 |
| 2015 | $0 | $150,630 | $0 | $150,630 | $150,630 |
| 2014 | $0 | $150,630 | $0 | $150,630 | $150,630 |
| 2013 | $0 | $142,895 | $0 | $142,895 | $142,895 |
| 2012 | $0 | $142,895 | $0 | $142,895 | $142,895 |
| 2011 | $0 | $142,895 | $0 | $142,895 | $142,895 |
| 2010 | $0 | $142,895 | $0 | $142,895 | $142,895 |
| 2009 | $0 | $158,138 | $0 | $158,138 | $158,138 |
| 2008 | $0 | $211,487 | $0 | $211,487 | $211,487 |
| 2007 | $0 | $143,521 | $0 | $143,521 | $143,521 |
Deed and Sales History
| 1 | 01/12/2021 | WD | Warranty Deed | BEAHM, JON B | STAEHLE, SAMIA | | | $245,000.00 | 46562 | 4508109 |
| 2 | 12/01/1989 | WD | Warranty Deed | BEAHM, JON B | DEFER, THE T | | | $38,000.00 | 95910 | 89019022 |
| 3 | 12/01/1989 | WD | Warranty Deed | CRUZ, GERALD | BEAHM, JON B | | | $0.00 | 95911 | 89019023 |
| 4 | 09/01/1989 | WD | Warranty Deed | LESTER, ROBERT | CRUZ, GERALD | | | $34,000.00 | 93894 | 89012975 |
| 5 | 10/01/1987 | DECREE | Divorce Decree/Legal Separation | LESTER, ROBERT A | LESTER, ROBERT | | | $0.00 | 73248 | 87014249 |
| 6 | 01/01/1900 | OTHER | Other - Misc. Documents | Unknown | LESTER, ROBERT A | | | $0.00 | 0 | 0 |
Payout Agreement
| No payout information available.. |