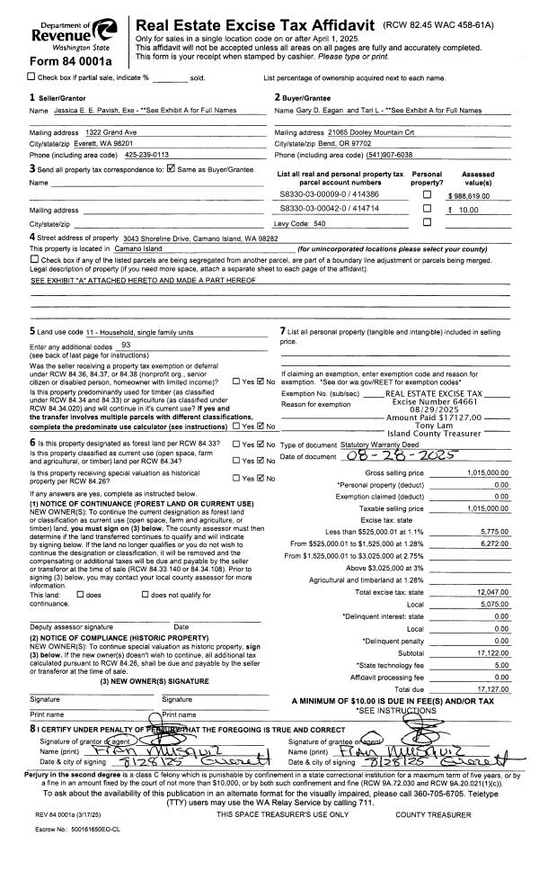
Property
Account |
| Property ID: | 16182 | Abbreviated Legal Description: | 10.0000 Acres ins Section 08s Township 32s Range R1s LOT A UNREG SEG AF#4501636;s |
| Geographic ID: | R13208-066-2310 | Agent Code: | |
| Type: | Real | | |
| Tax Area: | 119 - APPRAISER-OH Schl Dist, outside OH, vacant & 50 acres or less | Land Use Code | 91 |
| Open Space: | N | DFL | N |
| Historic Property: | N | Remodel Property: | N |
| Multi-Family Redevelopment: | N | | |
| Township: | 32 | Section: | 08 |
| Range: | R1 |
Location |
| Address: | | Mapsco: | |
| Neighborhood: | Cycle 1 | Map ID: | 108 |
| Neighborhood CD: | 1 |
Owner |
| Name: | ELVEBAK TTEE, RYAN A | Owner ID: | 316378 |
| Mailing Address: | ALLISON J ELVEBAK TTEE 2004 ZYLSTRA RD OAK HARBOR, WA 98277 | % Ownership: | 100.0000000000% |
| | | Exemptions: | |
Taxes and Assessment Details
Values
| (+) Improvement Homesite Value: | + | $0 | |
| (+) Improvement Non-Homesite Value: | + | $0 | |
| (+) Land Homesite Value: | + | $0 | |
| (+) Land Non-Homesite Value: | + | $240,000 | |
| (+) Curr Use (HS): | + | $0 | $0 |
| (+) Curr Use (NHS): | + | $0 | $0 |
| | | -------------------------- | |
| (=) Market Value: | = | $240,000 | |
| (–) Productivity Loss: | – | $0 | |
| | | -------------------------- | |
| (=) Subtotal: | = | $240,000 | |
| (+) Senior Appraised Value: | + | $0 | |
| (+) Non-Senior Appraised Value: | + | $240,000 | |
| | | -------------------------- | |
| (=) Total Appraised Value: | = | $240,000 | |
| (–) Senior Exemption Loss: | – | $0 | |
| (–) Exemption Loss: | – | $0 | |
| | | -------------------------- | |
| (=) Taxable Value: | = | $240,000 | |
Taxing Jurisdiction
| Owner: | ELVEBAK TTEE, RYAN A | | |
| % Ownership: | 100.0000000000% | | |
| Total Value: | $240,000 | | |
| Tax Area: | 119 - APPRAISER-OH Schl Dist, outside OH, vacant & 50 acres or less |
| CF | Conservation Futures | 0.0313996660 | $240,000 | $240,000 | $7.54 | | |
| CEM1 | Cemetery #1 | 0.0040018856 | $240,000 | $240,000 | $0.96 | | |
| HOBOND | Hospital BOND | 0.1893405597 | $240,000 | $240,000 | $45.44 | | |
| HOGEN | Hospital GEN | 0.3848777722 | $240,000 | $240,000 | $92.37 | | |
| CE | County Current Expense | 0.3674210519 | $240,000 | $240,000 | $88.18 | | |
| CR | County Roads | 0.4614296361 | $240,000 | $240,000 | $110.74 | | |
| ISLANDEMS | Hospital GEN (EMS) | 0.4952018576 | $240,000 | $240,000 | $118.85 | | |
| LIB | Library Sno-Isle GEN | 0.3039084203 | $240,000 | $240,000 | $72.94 | | |
| NWHIDPRMT | P & R N Whidbey GEN | 0.1990272349 | $240,000 | $240,000 | $47.77 | | |
| SCH201MO | School 201 Enrichment | 2.3851112745 | $240,000 | $240,000 | $572.43 | | |
| ST | State School | 1.4761226122 | $240,000 | $240,000 | $354.27 | | |
| ST2 | State School Part 2 | 0.7953803475 | $240,000 | $240,000 | $190.89 | | |
| | Total Tax Rate: | 7.0932223185 | | | | | |
| | | | | Taxes w/Current Exemptions: | $1,702.38 | | |
| | | | | Taxes w/o Exemptions: | $1,702.38 | | |
Improvement / Building
Sketch
| No sketches available for this property. |
Property Image
Land
| 1 | 91 | UNDEVELOPED LAND-METES AND BOUNDS | 10.0000 | 435600.00 | 0.00 | 0.00 | 1.00 | $240,000 | $0 |
Roll Value History
| 2026 | N/A | N/A | N/A | N/A | N/A |
| 2025 | $0 | $240,000 | $0 | $240,000 | $240,000 |
| 2024 | $0 | $240,000 | $0 | $240,000 | $240,000 |
| 2023 | $0 | $240,000 | $0 | $240,000 | $240,000 |
| 2022 | $0 | $220,000 | $0 | $220,000 | $220,000 |
| 2021 | $0 | $180,000 | $0 | $180,000 | $180,000 |
| 2020 | $0 | $130,000 | $928 | $928 | $928 |
| 2019 | $0 | $260,000 | $1,789 | $1,789 | $1,789 |
| 2018 | $0 | $200,000 | $1,762 | $1,762 | $1,762 |
| 2017 | $0 | $200,000 | $1,762 | $1,762 | $1,762 |
| 2016 | $0 | $200,000 | $1,796 | $1,796 | $1,796 |
| 2015 | $0 | $200,000 | $1,796 | $1,796 | $1,796 |
| 2014 | $0 | $195,000 | $1,796 | $1,796 | $1,796 |
| 2013 | $0 | $221,000 | $1,796 | $1,796 | $1,796 |
| 2012 | $0 | $221,000 | $1,796 | $1,796 | $1,796 |
| 2011 | $0 | $260,000 | $1,796 | $1,796 | $1,796 |
| 2010 | $0 | $260,000 | $1,796 | $1,796 | $1,796 |
| 2009 | $0 | $3,592 | $1,796 | $1,796 | $1,796 |
| 2008 | $0 | $3,592 | $1,796 | $1,796 | $1,796 |
| 2007 | $0 | $3,592 | $1,796 | $1,796 | $1,796 |
Deed and Sales History
| 1 | 03/13/2025 | QCD | Quit Claim Deed | ELVEBAK, RYAN | ELVEBAK TTEE, RYAN A | | | $0.00 | 63355 | 4585305 |
| 2 | 03/29/2022 | WD | Warranty Deed | CORSAIR CONSTRUCTION LLC | ELVEBAK, RYAN | | | $349,000.00 | 52526 | 4542521 |
| 3 | 01/21/2021 | WD | Warranty Deed | PEDERSEN, LEIF A | CORSAIR CONSTRUCTION LLC | | | $835,000.00 | 46657 | 4508808 |
|   | |
Payout Agreement
| No payout information available.. |