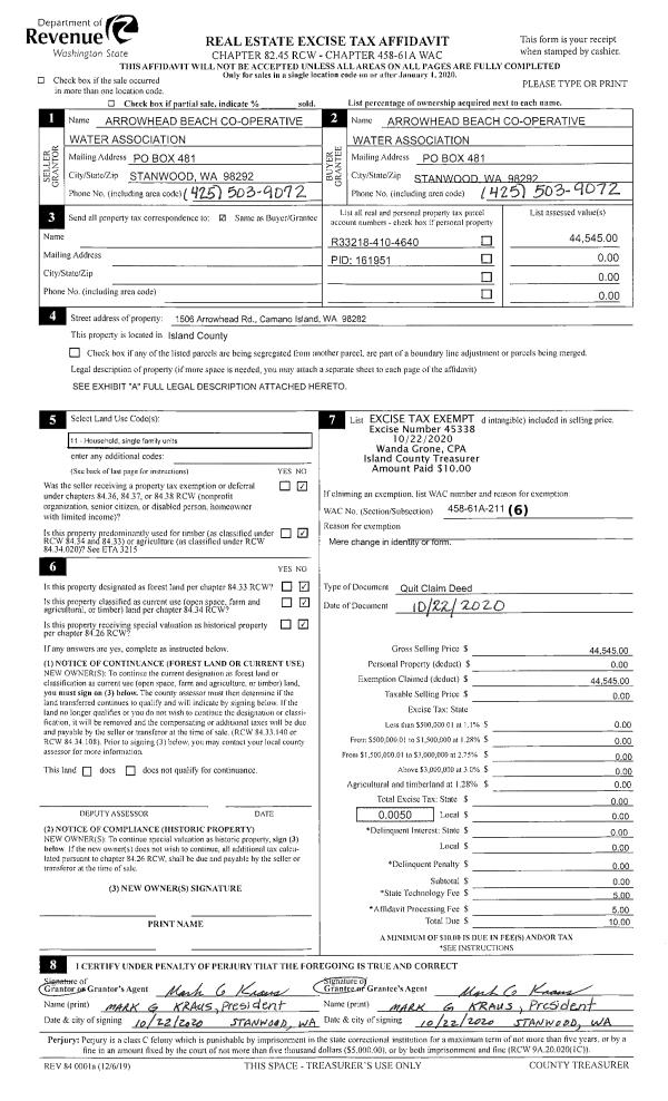
Property
Account |
| Property ID: | 161951 | Abbreviated Legal Description: | 93 - IN NE NE DESC: PT GL 2 BG SWCR GL 2 N25' E550'TPB N210' E214.3' S210' W214.3' TPB |
| Geographic ID: | R33218-410-4640 | Agent Code: | |
| Type: | Real | | |
| Tax Area: | 512 - APPRAISER-Stan/Cam Schl Dist, improved, greater than 1 acre | Land Use Code | 48 |
| Open Space: | N | DFL | N |
| Historic Property: | N | Remodel Property: | N |
| Multi-Family Redevelopment: | N | | |
| Township: | 32 | Section: | 18 |
| Range: | R3 |
Location |
| Address: | 1506 ARROWHEAD RD CAMANO ISLAND, WA 98282 | Mapsco: | |
| Neighborhood: | North Camano | Map ID: | 959 |
| Neighborhood CD: | 06-C |
Owner |
| Name: | ARROWHEAD BEACH CO-OP WATER | Owner ID: | 28886 |
| Mailing Address: | PO BOX 481 STANWOOD, WA 98292-0481 | % Ownership: | 100.0000000000% |
| | | Exemptions: | |
Taxes and Assessment Details
Values
| (+) Improvement Homesite Value: | + | $0 | |
| (+) Improvement Non-Homesite Value: | + | $114,400 | |
| (+) Land Homesite Value: | + | $0 | |
| (+) Land Non-Homesite Value: | + | $12,000 | |
| (+) Curr Use (HS): | + | $0 | $0 |
| (+) Curr Use (NHS): | + | $0 | $0 |
| | | -------------------------- | |
| (=) Market Value: | = | $126,400 | |
| (–) Productivity Loss: | – | $0 | |
| | | -------------------------- | |
| (=) Subtotal: | = | $126,400 | |
| (+) Senior Appraised Value: | + | $0 | |
| (+) Non-Senior Appraised Value: | + | $126,400 | |
| | | -------------------------- | |
| (=) Total Appraised Value: | = | $126,400 | |
| (–) Senior Exemption Loss: | – | $0 | |
| (–) Exemption Loss: | – | $0 | |
| | | -------------------------- | |
| (=) Taxable Value: | = | $126,400 | |
Taxing Jurisdiction
| Owner: | ARROWHEAD BEACH CO-OP WATER | | |
| % Ownership: | 100.0000000000% | | |
| Total Value: | $126,400 | | |
| Tax Area: | 512 - APPRAISER-Stan/Cam Schl Dist, improved, greater than 1 acre |
| CF | Conservation Futures | 0.0313996660 | $126,400 | $126,400 | $3.97 | | |
| EMS1 | Fire & Rescue Dist #1 Camano GEN (EMS) | 0.4998471806 | $126,400 | $126,400 | $63.18 | | |
| FIRE1 | Fire & Rescue Dist #1 Camano GEN | 1.2496603404 | $126,400 | $126,400 | $157.96 | | |
| FIRE1BOND | Fire & Rescue Dist #1 Camano BOND | 0.1630371212 | $126,400 | $126,400 | $20.61 | | |
| CE | County Current Expense | 0.3674210519 | $126,400 | $126,400 | $46.44 | | |
| CR | County Roads | 0.4614296361 | $126,400 | $126,400 | $58.32 | | |
| LIB | Library Sno-Isle GEN | 0.3039084203 | $126,400 | $126,400 | $38.41 | | |
| SCH205_401 | School 205-401 Enrichment | 1.3697998934 | $126,400 | $126,400 | $173.14 | | |
| SCH205BOND | School 205-401 BOND | 0.9354199323 | $126,400 | $126,400 | $118.24 | | |
| ST | State School | 1.4761226122 | $126,400 | $126,400 | $186.58 | | |
| ST2 | State School Part 2 | 0.7953803475 | $126,400 | $126,400 | $100.54 | | |
| | Total Tax Rate: | 7.6534262019 | | | | | |
| | | | | Taxes w/Current Exemptions: | $967.39 | | |
| | | | | Taxes w/o Exemptions: | $967.39 | | |
Improvement / Building
| Improvement #1: | RESIDENTIAL | State Code: | Y | 0.0 sqft | Value: | $114,400 |
| | Type | Description | Class CD | Sub Class CD | Year Built | Area |
| | oWT5 | 50K GALLON TANK | 1 | 0 | 1900 | 804.2 |
| | oUTI | UTILITY | 1 | 0 | 1900 | 216.0 |
| | oWT2 | 20K GALLON TANK | 1 | 0 | 1900 | 576.0 |
Sketch
Property Image
Land
| 1 | 16 | AC (00.51-01.00) | 1.0300 | 44866.80 | 0.00 | 0.00 | 1.00 | $12,000 | $0 |
Roll Value History
| 2026 | N/A | N/A | N/A | N/A | N/A |
| 2025 | $114,400 | $12,000 | $0 | $126,400 | $126,400 |
| 2024 | $114,400 | $12,000 | $0 | $126,400 | $126,400 |
| 2023 | $114,400 | $9,000 | $0 | $123,400 | $123,400 |
| 2022 | $35,545 | $9,000 | $0 | $44,545 | $44,545 |
| 2021 | $35,545 | $9,000 | $0 | $44,545 | $44,545 |
| 2020 | $35,545 | $9,000 | $0 | $44,545 | $44,545 |
| 2019 | $35,545 | $9,000 | $0 | $44,545 | $44,545 |
| 2018 | $35,545 | $5,000 | $0 | $40,545 | $40,545 |
| 2017 | $35,545 | $5,000 | $0 | $40,545 | $40,545 |
| 2016 | $29,145 | $5,000 | $0 | $34,145 | $34,145 |
| 2015 | $29,145 | $5,600 | $0 | $34,745 | $34,745 |
| 2014 | $29,145 | $5,600 | $0 | $34,745 | $34,745 |
| 2013 | $29,145 | $5,600 | $0 | $34,745 | $34,745 |
| 2012 | $29,145 | $5,600 | $0 | $34,745 | $34,745 |
| 2011 | $29,145 | $7,000 | $0 | $36,145 | $36,145 |
| 2010 | $29,644 | $7,000 | $0 | $36,644 | $36,644 |
| 2009 | $29,644 | $7,500 | $0 | $37,144 | $37,144 |
| 2008 | $29,644 | $9,750 | $0 | $39,394 | $39,394 |
| 2007 | $29,644 | $8,000 | $0 | $37,644 | $37,644 |
Deed and Sales History
| 1 | 10/22/2020 | QCD | Quit Claim Deed | ARROWHEAD BEACH CO-OP WATER | ARROWHEAD BEACH CO-OP WATER | | | $0.00 | 45338 | 4500157 |
| 2 | 01/01/1964 | CD | DNU - Correction Deed | KNAPP, E L | ARROWHEAD, BEACH C | | | $0.00 | 15885 | 0 |
| 3 | 01/01/1900 | OTHER | Other - Misc. Documents | Unknown | KNAPP, E L | | | $0.00 | 0 | 0 |
Payout Agreement
| No payout information available.. |