Property
Account |
| Property ID: | 162013 | Abbreviated Legal Description: | 106 - IN GL1: BG NECR GL1 S ALG ELN SD GL1 185' TPB S100' W270' M/L TO ML NLY ALG SD ML TP W OF TPB E240' M/L TPB TGW ADJ VAC PT HULTMAN RD R40-01 AF#400 |
| Geographic ID: | R33218-495-3800 | Agent Code: | |
| Type: | Real | | |
| Tax Area: | 510 - APPRAISER-Stan/Cam Schl Dist, improved & 1 acre or less | Land Use Code | 91 |
| Open Space: | N | DFL | N |
| Historic Property: | N | Remodel Property: | N |
| Multi-Family Redevelopment: | N | | |
| Township: | 32 | Section: | 18 |
| Range: | R3 |
Location |
| Address: | | Mapsco: | |
| Neighborhood: | North Camano | Map ID: | 959 |
| Neighborhood CD: | 06-C |
Owner |
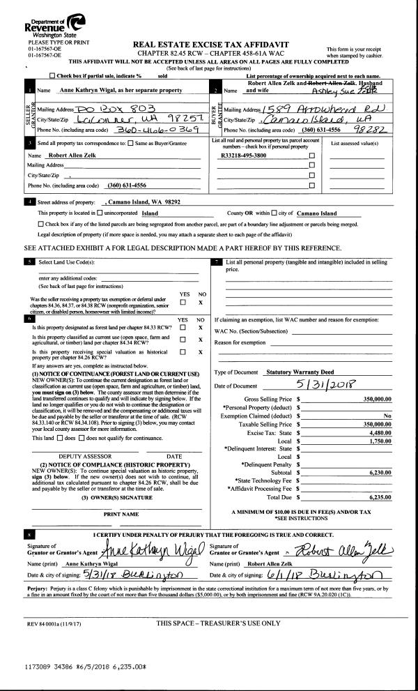
| Name: | ZELK, ROBERT ALLEN | Owner ID: | 285310 |
| Mailing Address: | ASHLEY SUE ZELK 1589 ARROWHEAD RD CAMANO ISLAND, WA 98282 | % Ownership: | 100.0000000000% |
| | | Exemptions: | |
Taxes and Assessment Details
Values
| (+) Improvement Homesite Value: | + | $0 | |
| (+) Improvement Non-Homesite Value: | + | $0 | |
| (+) Land Homesite Value: | + | $0 | |
| (+) Land Non-Homesite Value: | + | $400,000 | |
| (+) Curr Use (HS): | + | $0 | $0 |
| (+) Curr Use (NHS): | + | $0 | $0 |
| | | -------------------------- | |
| (=) Market Value: | = | $400,000 | |
| (–) Productivity Loss: | – | $0 | |
| | | -------------------------- | |
| (=) Subtotal: | = | $400,000 | |
| (+) Senior Appraised Value: | + | $0 | |
| (+) Non-Senior Appraised Value: | + | $400,000 | |
| | | -------------------------- | |
| (=) Total Appraised Value: | = | $400,000 | |
| (–) Senior Exemption Loss: | – | $0 | |
| (–) Exemption Loss: | – | $0 | |
| | | -------------------------- | |
| (=) Taxable Value: | = | $400,000 | |
Taxing Jurisdiction
| Owner: | ZELK, ROBERT ALLEN | | |
| % Ownership: | 100.0000000000% | | |
| Total Value: | $400,000 | | |
| Tax Area: | 510 - APPRAISER-Stan/Cam Schl Dist, improved & 1 acre or less |
| CF | Conservation Futures | 0.0313996660 | $400,000 | $400,000 | $12.56 | | |
| EMS1 | Fire & Rescue Dist #1 Camano GEN (EMS) | 0.4998471806 | $400,000 | $400,000 | $199.94 | | |
| FIRE1 | Fire & Rescue Dist #1 Camano GEN | 1.2496603404 | $400,000 | $400,000 | $499.86 | | |
| FIRE1BOND | Fire & Rescue Dist #1 Camano BOND | 0.1630371212 | $400,000 | $400,000 | $65.21 | | |
| CE | County Current Expense | 0.3674210519 | $400,000 | $400,000 | $146.97 | | |
| CR | County Roads | 0.4614296361 | $400,000 | $400,000 | $184.57 | | |
| LIB | Library Sno-Isle GEN | 0.3039084203 | $400,000 | $400,000 | $121.56 | | |
| SCH205_401 | School 205-401 Enrichment | 1.3697998934 | $400,000 | $400,000 | $547.92 | | |
| SCH205BOND | School 205-401 BOND | 0.9354199323 | $400,000 | $400,000 | $374.17 | | |
| ST | State School | 1.4761226122 | $400,000 | $400,000 | $590.45 | | |
| ST2 | State School Part 2 | 0.7953803475 | $400,000 | $400,000 | $318.15 | | |
| | Total Tax Rate: | 7.6534262019 | | | | | |
| | | | | Taxes w/Current Exemptions: | $3,061.36 | | |
| | | | | Taxes w/o Exemptions: | $3,061.36 | | |
Improvement / Building
Sketch
| No sketches available for this property. |
Property Image
Land
| 1 | HB | HIGH BLUFF | 0.6000 | 26136.00 | 106.00 | 0.00 | 1.00 | $400,000 | $0 |
Roll Value History
| 2026 | N/A | N/A | N/A | N/A | N/A |
| 2025 | $0 | $400,000 | $0 | $400,000 | $400,000 |
| 2024 | $0 | $400,000 | $0 | $400,000 | $400,000 |
| 2023 | $0 | $345,000 | $0 | $345,000 | $345,000 |
| 2022 | $0 | $330,000 | $0 | $330,000 | $330,000 |
| 2021 | $0 | $225,000 | $0 | $225,000 | $225,000 |
| 2020 | $0 | $600,000 | $0 | $600,000 | $600,000 |
| 2019 | $0 | $600,000 | $0 | $600,000 | $600,000 |
| 2018 | $0 | $600,000 | $0 | $600,000 | $600,000 |
| 2017 | $0 | $600,000 | $0 | $600,000 | $600,000 |
| 2016 | $0 | $600,000 | $0 | $600,000 | $600,000 |
| 2015 | $0 | $600,000 | $0 | $600,000 | $600,000 |
| 2014 | $0 | $600,000 | $0 | $600,000 | $600,000 |
| 2013 | $0 | $633,660 | $0 | $633,660 | $633,660 |
| 2012 | $0 | $633,660 | $0 | $633,660 | $633,660 |
| 2011 | $0 | $633,660 | $0 | $633,660 | $633,660 |
| 2010 | $0 | $633,660 | $0 | $633,660 | $633,660 |
| 2009 | $0 | $702,252 | $0 | $702,252 | $702,252 |
| 2008 | $0 | $813,306 | $0 | $813,306 | $813,306 |
| 2007 | $0 | $770,844 | $0 | $770,844 | $770,844 |
Deed and Sales History
| 1 | 05/31/2018 | WD | Warranty Deed | WIGAL, ANNE KATHRYN | ZELK, ROBERT ALLEN | | | $350,000.00 | 34386 | 4445562 |
| 2 | 05/23/2018 | PRD | Personal Representatives Deed | WIGAL, ANNE KATHRYN | WIGAL, ANNE KATHRYN | | | $0.00 | 34255 | 4445070 |
| 3 | 10/28/2016 | PRD | Personal Representatives Deed | ZELK, ALLEN I | WIGAL, ANNE KATHRYN | | | $0.00 | 26954 | 4411574 |
| 4 | 08/24/2012 | PRD | Personal Representatives Deed | ZELK, ESTATE OF MARCELLA J | ZELK, ALLEN I | | | $0.00 | 8694 | 4322149 |
Payout Agreement
| No payout information available.. |