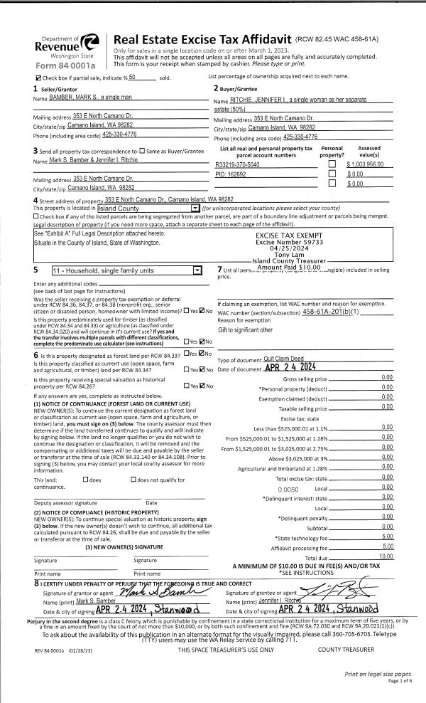
Property
Account |
| Property ID: | 162692 | Abbreviated Legal Description: | 31 - W50' OF: N/2 S/2 NW OF SEC 20-32-3E TGW PT N/2 SE NE OF SEC 19 LY NELY OF CO RD & E OF FOLL DESC LN: BG NWCR E/2 SE NE W535' TO NLY BDRY CO RD ELY ALG SD BDRY TPB N368' NELY 15' TP NLN SE NE 30'E OF NWCR E/2 SE NE & TERM LN (PT FR 33220-363-0670) RE |
| Geographic ID: | R33219-370-5040 | Agent Code: | |
| Type: | Real | | |
| Tax Area: | 592 - APPRAISER-Stan/Cam Schl Dist, Special Dist, improved, greater than 1 acre | Land Use Code | 11 |
| Open Space: | N | DFL | N |
| Historic Property: | N | Remodel Property: | N |
| Multi-Family Redevelopment: | N | | |
| Township: | 32 | Section: | 19 |
| Range: | R3 |
Location |
| Address: | 353 E NORTH CAMANO DR CAMANO ISLAND, WA 98282 | Mapsco: | |
| Neighborhood: | North Camano | Map ID: | 963 |
| Neighborhood CD: | 06-C |
Owner |
| Name: | RITCHIE, JENNIFER I | Owner ID: | 312089 |
| Mailing Address: | MARK BAMBER 353 E NORTH CAMANO DR CAMANO ISLAND, WA 98282 | % Ownership: | 100.0000000000% |
| | | Exemptions: | |
Taxes and Assessment Details
Values
| (+) Improvement Homesite Value: | + | $0 | |
| (+) Improvement Non-Homesite Value: | + | $610,726 | |
| (+) Land Homesite Value: | + | $0 | |
| (+) Land Non-Homesite Value: | + | $380,000 | |
| (+) Curr Use (HS): | + | $0 | $0 |
| (+) Curr Use (NHS): | + | $0 | $0 |
| | | -------------------------- | |
| (=) Market Value: | = | $990,726 | |
| (–) Productivity Loss: | – | $0 | |
| | | -------------------------- | |
| (=) Subtotal: | = | $990,726 | |
| (+) Senior Appraised Value: | + | $0 | |
| (+) Non-Senior Appraised Value: | + | $990,726 | |
| | | -------------------------- | |
| (=) Total Appraised Value: | = | $990,726 | |
| (–) Senior Exemption Loss: | – | $0 | |
| (–) Exemption Loss: | – | $0 | |
| | | -------------------------- | |
| (=) Taxable Value: | = | $990,726 | |
Taxing Jurisdiction
| Owner: | RITCHIE, JENNIFER I | | |
| % Ownership: | 100.0000000000% | | |
| Total Value: | $990,726 | | |
| Tax Area: | 592 - APPRAISER-Stan/Cam Schl Dist, Special Dist, improved, greater than 1 acre |
| CF | Conservation Futures | 0.0313996660 | $990,726 | $990,726 | $31.11 | | |
| EMS1 | Fire & Rescue Dist #1 Camano GEN (EMS) | 0.4998471806 | $990,726 | $990,726 | $495.21 | | |
| FIRE1 | Fire & Rescue Dist #1 Camano GEN | 1.2496603404 | $990,726 | $990,726 | $1,238.07 | | |
| FIRE1BOND | Fire & Rescue Dist #1 Camano BOND | 0.1630371212 | $990,726 | $990,726 | $161.53 | | |
| CE | County Current Expense | 0.3674210519 | $990,726 | $990,726 | $364.01 | | |
| CR | County Roads | 0.4614296361 | $990,726 | $990,726 | $457.15 | | |
| LIB | Library Sno-Isle GEN | 0.3039084203 | $990,726 | $990,726 | $301.09 | | |
| SCH205_401 | School 205-401 Enrichment | 1.3697998934 | $990,726 | $990,726 | $1,357.10 | | |
| SCH205BOND | School 205-401 BOND | 0.9354199323 | $990,726 | $990,726 | $926.74 | | |
| ST | State School | 1.4761226122 | $990,726 | $990,726 | $1,462.43 | | |
| ST2 | State School Part 2 | 0.7953803475 | $990,726 | $990,726 | $788.00 | | |
| | Total Tax Rate: | 7.6534262019 | | | | | |
| | | | | Taxes w/Current Exemptions: | $7,582.44 | | |
| | | | | Taxes w/o Exemptions: | $7,582.44 | | |
Improvement / Building
| Improvement #1: | RESIDENTIAL | State Code: | Y | 3040.6 sqft | Value: | $610,726 |
| Bathrooms: | 3 | Bedrooms: | 3 | | Ceiling: | DRYWALL PAINTED | Exterior Wall/Cover: | SHINGLE | | Floor Covering: | HARDWOOD/CARP 60-40 | Floor Structure: | WOOD W/SUBFLOOR | | Foundation: | CONCRETE | Heating: | FHA GAS | | Interior Finish: | DRYWALL PAINT | Plumbing Fixture Cnt: | 16 | | Roof Slope: | 6" IN 12" | Roof Structure/Cover: | CJ ALUMINIUM HEAVY |
|
| | Type | Description | Class CD | Sub Class CD | Year Built | Area |
| | BAS | BASE/MAIN FLOOR | 4 | 0 | 2001 | 2038.7 |
| | OP4 | OPEN PORCH W/CEILING-ROOF | 4 | 0 | 2001 | 64.0 |
| | DGR | DETACHED GARAGE | 4 | 0 | 2001 | 679.6 |
| | UPS | UPPER STORY | 4 | 0 | 2001 | 712.7 |
| | BAI | BALCONY IRON RAIL | 4 | 0 | 2001 | 30.7 |
| | OWP | OPEN WOOD PORCH W/STEPS | 4 | 0 | 2001 | 801.9 |
| | LOF | LOFT | 4 | 0 | 2001 | 289.2 |
| | oBAR | BARN | 4 | 0 | 2001 | 0.0 |
| | UTY | STORAGE/UTILITY | 4 | 0 | 2001 | 64.0 |
Sketch
Property Image
Land
| 1 | 32 | AC (03.01-09.99) | 0.0000 | 0.00 | 0.00 | 0.00 | 1.00 | $380,000 | $0 |
Roll Value History
| 2026 | N/A | N/A | N/A | N/A | N/A |
| 2025 | $610,726 | $380,000 | $0 | $990,726 | $990,726 |
| 2024 | $617,341 | $390,000 | $0 | $1,007,341 | $1,007,341 |
| 2023 | $623,956 | $380,000 | $0 | $1,003,956 | $1,003,956 |
| 2022 | $540,322 | $350,000 | $0 | $890,322 | $890,322 |
| 2021 | $481,555 | $240,000 | $0 | $721,555 | $721,555 |
| 2020 | $470,921 | $200,000 | $0 | $670,921 | $670,921 |
| 2019 | $377,578 | $240,000 | $0 | $617,578 | $617,578 |
| 2018 | $378,538 | $220,000 | $0 | $598,538 | $598,538 |
| 2017 | $380,452 | $200,000 | $0 | $580,452 | $580,452 |
| 2016 | $360,651 | $140,000 | $0 | $500,651 | $500,651 |
| 2015 | $364,350 | $112,320 | $0 | $476,670 | $476,670 |
| 2014 | $368,047 | $112,320 | $0 | $480,367 | $480,367 |
| 2013 | $371,745 | $112,320 | $0 | $484,065 | $484,065 |
| 2012 | $375,443 | $112,320 | $0 | $487,763 | $487,763 |
| 2011 | $379,143 | $140,400 | $0 | $519,543 | $519,543 |
| 2010 | $475,210 | $140,400 | $0 | $615,610 | $615,610 |
| 2009 | $499,225 | $205,920 | $0 | $705,145 | $705,145 |
| 2008 | $508,197 | $224,640 | $0 | $732,837 | $732,837 |
| 2007 | $524,345 | $224,640 | $0 | $748,985 | $748,985 |
Deed and Sales History
| 1 | 04/24/2024 | QCD | Quit Claim Deed | BAMBER, MARK S | RITCHIE, JENNIFER I | | | $0.00 | 59733 | 4571583 |
| 2 | 09/01/1995 | WD | Warranty Deed | BAMBER, MARK S | BAMBER, MARK S | | | $43,000.00 | 53274 | 95015067 |
| 3 | 09/01/1995 | QCD | Quit Claim Deed | MARSHALL, G R | BAMBER, MARK S | | | $0.00 | 53275 | 95015068 |
| 4 | 06/01/1989 | OTHER | Other - Misc. Documents | MARSHALL, G R | MARSHALL, G R | | | $0.00 | 63212 | 89006896 |
| 5 | 04/01/1989 | WD | Warranty Deed | RAINIER, NATIONAL B | MARSHALL, G R | | | $0.00 | 91538 | 89005352 |
| 6 | 10/01/1986 | OTHER | Other - Misc. Documents | TURNER, KENNETH C | RAINIER, NATIONAL B | | | $0.00 | 73662 | 87015927 |
| 7 | 06/01/1986 | OTHER | Other - Misc. Documents | TURNER, KENNETH C | TURNER, KENNETH C | | | $0.00 | 70195 | 87001366 |
| 8 | 06/01/1969 | OTHER | Other - Misc. Documents | TURNER, KENNETH C | TURNER, KENNETH C | | | $0.00 | 35795 | 0 |
| 9 | 01/01/1900 | OTHER | Other - Misc. Documents | Unknown | TURNER, KENNETH C | | | $0.00 | 0 | 0 |
Payout Agreement
| No payout information available.. |