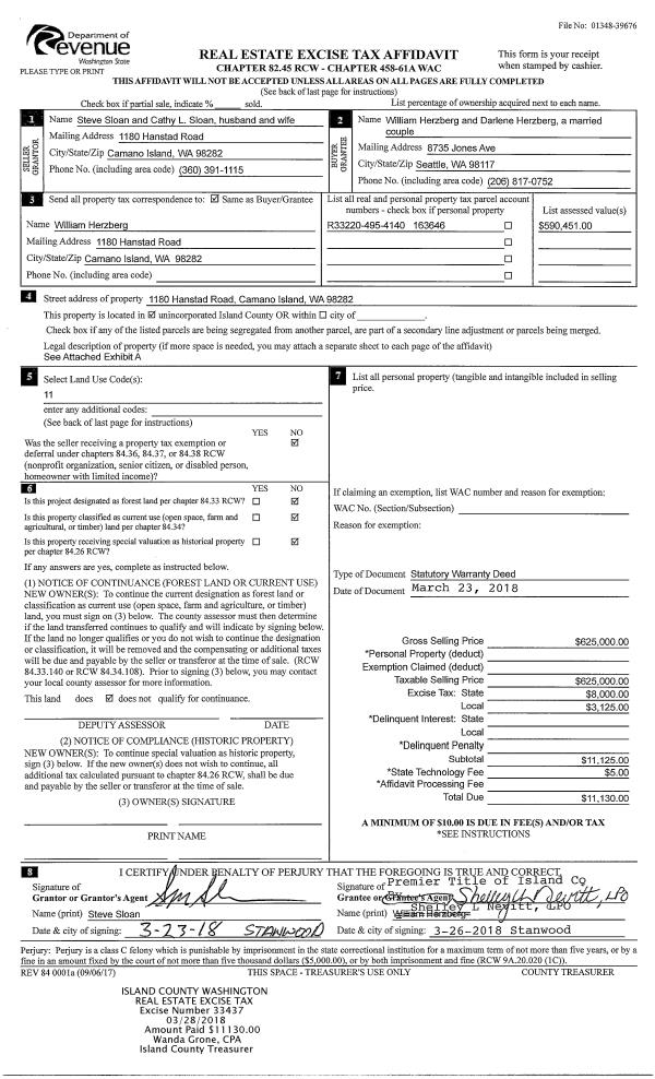
Property
Account |
| Property ID: | 163646 | Abbreviated Legal Description: | 56 - W/2 NW NE NE EX N20' |
| Geographic ID: | R33220-495-4140 | Agent Code: | |
| Type: | Real | | |
| Tax Area: | 592 - APPRAISER-Stan/Cam Schl Dist, Special Dist, improved, greater than 1 acre | Land Use Code | 11 |
| Open Space: | N | DFL | N |
| Historic Property: | N | Remodel Property: | N |
| Multi-Family Redevelopment: | N | | |
| Township: | 32 | Section: | 20 |
| Range: | R3 |
Location |
| Address: | 1180 HANSTAD RD CAMANO ISLAND, WA 98282 | Mapsco: | |
| Neighborhood: | North Camano | Map ID: | 967 |
| Neighborhood CD: | 06-C |
Owner |
| Name: | HERZBERG, WILLIAM | Owner ID: | 284376 |
| Mailing Address: | DARLENE HERZBERG 1180 HANSTAD RD CAMANO ISLAND, WA 98282 | % Ownership: | 100.0000000000% |
| | | Exemptions: | |
Taxes and Assessment Details
Values
| (+) Improvement Homesite Value: | + | $0 | |
| (+) Improvement Non-Homesite Value: | + | $641,932 | |
| (+) Land Homesite Value: | + | $0 | |
| (+) Land Non-Homesite Value: | + | $380,000 | |
| (+) Curr Use (HS): | + | $0 | $0 |
| (+) Curr Use (NHS): | + | $0 | $0 |
| | | -------------------------- | |
| (=) Market Value: | = | $1,021,932 | |
| (–) Productivity Loss: | – | $0 | |
| | | -------------------------- | |
| (=) Subtotal: | = | $1,021,932 | |
| (+) Senior Appraised Value: | + | $0 | |
| (+) Non-Senior Appraised Value: | + | $1,021,932 | |
| | | -------------------------- | |
| (=) Total Appraised Value: | = | $1,021,932 | |
| (–) Senior Exemption Loss: | – | $0 | |
| (–) Exemption Loss: | – | $0 | |
| | | -------------------------- | |
| (=) Taxable Value: | = | $1,021,932 | |
Taxing Jurisdiction
| Owner: | HERZBERG, WILLIAM | | |
| % Ownership: | 100.0000000000% | | |
| Total Value: | $1,021,932 | | |
| Tax Area: | 592 - APPRAISER-Stan/Cam Schl Dist, Special Dist, improved, greater than 1 acre |
| CF | Conservation Futures | 0.0313996660 | $1,021,932 | $1,021,932 | $32.09 | | |
| EMS1 | Fire & Rescue Dist #1 Camano GEN (EMS) | 0.4998471806 | $1,021,932 | $1,021,932 | $510.81 | | |
| FIRE1 | Fire & Rescue Dist #1 Camano GEN | 1.2496603404 | $1,021,932 | $1,021,932 | $1,277.07 | | |
| FIRE1BOND | Fire & Rescue Dist #1 Camano BOND | 0.1630371212 | $1,021,932 | $1,021,932 | $166.61 | | |
| CE | County Current Expense | 0.3674210519 | $1,021,932 | $1,021,932 | $375.48 | | |
| CR | County Roads | 0.4614296361 | $1,021,932 | $1,021,932 | $471.55 | | |
| LIB | Library Sno-Isle GEN | 0.3039084203 | $1,021,932 | $1,021,932 | $310.57 | | |
| SCH205_401 | School 205-401 Enrichment | 1.3697998934 | $1,021,932 | $1,021,932 | $1,399.84 | | |
| SCH205BOND | School 205-401 BOND | 0.9354199323 | $1,021,932 | $1,021,932 | $955.94 | | |
| ST | State School | 1.4761226122 | $1,021,932 | $1,021,932 | $1,508.50 | | |
| ST2 | State School Part 2 | 0.7953803475 | $1,021,932 | $1,021,932 | $812.82 | | |
| | Total Tax Rate: | 7.6534262019 | | | | | |
| | | | | Taxes w/Current Exemptions: | $7,821.28 | | |
| | | | | Taxes w/o Exemptions: | $7,821.28 | | |
Improvement / Building
| Improvement #1: | RESIDENTIAL | State Code: | Y | 2929.5 sqft | Value: | $641,932 |
| Bathrooms: | 4 | Bedrooms: | 3 | | Ceiling: | DRYWALL PAINTED | Cooling: | HEAT PUMP/CONV/V | | Exterior Wall/Cover: | WOOD SIDING | Floor Covering: | HARDWOOD/CARP 60-40 | | Floor Structure: | WOOD W/SUBFLOOR | Foundation: | CONCRETE | | Interior Finish: | DRYWALL PAINT | Plumbing Fixture Cnt: | 17 | | Roof Slope: | 6" IN 12" | Roof Structure/Cover: | CJ ASPHALT |
|
| | Type | Description | Class CD | Sub Class CD | Year Built | Area |
| | BAS | BASE/MAIN FLOOR | 4 | 0 | 1995 | 1604.0 |
| | BAS | BASE/MAIN FLOOR | 4 | 0 | 1995 | 280.0 |
| | DGR | DETACHED GARAGE | 4 | 0 | 1995 | 720.0 |
| | AGR | ATTACHED GARAGE | 4 | 0 | 1995 | 672.0 |
| | UPS | UPPER STORY | 4 | 0 | 1995 | 1045.5 |
| | ATU | ATTIC UNFINISHED | 4 | 0 | 1995 | 272.0 |
| | OWP | OPEN WOOD PORCH W/STEPS | 4 | 0 | 1995 | 778.0 |
| | OWC | OPEN WOOD PORCH W/STEPS/ROOF/C | 4 | 0 | 1995 | 155.0 |
| | UTY | STORAGE/UTILITY | 4 | 0 | 1995 | 1224.0 |
Sketch
Property Image
Land
| 1 | 32 | AC (03.01-09.99) | 4.5600 | 0.00 | 0.00 | 0.00 | 1.00 | $380,000 | $0 |
Roll Value History
| 2026 | N/A | N/A | N/A | N/A | N/A |
| 2025 | $641,932 | $380,000 | $0 | $1,021,932 | $1,021,932 |
| 2024 | $649,930 | $390,000 | $0 | $1,039,930 | $1,039,930 |
| 2023 | $657,930 | $380,000 | $0 | $1,037,930 | $1,037,930 |
| 2022 | $581,275 | $350,000 | $0 | $931,275 | $931,275 |
| 2021 | $511,757 | $240,000 | $0 | $751,757 | $751,757 |
| 2020 | $498,861 | $200,000 | $0 | $698,861 | $698,861 |
| 2019 | $387,012 | $240,000 | $0 | $627,012 | $627,012 |
| 2018 | $388,174 | $220,000 | $0 | $608,174 | $608,174 |
| 2017 | $390,451 | $200,000 | $0 | $590,451 | $590,451 |
| 2016 | $372,808 | $180,000 | $0 | $552,808 | $552,808 |
| 2015 | $377,060 | $228,000 | $0 | $605,060 | $605,060 |
| 2014 | $381,310 | $228,000 | $0 | $609,310 | $609,310 |
| 2013 | $385,562 | $109,440 | $0 | $495,002 | $495,002 |
| 2012 | $389,811 | $127,680 | $0 | $517,491 | $517,491 |
| 2011 | $394,063 | $159,600 | $0 | $553,663 | $553,663 |
| 2010 | $451,190 | $159,600 | $0 | $610,790 | $610,790 |
| 2009 | $469,845 | $205,200 | $0 | $675,045 | $675,045 |
| 2008 | $485,546 | $205,200 | $0 | $690,746 | $690,746 |
| 2007 | $491,748 | $205,200 | $0 | $696,948 | $696,948 |
Deed and Sales History
| 1 | 03/23/2018 | WD | Warranty Deed | SLOAN, STEVE | HERZBERG, WILLIAM | | | $625,000.00 | 33437 | 4441511 |
| 2 | 06/16/2008 | QCD | Quit Claim Deed | BURKART, VIOLA C | SLOAN, STEVE = | | | $0.00 | 81583 | 4231136 |
| 3 | 07/08/2003 | WD | Warranty Deed | ROTH, LYLE L | BURKART, VIOLA C | | | $417,000.00 | 32934 | 4066035 |
| 4 | 07/01/1992 | WD | Warranty Deed | JONES, VALDON T | ROTH, LYLE L | | | $70,000.00 | 22607 | 92012612 |
| 5 | 01/01/1900 | OTHER | Other - Misc. Documents | Unknown | JONES, VALDON T | | | $0.00 | 0 | 0 |
Payout Agreement
| No payout information available.. |