Property
Account |
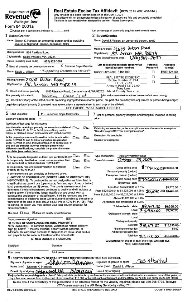
| Property ID: | 164100 | Abbreviated Legal Description: | 33 - E735' OF GL1 MEAS ALG SLN GL1 & LY S OF RD |
| Geographic ID: | R33221-425-4800 | Agent Code: | |
| Type: | Real | | |
| Tax Area: | 512 - APPRAISER-Stan/Cam Schl Dist, improved, greater than 1 acre | Land Use Code | 11 |
| Open Space: | N | DFL | N |
| Historic Property: | N | Remodel Property: | N |
| Multi-Family Redevelopment: | N | | |
| Township: | 32 | Section: | 21 |
| Range: | R3 |
Location |
| Address: | 1180 UTSALADY RD CAMANO ISLAND, WA 98282 | Mapsco: | |
| Neighborhood: | North Camano | Map ID: | 971 |
| Neighborhood CD: | 06-C |
Owner |
| Name: | WILSON, DAVID J | Owner ID: | 314452 |
| Mailing Address: | 22605 BULSON RD MT VERNON, WA 98274 | % Ownership: | 100.0000000000% |
| | | Exemptions: | |
Taxes and Assessment Details
Values
| (+) Improvement Homesite Value: | + | $0 | |
| (+) Improvement Non-Homesite Value: | + | $293,033 | |
| (+) Land Homesite Value: | + | $0 | |
| (+) Land Non-Homesite Value: | + | $380,000 | |
| (+) Curr Use (HS): | + | $0 | $0 |
| (+) Curr Use (NHS): | + | $0 | $0 |
| | | -------------------------- | |
| (=) Market Value: | = | $673,033 | |
| (–) Productivity Loss: | – | $0 | |
| | | -------------------------- | |
| (=) Subtotal: | = | $673,033 | |
| (+) Senior Appraised Value: | + | $0 | |
| (+) Non-Senior Appraised Value: | + | $673,033 | |
| | | -------------------------- | |
| (=) Total Appraised Value: | = | $673,033 | |
| (–) Senior Exemption Loss: | – | $0 | |
| (–) Exemption Loss: | – | $0 | |
| | | -------------------------- | |
| (=) Taxable Value: | = | $673,033 | |
Taxing Jurisdiction
| Owner: | WILSON, DAVID J | | |
| % Ownership: | 100.0000000000% | | |
| Total Value: | $673,033 | | |
| Tax Area: | 512 - APPRAISER-Stan/Cam Schl Dist, improved, greater than 1 acre |
| CF | Conservation Futures | 0.0313996660 | $673,033 | $673,033 | $21.13 | | |
| EMS1 | Fire & Rescue Dist #1 Camano GEN (EMS) | 0.4998471806 | $673,033 | $673,033 | $336.41 | | |
| FIRE1 | Fire & Rescue Dist #1 Camano GEN | 1.2496603404 | $673,033 | $673,033 | $841.06 | | |
| FIRE1BOND | Fire & Rescue Dist #1 Camano BOND | 0.1630371212 | $673,033 | $673,033 | $109.73 | | |
| CE | County Current Expense | 0.3674210519 | $673,033 | $673,033 | $247.29 | | |
| CR | County Roads | 0.4614296361 | $673,033 | $673,033 | $310.56 | | |
| LIB | Library Sno-Isle GEN | 0.3039084203 | $673,033 | $673,033 | $204.54 | | |
| SCH205_401 | School 205-401 Enrichment | 1.3697998934 | $673,033 | $673,033 | $921.92 | | |
| SCH205BOND | School 205-401 BOND | 0.9354199323 | $673,033 | $673,033 | $629.57 | | |
| ST | State School | 1.4761226122 | $673,033 | $673,033 | $993.48 | | |
| ST2 | State School Part 2 | 0.7953803475 | $673,033 | $673,033 | $535.32 | | |
| | Total Tax Rate: | 7.6534262019 | | | | | |
| | | | | Taxes w/Current Exemptions: | $5,151.01 | | |
| | | | | Taxes w/o Exemptions: | $5,151.01 | | |
Improvement / Building
| Improvement #1: | RESIDENTIAL | State Code: | Y | 1576.0 sqft | Value: | $293,033 |
| Bathrooms: | 1.75 | Bedrooms: | 3 | | Ceiling: | DRYWALL PAINTED | Exterior Wall/Cover: | VINYL | | Floor Covering: | HARDWOOD/CARP 20-80 | Floor Structure: | WOOD W/SUBFLOOR | | Foundation: | CONCRETE | Heating: | FHA GAS | | Interior Finish: | DRYWALL PAINT | Plumbing Fixture Cnt: | 9 | | Roof Slope: | 8" IN 12" | Roof Structure/Cover: | CJ ALUMINIUM HEAVY |
|
| | Type | Description | Class CD | Sub Class CD | Year Built | Area |
| | BAS | BASE/MAIN FLOOR | 3 | 0 | 1992 | 980.0 |
| | UPS | UPPER STORY | 3 | 0 | 1992 | 596.0 |
| | OWP | OPEN WOOD PORCH W/STEPS | 3 | 0 | 1992 | 240.0 |
| | OWP | OPEN WOOD PORCH W/STEPS | 3 | 0 | 1992 | 84.0 |
| | oPOL | POLE BARN | 3 | 0 | 1992 | 0.0 |
| | DGR | DETACHED GARAGE | 3 | 0 | 1992 | 768.0 |
Sketch
Property Image
Land
| 1 | 32 | AC (03.01-09.99) | 5.2500 | 0.00 | 0.00 | 0.00 | 1.00 | $380,000 | $0 |
Roll Value History
| 2026 | N/A | N/A | N/A | N/A | N/A |
| 2025 | $293,033 | $380,000 | $0 | $673,033 | $673,033 |
| 2024 | $296,579 | $390,000 | $0 | $686,579 | $686,579 |
| 2023 | $300,124 | $380,000 | $0 | $680,124 | $680,124 |
| 2022 | $261,275 | $350,000 | $0 | $611,275 | $611,275 |
| 2021 | $231,288 | $240,000 | $0 | $471,288 | $471,288 |
| 2020 | $225,938 | $200,000 | $0 | $425,938 | $425,938 |
| 2019 | $166,791 | $240,000 | $0 | $406,791 | $406,791 |
| 2018 | $167,272 | $190,000 | $0 | $357,272 | $357,272 |
| 2017 | $168,237 | $170,000 | $0 | $338,237 | $338,237 |
| 2016 | $163,414 | $135,000 | $0 | $298,414 | $298,414 |
| 2015 | $165,459 | $131,250 | $0 | $296,709 | $296,709 |
| 2014 | $167,504 | $131,250 | $0 | $298,754 | $298,754 |
| 2013 | $169,550 | $117,600 | $0 | $287,150 | $287,150 |
| 2012 | $171,595 | $117,600 | $0 | $289,195 | $289,195 |
| 2011 | $173,641 | $147,000 | $0 | $320,641 | $320,641 |
| 2010 | $195,334 | $147,000 | $0 | $342,334 | $342,334 |
| 2009 | $202,753 | $168,000 | $0 | $370,753 | $370,753 |
| 2008 | $205,317 | $168,000 | $0 | $373,317 | $373,317 |
| 2007 | $208,212 | $168,000 | $0 | $376,212 | $376,212 |
Deed and Sales History
| 1 | 10/29/2024 | WD | Warranty Deed | HANSON, SHARON K | WILSON, DAVID J | | | $790,000.00 | 61744 | 4578991 |
| 2 | 11/01/1991 | QCD | Quit Claim Deed | HANSON, SIGMUND | HANSON, SIGMUND/SHARON K | | | $0.00 | 14189 | 91018237 |
| 3 | 01/01/1900 | OTHER | Other - Misc. Documents | Unknown | HANSON, SIGMUND | | | $0.00 | 0 | 0 |
Payout Agreement
| No payout information available.. |