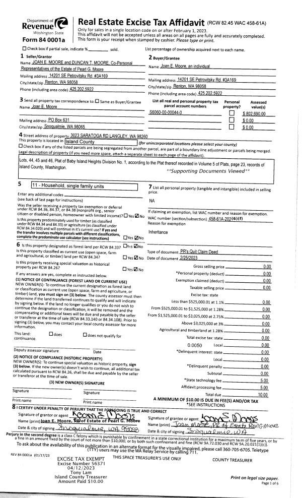
Property
Account |
| Property ID: | 164217 | Abbreviated Legal Description: | 2 - PT E/2 NW NE LY SLY OF UTSALADY RD & REKDAL RD & PT E/4 W/2 NW NE LY SLY OF REKDAL RD EX ANY PT AF#94011135 A#41894 |
| Geographic ID: | R33221-466-3560 | Agent Code: | |
| Type: | Real | | |
| Tax Area: | 512 - APPRAISER-Stan/Cam Schl Dist, improved, greater than 1 acre | Land Use Code | 83 |
| Open Space: | Y | DFL | N |
| Historic Property: | N | Remodel Property: | N |
| Multi-Family Redevelopment: | N | | |
| Township: | 32 | Section: | 21 |
| Range: | R3 |
Location |
| Address: | 1080 UTSALADY RD CAMANO ISLAND, WA 98282 | Mapsco: | |
| Neighborhood: | North Camano | Map ID: | 971 |
| Neighborhood CD: | 06-C |
Owner |
| Name: | JACOB, PATRICIA C | Owner ID: | 29133 |
| Mailing Address: | 1080 UTSALADY RD CAMANO ISLAND, WA 98282-8800 | % Ownership: | 100.0000000000% |
| | | Exemptions: | |
Taxes and Assessment Details
Values
| (+) Improvement Homesite Value: | + | $0 | |
| (+) Improvement Non-Homesite Value: | + | $387,195 | |
| (+) Land Homesite Value: | + | $0 | |
| (+) Land Non-Homesite Value: | + | $0 | |
| (+) Curr Use (HS): | + | $0 | $0 |
| (+) Curr Use (NHS): | + | $470,000 | $6,143 |
| | | -------------------------- | |
| (=) Market Value: | = | $857,195 | |
| (–) Productivity Loss: | – | $463,857 | |
| | | -------------------------- | |
| (=) Subtotal: | = | $393,338 | |
| (+) Senior Appraised Value: | + | $0 | |
| (+) Non-Senior Appraised Value: | + | $393,338 | |
| | | -------------------------- | |
| (=) Total Appraised Value: | = | $393,338 | |
| (–) Senior Exemption Loss: | – | $0 | |
| (–) Exemption Loss: | – | $0 | |
| | | -------------------------- | |
| (=) Taxable Value: | = | $393,338 | |
Taxing Jurisdiction
| Owner: | JACOB, PATRICIA C | | |
| % Ownership: | 100.0000000000% | | |
| Total Value: | $857,195 | | |
| Tax Area: | 512 - APPRAISER-Stan/Cam Schl Dist, improved, greater than 1 acre |
| CF | Conservation Futures | 0.0313996660 | $393,338 | $393,338 | $12.35 | | |
| EMS1 | Fire & Rescue Dist #1 Camano GEN (EMS) | 0.4998471806 | $393,338 | $393,338 | $196.61 | | |
| FIRE1 | Fire & Rescue Dist #1 Camano GEN | 1.2496603404 | $393,338 | $393,338 | $491.54 | | |
| FIRE1BOND | Fire & Rescue Dist #1 Camano BOND | 0.1630371212 | $393,338 | $393,338 | $64.13 | | |
| CE | County Current Expense | 0.3674210519 | $393,338 | $393,338 | $144.52 | | |
| CR | County Roads | 0.4614296361 | $393,338 | $393,338 | $181.50 | | |
| LIB | Library Sno-Isle GEN | 0.3039084203 | $393,338 | $393,338 | $119.54 | | |
| SCH205_401 | School 205-401 Enrichment | 1.3697998934 | $393,338 | $393,338 | $538.79 | | |
| SCH205BOND | School 205-401 BOND | 0.9354199323 | $393,338 | $393,338 | $367.94 | | |
| ST | State School | 1.4761226122 | $393,338 | $393,338 | $580.62 | | |
| ST2 | State School Part 2 | 0.7953803475 | $393,338 | $393,338 | $312.85 | | |
| | Total Tax Rate: | 7.6534262019 | | | | | |
| | | | | Taxes w/Current Exemptions: | $3,010.39 | | |
| | | | | Taxes w/o Exemptions: | $3,010.39 | | |
Improvement / Building
| Improvement #1: | RESIDENTIAL | State Code: | Y | 1717.0 sqft | Value: | $387,195 |
| Bathrooms: | 1.5 | Bedrooms: | 3 | | Ceiling: | DRYWALL PAINTED | Exterior Wall/Cover: | WOOD SIDING | | Floor Covering: | VINYL/HARDWOOD 20-80 | Floor Structure: | WOOD W/SUBFLOOR | | Foundation: | CONCRETE BLOCKS | Heating: | BASEBOARD ELECTRIC | | Interior Finish: | DRYWALL PAINT | Plumbing Fixture Cnt: | 11 | | Roof Slope: | 4" IN 12" | Roof Structure/Cover: | CJ ASPHALT |
|
| | Type | Description | Class CD | Sub Class CD | Year Built | Area |
| | BAS | BASE/MAIN FLOOR | 3 | 0 | 1961 | 1717.0 |
| | OWP | OPEN WOOD PORCH W/STEPS | 3 | 0 | 1961 | 345.0 |
| | AGR | ATTACHED GARAGE | 3 | 0 | 1961 | 344.0 |
| | oOBD | Out Buildings | 3 | 0 | 1961 | 0.0 |
| | ENP | ENCLOSED PORCH | 3 | 0 | 1961 | 715.0 |
Sketch
Property Image
Land
| 1 | HS | HOMESITE | 1.0000 | 43560.00 | 0.00 | 0.00 | 1.00 | $330,000 | $375 |
| 2 | 83 | OPEN AGRICULTURE | 23.7500 | 1034550.00 | 0.00 | 0.00 | 1.00 | $140,000 | $5,768 |
Roll Value History
| 2026 | N/A | N/A | N/A | N/A | N/A |
| 2025 | $387,195 | $470,000 | $6,143 | $393,338 | $393,338 |
| 2024 | $398,257 | $440,000 | $6,143 | $404,400 | $404,400 |
| 2023 | $402,597 | $420,000 | $6,143 | $408,740 | $408,740 |
| 2022 | $365,357 | $400,000 | $6,143 | $371,500 | $371,500 |
| 2021 | $327,628 | $310,000 | $6,143 | $333,771 | $333,771 |
| 2020 | $320,547 | $290,000 | $6,143 | $326,690 | $326,690 |
| 2019 | $248,297 | $320,000 | $6,143 | $254,440 | $254,440 |
| 2018 | $248,892 | $290,000 | $6,143 | $255,035 | $255,035 |
| 2017 | $250,084 | $270,000 | $6,143 | $256,227 | $256,227 |
| 2016 | $233,938 | $270,000 | $6,143 | $240,081 | $240,081 |
| 2015 | $236,034 | $297,000 | $6,143 | $242,177 | $242,177 |
| 2014 | $238,131 | $297,000 | $6,143 | $244,274 | $244,274 |
| 2013 | $240,225 | $297,000 | $6,143 | $246,368 | $246,368 |
| 2012 | $242,321 | $297,000 | $6,143 | $248,464 | $248,464 |
| 2011 | $244,418 | $371,250 | $6,143 | $250,561 | $250,561 |
| 2010 | $264,483 | $371,250 | $6,143 | $270,626 | $270,626 |
| 2009 | $101,057 | $185,801 | $6,143 | $280,715 | $280,715 |
| 2008 | $102,744 | $188,798 | $6,143 | $285,399 | $285,399 |
| 2007 | $101,934 | $187,358 | $6,143 | $283,149 | $283,149 |
Deed and Sales History
| 1 | 05/01/1995 | WD | Warranty Deed | REUBLE, FRED T | JACOB, PATRICIA C | | | $0.00 | 51529 | 95007179 |
| 2 | 01/01/1900 | OTHER | Other - Misc. Documents | Unknown | REUBLE, FRED T | | | $0.00 | 0 | 0 |
Payout Agreement
| No payout information available.. |