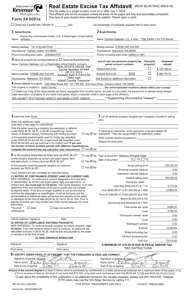
| 1 | 08/16/2024 | WD | Warranty Deed | ANCHOR BAY COMMERCIAL CENTER LLC | CAMANO GATEWAY LLC | | | $750,000.00 | 61044 | 4576136 |
|   | |
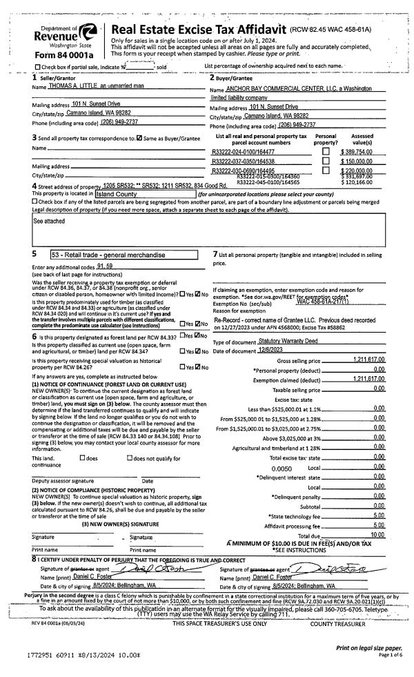
| 2 | 12/06/2023 | WD | Warranty Deed | LITTLE, THOMAS A | ANCHOR BAY COMMERCIAL CENTER LLC | | | $0.00 | 60911 | 4575730 |
| 3 | 12/06/2023 | WD | Warranty Deed | LITTLE, THOMAS A | ANCHOR BAY LLC | | | $0.00 | 58862 | 4568000 |
| 4 | 02/27/2017 | WD | Warranty Deed | SKAGIT BANK | LITTLE, THOMAS A | | | $675,000.00 | 28213 | 4417822 |
|   | |
| 5 | 10/22/2015 | DEEDINLIEU | Deed In Lieu Of Foreclosure | TR CAMANO INC | SKAGIT BANK | | | $0.00 | 21937 | 4388505 |
| 6 | 05/07/2004 | WD | Warranty Deed | KINETIC GENETICS LLC, | TR CAMANO INC, | | | $170,430.00 | 41987 | 4100380 |
| 7 | 06/23/1998 | OTHER | Other - Misc. Documents | CAMANO, DEVELOPMENT L | KINETIC GENETICS LLC, | | | $0.00 | 67901 | 0 |
| 8 | 08/01/1996 | WD | Warranty Deed | EDWARDS, ROBERT L | CAMANO, DEVELOPMENT L | | | $0.00 | 70006 | 97000319 |
| 9 | 08/01/1995 | OTHER | Other - Misc. Documents | ERICKSON, WILLIAM A | EDWARDS, ROBERT L | | | $0.00 | 66579 | 0 |
| 10 | 10/01/1990 | WD | Warranty Deed | EXCHANGE, PROPERTIES C | ERICKSON, WILLIAM A | | | $0.00 | 5970 | 90020283 |
| 11 | 10/01/1990 | WD | Warranty Deed | EDWARDS, ROBERT L | EXCHANGE, PROPERTIES C | | | $188,000.00 | 5971 | 90020285 |
| 12 | 10/01/1990 | WD | Warranty Deed | ERICKSON, WILLIAM A | EDWARDS, ROBERT L | | | $0.00 | 5972 | 90020286 |
| 13 | 01/01/1988 | QCD | Quit Claim Deed | ERICKSON, WM A | ERICKSON, WILLIAM A | | | $0.00 | 80229 | 88001044 |
| 14 | 12/01/1986 | QCD | Quit Claim Deed | ERICKSON, WILLIAM A | ERICKSON, WM A | | | $0.00 | 63539 | 86015976 |
| 15 | 12/01/1986 | WD | Warranty Deed | ERICKSON, WILLIAM A | ERICKSON, WILLIAM A | | | $0.00 | 63540 | 86015977 |
| 16 | 12/01/1986 | WD | Warranty Deed | ERICKSON, WM A | ERICKSON, WILLIAM A | | | $0.00 | 80228 | 88001042 |
| 17 | 03/01/1985 | WD | Warranty Deed | WOODINVILLE, LUMBER C | ERICKSON, WM A | | | $84,000.00 | 50561 | 85002503 |
| 18 | 02/01/1985 | QCD | Quit Claim Deed | CAMANO, LUMBER C | WOODINVILLE, LUMBER C | | | $0.00 | 50562 | 85002504 |
| 19 | 01/01/1900 | OTHER | Other - Misc. Documents | Unknown | CAMANO, LUMBER C | | | $0.00 | 0 | 0 |