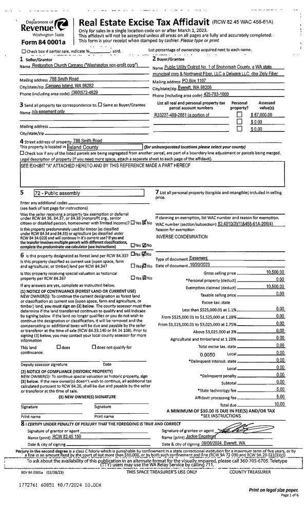
Property
Account |
| Property ID: | 165813 | Abbreviated Legal Description: | 80 - N780'OF W340'OF NW NE EX RDS TGW UNDIV 1/7 INT IN OKSENDAHL DR |
| Geographic ID: | R33227-489-2881 | Agent Code: | |
| Type: | Real | | |
| Tax Area: | 512 - APPRAISER-Stan/Cam Schl Dist, improved, greater than 1 acre | Land Use Code | 72 |
| Open Space: | N | DFL | N |
| Historic Property: | N | Remodel Property: | N |
| Multi-Family Redevelopment: | N | | |
| Township: | 32 | Section: | 27 |
| Range: | R3 |
Location |
| Address: | 788 SMITH RD CAMANO ISLAND, WA 98282 | Mapsco: | |
| Neighborhood: | 51cRR-highway 532 | Map ID: | 979 |
| Neighborhood CD: | 51cRRhw532 |
Owner |
| Name: | RESTORATION CHURCH CAMANO | Owner ID: | 277505 |
| Mailing Address: | 788 SMITH RD CAMANO ISLAND, WA 98282 | % Ownership: | 100.0000000000% |
| | | Exemptions: | EX |
Taxes and Assessment Details
Values
| (+) Improvement Homesite Value: | + | $0 | |
| (+) Improvement Non-Homesite Value: | + | $382,748 | |
| (+) Land Homesite Value: | + | $0 | |
| (+) Land Non-Homesite Value: | + | $330,000 | |
| (+) Curr Use (HS): | + | $0 | $0 |
| (+) Curr Use (NHS): | + | $0 | $0 |
| | | -------------------------- | |
| (=) Market Value: | = | $712,748 | |
| (–) Productivity Loss: | – | $0 | |
| | | -------------------------- | |
| (=) Subtotal: | = | $712,748 | |
| (+) Senior Appraised Value: | + | $0 | |
| (+) Non-Senior Appraised Value: | + | $712,748 | |
| | | -------------------------- | |
| (=) Total Appraised Value: | = | $712,748 | |
| (–) Senior Exemption Loss: | – | $0 | |
| (–) Exemption Loss: | – | $712,748 | |
| | | -------------------------- | |
| (=) Taxable Value: | = | $0 | |
Taxing Jurisdiction
| Owner: | RESTORATION CHURCH CAMANO | | |
| % Ownership: | 100.0000000000% | | |
| Total Value: | $712,748 | | |
| Tax Area: | 512 - APPRAISER-Stan/Cam Schl Dist, improved, greater than 1 acre |
| CF | Conservation Futures | 0.0313996660 | $712,748 | $0 | $0.00 | | |
| EMS1 | Fire & Rescue Dist #1 Camano GEN (EMS) | 0.4998471806 | $712,748 | $0 | $0.00 | | |
| FIRE1 | Fire & Rescue Dist #1 Camano GEN | 1.2496603404 | $712,748 | $0 | $0.00 | | |
| FIRE1BOND | Fire & Rescue Dist #1 Camano BOND | 0.1630371212 | $712,748 | $0 | $0.00 | | |
| CE | County Current Expense | 0.3674210519 | $712,748 | $0 | $0.00 | | |
| CR | County Roads | 0.4614296361 | $712,748 | $0 | $0.00 | | |
| LIB | Library Sno-Isle GEN | 0.3039084203 | $712,748 | $0 | $0.00 | | |
| SCH205_401 | School 205-401 Enrichment | 1.3697998934 | $712,748 | $0 | $0.00 | | |
| SCH205BOND | School 205-401 BOND | 0.9354199323 | $712,748 | $0 | $0.00 | | |
| ST | State School | 1.4761226122 | $712,748 | $0 | $0.00 | | |
| ST2 | State School Part 2 | 0.7953803475 | $712,748 | $0 | $0.00 | | |
| | Total Tax Rate: | 7.6534262019 | | | | | |
| | | | | Taxes w/Current Exemptions: | $0.00 | | |
| | | | | Taxes w/o Exemptions: | $5,454.96 | | |
Improvement / Building
| Improvement #1: | COMMERCIAL | State Code: | Y | 5797.0 sqft | Value: | $382,748 |
| Bathrooms: | 0 | Bedrooms: | 0 | | Ceiling: | DRYWALL PAINTED | Cooling: | HEAT PUMP/CONV/V | | Exterior Wall/Cover: | PLYWD/WD OR ST STUDS | Floor Covering: | CARPET 100% | | Floor Structure: | CONCRETE ON GROUND | Foundation: | CONCRETE | | Interior Finish: | CHURCH | Plumbing Fixture Cnt: | 1 | | Roof Structure/Cover: | COMP OPEN WOOD |   |   |
|
| | Type | Description | Class CD | Sub Class CD | Year Built | Area |
| | BAS | BASE/MAIN FLOOR | 3 | 0 | 1978 | 5797.0 |
| | oFN7 | CHN LK 4' | 3 | 0 | 1978 | 0.0 |
| | oPV4 | CONC 4" | 3 | 0 | 1978 | 0.0 |
Sketch
Property Image
Land
| 1 | 32 | AC (03.01-09.99) | 5.0200 | 218671.20 | 0.00 | 0.00 | 1.00 | $330,000 | $0 |
Roll Value History
| 2026 | N/A | N/A | N/A | N/A | N/A |
| 2025 | $382,748 | $330,000 | $0 | $712,748 | $0 |
| 2024 | $402,492 | $300,000 | $0 | $702,492 | $0 |
| 2023 | $0 | $87,000 | $0 | $87,000 | $0 |
| 2022 | $0 | $90,000 | $0 | $90,000 | $0 |
| 2021 | $0 | $69,641 | $0 | $69,641 | $0 |
| 2020 | $0 | $57,000 | $0 | $57,000 | $0 |
| 2019 | $0 | $66,000 | $0 | $66,000 | $0 |
| 2018 | $0 | $57,000 | $0 | $57,000 | $0 |
| 2017 | $0 | $100,000 | $0 | $100,000 | $0 |
| 2016 | $0 | $100,000 | $0 | $100,000 | $0 |
| 2015 | $0 | $60,544 | $0 | $60,544 | $0 |
| 2014 | $0 | $60,544 | $0 | $60,544 | $0 |
| 2013 | $0 | $60,544 | $0 | $60,544 | $0 |
| 2012 | $0 | $60,544 | $0 | $60,544 | $0 |
| 2011 | $0 | $60,544 | $0 | $60,544 | $0 |
| 2010 | $0 | $60,544 | $0 | $60,544 | $0 |
| 2009 | $0 | $60,544 | $0 | $60,544 | $0 |
Deed and Sales History
| 1 | 10/20/2023 | EZ | Easement | RESTORATION CHURCH CAMANO | PUBLIC UTILITY DISTRICT NO 1 OF SNOHOMISH COUNTY | | | $0.00 | 60851 | 4575510 |
| 2 | 08/24/2016 | EZ | Easement | RESTORATION CHURCH CAMANO | RESTORATION CHURCH CAMANO | | | $9,710.00 | 26989 | 4411741 |
| 3 | 08/09/2016 | WD | Warranty Deed | NORTH SOUND CAMPUS | RESTORATION CHURCH CAMANO | | | $400,000.00 | 25700 | 4405247 |
| 4 | 04/13/2009 | OTHER | Other - Misc. Documents | CHRISTIAN FAMILY CENTER, | NORTH SOUND CAMPUS, | | | $63,003.00 | 91970 | 4258975 |
| 5 | 12/22/2003 | OTHER | Other - Misc. Documents | CHRISTIAN FAMILY CENTER, | CHRISTIAN FAMILY CENTER, | | | $0.00 | 70113 | 0 |
| 6 | 09/27/2001 | OTHER | Other - Misc. Documents | CHRISTIAN, FAMILY C | CHRISTIAN FAMILY CENTER, | | | $0.00 | 69114 | 0 |
| 7 | 07/01/1997 | 5 | DNU - Marriage License/Name Change | CHAPEL, OF P | CHRISTIAN, FAMILY C | | | $0.00 | 67519 | 0 |
| 8 | 11/01/1983 | REC | Real Estate Contract | PEOPLE, OF G | CHAPEL, OF P | | | $0.00 | 33573 | 418414 |
Payout Agreement
| No payout information available.. |