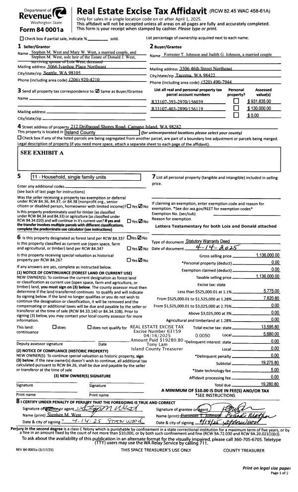
Property
Account |
| Property ID: | 166091 | Abbreviated Legal Description: | 20 - PT GL2 SEC 28 & SE SW SEC 21 DESC FOLL: BG INTER SLN ST HWY 532 & WLN RD S330' N89*W662' N TO SLN ST HWY 532 ELY TPB EX RD EX PT TO ST HWY AF#94006633 |
| Geographic ID: | R33228-474-2290 | Agent Code: | |
| Type: | Real | | |
| Tax Area: | 519 - APPRAISER-Stan/Cam Schl Dist, vacant & 50 acres or less | Land Use Code | 91 |
| Open Space: | N | DFL | N |
| Historic Property: | N | Remodel Property: | N |
| Multi-Family Redevelopment: | N | | |
| Township: | 32 | Section: | 28 |
| Range: | R3 |
Location |
| Address: | | Mapsco: | |
| Neighborhood: | Cycle 5 | Map ID: | 983 |
| Neighborhood CD: | 5 |
Owner |
| Name: | THOMAS JR, ROBERT PAUL | Owner ID: | 315551 |
| Mailing Address: | MEGAN ANN THOMAS 3132 S VICTOR AVE TULSA, OK 74105 | % Ownership: | 100.0000000000% |
| | | Exemptions: | |
Taxes and Assessment Details
Values
| (+) Improvement Homesite Value: | + | $0 | |
| (+) Improvement Non-Homesite Value: | + | $0 | |
| (+) Land Homesite Value: | + | $0 | |
| (+) Land Non-Homesite Value: | + | $270,000 | |
| (+) Curr Use (HS): | + | $0 | $0 |
| (+) Curr Use (NHS): | + | $0 | $0 |
| | | -------------------------- | |
| (=) Market Value: | = | $270,000 | |
| (–) Productivity Loss: | – | $0 | |
| | | -------------------------- | |
| (=) Subtotal: | = | $270,000 | |
| (+) Senior Appraised Value: | + | $0 | |
| (+) Non-Senior Appraised Value: | + | $270,000 | |
| | | -------------------------- | |
| (=) Total Appraised Value: | = | $270,000 | |
| (–) Senior Exemption Loss: | – | $0 | |
| (–) Exemption Loss: | – | $0 | |
| | | -------------------------- | |
| (=) Taxable Value: | = | $270,000 | |
Taxing Jurisdiction
| Owner: | THOMAS JR, ROBERT PAUL | | |
| % Ownership: | 100.0000000000% | | |
| Total Value: | $270,000 | | |
| Tax Area: | 519 - APPRAISER-Stan/Cam Schl Dist, vacant & 50 acres or less |
| CF | Conservation Futures | 0.0313996660 | $270,000 | $270,000 | $8.48 | | |
| EMS1 | Fire & Rescue Dist #1 Camano GEN (EMS) | 0.4998471806 | $270,000 | $270,000 | $134.96 | | |
| CE | County Current Expense | 0.3674210519 | $270,000 | $270,000 | $99.20 | | |
| CR | County Roads | 0.4614296361 | $270,000 | $270,000 | $124.59 | | |
| LIB | Library Sno-Isle GEN | 0.3039084203 | $270,000 | $270,000 | $82.06 | | |
| SCH205_401 | School 205-401 Enrichment | 1.3697998934 | $270,000 | $270,000 | $369.85 | | |
| SCH205BOND | School 205-401 BOND | 0.9354199323 | $270,000 | $270,000 | $252.56 | | |
| ST | State School | 1.4761226122 | $270,000 | $270,000 | $398.55 | | |
| ST2 | State School Part 2 | 0.7953803475 | $270,000 | $270,000 | $214.75 | | |
| | Total Tax Rate: | 6.2407287403 | | | | | |
| | | | | Taxes w/Current Exemptions: | $1,685.00 | | |
| | | | | Taxes w/o Exemptions: | $1,685.00 | | |
Improvement / Building
Sketch
| No sketches available for this property. |
Property Image
Land
| 1 | 32 | AC (03.01-09.99) | 4.2900 | 0.00 | 0.00 | 0.00 | 1.00 | $270,000 | $0 |
Roll Value History
| 2026 | N/A | N/A | N/A | N/A | N/A |
| 2025 | $0 | $270,000 | $0 | $270,000 | $270,000 |
| 2024 | $0 | $250,000 | $0 | $250,000 | $250,000 |
| 2023 | $0 | $240,000 | $0 | $240,000 | $240,000 |
| 2022 | $0 | $220,000 | $0 | $220,000 | $220,000 |
| 2021 | $0 | $200,000 | $0 | $200,000 | $200,000 |
| 2020 | $0 | $200,000 | $0 | $200,000 | $200,000 |
| 2019 | $0 | $200,000 | $0 | $200,000 | $200,000 |
| 2018 | $0 | $200,000 | $0 | $200,000 | $200,000 |
| 2017 | $0 | $200,000 | $0 | $200,000 | $200,000 |
| 2016 | $0 | $150,000 | $0 | $150,000 | $150,000 |
| 2015 | $0 | $148,050 | $0 | $148,050 | $148,050 |
| 2014 | $0 | $148,050 | $0 | $148,050 | $148,050 |
| 2013 | $0 | $148,050 | $0 | $148,050 | $148,050 |
| 2012 | $0 | $148,050 | $0 | $148,050 | $148,050 |
| 2011 | $0 | $148,050 | $0 | $148,050 | $148,050 |
| 2010 | $0 | $148,050 | $0 | $148,050 | $148,050 |
| 2009 | $0 | $164,500 | $0 | $164,500 | $164,500 |
| 2008 | $0 | $164,500 | $0 | $164,500 | $164,500 |
| 2007 | $0 | $158,730 | $0 | $158,730 | $158,730 |
Deed and Sales History
| 1 | 02/01/2025 | PRD | Personal Representatives Deed | THOMAS, ROBERT P | THOMAS JR, ROBERT PAUL | | | $0.00 | 62635 | 4582529 |
| 2 | 10/23/2014 | EZ | Easement | THOMAS, ROBERT P | THOMAS, ROBERT P | | | $4,332.00 | 17584 | 4368616 |
| 3 | 03/01/1994 | WD | Warranty Deed | THOMAS, ROBERT P | THOMAS, ROBERT P | | | $13,450.00 | 41024 | 94006633 |
| 4 | 06/01/1986 | WD | Warranty Deed | TILLY, JAMES L | THOMAS, ROBERT P | | | $36,000.00 | 61486 | 86006967 |
| 5 | 10/01/1973 | TRUSTEED | Trustee's Deed | FROSTAD, NELLIE | TILLY, JAMES L | | | $0.00 | 50296 | 0 |
| 6 | 01/01/1900 | OTHER | Other - Misc. Documents | Unknown | FROSTAD, NELLIE | | | $0.00 | 0 | 0 |
Payout Agreement
| No payout information available.. |