Property
Account |
| Property ID: | 166420 | Abbreviated Legal Description: | 1 - IN GL4: BG NECR GL4 S954.33' S85*W795.54' N TO NLN SEC 29 E792' TPB CONSERVATION EZ AF#90018094 AF#95001238 AF#95003891 |
| Geographic ID: | R33229-478-4880 | Agent Code: | |
| Type: | Real | | |
| Tax Area: | 599 - APPRAISER-Stan/Cam Schl Dist, Special Dist, vacant & 50 acres or less | Land Use Code | 91 |
| Open Space: | N | DFL | N |
| Historic Property: | N | Remodel Property: | N |
| Multi-Family Redevelopment: | N | | |
| Township: | 32 | Section: | 29 |
| Range: | R3 |
Location |
| Address: | | Mapsco: | |
| Neighborhood: | Cycle 5 | Map ID: | 987 |
| Neighborhood CD: | 5 |
Owner |
| Name: | TULALIP TRIBES OF WASHINGTON | Owner ID: | 5029 |
| Mailing Address: | 6406 MARINE DR MARYSVILLE, WA 98271 | % Ownership: | 100.0000000000% |
| | | Exemptions: | |
Taxes and Assessment Details
Values
| (+) Improvement Homesite Value: | + | N/A | |
| (+) Improvement Non-Homesite Value: | + | N/A | |
| (+) Land Homesite Value: | + | N/A | |
| (+) Land Non-Homesite Value: | + | N/A | Ag / Timber Use Value |
| (+) Curr Use (HS): | + | N/A | N/A |
| (+) Curr Use (NHS): | + | N/A | N/A |
| | | -------------------------- | |
| (=) Market Value: | = | N/A | |
| (–) Productivity Loss: | – | N/A | |
| | | -------------------------- | |
| (=) Subtotal: | = | N/A | |
| (+) Senior Appraised Value: | + | N/A | |
| (+) Non-Senior Appraised Value: | + | N/A | |
| | | -------------------------- | |
| (=) Total Appraised Value: | = | N/A | |
| (–) Senior Exemption Loss: | – | N/A | |
| (–) Exemption Loss: | – | N/A | |
| | | -------------------------- | |
| (=) Taxable Value: | = | N/A | |
Taxing Jurisdiction
| Owner: | TULALIP TRIBES OF WASHINGTON | | |
| % Ownership: | 100.0000000000% | | |
| Total Value: | N/A | | |
| Tax Area: | 599 - APPRAISER-Stan/Cam Schl Dist, Special Dist, vacant & 50 acres or less |
| CF | Conservation Futures | N/A | N/A | N/A | N/A | | |
| MC | Mosquito Control | N/A | N/A | N/A | N/A | | |
| CCD | Camano Conservation District | N/A | N/A | N/A | N/A | | |
| EMS1 | Fire & Rescue Dist #1 Camano GEN (EMS) | N/A | N/A | N/A | N/A | | |
| CE | County Current Expense | N/A | N/A | N/A | N/A | | |
| CR | County Roads | N/A | N/A | N/A | N/A | | |
| LCIB | Library Sno-Isle BOND (Camano Island) | N/A | N/A | N/A | N/A | | |
| LIB | Library Sno-Isle GEN | N/A | N/A | N/A | N/A | | |
| SCH205_401 | School 205-401 Enrichment | N/A | N/A | N/A | N/A | | |
| SCH205BOND | School 205-401 BOND | N/A | N/A | N/A | N/A | | |
| ST | State School | N/A | N/A | N/A | N/A | | |
| ST2 | State School Part 2 | N/A | N/A | N/A | N/A | | |
| | Total Tax Rate: | N/A | | | | | |
| | | | | Taxes w/Current Exemptions: | N/A | | |
| | | | | Taxes w/o Exemptions: | N/A | | |
Improvement / Building
Sketch
| No sketches available for this property. |
Property Image
Land
| 1 | 35 | AC (10.00-30.99) | 18.0000 | 784080.00 | 0.00 | 0.00 | 1.00 | N/A | N/A |
Roll Value History
| 2026 | N/A | N/A | N/A | N/A | N/A |
| 2025 | $0 | $400,000 | $0 | $400,000 | $400,000 |
| 2024 | $0 | $370,000 | $0 | $370,000 | $370,000 |
| 2023 | $0 | $350,000 | $0 | $350,000 | $350,000 |
| 2022 | $0 | $350,000 | $0 | $350,000 | $350,000 |
| 2021 | $0 | $320,000 | $0 | $320,000 | $320,000 |
| 2020 | $0 | $300,000 | $0 | $300,000 | $300,000 |
| 2019 | $0 | $300,000 | $0 | $300,000 | $300,000 |
| 2018 | $0 | $300,000 | $0 | $300,000 | $300,000 |
| 2017 | $0 | $300,000 | $0 | $300,000 | $300,000 |
| 2016 | $0 | $203,060 | $0 | $203,060 | $203,060 |
| 2015 | $0 | $243,060 | $0 | $243,060 | $243,060 |
| 2014 | $0 | $243,060 | $0 | $243,060 | $243,060 |
| 2013 | $0 | $243,060 | $0 | $243,060 | $243,060 |
| 2012 | $0 | $243,060 | $0 | $243,060 | $243,060 |
| 2011 | $0 | $303,060 | $0 | $303,060 | $303,060 |
| 2010 | $0 | $303,060 | $0 | $303,060 | $303,060 |
| 2009 | $0 | $303,060 | $0 | $303,060 | $303,060 |
| 2008 | $0 | $330,100 | $0 | $330,100 | $330,100 |
| 2007 | $0 | $291,100 | $0 | $291,100 | $291,100 |
Deed and Sales History
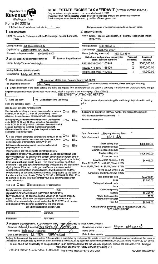
| 1 | 12/07/2023 | WD | Warranty Deed | ROBERGE, TERRENCE A | TULALIP TRIBES OF WASHINGTON | | | $406,000.00 | 58809 | 4567858 |
|   | |
| 2 | 09/01/1990 | WD | Warranty Deed | JOHNSON, CECIL | ROBERGE, TERRENCE A | | | $58,700.00 | 5485 | 90018324 |
| 3 | 01/01/1900 | OTHER | Other - Misc. Documents | Unknown | JOHNSON, CECIL | | | $0.00 | 0 | 0 |
Payout Agreement
| No payout information available.. |