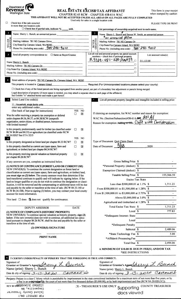
Property
Account |
| Property ID: | 166439 | Abbreviated Legal Description: | 35 - IN NW NW: W601.06' OF S181.26' OF N508.92' OF NW NW TGW & SUBJ TO EZ |
| Geographic ID: | R33229-481-0280 | Agent Code: | |
| Type: | Real | | |
| Tax Area: | 592 - APPRAISER-Stan/Cam Schl Dist, Special Dist, improved, greater than 1 acre | Land Use Code | 11 |
| Open Space: | N | DFL | N |
| Historic Property: | N | Remodel Property: | N |
| Multi-Family Redevelopment: | N | | |
| Township: | 32 | Section: | 29 |
| Range: | R3 |
Location |
| Address: | 781 N EAST CAMANO DR CAMANO ISLAND, WA 98282 | Mapsco: | |
| Neighborhood: | Cycle 5 | Map ID: | 986 |
| Neighborhood CD: | 5 |
Owner |
| Name: | MONTOYA, ALBERT | Owner ID: | 302927 |
| Mailing Address: | 781 NE CAMANO DR CAMANO ISLAND, WA 98282 | % Ownership: | 100.0000000000% |
| | | Exemptions: | |
Taxes and Assessment Details
Values
| (+) Improvement Homesite Value: | + | $10,000 | |
| (+) Improvement Non-Homesite Value: | + | $171,771 | |
| (+) Land Homesite Value: | + | $310,000 | |
| (+) Land Non-Homesite Value: | + | $0 | |
| (+) Curr Use (HS): | + | $0 | $0 |
| (+) Curr Use (NHS): | + | $0 | $0 |
| | | -------------------------- | |
| (=) Market Value: | = | $491,771 | |
| (–) Productivity Loss: | – | $0 | |
| | | -------------------------- | |
| (=) Subtotal: | = | $491,771 | |
| (+) Senior Appraised Value: | + | $0 | |
| (+) Non-Senior Appraised Value: | + | $491,771 | |
| | | -------------------------- | |
| (=) Total Appraised Value: | = | $491,771 | |
| (–) Senior Exemption Loss: | – | $0 | |
| (–) Exemption Loss: | – | $0 | |
| | | -------------------------- | |
| (=) Taxable Value: | = | $491,771 | |
Taxing Jurisdiction
| Owner: | MONTOYA, ALBERT | | |
| % Ownership: | 100.0000000000% | | |
| Total Value: | $491,771 | | |
| Tax Area: | 592 - APPRAISER-Stan/Cam Schl Dist, Special Dist, improved, greater than 1 acre |
| CF | Conservation Futures | 0.0313996660 | $491,771 | $491,771 | $15.44 | | |
| EMS1 | Fire & Rescue Dist #1 Camano GEN (EMS) | 0.4998471806 | $491,771 | $491,771 | $245.81 | | |
| FIRE1 | Fire & Rescue Dist #1 Camano GEN | 1.2496603404 | $491,771 | $491,771 | $614.55 | | |
| FIRE1BOND | Fire & Rescue Dist #1 Camano BOND | 0.1630371212 | $491,771 | $491,771 | $80.18 | | |
| CE | County Current Expense | 0.3674210519 | $491,771 | $491,771 | $180.69 | | |
| CR | County Roads | 0.4614296361 | $491,771 | $491,771 | $226.92 | | |
| LIB | Library Sno-Isle GEN | 0.3039084203 | $491,771 | $491,771 | $149.45 | | |
| SCH205_401 | School 205-401 Enrichment | 1.3697998934 | $491,771 | $491,771 | $673.63 | | |
| SCH205BOND | School 205-401 BOND | 0.9354199323 | $491,771 | $491,771 | $460.01 | | |
| ST | State School | 1.4761226122 | $491,771 | $491,771 | $725.91 | | |
| ST2 | State School Part 2 | 0.7953803475 | $491,771 | $491,771 | $391.14 | | |
| | Total Tax Rate: | 7.6534262019 | | | | | |
| | | | | Taxes w/Current Exemptions: | $3,763.73 | | |
| | | | | Taxes w/o Exemptions: | $3,763.73 | | |
Improvement / Building
| Improvement #1: | MANUFACTURED HOME | State Code: | Y | 0.0 sqft | Value: | $10,000 |
| Improvement #2: | MANUFACTURED HOME | State Code: | Y | 1782.0 sqft | Value: | $102,694 |
| Bathrooms: | 0 | Bedrooms: | 0 | | Ceiling: | PLASTER PAINTED | Cooling: | EVAP NO DUCT | | Exterior Wall/Cover: | VINYL | Floor Covering: | CARPET 100% | | Floor Structure: | SLAB ON GRADE | Foundation: | SLAB | | Heating: | FHA ELECTRIC | Interior Finish: | PLASTER | | Plumbing Fixture Cnt: | 1 | Roof Slope: | FLAT | | Roof Structure/Cover: | CJ ALUMINIUM HEAVY |   |   |
|
| | Type | Description | Class CD | Sub Class CD | Year Built | Area |
| | BAS | BASE/MAIN FLOOR | 4 | 0 | 1999 | 1782.0 |
| | OWP | OPEN WOOD PORCH W/STEPS | 4 | 0 | 1999 | 288.0 |
| Improvement #3: | MANUFACTURED HOME | State Code: | Y | 1512.0 sqft | Value: | $69,077 |
| Bathrooms: | 0 | Bedrooms: | 0 | | Ceiling: | PLASTER PAINTED | Cooling: | EVAP NO DUCT | | Exterior Wall/Cover: | VINYL | Floor Covering: | CARPET 100% | | Floor Structure: | SLAB ON GRADE | Foundation: | SLAB | | Heating: | FHA ELECTRIC | Interior Finish: | PLASTER | | Plumbing Fixture Cnt: | 1 | Roof Slope: | FLAT | | Roof Structure/Cover: | CJ ALUMINIUM HEAVY |   |   |
|
| | Type | Description | Class CD | Sub Class CD | Year Built | Area |
| | BAS | BASE/MAIN FLOOR | 4 | 0 | 1992 | 1512.0 |
| | OWP | OPEN WOOD PORCH W/STEPS | 4 | 0 | 1992 | 432.0 |
Sketch
Property Image
Land
| 1 | 18 | AC (02.01-03.00) | 0.0000 | 0.00 | 0.00 | 0.00 | 1.00 | $310,000 | $0 |
Roll Value History
| 2026 | N/A | N/A | N/A | N/A | N/A |
| 2025 | $181,771 | $310,000 | $0 | $491,771 | $491,771 |
| 2024 | $190,465 | $300,000 | $0 | $490,465 | $490,465 |
| 2023 | $107,130 | $300,000 | $0 | $407,130 | $407,130 |
| 2022 | $100,787 | $260,000 | $0 | $360,787 | $360,787 |
| 2021 | $146,074 | $190,000 | $0 | $336,074 | $336,074 |
| 2020 | $146,581 | $150,000 | $0 | $296,581 | $296,581 |
| 2019 | $121,133 | $190,000 | $0 | $311,133 | $311,133 |
| 2018 | $124,670 | $180,000 | $0 | $304,670 | $304,670 |
| 2017 | $128,127 | $135,000 | $0 | $263,127 | $263,127 |
| 2016 | $131,664 | $135,000 | $0 | $266,664 | $266,664 |
| 2015 | $143,494 | $100,000 | $0 | $243,494 | $243,494 |
| 2014 | $147,077 | $125,000 | $0 | $272,077 | $202,077 |
| 2013 | $150,658 | $120,000 | $0 | $270,658 | $200,756 |
| 2012 | $154,239 | $120,000 | $0 | $274,239 | $204,239 |
| 2011 | $157,821 | $150,000 | $0 | $307,821 | $307,821 |
| 2010 | $160,954 | $150,000 | $0 | $310,954 | $310,954 |
| 2009 | $169,290 | $175,000 | $0 | $344,290 | $344,290 |
| 2008 | $172,985 | $175,000 | $0 | $347,985 | $347,985 |
| 2007 | $127,384 | $226,461 | $0 | $353,845 | $353,845 |
Deed and Sales History
| 1 | 01/24/2022 | MANHOME | Manufactured Home | BUNCH, CHARLES R / SHERRY L | MONTOYA, ALBERT | | | $146,074.00 | 51905 | |
| 2 | 01/24/2022 | WD | Warranty Deed | SMITH TTEE, STEVEN W | MONTOYA, ALBERT | | | $267,926.00 | 51904 | 4539396 |
| 3 | 08/04/2020 | QCD | Quit Claim Deed | BUNCH, SHERRY L | SMITH TTEE, STEVEN W | | | $0.00 | 45124 | 4498728 |
| 4 | 03/13/2020 | QCD | Quit Claim Deed | BUNCH, CHARLES R | BUNCH, SHERRY L | | | $155,566.00 | 42456 | 4483497 |
| 5 | 10/16/1998 | PACD | Purchaser's Assignment | BUNCH, CHARLES R | BUNCH, CHARLES R/SHERRY L | | | $55,274.00 | 0 | 0 |
| 6 | 04/01/1997 | OTHER | Other - Misc. Documents | BUNCH, CHARLES R | BUNCH, CHARLES R | | | $54,514.00 | 71067 | 0 |
| 7 | 04/01/1997 | WD | Warranty Deed | GERSTNER, ROMAN J | BUNCH, CHARLES R | | | $85,486.00 | 71066 | 97004834 |
| 8 | 01/01/1900 | OTHER | Other - Misc. Documents | Unknown | GERSTNER, ROMAN J | | | $0.00 | 0 | 0 |
Payout Agreement
| No payout information available.. |