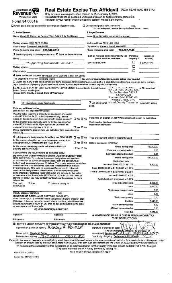
Property
Account |
| Property ID: | 166466 | Abbreviated Legal Description: | TR1 SP 75-89 32 - IN NW NW:W621.61' OF S175.19' OF N327.66' NW NW TGW & SUB EXHIBIT 1 & 2 (WELL SITE LOC W 200'TGW ACCESS EAS-SEE 498 0040) |
| Geographic ID: | R33229-500-0280 | Agent Code: | |
| Type: | Real | | |
| Tax Area: | 592 - APPRAISER-Stan/Cam Schl Dist, Special Dist, improved, greater than 1 acre | Land Use Code | 11 |
| Open Space: | N | DFL | N |
| Historic Property: | N | Remodel Property: | N |
| Multi-Family Redevelopment: | N | | |
| Township: | 32 | Section: | 29 |
| Range: | R3 |
Location |
| Address: | 775 N EAST CAMANO DR CAMANO ISLAND, WA 98282 | Mapsco: | |
| Neighborhood: | Cycle 5 | Map ID: | 986 |
| Neighborhood CD: | 5 |
Owner |
| Name: | JACKSON, ATHENA K | Owner ID: | 143845 |
| Mailing Address: | PO BOX 658 STANWOOD, WA 98292-0658 | % Ownership: | 100.0000000000% |
| | | Exemptions: | |
Taxes and Assessment Details
Values
| (+) Improvement Homesite Value: | + | $0 | |
| (+) Improvement Non-Homesite Value: | + | $291,577 | |
| (+) Land Homesite Value: | + | $0 | |
| (+) Land Non-Homesite Value: | + | $360,000 | |
| (+) Curr Use (HS): | + | $0 | $0 |
| (+) Curr Use (NHS): | + | $0 | $0 |
| | | -------------------------- | |
| (=) Market Value: | = | $651,577 | |
| (–) Productivity Loss: | – | $0 | |
| | | -------------------------- | |
| (=) Subtotal: | = | $651,577 | |
| (+) Senior Appraised Value: | + | $0 | |
| (+) Non-Senior Appraised Value: | + | $651,577 | |
| | | -------------------------- | |
| (=) Total Appraised Value: | = | $651,577 | |
| (–) Senior Exemption Loss: | – | $0 | |
| (–) Exemption Loss: | – | $0 | |
| | | -------------------------- | |
| (=) Taxable Value: | = | $651,577 | |
Taxing Jurisdiction
| Owner: | JACKSON, ATHENA K | | |
| % Ownership: | 100.0000000000% | | |
| Total Value: | $651,577 | | |
| Tax Area: | 592 - APPRAISER-Stan/Cam Schl Dist, Special Dist, improved, greater than 1 acre |
| CF | Conservation Futures | 0.0313996660 | $651,577 | $651,577 | $20.46 | | |
| EMS1 | Fire & Rescue Dist #1 Camano GEN (EMS) | 0.4998471806 | $651,577 | $651,577 | $325.69 | | |
| FIRE1 | Fire & Rescue Dist #1 Camano GEN | 1.2496603404 | $651,577 | $651,577 | $814.25 | | |
| FIRE1BOND | Fire & Rescue Dist #1 Camano BOND | 0.1630371212 | $651,577 | $651,577 | $106.23 | | |
| CE | County Current Expense | 0.3674210519 | $651,577 | $651,577 | $239.40 | | |
| CR | County Roads | 0.4614296361 | $651,577 | $651,577 | $300.66 | | |
| LIB | Library Sno-Isle GEN | 0.3039084203 | $651,577 | $651,577 | $198.02 | | |
| SCH205_401 | School 205-401 Enrichment | 1.3697998934 | $651,577 | $651,577 | $892.53 | | |
| SCH205BOND | School 205-401 BOND | 0.9354199323 | $651,577 | $651,577 | $609.50 | | |
| ST | State School | 1.4761226122 | $651,577 | $651,577 | $961.81 | | |
| ST2 | State School Part 2 | 0.7953803475 | $651,577 | $651,577 | $518.25 | | |
| | Total Tax Rate: | 7.6534262019 | | | | | |
| | | | | Taxes w/Current Exemptions: | $4,986.80 | | |
| | | | | Taxes w/o Exemptions: | $4,986.80 | | |
Improvement / Building
| Improvement #1: | RESIDENTIAL | State Code: | Y | 1562.0 sqft | Value: | $291,577 |
| Bathrooms: | 2 | Bedrooms: | 2 | | Ceiling: | BEAM PAINTED | Exterior Wall/Cover: | WOOD SIDING | | Floor Covering: | CARPET/VINYL 80-20 | Floor Structure: | WOOD W/SUBFLOOR | | Foundation: | CONCRETE | Heating: | WALL HEAT ELECTRIC | | Interior Finish: | DRYWALL PAINT | Plumbing Fixture Cnt: | 10 | | Roof Slope: | 8" IN 12" | Roof Structure/Cover: | CJ ASPHALT |
|
| | Type | Description | Class CD | Sub Class CD | Year Built | Area |
| | BAS | BASE/MAIN FLOOR | 3 | 0 | 1983 | 1242.0 |
| | DGR | DETACHED GARAGE | 3 | 0 | 1983 | 960.0 |
| | OWP | OPEN WOOD PORCH W/STEPS | 3 | 0 | 1983 | 672.0 |
| | OWP | OPEN WOOD PORCH W/STEPS | 3 | 0 | 1983 | 624.0 |
| | OWR | OPEN WOOD PORCH W/STEPS/ROOF | 3 | 0 | 1983 | 62.0 |
| | LOF | LOFT | 3 | 0 | 1983 | 320.0 |
Sketch
Property Image
Land
| 1 | 18 | AC (02.01-03.00) | 1.6956 | 73860.34 | 0.00 | 0.00 | 1.00 | $360,000 | $0 |
Roll Value History
| 2026 | N/A | N/A | N/A | N/A | N/A |
| 2025 | $291,577 | $360,000 | $0 | $651,577 | $651,577 |
| 2024 | $290,137 | $360,000 | $0 | $650,137 | $650,137 |
| 2023 | $293,944 | $360,000 | $0 | $653,944 | $653,944 |
| 2022 | $269,624 | $320,000 | $0 | $589,624 | $589,624 |
| 2021 | $231,427 | $230,000 | $0 | $461,427 | $461,427 |
| 2020 | $225,466 | $200,000 | $0 | $425,466 | $425,466 |
| 2019 | $163,644 | $220,000 | $0 | $383,644 | $383,644 |
| 2018 | $164,148 | $210,000 | $0 | $374,148 | $374,148 |
| 2017 | $165,155 | $180,000 | $0 | $345,155 | $345,155 |
| 2016 | $167,169 | $150,000 | $0 | $317,169 | $317,169 |
| 2015 | $149,748 | $100,000 | $0 | $249,748 | $249,748 |
| 2014 | $151,686 | $125,000 | $0 | $276,686 | $276,686 |
| 2013 | $153,621 | $120,000 | $0 | $273,621 | $273,621 |
| 2012 | $155,557 | $120,000 | $0 | $275,557 | $275,557 |
| 2011 | $157,494 | $150,000 | $0 | $307,494 | $307,494 |
| 2010 | $164,129 | $150,000 | $0 | $314,129 | $314,129 |
| 2009 | $156,463 | $175,000 | $0 | $331,463 | $331,463 |
| 2008 | $158,838 | $170,000 | $0 | $328,838 | $328,838 |
| 2007 | $161,205 | $170,000 | $0 | $331,205 | $331,205 |
Deed and Sales History
| 1 | 03/12/2007 | DECREE | Divorce Decree/Legal Separation | JACKSON, ATHENA K | JACKSON, ATHENA K | | | $0.00 | 71004 | 4197771 |
| 2 | 08/01/1997 | WD | Warranty Deed | SANDHOP, STEVEN L | JACKSON, ATHENA K | | | $156,000.00 | 72669 | 97012613 |
| 3 | 06/01/1981 | REC | Real Estate Contract | GOODNIGHT, KENNETH D | SANDHOP, STEVEN L | | | $20,000.00 | 11993 | 384809 |
| 4 | 01/01/1900 | OTHER | Other - Misc. Documents | Unknown | GOODNIGHT, KENNETH D | | | $0.00 | 0 | 0 |
Payout Agreement
| No payout information available.. |