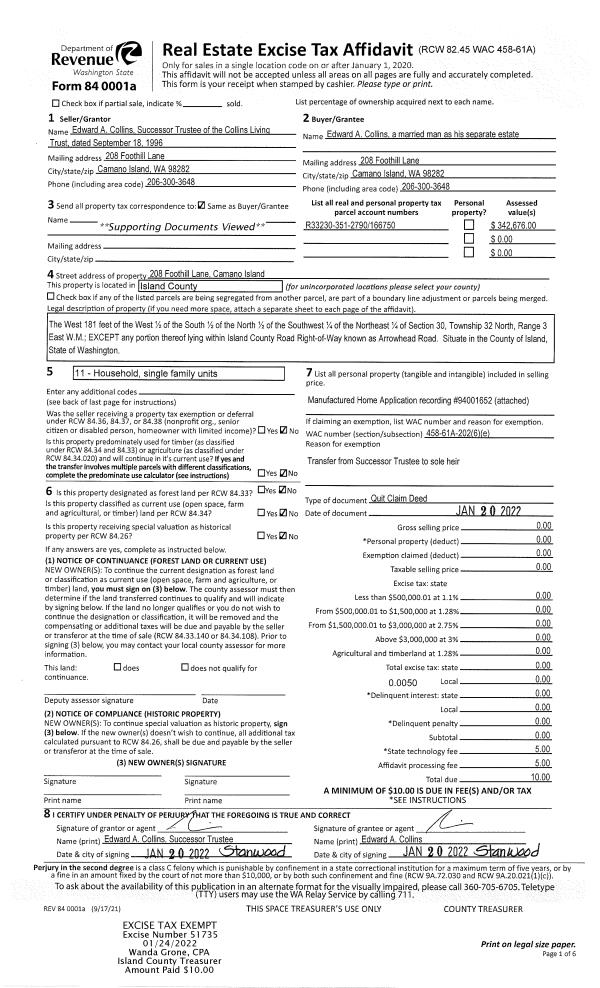
Property
Account |
| Property ID: | 166750 | Abbreviated Legal Description: | 22- W181' OF W/2 S/2 N/2 SW NE SUB EZ EX RD |
| Geographic ID: | R33230-351-2790 | Agent Code: | |
| Type: | Real | | |
| Tax Area: | 592 - APPRAISER-Stan/Cam Schl Dist, Special Dist, improved, greater than 1 acre | Land Use Code | 11 |
| Open Space: | N | DFL | N |
| Historic Property: | N | Remodel Property: | N |
| Multi-Family Redevelopment: | N | | |
| Township: | 32 | Section: | 30 |
| Range: | R3 |
Location |
| Address: | 208 FOOTHILL LN CAMANO ISLAND, WA 98282 | Mapsco: | |
| Neighborhood: | North Camano | Map ID: | 991 |
| Neighborhood CD: | 06-C |
Owner |
| Name: | HOPE, ERIC D | Owner ID: | 304787 |
| Mailing Address: | 208 FOOTHILL LN CAMANO ISLAND, WA 98282 | % Ownership: | 100.0000000000% |
| | | Exemptions: | |
Taxes and Assessment Details
Values
| (+) Improvement Homesite Value: | + | $0 | |
| (+) Improvement Non-Homesite Value: | + | $181,675 | |
| (+) Land Homesite Value: | + | $0 | |
| (+) Land Non-Homesite Value: | + | $305,000 | |
| (+) Curr Use (HS): | + | $0 | $0 |
| (+) Curr Use (NHS): | + | $0 | $0 |
| | | -------------------------- | |
| (=) Market Value: | = | $486,675 | |
| (–) Productivity Loss: | – | $0 | |
| | | -------------------------- | |
| (=) Subtotal: | = | $486,675 | |
| (+) Senior Appraised Value: | + | $0 | |
| (+) Non-Senior Appraised Value: | + | $486,675 | |
| | | -------------------------- | |
| (=) Total Appraised Value: | = | $486,675 | |
| (–) Senior Exemption Loss: | – | $0 | |
| (–) Exemption Loss: | – | $0 | |
| | | -------------------------- | |
| (=) Taxable Value: | = | $486,675 | |
Taxing Jurisdiction
| Owner: | HOPE, ERIC D | | |
| % Ownership: | 100.0000000000% | | |
| Total Value: | $486,675 | | |
| Tax Area: | 592 - APPRAISER-Stan/Cam Schl Dist, Special Dist, improved, greater than 1 acre |
| CF | Conservation Futures | 0.0313996660 | $486,675 | $486,675 | $15.28 | | |
| EMS1 | Fire & Rescue Dist #1 Camano GEN (EMS) | 0.4998471806 | $486,675 | $486,675 | $243.26 | | |
| FIRE1 | Fire & Rescue Dist #1 Camano GEN | 1.2496603404 | $486,675 | $486,675 | $608.18 | | |
| FIRE1BOND | Fire & Rescue Dist #1 Camano BOND | 0.1630371212 | $486,675 | $486,675 | $79.35 | | |
| CE | County Current Expense | 0.3674210519 | $486,675 | $486,675 | $178.81 | | |
| CR | County Roads | 0.4614296361 | $486,675 | $486,675 | $224.57 | | |
| LIB | Library Sno-Isle GEN | 0.3039084203 | $486,675 | $486,675 | $147.90 | | |
| SCH205_401 | School 205-401 Enrichment | 1.3697998934 | $486,675 | $486,675 | $666.65 | | |
| SCH205BOND | School 205-401 BOND | 0.9354199323 | $486,675 | $486,675 | $455.25 | | |
| ST | State School | 1.4761226122 | $486,675 | $486,675 | $718.39 | | |
| ST2 | State School Part 2 | 0.7953803475 | $486,675 | $486,675 | $387.09 | | |
| | Total Tax Rate: | 7.6534262019 | | | | | |
| | | | | Taxes w/Current Exemptions: | $3,724.73 | | |
| | | | | Taxes w/o Exemptions: | $3,724.73 | | |
Improvement / Building
| Improvement #1: | MANUFACTURED HOME | State Code: | Y | 2179.0 sqft | Value: | $181,675 |
| Bathrooms: | 0 | Bedrooms: | 0 | | Ceiling: | PLASTER PAINTED | Cooling: | EVAP NO DUCT | | Exterior Wall/Cover: | VINYL | Floor Covering: | CARPET 100% | | Floor Structure: | SLAB ON GRADE | Foundation: | SLAB | | Heating: | FHA ELECTRIC | Interior Finish: | PLASTER | | Plumbing Fixture Cnt: | 1 | Roof Slope: | FLAT | | Roof Structure/Cover: | CJ ALUMINIUM HEAVY |   |   |
|
| | Type | Description | Class CD | Sub Class CD | Year Built | Area |
| | BAS | BASE/MAIN FLOOR | 4 | 0 | 1994 | 2179.0 |
| | OWP | OPEN WOOD PORCH W/STEPS | 4 | 0 | 1994 | 234.5 |
| | OWP | OPEN WOOD PORCH W/STEPS | 4 | 0 | 1994 | 130.0 |
| | DGR | DETACHED GARAGE | 4 | 0 | 1994 | 864.0 |
| | ENP | ENCLOSED PORCH | 4 | 0 | 1994 | 520.0 |
| | CPD | OPEN CARPORT DIRT FLOOR | 4 | 0 | 1994 | 320.0 |
Sketch
Property Image
Land
| 1 | 17 | AC (01.01-02.00) | 0.0000 | 0.00 | 0.00 | 0.00 | 1.00 | $305,000 | $0 |
Roll Value History
| 2026 | N/A | N/A | N/A | N/A | N/A |
| 2025 | $181,675 | $305,000 | $0 | $486,675 | $486,675 |
| 2024 | $186,840 | $290,000 | $0 | $476,840 | $476,840 |
| 2023 | $169,778 | $290,000 | $0 | $459,778 | $459,778 |
| 2022 | $123,939 | $260,000 | $0 | $383,939 | $383,939 |
| 2021 | $112,676 | $230,000 | $0 | $342,676 | $342,676 |
| 2020 | $112,767 | $150,000 | $0 | $262,767 | $262,767 |
| 2019 | $94,204 | $180,000 | $0 | $274,204 | $274,204 |
| 2018 | $96,565 | $150,000 | $0 | $246,565 | $246,565 |
| 2017 | $98,923 | $120,000 | $0 | $218,923 | $218,923 |
| 2016 | $81,746 | $100,000 | $0 | $181,746 | $181,746 |
| 2015 | $83,618 | $100,000 | $0 | $183,618 | $183,618 |
| 2014 | $85,489 | $100,000 | $0 | $185,489 | $185,489 |
| 2013 | $87,359 | $100,000 | $0 | $187,359 | $187,359 |
| 2012 | $88,295 | $100,000 | $0 | $188,295 | $188,295 |
| 2011 | $90,167 | $125,000 | $0 | $215,167 | $215,167 |
| 2010 | $101,965 | $125,000 | $0 | $226,965 | $226,965 |
| 2009 | $105,451 | $150,000 | $0 | $255,451 | $255,451 |
| 2008 | $108,616 | $125,000 | $0 | $233,616 | $233,616 |
| 2007 | $111,813 | $125,000 | $0 | $236,813 | $236,813 |
Deed and Sales History
| 1 | 06/15/2022 | WD | Warranty Deed | COLLLINS, EDWARD A | HOPE, ERIC D | | | $590,000.00 | 53499 | 4546796 |
| 2 | 01/20/2022 | QCD | Quit Claim Deed | COLLINS, EDWARD L / CAROLYN I | COLLLINS, EDWARD A | | | $0.00 | 51735 | 4538370 |
| 3 | 01/01/1997 | QCD | Quit Claim Deed | COLLINS, EDWARD L | COLLINS, EDWARD L | | | $0.00 | 70518 | 97002335 |
| 4 | 09/01/1993 | OTHER | Other - Misc. Documents | COLLINS, EDWARD/CAROLYN I | COLLINS, EDWARD L | | | $74,945.00 | 11111111 | 0 |
| 5 | 06/01/1980 | EXECUTORD | Executor Deed | NICOL, DAVID E | COLLINS, EDWARD/CAROLYN I | | | $47,743.00 | 2140 | 370404 |
| 6 | 03/01/1980 | EXECUTORD | Executor Deed | BELCHER, DANIEL W | NICOL, DAVID E | | | $38,243.00 | 1261 | 367639 |
| 7 | 01/01/1900 | OTHER | Other - Misc. Documents | Unknown | COLLINS, EDWARD L/CAROLYN I | | | $0.00 | 83045 | 0 |
| 8 | 01/01/1900 | OTHER | Other - Misc. Documents | COLLINS, EDWARD L/CAROLYN I | BELCHER, DANIEL W | | | $0.00 | 0 | 0 |
Payout Agreement
| No payout information available.. |