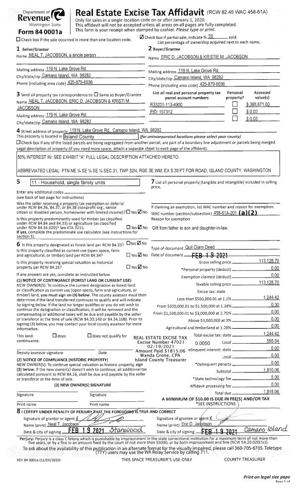
Property
Account |
| Property ID: | 167312 | Abbreviated Legal Description: | 76 - E166.14' OF W332.14' OF NE SE SE EX S30' |
| Geographic ID: | R33231-113-4900 | Agent Code: | |
| Type: | Real | | |
| Tax Area: | 592 - APPRAISER-Stan/Cam Schl Dist, Special Dist, improved, greater than 1 acre | Land Use Code | 11 |
| Open Space: | N | DFL | N |
| Historic Property: | N | Remodel Property: | N |
| Multi-Family Redevelopment: | N | | |
| Township: | 32 | Section: | 31 |
| Range: | R3 |
Location |
| Address: | 119 N LAKE GROVE RD CAMANO ISLAND, WA 98282 | Mapsco: | |
| Neighborhood: | Cycle 5 | Map ID: | 993 |
| Neighborhood CD: | 5 |
Owner |
| Name: | JACOBSON, NEAL T | Owner ID: | 298194 |
| Mailing Address: | ERIC D JACOBSON & KRISTIE M JACOBSON 119 N LAKE GROVE RD CAMANO ISLAND, WA 98282 | % Ownership: | 100.0000000000% |
| | | Exemptions: | |
Taxes and Assessment Details
Values
| (+) Improvement Homesite Value: | + | $0 | |
| (+) Improvement Non-Homesite Value: | + | $402,473 | |
| (+) Land Homesite Value: | + | $0 | |
| (+) Land Non-Homesite Value: | + | $310,000 | |
| (+) Curr Use (HS): | + | $0 | $0 |
| (+) Curr Use (NHS): | + | $0 | $0 |
| | | -------------------------- | |
| (=) Market Value: | = | $712,473 | |
| (–) Productivity Loss: | – | $0 | |
| | | -------------------------- | |
| (=) Subtotal: | = | $712,473 | |
| (+) Senior Appraised Value: | + | $0 | |
| (+) Non-Senior Appraised Value: | + | $712,473 | |
| | | -------------------------- | |
| (=) Total Appraised Value: | = | $712,473 | |
| (–) Senior Exemption Loss: | – | $0 | |
| (–) Exemption Loss: | – | $0 | |
| | | -------------------------- | |
| (=) Taxable Value: | = | $712,473 | |
Taxing Jurisdiction
| Owner: | JACOBSON, NEAL T | | |
| % Ownership: | 100.0000000000% | | |
| Total Value: | $712,473 | | |
| Tax Area: | 592 - APPRAISER-Stan/Cam Schl Dist, Special Dist, improved, greater than 1 acre |
| CF | Conservation Futures | 0.0313996660 | $712,473 | $712,473 | $22.37 | | |
| EMS1 | Fire & Rescue Dist #1 Camano GEN (EMS) | 0.4998471806 | $712,473 | $712,473 | $356.13 | | |
| FIRE1 | Fire & Rescue Dist #1 Camano GEN | 1.2496603404 | $712,473 | $712,473 | $890.35 | | |
| FIRE1BOND | Fire & Rescue Dist #1 Camano BOND | 0.1630371212 | $712,473 | $712,473 | $116.16 | | |
| CE | County Current Expense | 0.3674210519 | $712,473 | $712,473 | $261.78 | | |
| CR | County Roads | 0.4614296361 | $712,473 | $712,473 | $328.76 | | |
| LIB | Library Sno-Isle GEN | 0.3039084203 | $712,473 | $712,473 | $216.53 | | |
| SCH205_401 | School 205-401 Enrichment | 1.3697998934 | $712,473 | $712,473 | $975.95 | | |
| SCH205BOND | School 205-401 BOND | 0.9354199323 | $712,473 | $712,473 | $666.46 | | |
| ST | State School | 1.4761226122 | $712,473 | $712,473 | $1,051.70 | | |
| ST2 | State School Part 2 | 0.7953803475 | $712,473 | $712,473 | $566.69 | | |
| | Total Tax Rate: | 7.6534262019 | | | | | |
| | | | | Taxes w/Current Exemptions: | $5,452.88 | | |
| | | | | Taxes w/o Exemptions: | $5,452.88 | | |
Improvement / Building
| Improvement #1: | RESIDENTIAL | State Code: | Y | 1774.5 sqft | Value: | $345,719 |
| Bathrooms: | 2 | Bedrooms: | 3 | | Ceiling: | TONGUE & GROOVE | Exterior Wall/Cover: | WOOD SIDING | | Floor Covering: | VINYL 100% | Floor Structure: | WOOD W/SUBFLOOR | | Foundation: | CONCRETE | Heating: | WALL HEAT ELECTRIC | | Interior Finish: | DRYWALL PAINT | Plumbing Fixture Cnt: | 9 | | Roof Slope: | 12" IN 12" | Roof Structure/Cover: | BEAM ASPHALT |
|
| | Type | Description | Class CD | Sub Class CD | Year Built | Area |
| | BAS | BASE/MAIN FLOOR | 3 | 0 | 1996 | 1137.5 |
| | UPS | UPPER STORY | 3 | 0 | 1996 | 637.0 |
| | OWP | OPEN WOOD PORCH W/STEPS | 3 | 0 | 1996 | 981.1 |
| | OWP | OPEN WOOD PORCH W/STEPS | 3 | 0 | 1996 | 96.0 |
| | oPOL | POLE BARN | 3 | 0 | 1996 | 0.0 |
| Improvement #2: | MANUFACTURED HOME | State Code: | Y | 616.0 sqft | Value: | $56,754 |
| Bathrooms: | 1 | Bedrooms: | 1 | | Ceiling: | PLASTER PAINTED | Cooling: | EVAP NO DUCT | | Exterior Wall/Cover: | VINYL | Floor Covering: | CARPET/VINYL 20-80 | | Floor Structure: | SLAB ON GRADE | Foundation: | SLAB | | Heating: | FHA ELECTRIC | Interior Finish: | PLASTER | | Plumbing Fixture Cnt: | 1 | Roof Slope: | 3" IN 12" | | Roof Structure/Cover: | CJ COMP ROLL |   |   |
|
| | Type | Description | Class CD | Sub Class CD | Year Built | Area |
| | BAS | BASE/MAIN FLOOR | 3 | 0 | 2023 | 616.0 |
| | OWC | OPEN WOOD PORCH W/STEPS/ROOF/C | 3 | 0 | 2023 | 112.0 |
Sketch
Property Image
Land
| 1 | 18 | AC (02.01-03.00) | 0.0000 | 0.00 | 0.00 | 0.00 | 1.00 | $310,000 | $0 |
Roll Value History
| 2026 | N/A | N/A | N/A | N/A | N/A |
| 2025 | $402,473 | $310,000 | $0 | $712,473 | $712,473 |
| 2024 | $391,674 | $300,000 | $0 | $691,674 | $691,674 |
| 2023 | $416,616 | $300,000 | $0 | $716,616 | $716,616 |
| 2022 | $312,840 | $260,000 | $0 | $572,840 | $572,840 |
| 2021 | $261,606 | $190,000 | $0 | $451,606 | $451,606 |
| 2020 | $256,136 | $150,000 | $0 | $406,136 | $406,136 |
| 2019 | $198,671 | $190,000 | $0 | $388,671 | $388,671 |
| 2018 | $199,190 | $180,000 | $0 | $379,190 | $379,190 |
| 2017 | $200,196 | $135,000 | $0 | $335,196 | $335,196 |
| 2016 | $202,271 | $135,000 | $0 | $337,271 | $337,271 |
| 2015 | $202,291 | $100,000 | $0 | $302,291 | $302,291 |
| 2014 | $204,392 | $100,000 | $0 | $304,392 | $304,392 |
| 2013 | $206,495 | $80,000 | $0 | $286,495 | $286,495 |
| 2012 | $208,597 | $80,000 | $0 | $288,597 | $288,597 |
| 2011 | $210,698 | $100,000 | $0 | $310,698 | $310,698 |
| 2010 | $217,927 | $100,000 | $0 | $317,927 | $317,927 |
| 2009 | $234,282 | $100,000 | $0 | $334,282 | $334,282 |
| 2008 | $237,530 | $100,000 | $0 | $337,530 | $337,530 |
| 2007 | $240,777 | $100,000 | $0 | $340,777 | $340,777 |
Deed and Sales History
| 1 | 02/19/2021 | QCD | Quit Claim Deed | JACOBSON, NEAL T | JACOBSON, NEAL T | | | $113,129.00 | 47021 | 4511431 |
| 2 | 09/10/2009 | TRUSTEED | Trustee's Deed | JP MORGAN CHASE BANK NATIONAL | JACOBSON, NEAL T | | | $285,000.00 | 92592 | 4262477 |
| 3 | 06/04/2009 | TRUSTEED | Trustee's Deed | RAINCHILD, BENJAMIN CANBY | JP MORGAN CHASE BANK NATIONAL | | | $303,545.00 | 91657 | 4256935 |
| 4 | 10/22/1999 | WD | Warranty Deed | HOLM, PAUL J | RAINCHILD, BENJAMIN CANBY | | | $189,950.00 | 94501 | 99024874 |
| 5 | 09/01/1997 | WD | Warranty Deed | BERGER, KENT L | HOLM, PAUL J | | | $164,950.00 | 73266 | 97015378 |
| 6 | 02/01/1996 | WD | Warranty Deed | GLANCY, ROBERT S | BERGER, KENT L | | | $39,500.00 | 60584 | 96003181 |
| 7 | 01/01/1900 | OTHER | Other - Misc. Documents | Unknown | GLANCY, ROBERT S | | | $0.00 | 0 | 0 |
Payout Agreement
| No payout information available.. |