Property
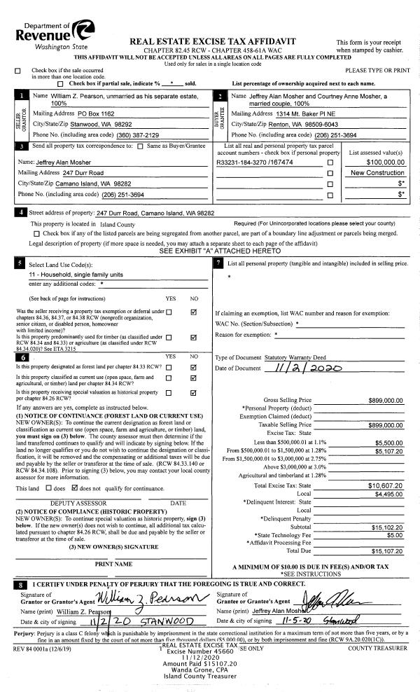
Account |
| Property ID: | 167474 | Abbreviated Legal Description: | 72 - E/2 NE SW NW SE EX RD |
| Geographic ID: | R33231-184-3270 | Agent Code: | |
| Type: | Real | | |
| Tax Area: | 592 - APPRAISER-Stan/Cam Schl Dist, Special Dist, improved, greater than 1 acre | Land Use Code | 11 |
| Open Space: | N | DFL | N |
| Historic Property: | N | Remodel Property: | N |
| Multi-Family Redevelopment: | N | | |
| Township: | 32 | Section: | 31 |
| Range: | R3 |
Location |
| Address: | 247 DURR RD CAMANO ISLAND, WA 98282 | Mapsco: | |
| Neighborhood: | Cycle 5 | Map ID: | 993 |
| Neighborhood CD: | 5 |
Owner |
| Name: | MOSHER, JEFFREY ALAN | Owner ID: | 296689 |
| Mailing Address: | COURTNEY ANNE MOSHER 247 DURR RD CAMANO ISLAND, WA 98282 | % Ownership: | 100.0000000000% |
| | | Exemptions: | |
Taxes and Assessment Details
Values
| (+) Improvement Homesite Value: | + | $0 | |
| (+) Improvement Non-Homesite Value: | + | $784,970 | |
| (+) Land Homesite Value: | + | $0 | |
| (+) Land Non-Homesite Value: | + | $300,000 | |
| (+) Curr Use (HS): | + | $0 | $0 |
| (+) Curr Use (NHS): | + | $0 | $0 |
| | | -------------------------- | |
| (=) Market Value: | = | $1,084,970 | |
| (–) Productivity Loss: | – | $0 | |
| | | -------------------------- | |
| (=) Subtotal: | = | $1,084,970 | |
| (+) Senior Appraised Value: | + | $0 | |
| (+) Non-Senior Appraised Value: | + | $1,084,970 | |
| | | -------------------------- | |
| (=) Total Appraised Value: | = | $1,084,970 | |
| (–) Senior Exemption Loss: | – | $0 | |
| (–) Exemption Loss: | – | $0 | |
| | | -------------------------- | |
| (=) Taxable Value: | = | $1,084,970 | |
Taxing Jurisdiction
| Owner: | MOSHER, JEFFREY ALAN | | |
| % Ownership: | 100.0000000000% | | |
| Total Value: | $1,084,970 | | |
| Tax Area: | 592 - APPRAISER-Stan/Cam Schl Dist, Special Dist, improved, greater than 1 acre |
| CF | Conservation Futures | 0.0313996660 | $1,084,970 | $1,084,970 | $34.07 | | |
| EMS1 | Fire & Rescue Dist #1 Camano GEN (EMS) | 0.4998471806 | $1,084,970 | $1,084,970 | $542.32 | | |
| FIRE1 | Fire & Rescue Dist #1 Camano GEN | 1.2496603404 | $1,084,970 | $1,084,970 | $1,355.84 | | |
| FIRE1BOND | Fire & Rescue Dist #1 Camano BOND | 0.1630371212 | $1,084,970 | $1,084,970 | $176.89 | | |
| CE | County Current Expense | 0.3674210519 | $1,084,970 | $1,084,970 | $398.64 | | |
| CR | County Roads | 0.4614296361 | $1,084,970 | $1,084,970 | $500.64 | | |
| LIB | Library Sno-Isle GEN | 0.3039084203 | $1,084,970 | $1,084,970 | $329.73 | | |
| SCH205_401 | School 205-401 Enrichment | 1.3697998934 | $1,084,970 | $1,084,970 | $1,486.19 | | |
| SCH205BOND | School 205-401 BOND | 0.9354199323 | $1,084,970 | $1,084,970 | $1,014.90 | | |
| ST | State School | 1.4761226122 | $1,084,970 | $1,084,970 | $1,601.55 | | |
| ST2 | State School Part 2 | 0.7953803475 | $1,084,970 | $1,084,970 | $862.96 | | |
| | Total Tax Rate: | 7.6534262019 | | | | | |
| | | | | Taxes w/Current Exemptions: | $8,303.73 | | |
| | | | | Taxes w/o Exemptions: | $8,303.73 | | |
Improvement / Building
| Improvement #1: | RESIDENTIAL | State Code: | Y | 3393.2 sqft | Value: | $784,970 |
| Bathrooms: | 3 | Bedrooms: | 3 | | Ceiling: | DRYWALL PAINTED | Cooling: | HEAT PUMP/CONV/V | | Exterior Wall/Cover: | PLY/HARDBOARD T-111 | Floor Covering: | HARDWOOD 100% | | Floor Structure: | WOOD W/SUBFLOOR | Foundation: | CONCRETE | | Interior Finish: | DRYWALL PAINT | Plumbing Fixture Cnt: | 14 | | Roof Slope: | 10" IN 12" | Roof Structure/Cover: | CJ ASPHALT |
|
| | Type | Description | Class CD | Sub Class CD | Year Built | Area |
| | BAS | BASE/MAIN FLOOR | 4 | 0 | 2020 | 2276.2 |
| | UPS | UPPER STORY | 4 | 0 | 2020 | 1117.0 |
| | AGR | ATTACHED GARAGE | 4 | 0 | 2020 | 1387.8 |
| | OP4 | OPEN PORCH W/CEILING-ROOF | 4 | 0 | 2020 | 300.0 |
| | OWC | OPEN WOOD PORCH W/STEPS/ROOF/C | 4 | 0 | 2020 | 192.0 |
Sketch
Property Image
Land
| 1 | 17 | AC (01.01-02.00) | 1.1400 | 49658.40 | 0.00 | 0.00 | 1.00 | $300,000 | $0 |
Roll Value History
| 2026 | N/A | N/A | N/A | N/A | N/A |
| 2025 | $784,970 | $300,000 | $0 | $1,084,970 | $1,084,970 |
| 2024 | $791,200 | $290,000 | $0 | $1,081,200 | $1,081,200 |
| 2023 | $799,507 | $290,000 | $0 | $1,089,507 | $1,089,507 |
| 2022 | $737,120 | $260,000 | $0 | $997,120 | $997,120 |
| 2021 | $654,070 | $190,000 | $0 | $844,070 | $844,070 |
| 2020 | $126,889 | $90,000 | $0 | $216,889 | $216,889 |
| 2019 | $0 | $100,000 | $0 | $100,000 | $100,000 |
| 2018 | $0 | $90,000 | $0 | $90,000 | $90,000 |
| 2017 | $0 | $85,000 | $0 | $85,000 | $85,000 |
| 2016 | $0 | $85,000 | $0 | $85,000 | $85,000 |
| 2015 | $0 | $85,000 | $0 | $85,000 | $85,000 |
| 2014 | $0 | $85,000 | $0 | $85,000 | $85,000 |
| 2013 | $0 | $100,000 | $0 | $100,000 | $100,000 |
| 2012 | $0 | $100,000 | $0 | $100,000 | $100,000 |
| 2011 | $0 | $100,000 | $0 | $100,000 | $100,000 |
| 2010 | $0 | $100,000 | $0 | $100,000 | $100,000 |
| 2009 | $0 | $135,000 | $0 | $135,000 | $135,000 |
| 2008 | $0 | $135,000 | $0 | $135,000 | $135,000 |
| 2007 | $0 | $100,000 | $0 | $100,000 | $100,000 |
Deed and Sales History
| 1 | 11/02/2020 | WD | Warranty Deed | PEARSON, WILLIAM | MOSHER, JEFFREY ALAN | | | $899,000.00 | 45660 | 4502169 |
| 2 | 02/01/1993 | WD | Warranty Deed | LOW, MICHAEL H | PEARSON, WILLIAM Z | | | $18,000.00 | 30634 | 93003341 |
| 3 | 03/01/1983 | QCD | Quit Claim Deed | LOW, MICHAEL H | LOW, MICHAEL H | | | $0.00 | 31170 | 409087 |
| 4 | 01/01/1900 | OTHER | Other - Misc. Documents | Unknown | LOW, MICHAEL H | | | $0.00 | 0 | 0 |
Payout Agreement
| No payout information available.. |