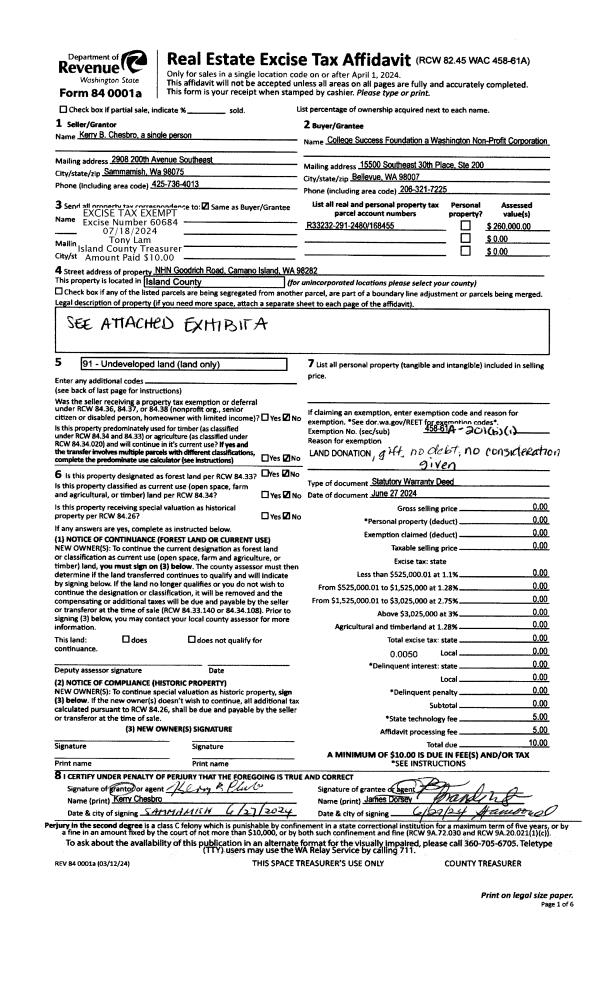
Property
Account |
| Property ID: | 168455 | Abbreviated Legal Description: | 70 - IN GL3: BG SWCR GL3 S89*E990.43' N11*W246.43' TPB S89*E434.04' N8*W80.99' N89*W437.97' S11*E81.69' TPB |
| Geographic ID: | R33232-291-2480 | Agent Code: | |
| Type: | Real | | |
| Tax Area: | 599 - APPRAISER-Stan/Cam Schl Dist, Special Dist, vacant & 50 acres or less | Land Use Code | 91 |
| Open Space: | N | DFL | N |
| Historic Property: | N | Remodel Property: | N |
| Multi-Family Redevelopment: | N | | |
| Township: | 32 | Section: | 32 |
| Range: | R3 |
Location |
| Address: | 222 GOODRICH RD CAMANO ISLAND, WA 98282 | Mapsco: | |
| Neighborhood: | Cycle 5 | Map ID: | 998 |
| Neighborhood CD: | 5 |
Owner |
| Name: | RAWLS, RYAN | Owner ID: | 316249 |
| Mailing Address: | STEPHANIE RAWLS 315 SOUTH 30TH STREET MOUNT VERNON, WA 98274 | % Ownership: | 100.0000000000% |
| | | Exemptions: | |
Taxes and Assessment Details
Values
| (+) Improvement Homesite Value: | + | $0 | |
| (+) Improvement Non-Homesite Value: | + | $0 | |
| (+) Land Homesite Value: | + | $0 | |
| (+) Land Non-Homesite Value: | + | $130,000 | |
| (+) Curr Use (HS): | + | $0 | $0 |
| (+) Curr Use (NHS): | + | $0 | $0 |
| | | -------------------------- | |
| (=) Market Value: | = | $130,000 | |
| (–) Productivity Loss: | – | $0 | |
| | | -------------------------- | |
| (=) Subtotal: | = | $130,000 | |
| (+) Senior Appraised Value: | + | $0 | |
| (+) Non-Senior Appraised Value: | + | $130,000 | |
| | | -------------------------- | |
| (=) Total Appraised Value: | = | $130,000 | |
| (–) Senior Exemption Loss: | – | $0 | |
| (–) Exemption Loss: | – | $0 | |
| | | -------------------------- | |
| (=) Taxable Value: | = | $130,000 | |
Taxing Jurisdiction
| Owner: | RAWLS, RYAN | | |
| % Ownership: | 100.0000000000% | | |
| Total Value: | $130,000 | | |
| Tax Area: | 599 - APPRAISER-Stan/Cam Schl Dist, Special Dist, vacant & 50 acres or less |
| CF | Conservation Futures | 0.0313996660 | $130,000 | $130,000 | $4.08 | | |
| EMS1 | Fire & Rescue Dist #1 Camano GEN (EMS) | 0.4998471806 | $130,000 | $130,000 | $64.98 | | |
| CE | County Current Expense | 0.3674210519 | $130,000 | $130,000 | $47.76 | | |
| CR | County Roads | 0.4614296361 | $130,000 | $130,000 | $59.99 | | |
| LIB | Library Sno-Isle GEN | 0.3039084203 | $130,000 | $130,000 | $39.51 | | |
| SCH205_401 | School 205-401 Enrichment | 1.3697998934 | $130,000 | $130,000 | $178.07 | | |
| SCH205BOND | School 205-401 BOND | 0.9354199323 | $130,000 | $130,000 | $121.60 | | |
| ST | State School | 1.4761226122 | $130,000 | $130,000 | $191.90 | | |
| ST2 | State School Part 2 | 0.7953803475 | $130,000 | $130,000 | $103.40 | | |
| | Total Tax Rate: | 6.2407287403 | | | | | |
| | | | | Taxes w/Current Exemptions: | $811.29 | | |
| | | | | Taxes w/o Exemptions: | $811.29 | | |
Improvement / Building
Sketch
| No sketches available for this property. |
Property Image
Land
| 1 | HB | HIGH BLUFF | 0.7900 | 34412.40 | 80.00 | 0.00 | 1.00 | $130,000 | $0 |
Roll Value History
| 2026 | N/A | N/A | N/A | N/A | N/A |
| 2025 | $0 | $130,000 | $0 | $130,000 | $130,000 |
| 2024 | $0 | $260,000 | $0 | $260,000 | $260,000 |
| 2023 | $0 | $260,000 | $0 | $260,000 | $260,000 |
| 2022 | $0 | $240,000 | $0 | $240,000 | $240,000 |
| 2021 | $0 | $200,000 | $0 | $200,000 | $200,000 |
| 2020 | $0 | $200,000 | $0 | $200,000 | $200,000 |
| 2019 | $0 | $200,000 | $0 | $200,000 | $200,000 |
| 2018 | $0 | $200,000 | $0 | $200,000 | $200,000 |
| 2017 | $0 | $200,000 | $0 | $200,000 | $200,000 |
| 2016 | $0 | $200,000 | $0 | $200,000 | $200,000 |
| 2015 | $0 | $200,000 | $0 | $200,000 | $200,000 |
| 2014 | $0 | $200,000 | $0 | $200,000 | $200,000 |
| 2013 | $0 | $173,427 | $0 | $173,427 | $173,427 |
| 2012 | $0 | $173,427 | $0 | $173,427 | $173,427 |
| 2011 | $0 | $173,427 | $0 | $173,427 | $173,427 |
| 2010 | $0 | $173,427 | $0 | $173,427 | $173,427 |
| 2009 | $0 | $192,009 | $0 | $192,009 | $192,009 |
| 2008 | $0 | $221,946 | $0 | $221,946 | $221,946 |
| 2007 | $0 | $192,009 | $0 | $192,009 | $192,009 |
Deed and Sales History
| 1 | 04/29/2025 | WD | Warranty Deed | COLLEGE SUCCESS FOUNDATION | RAWLS, RYAN | | | $110,000.00 | 63284 | 4585077 |
| 2 | 06/27/2024 | WD | Warranty Deed | CHESBRO, KERRY B | COLLEGE SUCCESS FOUNDATION | | | $0.00 | 60786 | 4575231 |
| 3 | 06/27/2024 | WD | Warranty Deed | CHESBRO, KERRY B | COLLEGE SUCCESS FOUNDATION | | | $0.00 | 60684 | 4574776 |
| 4 | 06/01/1989 | DECREE | Divorce Decree/Legal Separation | CHESBRO, KERRY B | CHESBRO, KERRY B | | | $0.00 | 92498 | 89008527 |
| 5 | 02/01/1982 | TRUSTEED | Trustee's Deed | BEDNAR, MARTIN M | CHESBRO, KERRY B | | | $30,000.00 | 20377 | 393211 |
| 6 | 01/01/1900 | OTHER | Other - Misc. Documents | Unknown | BEDNAR, MARTIN M | | | $0.00 | 0 | 0 |
Payout Agreement
| No payout information available.. |