Property
Account |
| Property ID: | 169150 | Abbreviated Legal Description: | IN GL4: BG PT N18*W263 .9' FR CM 879.6'E OF SWCR GL4 S77*W115' S18*E80' N77*E TO ML NLY ALG ML 80' S77*W TPB SUB TO EZ |
| Geographic ID: | R42930-413-0770 | Agent Code: | |
| Type: | Real | | |
| Tax Area: | 720 - APPRAISER-S Whid Schl Dist, Special District, improved & less than 1 acre | Land Use Code | 11 |
| Open Space: | N | DFL | N |
| Historic Property: | N | Remodel Property: | N |
| Multi-Family Redevelopment: | N | | |
| Township: | 29 | Section: | 30 |
| Range: | R4 |
Location |
| Address: | 6486 HUNZIKER LN CLINTON, WA 98236 | Mapsco: | |
| Neighborhood: | Cycle 4 | Map ID: | 1002 |
| Neighborhood CD: | 4 |
Owner |
| Name: | MANN, KIRSTEN | Owner ID: | 307129 |
| Mailing Address: | 23820 101ST PL W EDMONDS, WA 98020 | % Ownership: | 100.0000000000% |
| | | Exemptions: | |
Taxes and Assessment Details
Values
| (+) Improvement Homesite Value: | + | $0 | |
| (+) Improvement Non-Homesite Value: | + | $399,529 | |
| (+) Land Homesite Value: | + | $0 | |
| (+) Land Non-Homesite Value: | + | $800,000 | |
| (+) Curr Use (HS): | + | $0 | $0 |
| (+) Curr Use (NHS): | + | $0 | $0 |
| | | -------------------------- | |
| (=) Market Value: | = | $1,199,529 | |
| (–) Productivity Loss: | – | $0 | |
| | | -------------------------- | |
| (=) Subtotal: | = | $1,199,529 | |
| (+) Senior Appraised Value: | + | $0 | |
| (+) Non-Senior Appraised Value: | + | $1,199,529 | |
| | | -------------------------- | |
| (=) Total Appraised Value: | = | $1,199,529 | |
| (–) Senior Exemption Loss: | – | $0 | |
| (–) Exemption Loss: | – | $0 | |
| | | -------------------------- | |
| (=) Taxable Value: | = | $1,199,529 | |
Taxing Jurisdiction
| Owner: | MANN, KIRSTEN | | |
| % Ownership: | 100.0000000000% | | |
| Total Value: | $1,199,529 | | |
| Tax Area: | 720 - APPRAISER-S Whid Schl Dist, Special District, improved & less than 1 acre |
| CF | Conservation Futures | 0.0313996660 | $1,199,529 | $1,199,529 | $37.66 | | |
| FIRE3 | Fire & Rescue Dist #3 S Whidbey GEN | 1.2130821753 | $1,199,529 | $1,199,529 | $1,455.13 | | |
| HOBOND | Hospital BOND | 0.1893405597 | $1,199,529 | $1,199,529 | $227.12 | | |
| HOGEN | Hospital GEN | 0.3848777722 | $1,199,529 | $1,199,529 | $461.67 | | |
| CE | County Current Expense | 0.3674210519 | $1,199,529 | $1,199,529 | $440.73 | | |
| CR | County Roads | 0.4614296361 | $1,199,529 | $1,199,529 | $553.50 | | |
| ISLANDEMS | Hospital GEN (EMS) | 0.4952018576 | $1,199,529 | $1,199,529 | $594.01 | | |
| LIB | Library Sno-Isle GEN | 0.3039084203 | $1,199,529 | $1,199,529 | $364.55 | | |
| PORTWHID | Port of S Whidbey GEN | 0.1086004714 | $1,199,529 | $1,199,529 | $130.27 | | |
| SCH206BOND | School 206 BOND | 0.5960237832 | $1,199,529 | $1,199,529 | $714.95 | | |
| SCH206CAP | School 206 CP | 0.3066144020 | $1,199,529 | $1,199,529 | $367.79 | | |
| SCH206MO | School 206 Enrichment | 0.4808755445 | $1,199,529 | $1,199,529 | $576.82 | | |
| ST | State School | 1.4761226122 | $1,199,529 | $1,199,529 | $1,770.65 | | |
| ST2 | State School Part 2 | 0.7953803475 | $1,199,529 | $1,199,529 | $954.08 | | |
| SWHIDPRBD | P & R S Whidbey BOND | 0.0144185398 | $1,199,529 | $1,199,529 | $17.30 | | |
| SWHIDPRBD3 | P & R S Whidbey BOND3 | 0.1483535547 | $1,199,529 | $1,199,529 | $177.95 | | |
| SWHIDPRMT | P & R S Whidbey GEN | 0.4600000000 | $1,199,529 | $1,199,529 | $551.78 | | |
| | Total Tax Rate: | 7.8330503944 | | | | | |
| | | | | Taxes w/Current Exemptions: | $9,395.96 | | |
| | | | | Taxes w/o Exemptions: | $9,395.96 | | |
Improvement / Building
| Improvement #1: | RESIDENTIAL | State Code: | Y | 1700.0 sqft | Value: | $399,529 |
| Bathrooms: | 2 | Bedrooms: | 2 | | Ceiling: | DRYWALL PAINTED | Cooling: | HEAT PUMP/CONV/V | | Exterior Wall/Cover: | SHINGLE | Floor Covering: | HARDWOOD 100% | | Floor Structure: | WOOD W/SUBFLOOR | Foundation: | CONCRETE BLOCKS | | Interior Finish: | DRYWALL PAINT | Plumbing Fixture Cnt: | 12 | | Roof Slope: | 4" IN 12" | Roof Structure/Cover: | CJ ALUMINIUM HEAVY |
|
| | Type | Description | Class CD | Sub Class CD | Year Built | Area |
| | BAS | BASE/MAIN FLOOR | 3 | 0 | 1925 | 1068.0 |
| | UB6 | BASEMENT UNFINISHED 6" | 3 | 0 | 1925 | 850.0 |
| | OWP | OPEN WOOD PORCH W/STEPS | 3 | 0 | 1925 | 938.0 |
| | OWP | OPEN WOOD PORCH W/STEPS | 3 | 0 | 1925 | 398.0 |
| | UPH | HALF STORY | 3 | 0 | 1925 | 272.0 |
| | BIG | BUILT IN GARAGE | 3 | 0 | 1925 | 288.0 |
| | UPH | HALF STORY | 3 | 0 | 1925 | 360.0 |
| | BAW | BALCONY WOOD RAIL | 3 | 0 | 1925 | 48.0 |
Sketch
Property Image
Land
| 1 | LB | LOW BANK | 0.3100 | 13503.60 | 75.00 | 0.00 | 1.00 | $800,000 | $0 |
Roll Value History
| 2026 | N/A | N/A | N/A | N/A | N/A |
| 2025 | $399,529 | $800,000 | $0 | $1,199,529 | $1,199,529 |
| 2024 | $404,328 | $775,000 | $0 | $1,179,328 | $1,179,328 |
| 2023 | $409,127 | $775,000 | $0 | $1,184,127 | $1,184,127 |
| 2022 | $374,823 | $750,000 | $0 | $1,124,823 | $1,124,823 |
| 2021 | $329,711 | $430,000 | $0 | $759,711 | $759,711 |
| 2020 | $299,192 | $430,000 | $0 | $729,192 | $729,192 |
| 2019 | $218,958 | $400,000 | $0 | $618,958 | $618,958 |
| 2018 | $219,617 | $300,000 | $0 | $519,617 | $519,617 |
| 2017 | $218,910 | $250,000 | $0 | $468,910 | $468,910 |
| 2016 | $205,879 | $250,000 | $0 | $455,879 | $455,879 |
| 2015 | $208,485 | $250,000 | $0 | $458,485 | $458,485 |
| 2014 | $183,125 | $250,000 | $0 | $433,125 | $433,125 |
| 2013 | $185,237 | $265,934 | $0 | $451,171 | $451,171 |
| 2012 | $187,349 | $265,934 | $0 | $453,283 | $453,283 |
| 2011 | $189,463 | $312,863 | $0 | $502,326 | $502,326 |
| 2010 | $196,857 | $312,863 | $0 | $509,720 | $509,720 |
| 2009 | $205,139 | $347,625 | $0 | $552,764 | $552,764 |
| 2008 | $184,554 | $347,625 | $0 | $532,179 | $532,179 |
| 2007 | $187,004 | $347,625 | $0 | $534,629 | $534,629 |
Deed and Sales History
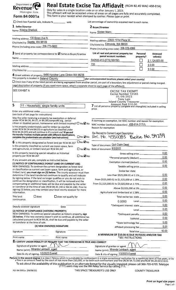
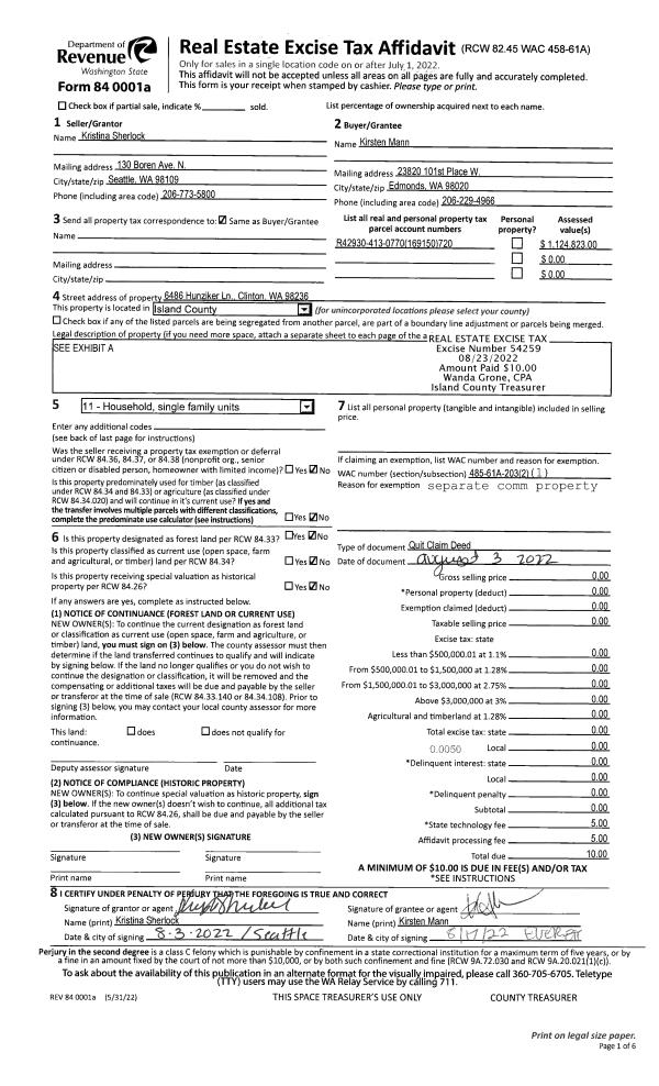
| 1 | 08/03/2022 | QCD | Quit Claim Deed | SHERLOCK, KRISTINA | MANN, KIRSTEN | | | $0.00 | 55565 | 4555513 |
| 2 | 08/03/2022 | QCD | Quit Claim Deed | SHERLOCK, KRISTINA | MANN, KIRSTEN | | | $0.00 | 54259 | 4550083 |
| 3 | 07/14/2020 | WD | Warranty Deed | MORAN, JENNIFER L | SHERLOCK, KRISTINA | | | $820,000.00 | 43853 | 4491532 |
| 4 | 08/01/2016 | WD | Warranty Deed | BEAN, JULIANA | MORAN, JENNIFER L | | | $675,999.00 | 25757 | 4405538 |
| 5 | 10/01/1995 | WD | Warranty Deed | JOHNSON, WILLIAM R | BEAN, JULIANA | | | $150,000.00 | 53720 | 95017109 |
| 6 | 02/01/1993 | OTHER | Other - Misc. Documents | MCGINNIS, BETH - | JOHNSON, WILLIAM R | | | $0.00 | 65243 | 91000769 |
| 7 | 02/01/1988 | QCD | Quit Claim Deed | MCGINNIS, BETH | MCGINNIS, BETH - | | | $0.00 | 80305 | 88001326 |
Payout Agreement
| No payout information available.. |