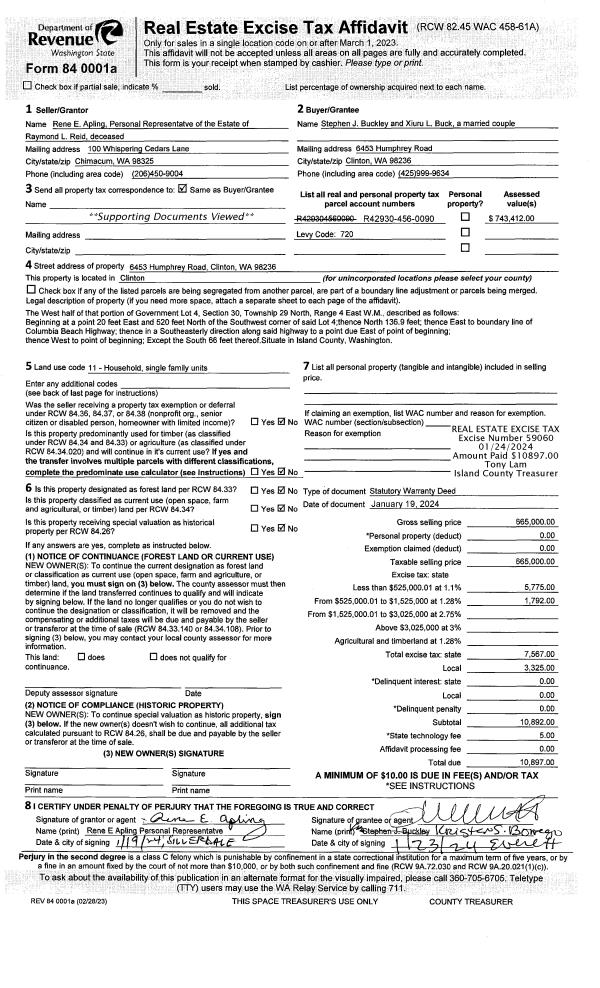
Property
Account |
| Property ID: | 169329 | Abbreviated Legal Description: | 27 - IN GL4: W/2 OF: BG 20'E & 520'N OF SWCR GL4 N136.9' E TO COLUMBIA BCH HWY SELY ALG SD HWY TP E OF TPB W TPB EX S66' |
| Geographic ID: | R42930-456-0090 | Agent Code: | |
| Type: | Real | | |
| Tax Area: | 720 - APPRAISER-S Whid Schl Dist, Special District, improved & less than 1 acre | Land Use Code | 11 |
| Open Space: | N | DFL | N |
| Historic Property: | N | Remodel Property: | N |
| Multi-Family Redevelopment: | N | | |
| Township: | 29 | Section: | 30 |
| Range: | R4 |
Location |
| Address: | 6453 HUMPHREY RD CLINTON, WA 98236 | Mapsco: | |
| Neighborhood: | Cycle 4 | Map ID: | 1001 |
| Neighborhood CD: | 4 |
Owner |
| Name: | BUCKLEY, STEPHEN J | Owner ID: | 311252 |
| Mailing Address: | XIURU L BUCK 6453 HUMPHREY RD CLINTON, WA 98236 | % Ownership: | 100.0000000000% |
| | | Exemptions: | |
Taxes and Assessment Details
Values
| (+) Improvement Homesite Value: | + | $0 | |
| (+) Improvement Non-Homesite Value: | + | $433,477 | |
| (+) Land Homesite Value: | + | $0 | |
| (+) Land Non-Homesite Value: | + | $340,000 | |
| (+) Curr Use (HS): | + | $0 | $0 |
| (+) Curr Use (NHS): | + | $0 | $0 |
| | | -------------------------- | |
| (=) Market Value: | = | $773,477 | |
| (–) Productivity Loss: | – | $0 | |
| | | -------------------------- | |
| (=) Subtotal: | = | $773,477 | |
| (+) Senior Appraised Value: | + | $0 | |
| (+) Non-Senior Appraised Value: | + | $773,477 | |
| | | -------------------------- | |
| (=) Total Appraised Value: | = | $773,477 | |
| (–) Senior Exemption Loss: | – | $0 | |
| (–) Exemption Loss: | – | $0 | |
| | | -------------------------- | |
| (=) Taxable Value: | = | $773,477 | |
Taxing Jurisdiction
| Owner: | BUCKLEY, STEPHEN J | | |
| % Ownership: | 100.0000000000% | | |
| Total Value: | $773,477 | | |
| Tax Area: | 720 - APPRAISER-S Whid Schl Dist, Special District, improved & less than 1 acre |
| CF | Conservation Futures | 0.0313996660 | $773,477 | $773,477 | $24.29 | | |
| FIRE3 | Fire & Rescue Dist #3 S Whidbey GEN | 1.2130821753 | $773,477 | $773,477 | $938.29 | | |
| HOBOND | Hospital BOND | 0.1893405597 | $773,477 | $773,477 | $146.45 | | |
| HOGEN | Hospital GEN | 0.3848777722 | $773,477 | $773,477 | $297.69 | | |
| CE | County Current Expense | 0.3674210519 | $773,477 | $773,477 | $284.19 | | |
| CR | County Roads | 0.4614296361 | $773,477 | $773,477 | $356.91 | | |
| ISLANDEMS | Hospital GEN (EMS) | 0.4952018576 | $773,477 | $773,477 | $383.03 | | |
| LIB | Library Sno-Isle GEN | 0.3039084203 | $773,477 | $773,477 | $235.07 | | |
| PORTWHID | Port of S Whidbey GEN | 0.1086004714 | $773,477 | $773,477 | $84.00 | | |
| SCH206BOND | School 206 BOND | 0.5960237832 | $773,477 | $773,477 | $461.01 | | |
| SCH206CAP | School 206 CP | 0.3066144020 | $773,477 | $773,477 | $237.16 | | |
| SCH206MO | School 206 Enrichment | 0.4808755445 | $773,477 | $773,477 | $371.95 | | |
| ST | State School | 1.4761226122 | $773,477 | $773,477 | $1,141.75 | | |
| ST2 | State School Part 2 | 0.7953803475 | $773,477 | $773,477 | $615.21 | | |
| SWHIDPRBD | P & R S Whidbey BOND | 0.0144185398 | $773,477 | $773,477 | $11.15 | | |
| SWHIDPRBD3 | P & R S Whidbey BOND3 | 0.1483535547 | $773,477 | $773,477 | $114.75 | | |
| SWHIDPRMT | P & R S Whidbey GEN | 0.4600000000 | $773,477 | $773,477 | $355.80 | | |
| | Total Tax Rate: | 7.8330503944 | | | | | |
| | | | | Taxes w/Current Exemptions: | $6,058.70 | | |
| | | | | Taxes w/o Exemptions: | $6,058.70 | | |
Improvement / Building
| Improvement #1: | RESIDENTIAL | State Code: | Y | 1568.0 sqft | Value: | $433,477 |
| Bathrooms: | 3.5 | Bedrooms: | 3 | | Ceiling: | DRYWALL PAINTED | Cooling: | HEAT PUMP/CONV/V | | Exterior Wall/Cover: | CEMENT FIBER | Floor Covering: | HARDWOOD/CARP 20-80 | | Floor Structure: | WOOD W/SUBFLOOR | Foundation: | CONCRETE | | Interior Finish: | DRYWALL PAINT | Plumbing Fixture Cnt: | 17 | | Roof Slope: | 4" IN 12" | Roof Structure/Cover: | CJ ASPHALT |
|
| | Type | Description | Class CD | Sub Class CD | Year Built | Area |
| | BAS | BASE/MAIN FLOOR | 3 | 0 | 2007 | 1568.0 |
| | OWP | OPEN WOOD PORCH W/STEPS | 3 | 0 | 2007 | 803.5 |
| | OWP | OPEN WOOD PORCH W/STEPS | 3 | 0 | 2007 | 238.0 |
| | OWC | OPEN WOOD PORCH W/STEPS/ROOF/C | 3 | 0 | 2007 | 93.5 |
| | BIG | BUILT IN GARAGE | 3 | 0 | 2007 | 768.0 |
| | ENP | ENCLOSED PORCH | 3 | 0 | 2007 | 768.0 |
| | OWP | OPEN WOOD PORCH W/STEPS | 3 | 0 | 2007 | 240.0 |
Sketch
Property Image
Land
| 1 | 15 | SQ (12001-21780) | 0.0000 | 0.00 | 0.00 | 0.00 | 1.00 | $340,000 | $0 |
Roll Value History
| 2026 | N/A | N/A | N/A | N/A | N/A |
| 2025 | $433,477 | $340,000 | $0 | $773,477 | $773,477 |
| 2024 | $438,446 | $320,000 | $0 | $758,446 | $758,446 |
| 2023 | $443,412 | $300,000 | $0 | $743,412 | $743,412 |
| 2022 | $404,887 | $280,000 | $0 | $684,887 | $684,887 |
| 2021 | $355,219 | $230,000 | $0 | $585,219 | $585,219 |
| 2020 | $297,102 | $180,000 | $0 | $477,102 | $477,102 |
| 2019 | $226,295 | $190,000 | $0 | $416,295 | $416,295 |
| 2018 | $205,642 | $160,000 | $0 | $365,642 | $365,642 |
| 2017 | $185,402 | $100,000 | $0 | $285,402 | $285,402 |
| 2016 | $187,463 | $100,000 | $0 | $287,463 | $287,463 |
| 2015 | $189,522 | $100,000 | $0 | $289,522 | $289,522 |
| 2014 | $203,175 | $100,000 | $0 | $303,175 | $303,175 |
| 2013 | $205,076 | $100,000 | $0 | $305,076 | $305,076 |
| 2012 | $206,978 | $106,250 | $0 | $313,228 | $313,228 |
| 2011 | $208,879 | $125,000 | $0 | $333,879 | $333,879 |
| 2010 | $214,486 | $125,000 | $0 | $339,486 | $339,486 |
| 2009 | $220,677 | $150,000 | $0 | $370,677 | $136,869 |
| 2008 | $232,123 | $148,406 | $0 | $380,529 | $136,869 |
| 2007 | $108,499 | $149,833 | $0 | $258,332 | $85,643 |
Deed and Sales History
| 1 | 01/19/2024 | WD | Warranty Deed | REID, MEGAN G | BUCKLEY, STEPHEN J | | | $665,000.00 | 59060 | 4568783 |
| 2 | 08/05/2019 | EZ | Easement | REID, MEGAN G | PUGET SOUND ENERGY | | | $8,640.00 | 40092 | 4470605 |
| 3 | 05/03/2007 | QCD | Quit Claim Deed | STERBA, MEGAN G | REID, MEGAN G | | | $0.00 | 71644 | 4202422 |
| 4 | 05/03/2007 | ESTSEPPROP | Establish Separate Property | STERBA, MEGAN G | STERBA, MEGAN G | | | $0.00 | 71643 | 4202421 |
| 5 | 03/01/1995 | QCD | Quit Claim Deed | ABDE, CORPORATION, T | STERBA, MEGAN G | | | $0.00 | 51111 | 95005219 |
| 6 | 05/01/1983 | PACD | Purchaser's Assignment | GRIFFIN, MEGAN E | ABDE, CORPORATION, T | | | $0.00 | 31151 | 409028 |
| 7 | 01/01/1900 | OTHER | Other - Misc. Documents | GRIFFIN, MEGAN E | GRIFFIN, MEGAN E | | | $9,740.00 | 0 | 0 |
| 8 | 01/01/1900 | OTHER | Other - Misc. Documents | Unknown | GRIFFIN, MEGAN E | | | $0.00 | 0 | 0 |
Payout Agreement
| No payout information available.. |