Property
Account |
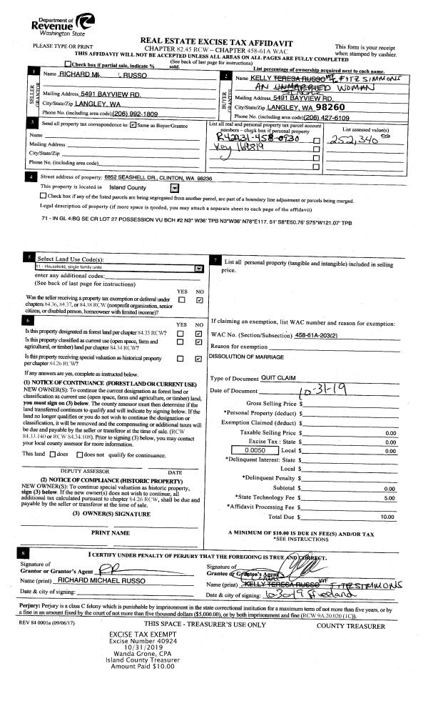
| Property ID: | 169819 | Abbreviated Legal Description: | 71 - IN GL 4:BG SE CR LOT 27 POSSESSION VU BCH #2 N3* W36' TPB N3*W36' N78*E117. 51' S8*E50.76' S75*W121.07' TPB |
| Geographic ID: | R42931-458-0930 | Agent Code: | |
| Type: | Real | | |
| Tax Area: | 710 - APPRAISER-S Whid Schl Dist, outside Langley, improved & 1 acre or less | Land Use Code | 11 |
| Open Space: | N | DFL | N |
| Historic Property: | N | Remodel Property: | N |
| Multi-Family Redevelopment: | N | | |
| Township: | 29 | Section: | 31 |
| Range: | R4 |
Location |
| Address: | 6852 SEASHELL DR CLINTON, WA 98236 | Mapsco: | |
| Neighborhood: | Cycle 4 | Map ID: | 1004 |
| Neighborhood CD: | 4 |
Owner |
| Name: | FITZSIMMONS, KELLY T | Owner ID: | 291815 |
| Mailing Address: | 5491 BAYVIEW RD LANGLEY, WA 98260 | % Ownership: | 100.0000000000% |
| | | Exemptions: | |
Taxes and Assessment Details
Values
| (+) Improvement Homesite Value: | + | $0 | |
| (+) Improvement Non-Homesite Value: | + | $151,783 | |
| (+) Land Homesite Value: | + | $0 | |
| (+) Land Non-Homesite Value: | + | $230,000 | |
| (+) Curr Use (HS): | + | $0 | $0 |
| (+) Curr Use (NHS): | + | $0 | $0 |
| | | -------------------------- | |
| (=) Market Value: | = | $381,783 | |
| (–) Productivity Loss: | – | $0 | |
| | | -------------------------- | |
| (=) Subtotal: | = | $381,783 | |
| (+) Senior Appraised Value: | + | $0 | |
| (+) Non-Senior Appraised Value: | + | $381,783 | |
| | | -------------------------- | |
| (=) Total Appraised Value: | = | $381,783 | |
| (–) Senior Exemption Loss: | – | $0 | |
| (–) Exemption Loss: | – | $0 | |
| | | -------------------------- | |
| (=) Taxable Value: | = | $381,783 | |
Taxing Jurisdiction
| Owner: | FITZSIMMONS, KELLY T | | |
| % Ownership: | 100.0000000000% | | |
| Total Value: | $381,783 | | |
| Tax Area: | 710 - APPRAISER-S Whid Schl Dist, outside Langley, improved & 1 acre or less |
| CF | Conservation Futures | 0.0313996660 | $381,783 | $381,783 | $11.99 | | |
| FIRE3 | Fire & Rescue Dist #3 S Whidbey GEN | 1.2130821753 | $381,783 | $381,783 | $463.13 | | |
| HOBOND | Hospital BOND | 0.1893405597 | $381,783 | $381,783 | $72.29 | | |
| HOGEN | Hospital GEN | 0.3848777722 | $381,783 | $381,783 | $146.94 | | |
| CE | County Current Expense | 0.3674210519 | $381,783 | $381,783 | $140.28 | | |
| CR | County Roads | 0.4614296361 | $381,783 | $381,783 | $176.17 | | |
| ISLANDEMS | Hospital GEN (EMS) | 0.4952018576 | $381,783 | $381,783 | $189.06 | | |
| LIB | Library Sno-Isle GEN | 0.3039084203 | $381,783 | $381,783 | $116.03 | | |
| PORTWHID | Port of S Whidbey GEN | 0.1086004714 | $381,783 | $381,783 | $41.46 | | |
| SCH206BOND | School 206 BOND | 0.5960237832 | $381,783 | $381,783 | $227.55 | | |
| SCH206CAP | School 206 CP | 0.3066144020 | $381,783 | $381,783 | $117.06 | | |
| SCH206MO | School 206 Enrichment | 0.4808755445 | $381,783 | $381,783 | $183.59 | | |
| ST | State School | 1.4761226122 | $381,783 | $381,783 | $563.56 | | |
| ST2 | State School Part 2 | 0.7953803475 | $381,783 | $381,783 | $303.66 | | |
| SWHIDPRBD | P & R S Whidbey BOND | 0.0144185398 | $381,783 | $381,783 | $5.50 | | |
| SWHIDPRBD3 | P & R S Whidbey BOND3 | 0.1483535547 | $381,783 | $381,783 | $56.64 | | |
| SWHIDPRMT | P & R S Whidbey GEN | 0.4600000000 | $381,783 | $381,783 | $175.62 | | |
| | Total Tax Rate: | 7.8330503944 | | | | | |
| | | | | Taxes w/Current Exemptions: | $2,990.53 | | |
| | | | | Taxes w/o Exemptions: | $2,990.53 | | |
Improvement / Building
| Improvement #1: | RESIDENTIAL | State Code: | Y | 1230.0 sqft | Value: | $151,783 |
| Bathrooms: | 2 | Bedrooms: | 2 | | Ceiling: | PLYWOOD PAINTED | Exterior Wall/Cover: | WOOD SIDING | | Floor Covering: | HARDWOOD 100% | Floor Structure: | WOOD W/SUBFLOOR | | Foundation: | PEIRS | Heating: | BASEBOARD ELECTRIC | | Interior Finish: | DRYWALL PAINT | Plumbing Fixture Cnt: | 10 | | Roof Slope: | 3" IN 12" | Roof Structure/Cover: | CJ BUILT-UP ROCK |
|
| | Type | Description | Class CD | Sub Class CD | Year Built | Area |
| | BAS | BASE/MAIN FLOOR | 3 | 0 | 1952 | 900.0 |
| | OWP | OPEN WOOD PORCH W/STEPS | 3 | 0 | 1952 | 312.0 |
| | OWP | OPEN WOOD PORCH W/STEPS | 3 | 0 | 1952 | 300.0 |
| | UPH | HALF STORY | 3 | 0 | 1952 | 330.0 |
Sketch
Property Image
Land
| 1 | 12 | SQ (00000-06000) | 0.0000 | 0.00 | 0.00 | 0.00 | 1.00 | $230,000 | $0 |
Roll Value History
| 2026 | N/A | N/A | N/A | N/A | N/A |
| 2025 | $151,783 | $230,000 | $0 | $381,783 | $381,783 |
| 2024 | $157,384 | $230,000 | $0 | $387,384 | $387,384 |
| 2023 | $159,952 | $230,000 | $0 | $389,952 | $389,952 |
| 2022 | $147,165 | $210,000 | $0 | $357,165 | $357,165 |
| 2021 | $129,988 | $150,000 | $0 | $279,988 | $279,988 |
| 2020 | $117,082 | $120,000 | $0 | $237,082 | $237,082 |
| 2019 | $82,340 | $170,000 | $0 | $252,340 | $252,340 |
| 2018 | $82,676 | $130,000 | $0 | $212,676 | $212,676 |
| 2017 | $83,347 | $100,000 | $0 | $183,347 | $183,347 |
| 2016 | $84,693 | $100,000 | $0 | $184,693 | $184,693 |
| 2015 | $86,037 | $100,000 | $0 | $186,037 | $186,037 |
| 2014 | $73,585 | $76,500 | $0 | $150,085 | $150,085 |
| 2013 | $74,889 | $76,500 | $0 | $151,389 | $151,389 |
| 2012 | $76,192 | $76,500 | $0 | $152,692 | $152,692 |
| 2011 | $77,497 | $90,000 | $0 | $167,497 | $167,497 |
| 2010 | $84,234 | $90,000 | $0 | $174,234 | $174,234 |
| 2009 | $88,490 | $99,787 | $0 | $188,277 | $188,277 |
| 2008 | $67,433 | $110,022 | $0 | $177,455 | $177,455 |
| 2007 | $68,785 | $110,000 | $0 | $178,785 | $178,785 |
Deed and Sales History
| 1 | 10/31/2019 | QCD | Quit Claim Deed | RUSSO, RICHARD M | FITZSIMMONS, KELLY T | | | $0.00 | 40924 | 4474568 |
| 2 | 09/13/2000 | WD | Warranty Deed | VAN, ANTWERP, R | RUSSO, RICHARD M | | | $127,000.00 | 3585 | 20016479 |
| 3 | 08/01/1972 | EXECUTORD | Executor Deed | Unknown | VAN, ANTWERP, R | | | $16,000.00 | 46242 | 0 |
Payout Agreement
| No payout information available.. |