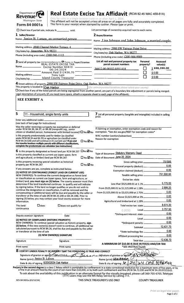
Property
Account |
| Property ID: | 170139 | Abbreviated Legal Description: | ACADEMY ADD LOT 1 & 3 BLK 6 EX S37'OF LOT 1 |
| Geographic ID: | S6005-00-06003-0 | Agent Code: | |
| Type: | Real | | |
| Tax Area: | 300 - APPRAISER-Cpvl Schl Dist, in Cpvl | Land Use Code | 11 |
| Open Space: | N | DFL | N |
| Historic Property: | N | Remodel Property: | N |
| Multi-Family Redevelopment: | N | | |
| Township: | | Section: | |
| Range: | |
Location |
| Address: | 809 NE PERKINS ST COUPEVILLE, WA 98239 | Mapsco: | |
| Neighborhood: | Cycle 2 | Map ID: | 179 |
| Neighborhood CD: | 2 |
Owner |
| Name: | HAMMER, RUTH M | Owner ID: | 310968 |
| Mailing Address: | PO BOX 477 COUPEVILLE, WA 98239 | % Ownership: | 100.0000000000% |
| | | Exemptions: | |
Taxes and Assessment Details
Values
| (+) Improvement Homesite Value: | + | $0 | |
| (+) Improvement Non-Homesite Value: | + | $254,044 | |
| (+) Land Homesite Value: | + | $0 | |
| (+) Land Non-Homesite Value: | + | $320,000 | |
| (+) Curr Use (HS): | + | $0 | $0 |
| (+) Curr Use (NHS): | + | $0 | $0 |
| | | -------------------------- | |
| (=) Market Value: | = | $574,044 | |
| (–) Productivity Loss: | – | $0 | |
| | | -------------------------- | |
| (=) Subtotal: | = | $574,044 | |
| (+) Senior Appraised Value: | + | $0 | |
| (+) Non-Senior Appraised Value: | + | $574,044 | |
| | | -------------------------- | |
| (=) Total Appraised Value: | = | $574,044 | |
| (–) Senior Exemption Loss: | – | $0 | |
| (–) Exemption Loss: | – | $0 | |
| | | -------------------------- | |
| (=) Taxable Value: | = | $574,044 | |
Taxing Jurisdiction
| Owner: | HAMMER, RUTH M | | |
| % Ownership: | 100.0000000000% | | |
| Total Value: | $574,044 | | |
| Tax Area: | 300 - APPRAISER-Cpvl Schl Dist, in Cpvl |
| CF | Conservation Futures | 0.0313996660 | $574,044 | $574,044 | $18.02 | | |
| CEM2 | Cemetery #2 | 0.0092609791 | $574,044 | $574,044 | $5.32 | | |
| COUP | City: Town of Coupeville | 0.8188663519 | $574,044 | $574,044 | $470.07 | | |
| FIRE5 | Fire & Rescue Dist #5 C Whidbey GEN | 1.1892169230 | $574,044 | $574,044 | $682.66 | | |
| FIRE5BOND | Fire & Rescue Dist #5 C Whidbey BOND | 0.1394359503 | $574,044 | $574,044 | $80.04 | | |
| HOBOND | Hospital BOND | 0.1893405597 | $574,044 | $574,044 | $108.69 | | |
| HOGEN | Hospital GEN | 0.3848777722 | $574,044 | $574,044 | $220.94 | | |
| CE | County Current Expense | 0.3674210519 | $574,044 | $574,044 | $210.92 | | |
| ISLANDEMS | Hospital GEN (EMS) | 0.4952018576 | $574,044 | $574,044 | $284.27 | | |
| LIB | Library Sno-Isle GEN | 0.3039084203 | $574,044 | $574,044 | $174.46 | | |
| LIBCAP | Library Sno-Isle BOND (Cap Fac Imp Area) | 0.0528562629 | $574,044 | $574,044 | $30.34 | | |
| POCOUP | Port of Coupeville GEN | 0.1065226063 | $574,044 | $574,044 | $61.15 | | |
| POCOUPIDD | Port of Coupeville IDD | 0.3353038577 | $574,044 | $574,044 | $192.48 | | |
| COUPSDTECH | School 204 CP (TECH) | 0.1215123397 | $574,044 | $574,044 | $69.75 | | |
| SCH204MO | School 204 Enrichment | 0.6416662518 | $574,044 | $574,044 | $368.34 | | |
| ST | State School | 1.4761226122 | $574,044 | $574,044 | $847.36 | | |
| ST2 | State School Part 2 | 0.7953803475 | $574,044 | $574,044 | $456.58 | | |
| | Total Tax Rate: | 7.4582938101 | | | | | |
| | | | | Taxes w/Current Exemptions: | $4,281.39 | | |
| | | | | Taxes w/o Exemptions: | $4,281.39 | | |
Improvement / Building
| Improvement #1: | RESIDENTIAL | State Code: | Y | 1554.0 sqft | Value: | $254,044 |
| Bathrooms: | 2 | Bedrooms: | 3 | | Ceiling: | DRY WALL SPRAYED | Exterior Wall/Cover: | CEMENT FIBER | | Floor Covering: | CARPET/VINYL 80-20 | Floor Structure: | WOOD W/SUBFLOOR | | Foundation: | CONCRETE | Heating: | BASEBOARD ELECTRIC | | Interior Finish: | DRYWALL PAINT | Plumbing Fixture Cnt: | 11 | | Roof Slope: | 4" IN 12" | Roof Structure/Cover: | CJ ASPHALT |
|
| | Type | Description | Class CD | Sub Class CD | Year Built | Area |
| | BAS | BASE/MAIN FLOOR | 3 | 0 | 1979 | 898.0 |
| | DWN | DOWNSTAIRS LIVING AREA | 3 | 0 | 1979 | 656.0 |
| | AGR | ATTACHED GARAGE | 3 | 0 | 1979 | 360.0 |
| | UTY | STORAGE/UTILITY | 3 | 0 | 1979 | 108.0 |
| | OWP | OPEN WOOD PORCH W/STEPS | 3 | 0 | 1979 | 52.0 |
| | OWR | OPEN WOOD PORCH W/STEPS/ROOF | 3 | 0 | 1979 | 216.0 |
Sketch
| No sketches available for this property. |
Property Image
Land
| 1 | HS | HOMESITE | 0.1446 | 6300.00 | 0.00 | 0.00 | 1.00 | $320,000 | $0 |
Roll Value History
| 2026 | N/A | N/A | N/A | N/A | N/A |
| 2025 | $254,044 | $320,000 | $0 | $574,044 | $574,044 |
| 2024 | $255,997 | $300,000 | $0 | $555,997 | $555,997 |
| 2023 | $259,355 | $300,000 | $0 | $559,355 | $559,355 |
| 2022 | $237,883 | $230,000 | $0 | $467,883 | $467,883 |
| 2021 | $209,501 | $180,000 | $0 | $389,501 | $389,501 |
| 2020 | $203,937 | $160,000 | $0 | $363,937 | $363,937 |
| 2019 | $147,270 | $200,000 | $0 | $347,270 | $347,270 |
| 2018 | $121,255 | $180,000 | $0 | $301,255 | $301,255 |
| 2017 | $121,933 | $155,000 | $0 | $276,933 | $276,933 |
| 2016 | $123,626 | $135,000 | $0 | $258,626 | $258,626 |
| 2015 | $125,320 | $100,000 | $0 | $225,320 | $225,320 |
| 2014 | $127,014 | $85,000 | $0 | $212,014 | $212,014 |
| 2013 | $128,705 | $85,000 | $0 | $213,705 | $213,705 |
| 2012 | $131,160 | $90,950 | $0 | $222,110 | $222,110 |
| 2011 | $132,854 | $107,000 | $0 | $239,854 | $239,854 |
| 2010 | $136,677 | $107,000 | $0 | $243,677 | $243,677 |
| 2009 | $142,469 | $125,000 | $0 | $267,469 | $267,469 |
| 2008 | $144,244 | $145,000 | $0 | $289,244 | $289,244 |
| 2007 | $146,034 | $145,000 | $0 | $291,034 | $291,034 |
Deed and Sales History
| 1 | 12/19/2023 | CCOMPROP | Create Community Property | HAMMER, CHARLES F | HAMMER, RUTH M | | | $0.00 | 58797 | 4567815 |
| 2 | 08/01/1981 | TRUSTEED | Trustee's Deed | SCOTT, ROBERT W | HAMMER, CHARLES F | | | $62,500.00 | 12705 | 387347 |
| 3 | 04/01/1980 | CD | DNU - Correction Deed | SCOTT, WILFRED E | SCOTT, ROBERT W | | | $0.00 | 1158 | 367370 |
| 4 | 03/01/1979 | OTHER | Other - Misc. Documents | Unknown | SCOTT, WILFRED E | | | $7,000.00 | 91303 | 349585 |
Payout Agreement
| No payout information available.. |