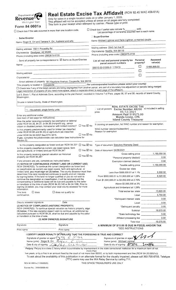
Property
Account |
| Property ID: | 170479 | Abbreviated Legal Description: | ADMIRALS COVE LOT 5 BLK 1 |
| Geographic ID: | S6010-00-01005-0 | Agent Code: | |
| Type: | Real | | |
| Tax Area: | 390 - APPRAISER-Cpvl Schl Dist, Special Dist, improved & less than 1 acre | Land Use Code | 11 |
| Open Space: | N | DFL | N |
| Historic Property: | N | Remodel Property: | N |
| Multi-Family Redevelopment: | N | | |
| Township: | | Section: | |
| Range: | |
Location |
| Address: | 181 KEYSTONE AVE COUPEVILLE, WA 98239 | Mapsco: | |
| Neighborhood: | Cycle 2 | Map ID: | 81 |
| Neighborhood CD: | 2 |
Owner |
| Name: | LIGHTNER, MICHAEL | Owner ID: | 299323 |
| Mailing Address: | KAILA LIGHTNER 2543 1ST AVE W SEATTLE, WA 98119 | % Ownership: | 100.0000000000% |
| | | Exemptions: | |
Taxes and Assessment Details
Values
| (+) Improvement Homesite Value: | + | $0 | |
| (+) Improvement Non-Homesite Value: | + | $286,013 | |
| (+) Land Homesite Value: | + | $0 | |
| (+) Land Non-Homesite Value: | + | $750,000 | |
| (+) Curr Use (HS): | + | $0 | $0 |
| (+) Curr Use (NHS): | + | $0 | $0 |
| | | -------------------------- | |
| (=) Market Value: | = | $1,036,013 | |
| (–) Productivity Loss: | – | $0 | |
| | | -------------------------- | |
| (=) Subtotal: | = | $1,036,013 | |
| (+) Senior Appraised Value: | + | $0 | |
| (+) Non-Senior Appraised Value: | + | $1,036,013 | |
| | | -------------------------- | |
| (=) Total Appraised Value: | = | $1,036,013 | |
| (–) Senior Exemption Loss: | – | $0 | |
| (–) Exemption Loss: | – | $0 | |
| | | -------------------------- | |
| (=) Taxable Value: | = | $1,036,013 | |
Taxing Jurisdiction
| Owner: | LIGHTNER, MICHAEL | | |
| % Ownership: | 100.0000000000% | | |
| Total Value: | $1,036,013 | | |
| Tax Area: | 390 - APPRAISER-Cpvl Schl Dist, Special Dist, improved & less than 1 acre |
| CF | Conservation Futures | 0.0313996660 | $1,036,013 | $1,036,013 | $32.53 | | |
| CEM2 | Cemetery #2 | 0.0092609791 | $1,036,013 | $1,036,013 | $9.59 | | |
| FIRE5 | Fire & Rescue Dist #5 C Whidbey GEN | 1.1892169230 | $1,036,013 | $1,036,013 | $1,232.04 | | |
| FIRE5BOND | Fire & Rescue Dist #5 C Whidbey BOND | 0.1394359503 | $1,036,013 | $1,036,013 | $144.46 | | |
| HOBOND | Hospital BOND | 0.1893405597 | $1,036,013 | $1,036,013 | $196.16 | | |
| HOGEN | Hospital GEN | 0.3848777722 | $1,036,013 | $1,036,013 | $398.74 | | |
| CE | County Current Expense | 0.3674210519 | $1,036,013 | $1,036,013 | $380.65 | | |
| CR | County Roads | 0.4614296361 | $1,036,013 | $1,036,013 | $478.05 | | |
| ISLANDEMS | Hospital GEN (EMS) | 0.4952018576 | $1,036,013 | $1,036,013 | $513.04 | | |
| LIB | Library Sno-Isle GEN | 0.3039084203 | $1,036,013 | $1,036,013 | $314.85 | | |
| LIBCAP | Library Sno-Isle BOND (Cap Fac Imp Area) | 0.0528562629 | $1,036,013 | $1,036,013 | $54.76 | | |
| POCOUP | Port of Coupeville GEN | 0.1065226063 | $1,036,013 | $1,036,013 | $110.36 | | |
| POCOUPIDD | Port of Coupeville IDD | 0.3353038577 | $1,036,013 | $1,036,013 | $347.38 | | |
| COUPSDTECH | School 204 CP (TECH) | 0.1215123397 | $1,036,013 | $1,036,013 | $125.89 | | |
| SCH204MO | School 204 Enrichment | 0.6416662518 | $1,036,013 | $1,036,013 | $664.77 | | |
| ST | State School | 1.4761226122 | $1,036,013 | $1,036,013 | $1,529.28 | | |
| ST2 | State School Part 2 | 0.7953803475 | $1,036,013 | $1,036,013 | $824.02 | | |
| | Total Tax Rate: | 7.1008570943 | | | | | |
| | | | | Taxes w/Current Exemptions: | $7,356.57 | | |
| | | | | Taxes w/o Exemptions: | $7,356.57 | | |
Improvement / Building
| Improvement #1: | RESIDENTIAL | State Code: | Y | 1232.0 sqft | Value: | $286,013 |
| Bathrooms: | 2 | Bedrooms: | 2 | | Ceiling: | TONGUE & GROOVE | Exterior Wall/Cover: | WOOD SIDING | | Floor Covering: | CARPET/VINYL 20-80 | Floor Structure: | WOOD W/SUBFLOOR | | Foundation: | CONCRETE | Heating: | BASEBOARD ELECTRIC | | Interior Finish: | DRYWALL PAINT | Plumbing Fixture Cnt: | 9 | | Roof Slope: | 5" IN 12" | Roof Structure/Cover: | CJ ASPHALT |
|
| | Type | Description | Class CD | Sub Class CD | Year Built | Area |
| | BAS | BASE/MAIN FLOOR | 3 | 0 | 1967 | 1232.0 |
| | AGR | ATTACHED GARAGE | 3 | 0 | 1967 | 528.0 |
| | OWP | OPEN WOOD PORCH W/STEPS | 3 | 0 | 1967 | 308.0 |
| | OWP | OPEN WOOD PORCH W/STEPS | 3 | 0 | 1967 | 506.0 |
Sketch
Property Image
Land
| 1 | LB | LOW BANK | 0.1700 | 7405.20 | 60.00 | 0.00 | 1.00 | $750,000 | $0 |
Roll Value History
| 2026 | N/A | N/A | N/A | N/A | N/A |
| 2025 | $286,013 | $750,000 | $0 | $1,036,013 | $1,036,013 |
| 2024 | $295,180 | $725,000 | $0 | $1,020,180 | $1,020,180 |
| 2023 | $298,602 | $700,000 | $0 | $998,602 | $998,602 |
| 2022 | $273,496 | $600,000 | $0 | $873,496 | $873,496 |
| 2021 | $221,656 | $450,000 | $0 | $671,656 | $671,656 |
| 2020 | $215,868 | $450,000 | $0 | $665,868 | $665,868 |
| 2019 | $154,880 | $450,000 | $0 | $604,880 | $604,880 |
| 2018 | $144,433 | $450,000 | $0 | $594,433 | $594,433 |
| 2017 | $145,341 | $450,000 | $0 | $595,341 | $595,341 |
| 2016 | $147,157 | $450,000 | $0 | $597,157 | $597,157 |
| 2015 | $148,975 | $400,000 | $0 | $548,975 | $548,975 |
| 2014 | $150,792 | $400,000 | $0 | $550,792 | $550,792 |
| 2013 | $152,608 | $400,000 | $0 | $552,608 | $552,608 |
| 2012 | $143,737 | $420,858 | $0 | $564,595 | $564,595 |
| 2011 | $145,490 | $420,858 | $0 | $566,348 | $566,348 |
| 2010 | $151,743 | $420,858 | $0 | $572,601 | $572,601 |
| 2009 | $158,233 | $482,040 | $0 | $640,273 | $640,273 |
| 2008 | $160,103 | $556,200 | $0 | $716,303 | $716,303 |
| 2007 | $161,974 | $426,420 | $0 | $588,394 | $588,394 |
Deed and Sales History
| 1 | 04/29/2021 | WD | Warranty Deed | ORR, ROGER B | LIGHTNER, MICHAEL | | | $1,150,000.00 | 48200 | 4518987 |
| 2 | 07/24/2006 | WD | Warranty Deed | BREUNER, RICHARD JOSEPH | ORR, ROGER B | | | $613,500.00 | 63269 | 4177493 |
| 3 | 06/30/2006 | DECREE | Divorce Decree/Legal Separation | BREUNER, RICHARD JOSEPH | BREUNER, RICHARD JOSEPH | | | $0.00 | 62851 | 4174801 |
| 4 | 09/06/2000 | WD | Warranty Deed | YATES, REGINE F | BREUNER, RICHARD JOSEPH | | | $300,000.00 | 3457 | 20016000 |
| 5 | 01/01/1996 | QCD | Quit Claim Deed | YATES, REGINE F | YATES, REGINE F | | | $0.00 | 60238 | 96001216 |
| 6 | 08/01/1984 | WD | Warranty Deed | KNELL, DORIS C | YATES, REGINE F | | | $100,000.00 | 42427 | 84002072 |
| 7 | 07/01/1984 | WD | Warranty Deed | TREFFINGER, FREDERIC M | KNELL, DORIS C | | | $0.00 | 41948 | 84000256 |
| 8 | 01/01/1900 | OTHER | Other - Misc. Documents | Unknown | TREFFINGER, FREDERIC M | | | $0.00 | 0 | 0 |
Payout Agreement
| No payout information available.. |