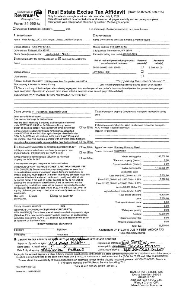
Property
Account |
| Property ID: | 170521 | Abbreviated Legal Description: | ADMIRALS COVE LOT 10 BLK 1 |
| Geographic ID: | S6010-00-01010-0 | Agent Code: | |
| Type: | Real | | |
| Tax Area: | 390 - APPRAISER-Cpvl Schl Dist, Special Dist, improved & less than 1 acre | Land Use Code | 11 |
| Open Space: | N | DFL | N |
| Historic Property: | N | Remodel Property: | N |
| Multi-Family Redevelopment: | N | | |
| Township: | | Section: | |
| Range: | |
Location |
| Address: | 159 KEYSTONE AVE COUPEVILLE, WA 98239 | Mapsco: | |
| Neighborhood: | Cycle 2 | Map ID: | 81 |
| Neighborhood CD: | 2 |
Owner |
| Name: | SIMONE, DINO | Owner ID: | 305371 |
| Mailing Address: | STACI SIMONE 911 259TH CT NE SAMMAMISH, WA 98074 | % Ownership: | 100.0000000000% |
| | | Exemptions: | |
Taxes and Assessment Details
Values
| (+) Improvement Homesite Value: | + | $0 | |
| (+) Improvement Non-Homesite Value: | + | $184,722 | |
| (+) Land Homesite Value: | + | $0 | |
| (+) Land Non-Homesite Value: | + | $750,000 | |
| (+) Curr Use (HS): | + | $0 | $0 |
| (+) Curr Use (NHS): | + | $0 | $0 |
| | | -------------------------- | |
| (=) Market Value: | = | $934,722 | |
| (–) Productivity Loss: | – | $0 | |
| | | -------------------------- | |
| (=) Subtotal: | = | $934,722 | |
| (+) Senior Appraised Value: | + | $0 | |
| (+) Non-Senior Appraised Value: | + | $934,722 | |
| | | -------------------------- | |
| (=) Total Appraised Value: | = | $934,722 | |
| (–) Senior Exemption Loss: | – | $0 | |
| (–) Exemption Loss: | – | $0 | |
| | | -------------------------- | |
| (=) Taxable Value: | = | $934,722 | |
Taxing Jurisdiction
| Owner: | SIMONE, DINO | | |
| % Ownership: | 100.0000000000% | | |
| Total Value: | $934,722 | | |
| Tax Area: | 390 - APPRAISER-Cpvl Schl Dist, Special Dist, improved & less than 1 acre |
| CF | Conservation Futures | 0.0313996660 | $934,722 | $934,722 | $29.35 | | |
| CEM2 | Cemetery #2 | 0.0092609791 | $934,722 | $934,722 | $8.66 | | |
| FIRE5 | Fire & Rescue Dist #5 C Whidbey GEN | 1.1892169230 | $934,722 | $934,722 | $1,111.59 | | |
| FIRE5BOND | Fire & Rescue Dist #5 C Whidbey BOND | 0.1394359503 | $934,722 | $934,722 | $130.33 | | |
| HOBOND | Hospital BOND | 0.1893405597 | $934,722 | $934,722 | $176.98 | | |
| HOGEN | Hospital GEN | 0.3848777722 | $934,722 | $934,722 | $359.75 | | |
| CE | County Current Expense | 0.3674210519 | $934,722 | $934,722 | $343.44 | | |
| CR | County Roads | 0.4614296361 | $934,722 | $934,722 | $431.31 | | |
| ISLANDEMS | Hospital GEN (EMS) | 0.4952018576 | $934,722 | $934,722 | $462.88 | | |
| LIB | Library Sno-Isle GEN | 0.3039084203 | $934,722 | $934,722 | $284.07 | | |
| LIBCAP | Library Sno-Isle BOND (Cap Fac Imp Area) | 0.0528562629 | $934,722 | $934,722 | $49.41 | | |
| POCOUP | Port of Coupeville GEN | 0.1065226063 | $934,722 | $934,722 | $99.57 | | |
| POCOUPIDD | Port of Coupeville IDD | 0.3353038577 | $934,722 | $934,722 | $313.42 | | |
| COUPSDTECH | School 204 CP (TECH) | 0.1215123397 | $934,722 | $934,722 | $113.58 | | |
| SCH204MO | School 204 Enrichment | 0.6416662518 | $934,722 | $934,722 | $599.78 | | |
| ST | State School | 1.4761226122 | $934,722 | $934,722 | $1,379.76 | | |
| ST2 | State School Part 2 | 0.7953803475 | $934,722 | $934,722 | $743.46 | | |
| | Total Tax Rate: | 7.1008570943 | | | | | |
| | | | | Taxes w/Current Exemptions: | $6,637.34 | | |
| | | | | Taxes w/o Exemptions: | $6,637.34 | | |
Improvement / Building
| Improvement #1: | RESIDENTIAL | State Code: | Y | 1092.0 sqft | Value: | $184,722 |
| Bathrooms: | 1 | Bedrooms: | 3 | | Ceiling: | DRY WALL SPRAYED | Exterior Wall/Cover: | PLY/HARDBOARD T-111 | | Floor Covering: | CARPET/VINYL 80-20 | Floor Structure: | WOOD W/SUBFLOOR | | Foundation: | CONCRETE | Heating: | FHA ELECTRIC | | Interior Finish: | DRYWALL PAINT | Plumbing Fixture Cnt: | 6 | | Roof Slope: | 4" IN 12" | Roof Structure/Cover: | CJ ALUMINIUM HEAVY |
|
| | Type | Description | Class CD | Sub Class CD | Year Built | Area |
| | BAS | BASE/MAIN FLOOR | 3 | 0 | 1964 | 1092.0 |
| | AGR | ATTACHED GARAGE | 3 | 0 | 1964 | 440.0 |
| | OWP | OPEN WOOD PORCH W/STEPS | 3 | 0 | 1964 | 168.0 |
Sketch
Property Image
Land
| 1 | LB | LOW BANK | 0.1700 | 7405.20 | 60.00 | 0.00 | 1.00 | $750,000 | $0 |
Roll Value History
| 2026 | N/A | N/A | N/A | N/A | N/A |
| 2025 | $184,722 | $750,000 | $0 | $934,722 | $934,722 |
| 2024 | $187,176 | $725,000 | $0 | $912,176 | $912,176 |
| 2023 | $189,631 | $700,000 | $0 | $889,631 | $889,631 |
| 2022 | $169,495 | $600,000 | $0 | $769,495 | $769,495 |
| 2021 | $149,314 | $450,000 | $0 | $599,314 | $599,314 |
| 2020 | $145,727 | $450,000 | $0 | $595,727 | $595,727 |
| 2019 | $104,253 | $450,000 | $0 | $554,253 | $554,253 |
| 2018 | $77,287 | $450,000 | $0 | $527,287 | $527,287 |
| 2017 | $77,914 | $450,000 | $0 | $527,914 | $527,914 |
| 2016 | $79,171 | $450,000 | $0 | $529,171 | $529,171 |
| 2015 | $80,428 | $400,000 | $0 | $480,428 | $480,428 |
| 2014 | $81,684 | $400,000 | $0 | $481,684 | $481,684 |
| 2013 | $82,941 | $400,000 | $0 | $482,941 | $482,941 |
| 2012 | $84,197 | $420,858 | $0 | $505,055 | $505,055 |
| 2011 | $85,454 | $420,858 | $0 | $506,312 | $506,312 |
| 2010 | $91,998 | $420,858 | $0 | $512,856 | $512,856 |
| 2009 | $96,008 | $482,040 | $0 | $578,048 | $578,048 |
| 2008 | $97,267 | $556,200 | $0 | $653,467 | $653,467 |
| 2007 | $98,526 | $426,420 | $0 | $524,946 | $524,946 |
Deed and Sales History
| 1 | 08/02/2022 | WD | Warranty Deed | WITTE FAMILY LLC | SIMONE, DINO | | | $1,150,000.00 | 54065 | 4549292 |
| 2 | 02/01/2012 | PRD | Personal Representatives Deed | WITTE, HERMAN CALVERT | WITTE FAMILY LLC | | | $0.00 | 7407 | 4313840 |
| 3 | 03/29/2010 | QCD | Quit Claim Deed | WITTE, H CALVERT | WITTE, HERMAN CALVERT | | | $0.00 | 881 | 4272232 |
| 4 | 08/12/2009 | OTHER | Other - Misc. Documents | WITTE, H C | WITTE, H CALVERT | | | $0.00 | 91349 | 0 |
| 5 | 09/01/1989 | WD | Warranty Deed | CURTIS, DONALD C | WITTE, H C | | | $149,000.00 | 94189 | 89013796 |
| 6 | 08/01/1988 | WD | Warranty Deed | HAYS, JACK E | CURTIS, DONALD C | | | $100,000.00 | 82878 | 88010752 |
| 7 | 01/01/1900 | OTHER | Other - Misc. Documents | Unknown | HAYS, JACK E | | | $5,750.00 | 0 | 0 |
Payout Agreement
| No payout information available.. |