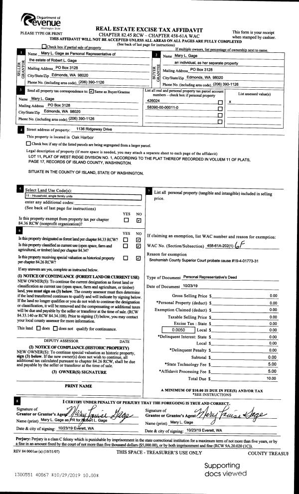
Property
Account |
| Property ID: | 170638 | Abbreviated Legal Description: | ADMIRALS COVE LOT 21 BLK 1 |
| Geographic ID: | S6010-00-01021-0 | Agent Code: | |
| Type: | Real | | |
| Tax Area: | 390 - APPRAISER-Cpvl Schl Dist, Special Dist, improved & less than 1 acre | Land Use Code | 11 |
| Open Space: | N | DFL | N |
| Historic Property: | N | Remodel Property: | N |
| Multi-Family Redevelopment: | N | | |
| Township: | | Section: | |
| Range: | |
Location |
| Address: | 119 KEYSTONE AVE COUPEVILLE, WA 98239 | Mapsco: | |
| Neighborhood: | Cycle 2 | Map ID: | 81 |
| Neighborhood CD: | 2 |
Owner |
| Name: | PFOUTS JTWROS, VICKI A | Owner ID: | 305874 |
| Mailing Address: | JAMES MARK PFOUTS JTWROS 20631 BOTHELL EVERETT HWY SUITE H BOTHELL, WA 98012 | % Ownership: | 100.0000000000% |
| | | Exemptions: | |
Taxes and Assessment Details
Values
| (+) Improvement Homesite Value: | + | $0 | |
| (+) Improvement Non-Homesite Value: | + | $375,011 | |
| (+) Land Homesite Value: | + | $0 | |
| (+) Land Non-Homesite Value: | + | $750,000 | |
| (+) Curr Use (HS): | + | $0 | $0 |
| (+) Curr Use (NHS): | + | $0 | $0 |
| | | -------------------------- | |
| (=) Market Value: | = | $1,125,011 | |
| (–) Productivity Loss: | – | $0 | |
| | | -------------------------- | |
| (=) Subtotal: | = | $1,125,011 | |
| (+) Senior Appraised Value: | + | $0 | |
| (+) Non-Senior Appraised Value: | + | $1,125,011 | |
| | | -------------------------- | |
| (=) Total Appraised Value: | = | $1,125,011 | |
| (–) Senior Exemption Loss: | – | $0 | |
| (–) Exemption Loss: | – | $0 | |
| | | -------------------------- | |
| (=) Taxable Value: | = | $1,125,011 | |
Taxing Jurisdiction
| Owner: | PFOUTS JTWROS, VICKI A | | |
| % Ownership: | 100.0000000000% | | |
| Total Value: | $1,125,011 | | |
| Tax Area: | 390 - APPRAISER-Cpvl Schl Dist, Special Dist, improved & less than 1 acre |
| CF | Conservation Futures | 0.0313996660 | $1,125,011 | $1,125,011 | $35.32 | | |
| CEM2 | Cemetery #2 | 0.0092609791 | $1,125,011 | $1,125,011 | $10.42 | | |
| FIRE5 | Fire & Rescue Dist #5 C Whidbey GEN | 1.1892169230 | $1,125,011 | $1,125,011 | $1,337.88 | | |
| FIRE5BOND | Fire & Rescue Dist #5 C Whidbey BOND | 0.1394359503 | $1,125,011 | $1,125,011 | $156.87 | | |
| HOBOND | Hospital BOND | 0.1893405597 | $1,125,011 | $1,125,011 | $213.01 | | |
| HOGEN | Hospital GEN | 0.3848777722 | $1,125,011 | $1,125,011 | $432.99 | | |
| CE | County Current Expense | 0.3674210519 | $1,125,011 | $1,125,011 | $413.35 | | |
| CR | County Roads | 0.4614296361 | $1,125,011 | $1,125,011 | $519.11 | | |
| ISLANDEMS | Hospital GEN (EMS) | 0.4952018576 | $1,125,011 | $1,125,011 | $557.11 | | |
| LIB | Library Sno-Isle GEN | 0.3039084203 | $1,125,011 | $1,125,011 | $341.90 | | |
| LIBCAP | Library Sno-Isle BOND (Cap Fac Imp Area) | 0.0528562629 | $1,125,011 | $1,125,011 | $59.46 | | |
| POCOUP | Port of Coupeville GEN | 0.1065226063 | $1,125,011 | $1,125,011 | $119.84 | | |
| POCOUPIDD | Port of Coupeville IDD | 0.3353038577 | $1,125,011 | $1,125,011 | $377.22 | | |
| COUPSDTECH | School 204 CP (TECH) | 0.1215123397 | $1,125,011 | $1,125,011 | $136.70 | | |
| SCH204MO | School 204 Enrichment | 0.6416662518 | $1,125,011 | $1,125,011 | $721.88 | | |
| ST | State School | 1.4761226122 | $1,125,011 | $1,125,011 | $1,660.65 | | |
| ST2 | State School Part 2 | 0.7953803475 | $1,125,011 | $1,125,011 | $894.81 | | |
| | Total Tax Rate: | 7.1008570943 | | | | | |
| | | | | Taxes w/Current Exemptions: | $7,988.52 | | |
| | | | | Taxes w/o Exemptions: | $7,988.52 | | |
Improvement / Building
| Improvement #1: | RESIDENTIAL | State Code: | Y | 1478.0 sqft | Value: | $375,011 |
| Bathrooms: | 2 | Bedrooms: | 3 | | Ceiling: | TONGUE & GROOVE | Cooling: | HEAT PUMP/CONV/V | | Exterior Wall/Cover: | VINYL | Floor Covering: | CARPET/VINYL 80-20 | | Floor Structure: | WOOD W/SUBFLOOR | Foundation: | CONCRETE | | Interior Finish: | DRYWALL PAINT | Plumbing Fixture Cnt: | 9 | | Roof Slope: | 4" IN 12" | Roof Structure/Cover: | CJ ALUMINIUM HEAVY |
|
| | Type | Description | Class CD | Sub Class CD | Year Built | Area |
| | BAS | BASE/MAIN FLOOR | 4 | 0 | 1967 | 1478.0 |
| | BIG | BUILT IN GARAGE | 4 | 0 | 1967 | 336.0 |
| | OWP | OPEN WOOD PORCH W/STEPS | 4 | 0 | 1967 | 862.0 |
Sketch
Property Image
Land
| 1 | LB | LOW BANK | 0.1700 | 7405.20 | 65.00 | 0.00 | 1.00 | $750,000 | $0 |
Roll Value History
| 2026 | N/A | N/A | N/A | N/A | N/A |
| 2025 | $375,011 | $750,000 | $0 | $1,125,011 | $1,125,011 |
| 2024 | $342,470 | $725,000 | $0 | $1,067,470 | $1,067,470 |
| 2023 | $346,441 | $780,000 | $0 | $1,126,441 | $1,126,441 |
| 2022 | $286,102 | $650,000 | $0 | $936,102 | $936,102 |
| 2021 | $251,808 | $450,000 | $0 | $701,808 | $701,808 |
| 2020 | $245,247 | $450,000 | $0 | $695,247 | $695,247 |
| 2019 | $170,825 | $450,000 | $0 | $620,825 | $620,825 |
| 2018 | $165,044 | $450,000 | $0 | $615,044 | $615,044 |
| 2017 | $166,095 | $450,000 | $0 | $616,095 | $616,095 |
| 2016 | $124,921 | $450,000 | $0 | $574,921 | $574,921 |
| 2015 | $126,680 | $400,000 | $0 | $526,680 | $526,680 |
| 2014 | $128,439 | $400,000 | $0 | $528,439 | $528,439 |
| 2013 | $130,198 | $451,370 | $0 | $581,568 | $581,568 |
| 2012 | $108,345 | $451,370 | $0 | $559,715 | $559,715 |
| 2011 | $110,087 | $451,370 | $0 | $561,457 | $561,457 |
| 2010 | $123,082 | $451,370 | $0 | $574,452 | $574,452 |
| 2009 | $126,762 | $516,988 | $0 | $643,750 | $643,750 |
| 2008 | $128,541 | $596,524 | $0 | $725,065 | $725,065 |
| 2007 | $130,321 | $457,335 | $0 | $587,656 | $587,656 |
Deed and Sales History
| 1 | 08/24/2022 | WD | Warranty Deed | MURRAY, RICHARD | PFOUTS JTWROS, VICKI A | | | $1,450,000.00 | 54328 | 4550377 |
| 2 | 11/21/2019 | WD | Warranty Deed | SAVEREUX, MARC A | MURRAY, RICHARD | | | $795,000.00 | 41227 | 4476275 |
| 3 | 10/17/2016 | WD | Warranty Deed | HARMON, MARK C | SAVEREUX, MARC A | | | $650,000.00 | 26673 | 4410093 |
| 4 | 07/14/1999 | WD | Warranty Deed | HARMON, KENT L | HARMON, MARC C | | | $126,728.00 | 92987 | 99017617 |
| 5 | 03/04/1999 | PRD | Personal Representatives Deed | RORRER, LILA W | HARMON, KENT L | | | $0.00 | 90906 | 99006317 |
| 6 | 07/01/1994 | QCD | Quit Claim Deed | RORRER, LILA W | RORRER, LILA W | | | $0.00 | 43237 | 94017408 |
| 7 | 09/01/1979 | CD | DNU - Correction Deed | HARMON, CRAIG A | RORRER, LILA W | | | $0.00 | 25 | 0 |
Payout Agreement
| No payout information available.. |