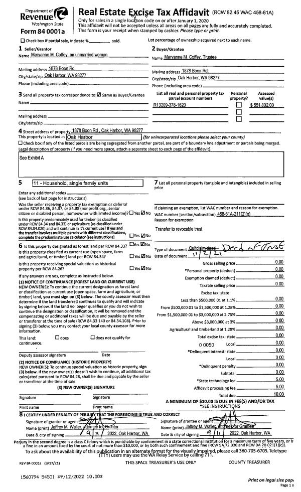
Property
Account |
| Property ID: | 17190 | Abbreviated Legal Description: | 51 - IN SE NW: BG NWCR SENW S364.30'E627.84'N364.41' W625.82'TPB EX RD EX PT TO IS CO AF# 4436429 |
| Geographic ID: | R13209-378-1620 | Agent Code: | |
| Type: | Real | | |
| Tax Area: | 112 - APPRAISER-OH Schl Dist, outside OH, improved, greater than 1 acre | Land Use Code | 11 |
| Open Space: | N | DFL | N |
| Historic Property: | N | Remodel Property: | N |
| Multi-Family Redevelopment: | N | | |
| Township: | 32 | Section: | 09 |
| Range: | R1 |
Location |
| Address: | 1878 BOON RD OAK HARBOR, WA 98277 | Mapsco: | |
| Neighborhood: | Cycle 1 | Map ID: | 114 |
| Neighborhood CD: | 1 |
Owner |
| Name: | COFFEY TTEE, MARYANNE M. | Owner ID: | 305960 |
| Mailing Address: | SELENA A. COFFEY TTEE 1878 BOON RD OAK HARBOR, WA 98277 | % Ownership: | 100.0000000000% |
| | | Exemptions: | |
Taxes and Assessment Details
Values
| (+) Improvement Homesite Value: | + | $0 | |
| (+) Improvement Non-Homesite Value: | + | $357,518 | |
| (+) Land Homesite Value: | + | $0 | |
| (+) Land Non-Homesite Value: | + | $290,000 | |
| (+) Curr Use (HS): | + | $0 | $0 |
| (+) Curr Use (NHS): | + | $0 | $0 |
| | | -------------------------- | |
| (=) Market Value: | = | $647,518 | |
| (–) Productivity Loss: | – | $0 | |
| | | -------------------------- | |
| (=) Subtotal: | = | $647,518 | |
| (+) Senior Appraised Value: | + | $0 | |
| (+) Non-Senior Appraised Value: | + | $647,518 | |
| | | -------------------------- | |
| (=) Total Appraised Value: | = | $647,518 | |
| (–) Senior Exemption Loss: | – | $0 | |
| (–) Exemption Loss: | – | $0 | |
| | | -------------------------- | |
| (=) Taxable Value: | = | $647,518 | |
Taxing Jurisdiction
| Owner: | COFFEY TTEE, MARYANNE M. | | |
| % Ownership: | 100.0000000000% | | |
| Total Value: | $647,518 | | |
| Tax Area: | 112 - APPRAISER-OH Schl Dist, outside OH, improved, greater than 1 acre |
| CF | Conservation Futures | 0.0313996660 | $647,518 | $647,518 | $20.33 | | |
| CEM1 | Cemetery #1 | 0.0040018856 | $647,518 | $647,518 | $2.59 | | |
| FIRE2 | Fire & Rescue Dist #2 N Whidbey GEN | 0.5381486274 | $647,518 | $647,518 | $348.46 | | |
| HOBOND | Hospital BOND | 0.1893405597 | $647,518 | $647,518 | $122.60 | | |
| HOGEN | Hospital GEN | 0.3848777722 | $647,518 | $647,518 | $249.22 | | |
| CE | County Current Expense | 0.3674210519 | $647,518 | $647,518 | $237.91 | | |
| CR | County Roads | 0.4614296361 | $647,518 | $647,518 | $298.78 | | |
| ISLANDEMS | Hospital GEN (EMS) | 0.4952018576 | $647,518 | $647,518 | $320.65 | | |
| LIB | Library Sno-Isle GEN | 0.3039084203 | $647,518 | $647,518 | $196.79 | | |
| NWHIDPRMT | P & R N Whidbey GEN | 0.1990272349 | $647,518 | $647,518 | $128.87 | | |
| SCH201MO | School 201 Enrichment | 2.3851112745 | $647,518 | $647,518 | $1,544.40 | | |
| ST | State School | 1.4761226122 | $647,518 | $647,518 | $955.82 | | |
| ST2 | State School Part 2 | 0.7953803475 | $647,518 | $647,518 | $515.02 | | |
| | Total Tax Rate: | 7.6313709459 | | | | | |
| | | | | Taxes w/Current Exemptions: | $4,941.44 | | |
| | | | | Taxes w/o Exemptions: | $4,941.44 | | |
Improvement / Building
| Improvement #1: | RESIDENTIAL | State Code: | Y | 2530.0 sqft | Value: | $357,518 |
| Bathrooms: | 2.5 | Bedrooms: | 3 | | Ceiling: | DRYWALL PAINTED | Exterior Wall/Cover: | CEMENT FIBER | | Floor Covering: | CARPET/VINYL 80-20 | Floor Structure: | WOOD W/SUBFLOOR | | Foundation: | CONCRETE | Heating: | FHA GAS | | Interior Finish: | DRYWALL PAINT | Plumbing Fixture Cnt: | 12 | | Roof Slope: | 6" IN 12" | Roof Structure/Cover: | CJ ASPHALT |
|
| | Type | Description | Class CD | Sub Class CD | Year Built | Area |
| | BAS | BASE/MAIN FLOOR | 3 | 0 | 1997 | 1286.0 |
| | OWP | OPEN WOOD PORCH W/STEPS | 3 | 0 | 1997 | 84.0 |
| | OP4 | OPEN PORCH W/CEILING-ROOF | 3 | 0 | 1997 | 90.0 |
| | AGR | ATTACHED GARAGE | 3 | 0 | 1997 | 462.0 |
| | OWC | OPEN WOOD PORCH W/STEPS/ROOF/C | 3 | 0 | 1997 | 54.0 |
| | DWN | DOWNSTAIRS LIVING AREA | 3 | 0 | 1997 | 1244.0 |
| | UTY | STORAGE/UTILITY | 3 | 0 | 1997 | 660.0 |
Sketch
Property Image
Land
| 1 | 32 | AC (03.01-09.99) | 4.6700 | 203425.20 | 0.00 | 0.00 | 1.00 | $290,000 | $0 |
Roll Value History
| 2026 | N/A | N/A | N/A | N/A | N/A |
| 2025 | $357,518 | $290,000 | $0 | $647,518 | $647,518 |
| 2024 | $361,974 | $260,000 | $0 | $621,974 | $621,974 |
| 2023 | $361,974 | $250,000 | $0 | $611,974 | $611,974 |
| 2022 | $331,802 | $220,000 | $0 | $551,802 | $551,802 |
| 2021 | $292,035 | $190,000 | $0 | $482,035 | $482,035 |
| 2020 | $284,970 | $140,000 | $0 | $424,970 | $424,970 |
| 2019 | $221,321 | $200,000 | $0 | $421,321 | $421,321 |
| 2018 | $221,970 | $170,000 | $0 | $391,970 | $391,970 |
| 2017 | $218,170 | $160,000 | $0 | $378,170 | $378,170 |
| 2016 | $220,783 | $120,000 | $0 | $340,783 | $340,783 |
| 2015 | $223,395 | $120,000 | $0 | $343,395 | $343,395 |
| 2014 | $226,006 | $120,000 | $0 | $346,006 | $346,006 |
| 2013 | $228,618 | $121,468 | $0 | $350,086 | $350,086 |
| 2012 | $231,229 | $121,468 | $0 | $352,697 | $352,697 |
| 2011 | $247,511 | $121,468 | $0 | $368,979 | $368,979 |
| 2010 | $248,633 | $121,468 | $0 | $370,101 | $370,101 |
| 2009 | $259,550 | $109,468 | $0 | $369,018 | $369,018 |
| 2008 | $268,751 | $101,468 | $0 | $370,219 | $370,219 |
| 2007 | $250,715 | $123,486 | $0 | $374,201 | $374,201 |
Deed and Sales History
| 1 | 11/02/2021 | TRUSTEED | Trustee's Deed | COFFEY, BIRDER | COFFEY TTEE, MARYANNE M. | | | $0.00 | 54501 | 4551054 |
| 2 | 12/12/2017 | WD | Warranty Deed | COFFEY, BIRDER | COFFEY, BIRDER | | | $0.00 | 32414 | 4436429 |
| 3 | 03/30/1999 | WD | Warranty Deed | Unknown | COFFEY, BIRDER | | | $205,000.00 | 91305 | 99008683 |
Payout Agreement
| No payout information available.. |