Property
Account |
| Property ID: | 172057 | Abbreviated Legal Description: | LOT 17 BLK 4 ADMIRLALS COVE |
| Geographic ID: | S6010-00-04017-0 | Agent Code: | |
| Type: | Real | | |
| Tax Area: | 390 - APPRAISER-Cpvl Schl Dist, Special Dist, improved & less than 1 acre | Land Use Code | 11 |
| Open Space: | N | DFL | N |
| Historic Property: | N | Remodel Property: | N |
| Multi-Family Redevelopment: | N | | |
| Township: | | Section: | |
| Range: | |
Location |
| Address: | 1269 HALSEY DR COUPEVILLE, WA 98239 | Mapsco: | |
| Neighborhood: | Cycle 2 | Map ID: | 81 |
| Neighborhood CD: | 2 |
Owner |
| Name: | JOHNSON TTEE, DENNIS L | Owner ID: | 310696 |
| Mailing Address: | DAWN L JOHNSON TTEE 16902 NE 131ST PL REDMOND, WA 98052 | % Ownership: | 100.0000000000% |
| | | Exemptions: | |
Taxes and Assessment Details
Values
| (+) Improvement Homesite Value: | + | $0 | |
| (+) Improvement Non-Homesite Value: | + | $142,105 | |
| (+) Land Homesite Value: | + | $0 | |
| (+) Land Non-Homesite Value: | + | $185,000 | |
| (+) Curr Use (HS): | + | $0 | $0 |
| (+) Curr Use (NHS): | + | $0 | $0 |
| | | -------------------------- | |
| (=) Market Value: | = | $327,105 | |
| (–) Productivity Loss: | – | $0 | |
| | | -------------------------- | |
| (=) Subtotal: | = | $327,105 | |
| (+) Senior Appraised Value: | + | $0 | |
| (+) Non-Senior Appraised Value: | + | $327,105 | |
| | | -------------------------- | |
| (=) Total Appraised Value: | = | $327,105 | |
| (–) Senior Exemption Loss: | – | $0 | |
| (–) Exemption Loss: | – | $0 | |
| | | -------------------------- | |
| (=) Taxable Value: | = | $327,105 | |
Taxing Jurisdiction
| Owner: | JOHNSON TTEE, DENNIS L | | |
| % Ownership: | 100.0000000000% | | |
| Total Value: | $327,105 | | |
| Tax Area: | 390 - APPRAISER-Cpvl Schl Dist, Special Dist, improved & less than 1 acre |
| CF | Conservation Futures | 0.0313996660 | $327,105 | $327,105 | $10.27 | | |
| CEM2 | Cemetery #2 | 0.0092609791 | $327,105 | $327,105 | $3.03 | | |
| FIRE5 | Fire & Rescue Dist #5 C Whidbey GEN | 1.1892169230 | $327,105 | $327,105 | $389.00 | | |
| FIRE5BOND | Fire & Rescue Dist #5 C Whidbey BOND | 0.1394359503 | $327,105 | $327,105 | $45.61 | | |
| HOBOND | Hospital BOND | 0.1893405597 | $327,105 | $327,105 | $61.93 | | |
| HOGEN | Hospital GEN | 0.3848777722 | $327,105 | $327,105 | $125.90 | | |
| CE | County Current Expense | 0.3674210519 | $327,105 | $327,105 | $120.19 | | |
| CR | County Roads | 0.4614296361 | $327,105 | $327,105 | $150.94 | | |
| ISLANDEMS | Hospital GEN (EMS) | 0.4952018576 | $327,105 | $327,105 | $161.98 | | |
| LIB | Library Sno-Isle GEN | 0.3039084203 | $327,105 | $327,105 | $99.41 | | |
| LIBCAP | Library Sno-Isle BOND (Cap Fac Imp Area) | 0.0528562629 | $327,105 | $327,105 | $17.29 | | |
| POCOUP | Port of Coupeville GEN | 0.1065226063 | $327,105 | $327,105 | $34.84 | | |
| POCOUPIDD | Port of Coupeville IDD | 0.3353038577 | $327,105 | $327,105 | $109.68 | | |
| COUPSDTECH | School 204 CP (TECH) | 0.1215123397 | $327,105 | $327,105 | $39.75 | | |
| SCH204MO | School 204 Enrichment | 0.6416662518 | $327,105 | $327,105 | $209.89 | | |
| ST | State School | 1.4761226122 | $327,105 | $327,105 | $482.85 | | |
| ST2 | State School Part 2 | 0.7953803475 | $327,105 | $327,105 | $260.17 | | |
| | Total Tax Rate: | 7.1008570943 | | | | | |
| | | | | Taxes w/Current Exemptions: | $2,322.73 | | |
| | | | | Taxes w/o Exemptions: | $2,322.73 | | |
Improvement / Building
| Improvement #1: | RESIDENTIAL | State Code: | Y | 780.0 sqft | Value: | $142,105 |
| Bathrooms: | 1 | Bedrooms: | 2 | | Ceiling: | TONGUE & GROOVE | Exterior Wall/Cover: | VINYL | | Floor Covering: | CARPET/VINYL 20-80 | Floor Structure: | WOOD W/SUBFLOOR | | Foundation: | CONCRETE | Heating: | BASEBOARD ELECTRIC | | Interior Finish: | DRYWALL PAINT | Plumbing Fixture Cnt: | 6 | | Roof Slope: | 8" IN 12" | Roof Structure/Cover: | BEAM ASPHALT |
|
| | Type | Description | Class CD | Sub Class CD | Year Built | Area |
| | BAS | BASE/MAIN FLOOR | 3 | 0 | 1966 | 600.0 |
| | UB6 | BASEMENT UNFINISHED 6" | 3 | 0 | 1966 | 360.0 |
| | OWP | OPEN WOOD PORCH W/STEPS | 3 | 0 | 1966 | 32.0 |
| | OWP | OPEN WOOD PORCH W/STEPS | 3 | 0 | 1966 | 200.0 |
| | LOF | LOFT | 3 | 0 | 1966 | 180.0 |
| | oUTI | UTILITY | 3 | 0 | 1966 | 120.0 |
Sketch
| No sketches available for this property. |
Property Image
Land
| 1 | 13 | SQ (06001-08000) | 0.1700 | 7405.20 | 0.00 | 0.00 | 1.00 | $185,000 | $0 |
Roll Value History
| 2026 | N/A | N/A | N/A | N/A | N/A |
| 2025 | $142,105 | $185,000 | $0 | $327,105 | $327,105 |
| 2024 | $137,137 | $175,000 | $0 | $312,137 | $312,137 |
| 2023 | $138,984 | $175,000 | $0 | $313,984 | $313,984 |
| 2022 | $127,528 | $160,000 | $0 | $287,528 | $287,528 |
| 2021 | $112,345 | $125,000 | $0 | $237,345 | $237,345 |
| 2020 | $109,413 | $100,000 | $0 | $209,413 | $209,413 |
| 2019 | $76,703 | $140,000 | $0 | $216,703 | $216,703 |
| 2018 | $72,682 | $140,000 | $0 | $212,682 | $212,682 |
| 2017 | $73,176 | $120,000 | $0 | $193,176 | $193,176 |
| 2016 | $74,166 | $75,000 | $0 | $149,166 | $149,166 |
| 2015 | $75,154 | $65,000 | $0 | $140,154 | $140,154 |
| 2014 | $76,143 | $65,000 | $0 | $141,143 | $141,143 |
| 2013 | $77,132 | $65,000 | $0 | $142,132 | $142,132 |
| 2012 | $73,393 | $61,533 | $0 | $134,926 | $134,926 |
| 2011 | $74,277 | $72,392 | $0 | $146,669 | $146,669 |
| 2010 | $74,986 | $72,392 | $0 | $147,378 | $147,378 |
| 2009 | $78,064 | $100,000 | $0 | $178,064 | $178,064 |
| 2008 | $79,057 | $100,000 | $0 | $179,057 | $179,057 |
| 2007 | $80,046 | $100,000 | $0 | $180,046 | $180,046 |
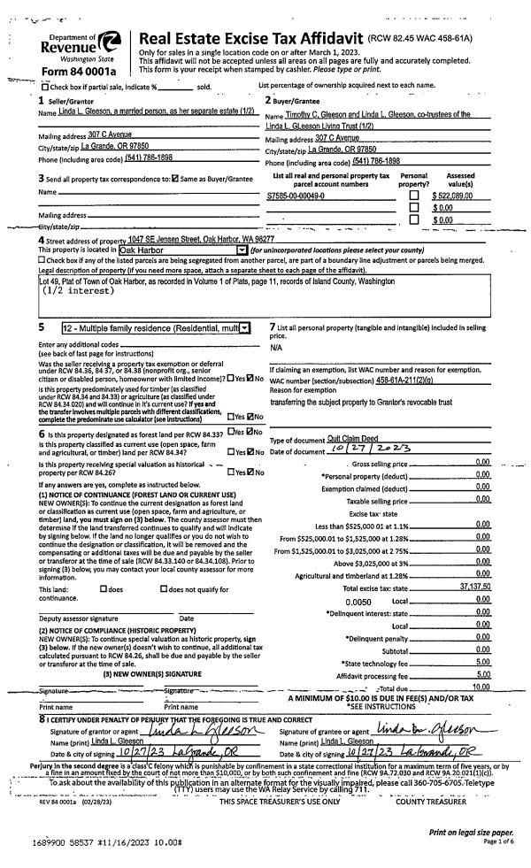
Deed and Sales History
| 1 | 11/09/2023 | QCD | Quit Claim Deed | JOHNSON, DENNIS L | JOHNSON TTEE, DENNIS L | | | $0.00 | 58470 | 4566597 |
| 2 | 10/10/2002 | WD | Warranty Deed | CROSGROVE, MARGARET B | JOHNSON, DENNIS L | | | $109,000.00 | 24128 | 4034261 |
| 3 | 08/01/1986 | WD | Warranty Deed | FORD, T W | CROSGROVE, MARGARET B | | | $43,000.00 | 62255 | 86010423 |
| 4 | 01/01/1900 | OTHER | Other - Misc. Documents | Unknown | FORD, T W | | | $15,000.00 | 0 | 0 |
Payout Agreement
| No payout information available.. |