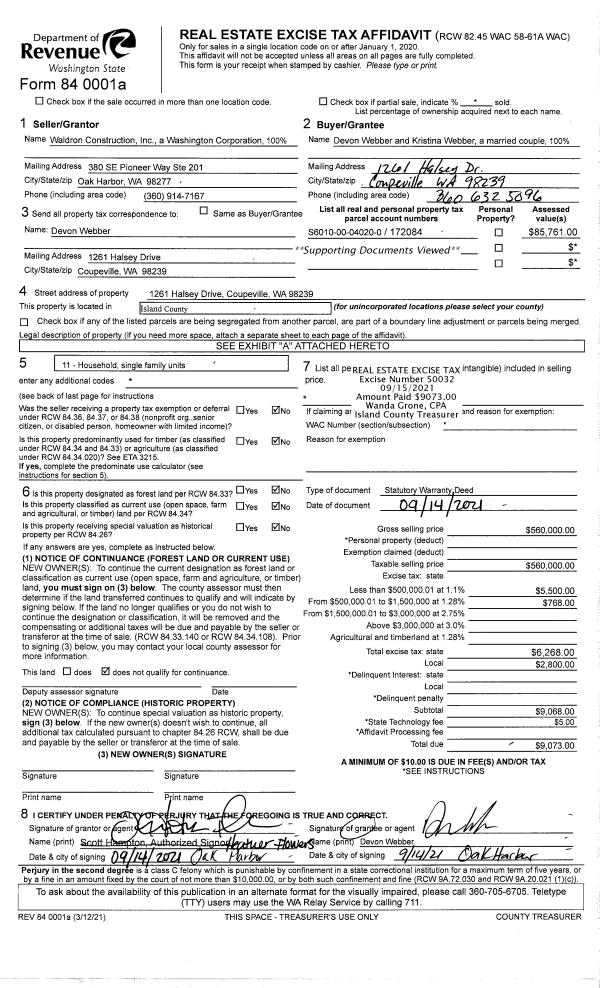
| 1 | 09/14/2021 | WD | Warranty Deed | WALDRON CONSTRUCTION, INC. | WEBBER, DEVON | | | $560,000.00 | 50032 | 4529120 |
| 2 | 08/14/2020 | WD | Warranty Deed | RICHARD TRUSTEE, RAYMOND E | WALDRON CONSTRUCTION, INC. | | | $80,000.00 | 44252 | 4493925 |
|   | |
| 3 | 09/18/2015 | WD | Warranty Deed | LOWE, ANNE M | RICHARD TRUSTEE, RAYMOND E | | | $30,000.00 | 21585 | 4386991 |
| 4 | 03/22/2001 | 5 | DNU - Marriage License/Name Change | KING, ANNE M | LOWE, ANNE M | | | $0.00 | 68994 | 0 |
| 5 | 06/01/1991 | WD | Warranty Deed | EMORY, ROBERT L | KING, ANNE M | | | $19,500.00 | 12285 | 91009761 |
| 6 | 01/01/1900 | OTHER | Other - Misc. Documents | Unknown | EMORY, ROBERT L | | | $4,500.00 | 0 | 0 |