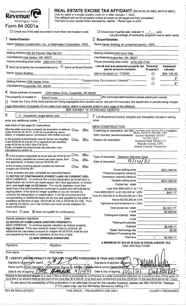
Property
Account |
| Property ID: | 172093 | Abbreviated Legal Description: | ADMIRALS COVE LOT 21 BLK 4 |
| Geographic ID: | S6010-00-04021-0 | Agent Code: | |
| Type: | Real | | |
| Tax Area: | 390 - APPRAISER-Cpvl Schl Dist, Special Dist, improved & less than 1 acre | Land Use Code | 11 |
| Open Space: | N | DFL | N |
| Historic Property: | N | Remodel Property: | N |
| Multi-Family Redevelopment: | N | | |
| Township: | | Section: | |
| Range: | |
Location |
| Address: | 1259 HALSEY DR COUPEVILLE, WA 98239 | Mapsco: | |
| Neighborhood: | Cycle 2 | Map ID: | 81 |
| Neighborhood CD: | 2 |
Owner |
| Name: | BOLDING, DEVEN | Owner ID: | 301437 |
| Mailing Address: | 1259 HALSEY DR COUPEVILLE, WA 98239 | % Ownership: | 100.0000000000% |
| | | Exemptions: | |
Taxes and Assessment Details
Values
| (+) Improvement Homesite Value: | + | N/A | |
| (+) Improvement Non-Homesite Value: | + | N/A | |
| (+) Land Homesite Value: | + | N/A | |
| (+) Land Non-Homesite Value: | + | N/A | Ag / Timber Use Value |
| (+) Curr Use (HS): | + | N/A | N/A |
| (+) Curr Use (NHS): | + | N/A | N/A |
| | | -------------------------- | |
| (=) Market Value: | = | N/A | |
| (–) Productivity Loss: | – | N/A | |
| | | -------------------------- | |
| (=) Subtotal: | = | N/A | |
| (+) Senior Appraised Value: | + | N/A | |
| (+) Non-Senior Appraised Value: | + | N/A | |
| | | -------------------------- | |
| (=) Total Appraised Value: | = | N/A | |
| (–) Senior Exemption Loss: | – | N/A | |
| (–) Exemption Loss: | – | N/A | |
| | | -------------------------- | |
| (=) Taxable Value: | = | N/A | |
Taxing Jurisdiction
| Owner: | BOLDING, DEVEN | | |
| % Ownership: | 100.0000000000% | | |
| Total Value: | N/A | | |
| Tax Area: | 390 - APPRAISER-Cpvl Schl Dist, Special Dist, improved & less than 1 acre |
| CF | Conservation Futures | N/A | N/A | N/A | N/A | | |
| WCD | Whidbey Conservation District | N/A | N/A | N/A | N/A | | |
| CEM2 | Cemetery #2 | N/A | N/A | N/A | N/A | | |
| FIRE5 | Fire & Rescue Dist #5 C Whidbey GEN | N/A | N/A | N/A | N/A | | |
| FIRE5BOND | Fire & Rescue Dist #5 C Whidbey BOND | N/A | N/A | N/A | N/A | | |
| HOBOND | Hospital BOND | N/A | N/A | N/A | N/A | | |
| HOGEN | Hospital GEN | N/A | N/A | N/A | N/A | | |
| CE | County Current Expense | N/A | N/A | N/A | N/A | | |
| CR | County Roads | N/A | N/A | N/A | N/A | | |
| ISLANDEMS | Hospital GEN (EMS) | N/A | N/A | N/A | N/A | | |
| LIB | Library Sno-Isle GEN | N/A | N/A | N/A | N/A | | |
| LIBCAP | Library Sno-Isle BOND (Cap Fac Imp Area) | N/A | N/A | N/A | N/A | | |
| POCOUP | Port of Coupeville GEN | N/A | N/A | N/A | N/A | | |
| COUPSDTECH | School 204 CP (TECH) | N/A | N/A | N/A | N/A | | |
| SCH204MO | School 204 Enrichment | N/A | N/A | N/A | N/A | | |
| ST | State School | N/A | N/A | N/A | N/A | | |
| ST2 | State School Part 2 | N/A | N/A | N/A | N/A | | |
| | Total Tax Rate: | N/A | | | | | |
| | | | | Taxes w/Current Exemptions: | N/A | | |
| | | | | Taxes w/o Exemptions: | N/A | | |
Improvement / Building
| Improvement #1: | RESIDENTIAL | State Code: | Y | 1748.0 sqft | Value: | N/A |
| Bathrooms: | 2 | Bedrooms: | 2 | | Ceiling: | DRYWALL PAINTED | Cooling: | HEAT PUMP/CONV/V | | Exterior Wall/Cover: | CEMENT FIBER | Floor Covering: | CARPET/VINYL 60-40 | | Floor Structure: | WOOD W/SUBFLOOR | Foundation: | CONCRETE | | Interior Finish: | DRYWALL PAINT | Plumbing Fixture Cnt: | 9 | | Roof Slope: | 4" IN 12" | Roof Structure/Cover: | CJ ASPHALT |
|
| | Type | Description | Class CD | Sub Class CD | Year Built | Area |
| | BAS | BASE/MAIN FLOOR | 3 | 0 | 2021 | 874.0 |
| | UPS | UPPER STORY | 3 | 0 | 2021 | 874.0 |
| | AGR | ATTACHED GARAGE | 3 | 0 | 2021 | 480.0 |
| | OWP | OPEN WOOD PORCH W/STEPS | 3 | 0 | 2021 | 296.0 |
Sketch
Property Image
Land
| 1 | 13 | SQ (06001-08000) | 0.1700 | 7405.20 | 0.00 | 0.00 | 1.00 | N/A | N/A |
Roll Value History
| 2026 | N/A | N/A | N/A | N/A | N/A |
| 2025 | $341,452 | $205,000 | $0 | $546,452 | $546,452 |
| 2024 | $382,122 | $195,000 | $0 | $577,122 | $577,122 |
| 2023 | $386,134 | $200,000 | $0 | $586,134 | $586,134 |
| 2022 | $373,442 | $190,000 | $0 | $563,442 | $563,442 |
| 2021 | $50,106 | $35,000 | $0 | $85,106 | $85,106 |
| 2020 | $0 | $35,000 | $0 | $35,000 | $35,000 |
| 2019 | $0 | $35,000 | $0 | $35,000 | $35,000 |
| 2018 | $0 | $35,000 | $0 | $35,000 | $35,000 |
| 2017 | $0 | $30,000 | $0 | $30,000 | $30,000 |
| 2016 | $0 | $30,000 | $0 | $30,000 | $30,000 |
| 2015 | $0 | $30,000 | $0 | $30,000 | $30,000 |
| 2014 | $0 | $30,000 | $0 | $30,000 | $30,000 |
| 2013 | $0 | $30,000 | $0 | $30,000 | $30,000 |
| 2012 | $0 | $41,515 | $0 | $41,515 | $41,515 |
| 2011 | $0 | $41,515 | $0 | $41,515 | $41,515 |
| 2010 | $0 | $41,515 | $0 | $41,515 | $41,515 |
| 2009 | $0 | $60,000 | $0 | $60,000 | $60,000 |
| 2008 | $0 | $37,000 | $0 | $37,000 | $37,000 |
| 2007 | $0 | $40,000 | $0 | $40,000 | $40,000 |
Deed and Sales History
| 1 | 09/14/2021 | WD | Warranty Deed | WALDRON CONSTRUCTION, INC. | BOLDING, DEVEN | | | $531,388.00 | 50307 | 4530558 |
| 2 | 08/14/2020 | WD | Warranty Deed | RICHARD CO TRUSTEE, RAYMOND E | WALDRON CONSTRUCTION, INC. | | | $80,000.00 | 44252 | 4493925 |
|   | |
| 3 | 09/13/2012 | WD | Warranty Deed | STRASSER, DENNIS | RICHARD CO TRUSTEE, RAYMOND E | | | $40,500.00 | 8836 | 4322967 |
| 4 | 06/23/2008 | WD | Warranty Deed | LINSON, GERALD J | STRASSER, DENNIS | | | $65,000.00 | 81741 | 4232133 |
| 5 | 06/01/1990 | REC | Real Estate Contract | BROWN, E P | LINSON, GERALD J | | | $16,400.00 | 3282 | 90010684 |
| 6 | 09/01/1987 | WD | Warranty Deed | LOCKE, DANIEL K | BROWN, E P | | | $9,000.00 | 72784 | 87012512 |
| 7 | 11/01/1986 | QCD | Quit Claim Deed | DONAHEY, R. N | LOCKE, DANIEL K | | | $0.00 | 63348 | 86015106 |
| 8 | 01/01/1900 | OTHER | Other - Misc. Documents | Unknown | DONAHEY, R. N | | | $2,300.00 | 0 | 0 |
Payout Agreement
| No payout information available.. |