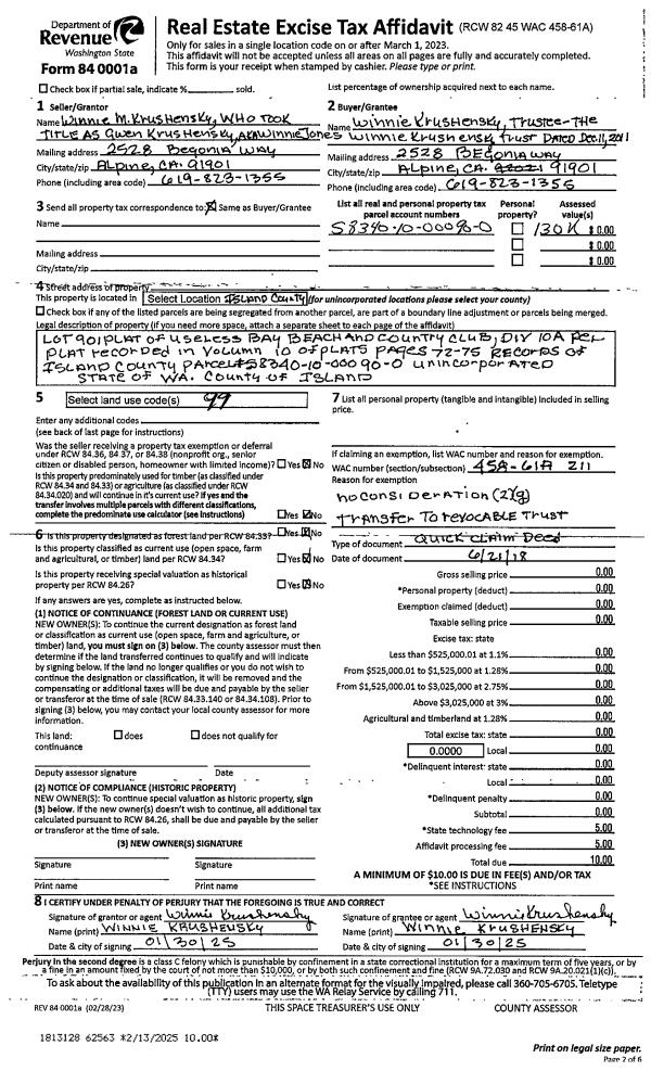
Property
Account |
| Property ID: | 172146 | Abbreviated Legal Description: | ADMIRALS COVE LOT 26 BLK 4 |
| Geographic ID: | S6010-00-04026-0 | Agent Code: | |
| Type: | Real | | |
| Tax Area: | 390 - APPRAISER-Cpvl Schl Dist, Special Dist, improved & less than 1 acre | Land Use Code | 11 |
| Open Space: | N | DFL | N |
| Historic Property: | N | Remodel Property: | N |
| Multi-Family Redevelopment: | N | | |
| Township: | | Section: | |
| Range: | |
Location |
| Address: | 1244 ADMIRALS DR COUPEVILLE, WA 98239 | Mapsco: | |
| Neighborhood: | Cycle 2 | Map ID: | 81 |
| Neighborhood CD: | 2 |
Owner |
| Name: | PAYTON TTEE, ROBERT V | Owner ID: | 306982 |
| Mailing Address: | SUE ANNE PAYTON TTEE 1244 ADMIRALS DRIVE COUPEVILLE, WA 98239 | % Ownership: | 100.0000000000% |
| | | Exemptions: | |
Taxes and Assessment Details
Values
| (+) Improvement Homesite Value: | + | $0 | |
| (+) Improvement Non-Homesite Value: | + | $351,089 | |
| (+) Land Homesite Value: | + | $0 | |
| (+) Land Non-Homesite Value: | + | $205,000 | |
| (+) Curr Use (HS): | + | $0 | $0 |
| (+) Curr Use (NHS): | + | $0 | $0 |
| | | -------------------------- | |
| (=) Market Value: | = | $556,089 | |
| (–) Productivity Loss: | – | $0 | |
| | | -------------------------- | |
| (=) Subtotal: | = | $556,089 | |
| (+) Senior Appraised Value: | + | $0 | |
| (+) Non-Senior Appraised Value: | + | $556,089 | |
| | | -------------------------- | |
| (=) Total Appraised Value: | = | $556,089 | |
| (–) Senior Exemption Loss: | – | $0 | |
| (–) Exemption Loss: | – | $0 | |
| | | -------------------------- | |
| (=) Taxable Value: | = | $556,089 | |
Taxing Jurisdiction
| Owner: | PAYTON TTEE, ROBERT V | | |
| % Ownership: | 100.0000000000% | | |
| Total Value: | $556,089 | | |
| Tax Area: | 390 - APPRAISER-Cpvl Schl Dist, Special Dist, improved & less than 1 acre |
| CF | Conservation Futures | 0.0313996660 | $556,089 | $556,089 | $17.46 | | |
| CEM2 | Cemetery #2 | 0.0092609791 | $556,089 | $556,089 | $5.15 | | |
| FIRE5 | Fire & Rescue Dist #5 C Whidbey GEN | 1.1892169230 | $556,089 | $556,089 | $661.31 | | |
| FIRE5BOND | Fire & Rescue Dist #5 C Whidbey BOND | 0.1394359503 | $556,089 | $556,089 | $77.54 | | |
| HOBOND | Hospital BOND | 0.1893405597 | $556,089 | $556,089 | $105.29 | | |
| HOGEN | Hospital GEN | 0.3848777722 | $556,089 | $556,089 | $214.03 | | |
| CE | County Current Expense | 0.3674210519 | $556,089 | $556,089 | $204.32 | | |
| CR | County Roads | 0.4614296361 | $556,089 | $556,089 | $256.60 | | |
| ISLANDEMS | Hospital GEN (EMS) | 0.4952018576 | $556,089 | $556,089 | $275.38 | | |
| LIB | Library Sno-Isle GEN | 0.3039084203 | $556,089 | $556,089 | $169.00 | | |
| LIBCAP | Library Sno-Isle BOND (Cap Fac Imp Area) | 0.0528562629 | $556,089 | $556,089 | $29.39 | | |
| POCOUP | Port of Coupeville GEN | 0.1065226063 | $556,089 | $556,089 | $59.24 | | |
| POCOUPIDD | Port of Coupeville IDD | 0.3353038577 | $556,089 | $556,089 | $186.46 | | |
| COUPSDTECH | School 204 CP (TECH) | 0.1215123397 | $556,089 | $556,089 | $67.57 | | |
| SCH204MO | School 204 Enrichment | 0.6416662518 | $556,089 | $556,089 | $356.82 | | |
| ST | State School | 1.4761226122 | $556,089 | $556,089 | $820.86 | | |
| ST2 | State School Part 2 | 0.7953803475 | $556,089 | $556,089 | $442.30 | | |
| | Total Tax Rate: | 7.1008570943 | | | | | |
| | | | | Taxes w/Current Exemptions: | $3,948.72 | | |
| | | | | Taxes w/o Exemptions: | $3,948.72 | | |
Improvement / Building
| Improvement #1: | RESIDENTIAL | State Code: | A1 | 1718.7 sqft | Value: | $351,089 |
| Bathrooms: | 2 | Bedrooms: | 2 | | Ceiling: | DRYWALL PAINTED | Exterior Wall/Cover: | CEMENT FIBER | | Floor Covering: | SLATE | Floor Structure: | SLAB ABOVE GRADE | | Foundation: | CONCRETE | Heating: | RADIANT FLOOR | | Interior Finish: | DRYWALL PAINT | Plumbing Fixture Cnt: | 11 | | Roof Slope: | 4" IN 12" | Roof Structure/Cover: | CJ ASPHALT |
|
| | Type | Description | Class CD | Sub Class CD | Year Built | Area |
| | BAS | BASE/MAIN FLOOR | 3 | 0 | 2011 | 990.0 |
| | BIG | BUILT IN GARAGE | 3 | 0 | 2011 | 260.0 |
| | DWN | DOWNSTAIRS LIVING AREA | 3 | 0 | 2011 | 728.7 |
| | OWP | OPEN WOOD PORCH W/STEPS | 3 | 0 | 2011 | 239.5 |
| | OP4 | OPEN PORCH W/CEILING-ROOF | 3 | 0 | 2011 | 24.3 |
Sketch
Property Image
Land
| 1 | 13 | SQ (06001-08000) | 0.1700 | 7405.20 | 0.00 | 0.00 | 1.00 | $205,000 | $0 |
Roll Value History
| 2026 | N/A | N/A | N/A | N/A | N/A |
| 2025 | $351,089 | $205,000 | $0 | $556,089 | $556,089 |
| 2024 | $347,995 | $195,000 | $0 | $542,995 | $542,995 |
| 2023 | $351,089 | $200,000 | $0 | $551,089 | $551,089 |
| 2022 | $320,374 | $190,000 | $0 | $510,374 | $510,374 |
| 2021 | $280,878 | $130,000 | $0 | $410,878 | $410,878 |
| 2020 | $272,791 | $110,000 | $0 | $382,791 | $382,791 |
| 2019 | $203,564 | $170,000 | $0 | $373,564 | $373,564 |
| 2018 | $198,940 | $140,000 | $0 | $338,940 | $338,940 |
| 2017 | $200,016 | $120,000 | $0 | $320,016 | $320,016 |
| 2016 | $202,167 | $85,000 | $0 | $287,167 | $287,167 |
| 2015 | $204,318 | $75,000 | $0 | $279,318 | $279,318 |
| 2014 | $206,468 | $75,000 | $0 | $281,468 | $281,468 |
| 2013 | $208,619 | $75,000 | $0 | $283,619 | $283,619 |
| 2012 | $183,784 | $73,840 | $0 | $257,624 | $257,624 |
| 2011 | $161,021 | $41,515 | $0 | $202,536 | $202,536 |
| 2010 | $0 | $41,515 | $0 | $41,515 | $41,515 |
| 2009 | $0 | $60,000 | $0 | $60,000 | $60,000 |
| 2008 | $0 | $48,000 | $0 | $48,000 | $48,000 |
| 2007 | $0 | $60,000 | $0 | $60,000 | $60,000 |
Deed and Sales History
| 1 | 12/15/2022 | QCD | Quit Claim Deed | PAYTON, ROBERT V | PAYTON TTEE, ROBERT V | | | $0.00 | 55405 | 4554887 |
| 2 | 09/26/2003 | WD | Warranty Deed | HANIU, MICHIO | PAYTON, ROBERT V | | | $33,000.00 | 34419 | 4077367 |
| 3 | 08/01/1990 | WD | Warranty Deed | MESSINA, NICHOLAS M | HANIU, MICHIO | | | $29,000.00 | 4956 | 90016471 |
| 4 | 01/01/1900 | OTHER | Other - Misc. Documents | Unknown | MESSINA, NICHOLAS M | | | $4,500.00 | 0 | 0 |
Payout Agreement
| No payout information available.. |