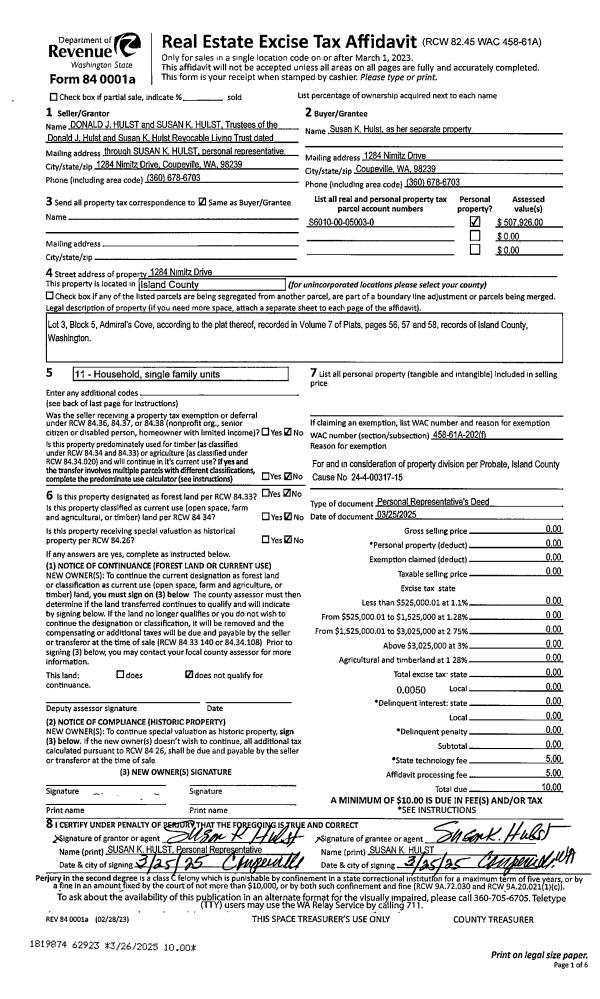
Property
Account |
| Property ID: | 172324 | Abbreviated Legal Description: | ADMIRALS COVE LOT 3 BLK 5 |
| Geographic ID: | S6010-00-05003-0 | Agent Code: | |
| Type: | Real | | |
| Tax Area: | 390 - APPRAISER-Cpvl Schl Dist, Special Dist, improved & less than 1 acre | Land Use Code | 11 |
| Open Space: | N | DFL | N |
| Historic Property: | N | Remodel Property: | N |
| Multi-Family Redevelopment: | N | | |
| Township: | | Section: | |
| Range: | |
Location |
| Address: | 1284 NIMITZ DR COUPEVILLE, WA 98239 | Mapsco: | |
| Neighborhood: | Cycle 2 | Map ID: | 81 |
| Neighborhood CD: | 2 |
Owner |
| Name: | HULST, SUSAN K | Owner ID: | 316029 |
| Mailing Address: | 1284 NIMITZ DR COUPEVILLE, WA 98239 | % Ownership: | 100.0000000000% |
| | | Exemptions: | SNR/DSBL |
Taxes and Assessment Details
Values
| (+) Improvement Homesite Value: | + | $340,829 | |
| (+) Improvement Non-Homesite Value: | + | $0 | |
| (+) Land Homesite Value: | + | $185,000 | |
| (+) Land Non-Homesite Value: | + | $0 | |
| (+) Curr Use (HS): | + | $0 | $0 |
| (+) Curr Use (NHS): | + | $0 | $0 |
| | | -------------------------- | |
| (=) Market Value: | = | $525,829 | |
| (–) Productivity Loss: | – | $0 | |
| | | -------------------------- | |
| (=) Subtotal: | = | $525,829 | |
| (+) Senior Appraised Value: | + | $511,876 | |
| (+) Non-Senior Appraised Value: | + | $0 | |
| | | -------------------------- | |
| (=) Total Appraised Value: | = | $511,876 | |
| (–) Senior Exemption Loss: | – | $70,000 | |
| (–) Exemption Loss: | – | $0 | |
| | | -------------------------- | |
| (=) Taxable Value: | = | $441,876 | |
Taxing Jurisdiction
| Owner: | HULST, SUSAN K | | |
| % Ownership: | 100.0000000000% | | |
| Total Value: | $525,829 | | |
| Tax Area: | 390 - APPRAISER-Cpvl Schl Dist, Special Dist, improved & less than 1 acre |
| CF | Conservation Futures | 0.0313996660 | $525,829 | $441,876 | $13.87 | | |
| CEM2 | Cemetery #2 | 0.0092609791 | $525,829 | $441,876 | $4.09 | | |
| FIRE5 | Fire & Rescue Dist #5 C Whidbey GEN | 1.1892169230 | $525,829 | $441,876 | $525.49 | | |
| FIRE5BOND | Fire & Rescue Dist #5 C Whidbey BOND | 0.0000000000 | $525,829 | $0 | $0.00 | | |
| HOBOND | Hospital BOND | 0.0000000000 | $525,829 | $0 | $0.00 | | |
| HOGEN | Hospital GEN | 0.3848777722 | $525,829 | $441,876 | $170.07 | | |
| CE | County Current Expense | 0.3674210519 | $525,829 | $441,876 | $162.35 | | |
| CR | County Roads | 0.4614296361 | $525,829 | $441,876 | $203.89 | | |
| ISLANDEMS | Hospital GEN (EMS) | 0.4952018576 | $525,829 | $441,876 | $218.82 | | |
| LIB | Library Sno-Isle GEN | 0.3039084203 | $525,829 | $441,876 | $134.29 | | |
| LIBCAP | Library Sno-Isle BOND (Cap Fac Imp Area) | 0.0000000000 | $525,829 | $0 | $0.00 | | |
| POCOUP | Port of Coupeville GEN | 0.1065226063 | $525,829 | $441,876 | $47.07 | | |
| POCOUPIDD | Port of Coupeville IDD | 0.3353038577 | $525,829 | $441,876 | $148.16 | | |
| COUPSDTECH | School 204 CP (TECH) | 0.0000000000 | $525,829 | $0 | $0.00 | | |
| SCH204MO | School 204 Enrichment | 0.0000000000 | $525,829 | $0 | $0.00 | | |
| ST | State School | 1.4761226122 | $525,829 | $441,876 | $652.26 | | |
| ST2 | State School Part 2 | 0.0000000000 | $525,829 | $0 | $0.00 | | |
| | Total Tax Rate: | 5.1606653824 | | | | | |
| | | | | Taxes w/Current Exemptions: | $2,280.36 | | |
| | | | | Taxes w/o Exemptions: | $3,733.81 | | |
Improvement / Building
| Improvement #1: | RESIDENTIAL | State Code: | Y | 1838.0 sqft | Value: | $340,829 |
| Bathrooms: | 2.5 | Bedrooms: | 3 | | Ceiling: | DRYWALL PAINTED | Exterior Wall/Cover: | VINYL | | Floor Covering: | CERAMIC TILE/CPT 40-60 | Floor Structure: | WOOD W/SUBFLOOR | | Foundation: | CONCRETE | Heating: | FHA GAS | | Interior Finish: | DRYWALL PAINT | Plumbing Fixture Cnt: | 12 | | Roof Slope: | 12" IN 12" | Roof Structure/Cover: | CJ ASPHALT |
|
| | Type | Description | Class CD | Sub Class CD | Year Built | Area |
| | BAS | BASE/MAIN FLOOR | 3 | 0 | 2005 | 942.0 |
| | OP2 | OPEN PORCH W/STEPS | 3 | 0 | 2005 | 16.0 |
| | AGR | ATTACHED GARAGE | 3 | 0 | 2005 | 400.0 |
| | UPS | UPPER STORY | 3 | 0 | 2005 | 896.0 |
| | OWP | OPEN WOOD PORCH W/STEPS | 3 | 0 | 2005 | 420.0 |
Sketch
Property Image
Land
| 1 | 14 | SQ (08001-12000) | 0.2200 | 9583.20 | 0.00 | 0.00 | 1.00 | $185,000 | $0 |
Roll Value History
| 2026 | N/A | N/A | N/A | N/A | N/A |
| 2025 | $340,829 | $185,000 | $0 | $525,829 | $441,876 |
| 2024 | $332,926 | $175,000 | $0 | $507,926 | $437,926 |
| 2023 | $336,876 | $175,000 | $0 | $511,876 | $441,876 |
| 2022 | $308,624 | $160,000 | $0 | $468,624 | $468,624 |
| 2021 | $271,485 | $125,000 | $0 | $396,485 | $396,485 |
| 2020 | $264,378 | $100,000 | $0 | $364,378 | $364,378 |
| 2019 | $196,453 | $140,000 | $0 | $336,453 | $336,453 |
| 2018 | $194,013 | $115,000 | $0 | $309,013 | $309,013 |
| 2017 | $195,109 | $100,000 | $0 | $295,109 | $295,109 |
| 2016 | $197,302 | $65,000 | $0 | $262,302 | $262,302 |
| 2015 | $199,495 | $50,000 | $0 | $249,495 | $249,495 |
| 2014 | $201,686 | $50,000 | $0 | $251,686 | $251,686 |
| 2013 | $203,878 | $50,000 | $0 | $253,878 | $253,878 |
| 2012 | $160,863 | $49,227 | $0 | $210,090 | $210,090 |
| 2011 | $162,582 | $57,914 | $0 | $220,496 | $220,496 |
| 2010 | $167,863 | $57,914 | $0 | $225,777 | $225,777 |
| 2009 | $173,121 | $80,000 | $0 | $253,121 | $253,121 |
| 2008 | $175,040 | $80,000 | $0 | $255,040 | $255,040 |
| 2007 | $176,946 | $80,000 | $0 | $256,946 | $256,946 |
Deed and Sales History
| 1 | 03/25/2025 | PRD | Personal Representatives Deed | HULST TRUSTEE, DONALD J | HULST, SUSAN K | | | $0.00 | 62923 | 4583640 |
| 2 | 10/20/2018 | QCD | Quit Claim Deed | HULST, DONALD J | HULST TRUSTEE, DONALD J | | | $0.00 | 36380 | 4453777 |
| 3 | 01/12/2015 | WD | Warranty Deed | RICKARD, HARVEY J | HULST, DONALD J | | | $252,000.00 | 18201 | 4371684 |
| 4 | 08/25/2005 | WD | Warranty Deed | NEUHOUSE LLC, | RICHARD, HARVEY J | | | $221,975.00 | 54231 | 4145731 |
| 5 | 05/27/2005 | 5 | DNU - Marriage License/Name Change | BRAA, RANDY W | NEUHOUSE LLC, | | | $0.00 | 52524 | 4136118 |
| 6 | 04/28/2005 | WD | Warranty Deed | ROSS, ROBERT | BRAA, RANDY W | | | $15,000.00 | 51961 | 4133291 |
| 7 | 11/28/2001 | ESTSEPPROP | Establish Separate Property | MURAD, FRED | ROSS, ROBERT | | | $4,000.00 | 14535 | 4004235 |
| 8 | 05/01/1991 | OTHER | Other - Misc. Documents | SCHAUT, SANDY | MURAD, FRED | | | $0.00 | 64219 | 0 |
| 9 | 02/01/1990 | QCD | Quit Claim Deed | DAYTON, ELLA M | SCHAUT, SANDY | | | $0.00 | 748 | 90002408 |
| 10 | 12/01/1964 | EXECUTORD | Executor Deed | ADMIRALS, COVE, I | DAYTON, ELLA M | | | $1,750.00 | 17789 | 0 |
| 11 | 01/01/1900 | OTHER | Other - Misc. Documents | Unknown | ADMIRALS, COVE, I | | | $0.00 | 0 | 0 |
Payout Agreement
| No payout information available.. |