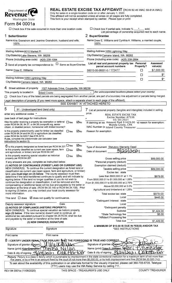
Property
Account |
| Property ID: | 172477 | Abbreviated Legal Description: | LOT 1 BLK 6 ADMIRALS COVE |
| Geographic ID: | S6010-00-06001-0 | Agent Code: | |
| Type: | Real | | |
| Tax Area: | 390 - APPRAISER-Cpvl Schl Dist, Special Dist, improved & less than 1 acre | Land Use Code | 11 |
| Open Space: | N | DFL | N |
| Historic Property: | N | Remodel Property: | N |
| Multi-Family Redevelopment: | N | | |
| Township: | | Section: | |
| Range: | |
Location |
| Address: | 1327 ADMIRALS DR COUPEVILLE, WA 98239 | Mapsco: | |
| Neighborhood: | Cycle 2 | Map ID: | 495 |
| Neighborhood CD: | 2 |
Owner |
| Name: | WILLIAMS, DREW E | Owner ID: | 260974 |
| Mailing Address: | CYNTHIA A WILLIAMS 1059 LIGHTING WAY CAMANO ISLAND, WA 98282 | % Ownership: | 100.0000000000% |
| | | Exemptions: | |
Taxes and Assessment Details
Values
| (+) Improvement Homesite Value: | + | $0 | |
| (+) Improvement Non-Homesite Value: | + | $44,120 | |
| (+) Land Homesite Value: | + | $0 | |
| (+) Land Non-Homesite Value: | + | $12,000 | |
| (+) Curr Use (HS): | + | $0 | $0 |
| (+) Curr Use (NHS): | + | $0 | $0 |
| | | -------------------------- | |
| (=) Market Value: | = | $56,120 | |
| (–) Productivity Loss: | – | $0 | |
| | | -------------------------- | |
| (=) Subtotal: | = | $56,120 | |
| (+) Senior Appraised Value: | + | $0 | |
| (+) Non-Senior Appraised Value: | + | $56,120 | |
| | | -------------------------- | |
| (=) Total Appraised Value: | = | $56,120 | |
| (–) Senior Exemption Loss: | – | $0 | |
| (–) Exemption Loss: | – | $0 | |
| | | -------------------------- | |
| (=) Taxable Value: | = | $56,120 | |
Taxing Jurisdiction
| Owner: | WILLIAMS, DREW E | | |
| % Ownership: | 100.0000000000% | | |
| Total Value: | $56,120 | | |
| Tax Area: | 390 - APPRAISER-Cpvl Schl Dist, Special Dist, improved & less than 1 acre |
| CF | Conservation Futures | 0.0313996660 | $56,120 | $56,120 | $1.76 | | |
| CEM2 | Cemetery #2 | 0.0092609791 | $56,120 | $56,120 | $0.52 | | |
| FIRE5 | Fire & Rescue Dist #5 C Whidbey GEN | 1.1892169230 | $56,120 | $56,120 | $66.74 | | |
| FIRE5BOND | Fire & Rescue Dist #5 C Whidbey BOND | 0.1394359503 | $56,120 | $56,120 | $7.83 | | |
| HOBOND | Hospital BOND | 0.1893405597 | $56,120 | $56,120 | $10.63 | | |
| HOGEN | Hospital GEN | 0.3848777722 | $56,120 | $56,120 | $21.60 | | |
| CE | County Current Expense | 0.3674210519 | $56,120 | $56,120 | $20.62 | | |
| CR | County Roads | 0.4614296361 | $56,120 | $56,120 | $25.90 | | |
| ISLANDEMS | Hospital GEN (EMS) | 0.4952018576 | $56,120 | $56,120 | $27.79 | | |
| LIB | Library Sno-Isle GEN | 0.3039084203 | $56,120 | $56,120 | $17.06 | | |
| LIBCAP | Library Sno-Isle BOND (Cap Fac Imp Area) | 0.0528562629 | $56,120 | $56,120 | $2.97 | | |
| POCOUP | Port of Coupeville GEN | 0.1065226063 | $56,120 | $56,120 | $5.98 | | |
| POCOUPIDD | Port of Coupeville IDD | 0.3353038577 | $56,120 | $56,120 | $18.82 | | |
| COUPSDTECH | School 204 CP (TECH) | 0.1215123397 | $56,120 | $56,120 | $6.82 | | |
| SCH204MO | School 204 Enrichment | 0.6416662518 | $56,120 | $56,120 | $36.01 | | |
| ST | State School | 1.4761226122 | $56,120 | $56,120 | $82.84 | | |
| ST2 | State School Part 2 | 0.7953803475 | $56,120 | $56,120 | $44.64 | | |
| | Total Tax Rate: | 7.1008570943 | | | | | |
| | | | | Taxes w/Current Exemptions: | $398.53 | | |
| | | | | Taxes w/o Exemptions: | $398.53 | | |
Improvement / Building
| Improvement #1: | RESIDENTIAL | State Code: | Y | 0.0 sqft | Value: | $44,120 |
Sketch
| No sketches available for this property. |
Property Image
Land
| 1 | 13 | SQ (06001-08000) | 0.1700 | 7405.20 | 0.00 | 0.00 | 1.00 | $12,000 | $0 |
Roll Value History
| 2026 | N/A | N/A | N/A | N/A | N/A |
| 2025 | $44,120 | $12,000 | $0 | $56,120 | $56,120 |
| 2024 | $32,000 | $12,000 | $0 | $44,000 | $44,000 |
| 2023 | $32,000 | $9,000 | $0 | $41,000 | $41,000 |
| 2022 | $32,000 | $9,000 | $0 | $41,000 | $41,000 |
| 2021 | $32,000 | $7,000 | $0 | $39,000 | $39,000 |
| 2020 | $0 | $7,000 | $0 | $7,000 | $7,000 |
| 2019 | $0 | $9,000 | $0 | $9,000 | $9,000 |
| 2018 | $0 | $5,000 | $0 | $5,000 | $5,000 |
| 2017 | $0 | $5,000 | $0 | $5,000 | $5,000 |
| 2016 | $0 | $5,000 | $0 | $5,000 | $5,000 |
| 2015 | $0 | $5,000 | $0 | $5,000 | $5,000 |
| 2014 | $0 | $5,000 | $0 | $5,000 | $5,000 |
| 2013 | $0 | $5,000 | $0 | $5,000 | $5,000 |
| 2012 | $0 | $5,984 | $0 | $5,984 | $5,984 |
| 2011 | $0 | $5,984 | $0 | $5,984 | $5,984 |
| 2010 | $0 | $5,984 | $0 | $5,984 | $5,984 |
| 2009 | $0 | $14,400 | $0 | $14,400 | $14,400 |
| 2008 | $0 | $8,000 | $0 | $8,000 | $8,000 |
| 2007 | $0 | $7,500 | $0 | $7,500 | $7,500 |
Deed and Sales History
| 1 | 03/22/2021 | WD | Warranty Deed | GRANSTROM, KRIS | WILLIAMS, DREW E | | | $89,000.00 | 47536 | 4514932 |
| 2 | 04/19/2018 | WD | Warranty Deed | GARDEN, CHRISTOPHER A | GRANSTROM, KRIS | | | $4,500.00 | 33770 | 4442994 |
| 3 | 11/17/2004 | WD | Warranty Deed | CARGILL, HUGH T | GARDEN, CHRISTOPHER A | | | $100.00 | 45396 | 4118344 |
| 4 | 05/01/1983 | TTAXD | Treasurer's Tax Deed | LORD, ROBERT P | CARGILL, HUGH T | | | $0.00 | 60020 | 409535 |
| 5 | 01/01/1900 | OTHER | Other - Misc. Documents | Unknown | LORD, ROBERT P | | | $2,395.00 | 0 | 0 |
Payout Agreement
| No payout information available.. |