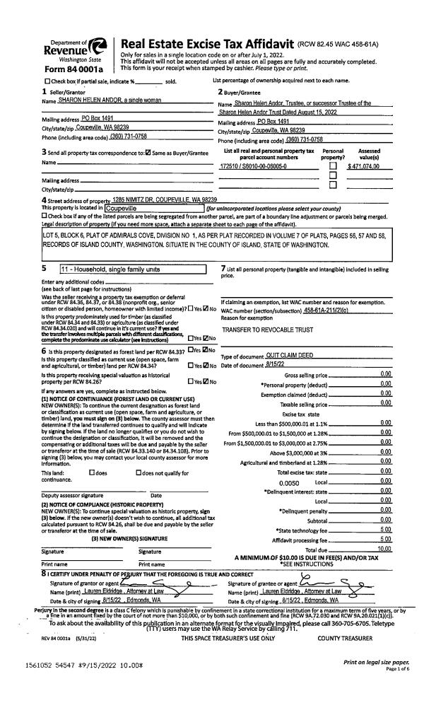
Property
Account |
| Property ID: | 172510 | Abbreviated Legal Description: | LOT 5 BLK 6 ADMIRALS COVE |
| Geographic ID: | S6010-00-06005-0 | Agent Code: | |
| Type: | Real | | |
| Tax Area: | 390 - APPRAISER-Cpvl Schl Dist, Special Dist, improved & less than 1 acre | Land Use Code | 11 |
| Open Space: | N | DFL | N |
| Historic Property: | N | Remodel Property: | N |
| Multi-Family Redevelopment: | N | | |
| Township: | | Section: | |
| Range: | |
Location |
| Address: | 1285 NIMITZ DR COUPEVILLE, WA 98239 | Mapsco: | |
| Neighborhood: | Cycle 2 | Map ID: | 81 |
| Neighborhood CD: | 2 |
Owner |
| Name: | ANDOR TTEE, SHARON H. | Owner ID: | 306015 |
| Mailing Address: | PO BOX 1491 COUPEVILLE, WA 98239 | % Ownership: | 100.0000000000% |
| | | Exemptions: | |
Taxes and Assessment Details
Values
| (+) Improvement Homesite Value: | + | $0 | |
| (+) Improvement Non-Homesite Value: | + | $339,534 | |
| (+) Land Homesite Value: | + | $0 | |
| (+) Land Non-Homesite Value: | + | $185,000 | |
| (+) Curr Use (HS): | + | $0 | $0 |
| (+) Curr Use (NHS): | + | $0 | $0 |
| | | -------------------------- | |
| (=) Market Value: | = | $524,534 | |
| (–) Productivity Loss: | – | $0 | |
| | | -------------------------- | |
| (=) Subtotal: | = | $524,534 | |
| (+) Senior Appraised Value: | + | $0 | |
| (+) Non-Senior Appraised Value: | + | $524,534 | |
| | | -------------------------- | |
| (=) Total Appraised Value: | = | $524,534 | |
| (–) Senior Exemption Loss: | – | $0 | |
| (–) Exemption Loss: | – | $0 | |
| | | -------------------------- | |
| (=) Taxable Value: | = | $524,534 | |
Taxing Jurisdiction
| Owner: | ANDOR TTEE, SHARON H. | | |
| % Ownership: | 100.0000000000% | | |
| Total Value: | $524,534 | | |
| Tax Area: | 390 - APPRAISER-Cpvl Schl Dist, Special Dist, improved & less than 1 acre |
| CF | Conservation Futures | 0.0313996660 | $524,534 | $524,534 | $16.47 | | |
| CEM2 | Cemetery #2 | 0.0092609791 | $524,534 | $524,534 | $4.86 | | |
| FIRE5 | Fire & Rescue Dist #5 C Whidbey GEN | 1.1892169230 | $524,534 | $524,534 | $623.78 | | |
| FIRE5BOND | Fire & Rescue Dist #5 C Whidbey BOND | 0.1394359503 | $524,534 | $524,534 | $73.14 | | |
| HOBOND | Hospital BOND | 0.1893405597 | $524,534 | $524,534 | $99.32 | | |
| HOGEN | Hospital GEN | 0.3848777722 | $524,534 | $524,534 | $201.88 | | |
| CE | County Current Expense | 0.3674210519 | $524,534 | $524,534 | $192.72 | | |
| CR | County Roads | 0.4614296361 | $524,534 | $524,534 | $242.04 | | |
| ISLANDEMS | Hospital GEN (EMS) | 0.4952018576 | $524,534 | $524,534 | $259.75 | | |
| LIB | Library Sno-Isle GEN | 0.3039084203 | $524,534 | $524,534 | $159.41 | | |
| LIBCAP | Library Sno-Isle BOND (Cap Fac Imp Area) | 0.0528562629 | $524,534 | $524,534 | $27.72 | | |
| POCOUP | Port of Coupeville GEN | 0.1065226063 | $524,534 | $524,534 | $55.87 | | |
| POCOUPIDD | Port of Coupeville IDD | 0.3353038577 | $524,534 | $524,534 | $175.88 | | |
| COUPSDTECH | School 204 CP (TECH) | 0.1215123397 | $524,534 | $524,534 | $63.74 | | |
| SCH204MO | School 204 Enrichment | 0.6416662518 | $524,534 | $524,534 | $336.58 | | |
| ST | State School | 1.4761226122 | $524,534 | $524,534 | $774.28 | | |
| ST2 | State School Part 2 | 0.7953803475 | $524,534 | $524,534 | $417.20 | | |
| | Total Tax Rate: | 7.1008570943 | | | | | |
| | | | | Taxes w/Current Exemptions: | $3,724.64 | | |
| | | | | Taxes w/o Exemptions: | $3,724.64 | | |
Improvement / Building
| Improvement #1: | RESIDENTIAL | State Code: | Y | 2012.0 sqft | Value: | $339,534 |
| Bathrooms: | 2.5 | Bedrooms: | 3 | | Ceiling: | DRYWALL PAINTED | Exterior Wall/Cover: | VINYL | | Floor Covering: | CERAMIC TILE/CPT 40-60 | Floor Structure: | WOOD W/SUBFLOOR | | Foundation: | CONCRETE | Heating: | FHA GAS | | Interior Finish: | DRYWALL PAINT | Plumbing Fixture Cnt: | 11 | | Roof Slope: | 10" IN 12" | Roof Structure/Cover: | CJ ASPHALT |
|
| | Type | Description | Class CD | Sub Class CD | Year Built | Area |
| | BAS | BASE/MAIN FLOOR | 3 | 0 | 2005 | 1276.0 |
| | OP3 | OPEN PORCH W/ROOF | 3 | 0 | 2005 | 72.0 |
| | AGR | ATTACHED GARAGE | 3 | 0 | 2005 | 440.0 |
| | UPS | UPPER STORY | 3 | 0 | 2005 | 736.0 |
Sketch
Property Image
Land
| 1 | 14 | SQ (08001-12000) | 0.2200 | 9583.20 | 0.00 | 0.00 | 1.00 | $185,000 | $0 |
Roll Value History
| 2026 | N/A | N/A | N/A | N/A | N/A |
| 2025 | $339,534 | $185,000 | $0 | $524,534 | $524,534 |
| 2024 | $335,665 | $175,000 | $0 | $510,665 | $510,665 |
| 2023 | $339,603 | $175,000 | $0 | $514,603 | $514,603 |
| 2022 | $311,074 | $160,000 | $0 | $471,074 | $471,074 |
| 2021 | $273,599 | $125,000 | $0 | $398,599 | $398,599 |
| 2020 | $266,724 | $100,000 | $0 | $366,724 | $366,724 |
| 2019 | $203,696 | $140,000 | $0 | $343,696 | $343,696 |
| 2018 | $200,129 | $115,000 | $0 | $315,129 | $315,129 |
| 2017 | $201,222 | $100,000 | $0 | $301,222 | $301,222 |
| 2016 | $203,482 | $65,000 | $0 | $268,482 | $268,482 |
| 2015 | $205,744 | $50,000 | $0 | $255,744 | $255,744 |
| 2014 | $208,005 | $50,000 | $0 | $258,005 | $258,005 |
| 2013 | $210,266 | $50,000 | $0 | $260,266 | $260,266 |
| 2012 | $185,916 | $49,227 | $0 | $235,143 | $235,143 |
| 2011 | $187,915 | $57,914 | $0 | $245,829 | $245,829 |
| 2010 | $191,297 | $57,914 | $0 | $249,211 | $249,211 |
| 2009 | $199,243 | $80,000 | $0 | $279,243 | $279,243 |
| 2008 | $201,370 | $80,000 | $0 | $281,370 | $281,370 |
| 2007 | $201,515 | $80,000 | $0 | $281,515 | $281,515 |
Deed and Sales History
| 1 | 08/15/2022 | QCD | Quit Claim Deed | ANDOR, SHARON | ANDOR TTEE, SHARON H. | | | $0.00 | 54547 | 4551264 |
| 2 | 11/17/2014 | SPWARDEED | Special Warranty Deed | BANK OF NEW YORK MELLON TRUST COMPANY | ANDOR, SHARON | | | $198,000.00 | 17598 | 4368681 |
| 3 | 01/16/2014 | TRUSTEED | Trustee's Deed | ROBINS, ALBERT G | BANK OF NEW YORK MELLON TRUST COMPANY | | | $199,214.00 | 14058 | 4354111 |
| 4 | 11/18/2005 | ESTSEPPROP | Establish Separate Property | ROBINS, ALBERT G | ROBINS, ALBERT G | | | $0.00 | 55931 | 4155334 |
| 5 | 10/24/2005 | WD | Warranty Deed | NEUHOUSE LLC, | ROBINS, ALBERT G | | | $234,975.00 | 55930 | 4155333 |
| 6 | 08/19/2005 | 5 | DNU - Marriage License/Name Change | BRAA, RANDY W | NEUHOUSE LLC, | | | $0.00 | 54145 | 4145054 |
| 7 | 05/11/2005 | WD | Warranty Deed | CAIN, ROBERT E | BRAA, RANDY W | | | $17,000.00 | 52453 | 4134389 |
| 8 | 01/01/1900 | OTHER | Other - Misc. Documents | Unknown | CAIN, ROBERT E | | | $3,450.00 | 0 | 0 |
Payout Agreement
| No payout information available.. |