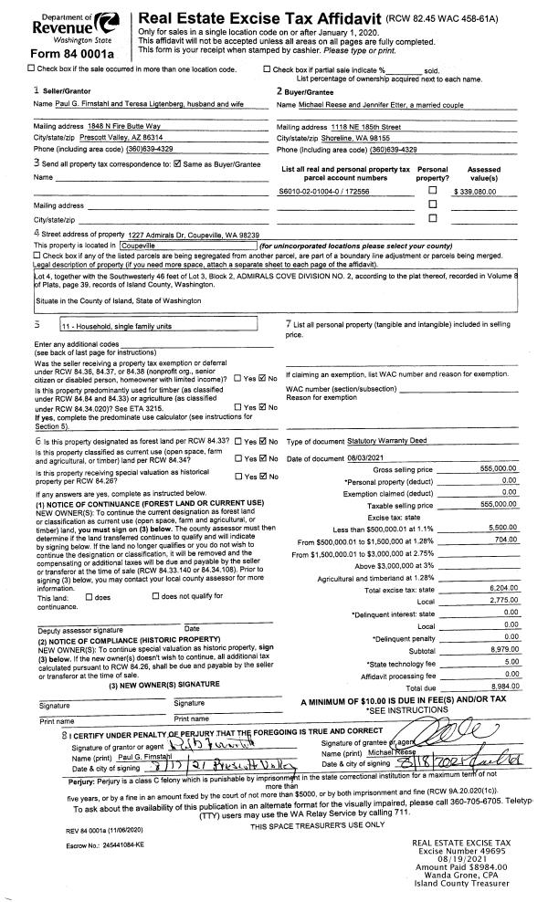
Property
Account |
| Property ID: | 172556 | Abbreviated Legal Description: | ADMIRALS COVE 2 LOT 4 BLK 1 TGW SW 46' OF LOT 3 BLK 1 |
| Geographic ID: | S6010-02-01004-0 | Agent Code: | |
| Type: | Real | | |
| Tax Area: | 390 - APPRAISER-Cpvl Schl Dist, Special Dist, improved & less than 1 acre | Land Use Code | 11 |
| Open Space: | N | DFL | N |
| Historic Property: | N | Remodel Property: | N |
| Multi-Family Redevelopment: | N | | |
| Township: | | Section: | |
| Range: | |
Location |
| Address: | 1227 ADMIRALS DR COUPEVILLE, WA 98239 | Mapsco: | |
| Neighborhood: | Cycle 2 | Map ID: | 81 |
| Neighborhood CD: | 2 |
Owner |
| Name: | REESE, MICHEAL | Owner ID: | 300781 |
| Mailing Address: | JENNIFER M ETTER 1118 NE 185TH ST SHORELINE, WA 98155 | % Ownership: | 100.0000000000% |
| | | Exemptions: | |
Taxes and Assessment Details
Values
| (+) Improvement Homesite Value: | + | $0 | |
| (+) Improvement Non-Homesite Value: | + | $362,416 | |
| (+) Land Homesite Value: | + | $0 | |
| (+) Land Non-Homesite Value: | + | $205,000 | |
| (+) Curr Use (HS): | + | $0 | $0 |
| (+) Curr Use (NHS): | + | $0 | $0 |
| | | -------------------------- | |
| (=) Market Value: | = | $567,416 | |
| (–) Productivity Loss: | – | $0 | |
| | | -------------------------- | |
| (=) Subtotal: | = | $567,416 | |
| (+) Senior Appraised Value: | + | $0 | |
| (+) Non-Senior Appraised Value: | + | $567,416 | |
| | | -------------------------- | |
| (=) Total Appraised Value: | = | $567,416 | |
| (–) Senior Exemption Loss: | – | $0 | |
| (–) Exemption Loss: | – | $0 | |
| | | -------------------------- | |
| (=) Taxable Value: | = | $567,416 | |
Taxing Jurisdiction
| Owner: | REESE, MICHEAL | | |
| % Ownership: | 100.0000000000% | | |
| Total Value: | $567,416 | | |
| Tax Area: | 390 - APPRAISER-Cpvl Schl Dist, Special Dist, improved & less than 1 acre |
| CF | Conservation Futures | 0.0313996660 | $567,416 | $567,416 | $17.82 | | |
| CEM2 | Cemetery #2 | 0.0092609791 | $567,416 | $567,416 | $5.25 | | |
| FIRE5 | Fire & Rescue Dist #5 C Whidbey GEN | 1.1892169230 | $567,416 | $567,416 | $674.78 | | |
| FIRE5BOND | Fire & Rescue Dist #5 C Whidbey BOND | 0.1394359503 | $567,416 | $567,416 | $79.12 | | |
| HOBOND | Hospital BOND | 0.1893405597 | $567,416 | $567,416 | $107.43 | | |
| HOGEN | Hospital GEN | 0.3848777722 | $567,416 | $567,416 | $218.39 | | |
| CE | County Current Expense | 0.3674210519 | $567,416 | $567,416 | $208.48 | | |
| CR | County Roads | 0.4614296361 | $567,416 | $567,416 | $261.82 | | |
| ISLANDEMS | Hospital GEN (EMS) | 0.4952018576 | $567,416 | $567,416 | $280.99 | | |
| LIB | Library Sno-Isle GEN | 0.3039084203 | $567,416 | $567,416 | $172.44 | | |
| LIBCAP | Library Sno-Isle BOND (Cap Fac Imp Area) | 0.0528562629 | $567,416 | $567,416 | $29.99 | | |
| POCOUP | Port of Coupeville GEN | 0.1065226063 | $567,416 | $567,416 | $60.44 | | |
| POCOUPIDD | Port of Coupeville IDD | 0.3353038577 | $567,416 | $567,416 | $190.26 | | |
| COUPSDTECH | School 204 CP (TECH) | 0.1215123397 | $567,416 | $567,416 | $68.95 | | |
| SCH204MO | School 204 Enrichment | 0.6416662518 | $567,416 | $567,416 | $364.09 | | |
| ST | State School | 1.4761226122 | $567,416 | $567,416 | $837.58 | | |
| ST2 | State School Part 2 | 0.7953803475 | $567,416 | $567,416 | $451.31 | | |
| | Total Tax Rate: | 7.1008570943 | | | | | |
| | | | | Taxes w/Current Exemptions: | $4,029.14 | | |
| | | | | Taxes w/o Exemptions: | $4,029.14 | | |
Improvement / Building
| Improvement #1: | RESIDENTIAL | State Code: | Y | 1713.1 sqft | Value: | $362,416 |
| Bathrooms: | 2 | Bedrooms: | 2 | | Ceiling: | BEAM PAINTED | Exterior Wall/Cover: | VINYL | | Floor Covering: | CARPET/VINYL 80-20 | Floor Structure: | WOOD W/SUBFLOOR | | Foundation: | CONCRETE | Heating: | WALL HEAT ELECTRIC | | Interior Finish: | DRYWALL PAINT | Plumbing Fixture Cnt: | 9 | | Roof Slope: | 4" IN 12" | Roof Structure/Cover: | BEAM ALUMINUM HEAVY |
|
| | Type | Description | Class CD | Sub Class CD | Year Built | Area |
| | BAS | BASE/MAIN FLOOR | 4 | 0 | 1966 | 1713.1 |
| | AGR | ATTACHED GARAGE | 4 | 0 | 1966 | 528.0 |
| | OWP | OPEN WOOD PORCH W/STEPS | 4 | 0 | 1966 | 993.2 |
| | OWC | OPEN WOOD PORCH W/STEPS/ROOF/C | 4 | 0 | 1966 | 34.4 |
| | UTY | STORAGE/UTILITY | 4 | 0 | 1966 | 120.0 |
Sketch
Property Image
Land
| 1 | 15 | SQ (12001-21780) | 0.2900 | 12632.40 | 0.00 | 0.00 | 1.00 | $205,000 | $0 |
Roll Value History
| 2026 | N/A | N/A | N/A | N/A | N/A |
| 2025 | $362,416 | $205,000 | $0 | $567,416 | $567,416 |
| 2024 | $351,891 | $195,000 | $0 | $546,891 | $546,891 |
| 2023 | $356,629 | $200,000 | $0 | $556,629 | $556,629 |
| 2022 | $327,224 | $190,000 | $0 | $517,224 | $517,224 |
| 2021 | $234,667 | $130,000 | $0 | $364,667 | $364,667 |
| 2020 | $229,080 | $110,000 | $0 | $339,080 | $339,080 |
| 2019 | $169,099 | $170,000 | $0 | $339,099 | $339,099 |
| 2018 | $163,063 | $140,000 | $0 | $303,063 | $303,063 |
| 2017 | $164,130 | $120,000 | $0 | $284,130 | $284,130 |
| 2016 | $166,263 | $85,000 | $0 | $251,263 | $251,263 |
| 2015 | $168,394 | $85,000 | $0 | $253,394 | $253,394 |
| 2014 | $170,525 | $85,000 | $0 | $255,525 | $255,525 |
| 2013 | $172,657 | $85,000 | $0 | $257,657 | $257,657 |
| 2012 | $145,383 | $79,398 | $0 | $224,781 | $224,781 |
| 2011 | $147,269 | $93,409 | $0 | $240,678 | $240,678 |
| 2010 | $156,960 | $93,409 | $0 | $250,369 | $250,369 |
| 2009 | $159,758 | $120,000 | $0 | $279,758 | $279,758 |
| 2008 | $163,471 | $120,000 | $0 | $283,471 | $283,471 |
| 2007 | $165,380 | $120,000 | $0 | $285,380 | $285,380 |
Deed and Sales History
| 1 | 08/03/2021 | WD | Warranty Deed | FIRNSTAHL, PAUL G | REESE, MICHEAL | | | $555,000.00 | 49695 | 4527225 |
| 2 | 08/10/2007 | WD | Warranty Deed | KAPPES, GEOFF R | FIRNSTAHL, PAUL G | | | $307,500.00 | 72852 | 4210109 |
| 3 | 01/23/2006 | WD | Warranty Deed | SHAFFER, JOHN J/BARBARA D | KAPPES, GEOFF R | | | $272,500.00 | 60336 | 4160746 |
| 4 | 06/02/2003 | BLA | DNU - Boundary Line Adjustment | SHAFFER, JOHN J | SHAFFER, JOHN J/BARBARA D | | | $0.00 | 69884 | 4051022 |
| 5 | 03/01/1995 | WD | Warranty Deed | O'BRIEN, WILLIAM R | SHAFFER, JOHN J | | | $129,000.00 | 50967 | 95004683 |
| 6 | 05/01/1994 | OTHER | Other - Misc. Documents | O'BRIEN, WILLIAM R | O'BRIEN, WILLIAM R | | | $0.00 | 65877 | 0 |
| 7 | 06/01/1982 | TRUSTEED | Trustee's Deed | MAGNUSSON, OLGA M | O'BRIEN, WILLIAM R | | | $75,000.00 | 21521 | 397819 |
| 8 | 04/01/1982 | PACD | Purchaser's Assignment | MAGNUSSON, MARK E | MAGNUSSON, OLGA M | | | $1.00 | 59408 | 0 |
| 9 | 01/01/1900 | OTHER | Other - Misc. Documents | Unknown | MAGNUSSON, MARK E | | | $2,794.00 | 0 | 0 |
Payout Agreement
| No payout information available.. |