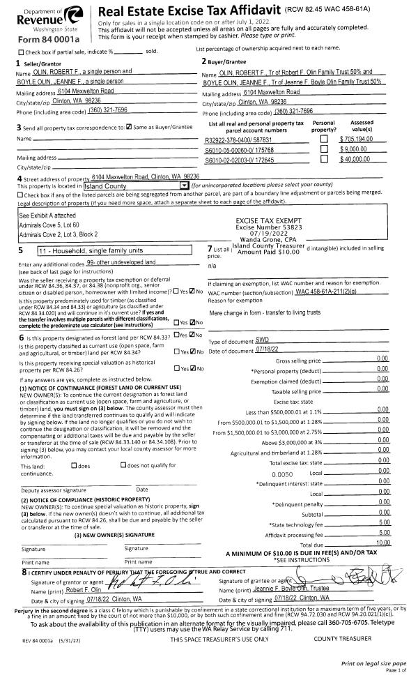
Property
Account |
| Property ID: | 172645 | Abbreviated Legal Description: | ADMIRALS CV 2 LOT 3 BLK 2 |
| Geographic ID: | S6010-02-02003-0 | Agent Code: | |
| Type: | Real | | |
| Tax Area: | 390 - APPRAISER-Cpvl Schl Dist, Special Dist, improved & less than 1 acre | Land Use Code | 99 |
| Open Space: | N | DFL | N |
| Historic Property: | N | Remodel Property: | N |
| Multi-Family Redevelopment: | N | | |
| Township: | | Section: | |
| Range: | |
Location |
| Address: | | Mapsco: | |
| Neighborhood: | Cycle 2 | Map ID: | 81 |
| Neighborhood CD: | 2 |
Owner |
| Name: | OLIN TTEE, ROBERT F | Owner ID: | 305062 |
| Mailing Address: | JEANNE BOYLE OLIN 6104 MAXWELTON RD CLINTON, WA 98236 | % Ownership: | 100.0000000000% |
| | | Exemptions: | |
Taxes and Assessment Details
Values
| (+) Improvement Homesite Value: | + | $0 | |
| (+) Improvement Non-Homesite Value: | + | $0 | |
| (+) Land Homesite Value: | + | $0 | |
| (+) Land Non-Homesite Value: | + | $60,000 | |
| (+) Curr Use (HS): | + | $0 | $0 |
| (+) Curr Use (NHS): | + | $0 | $0 |
| | | -------------------------- | |
| (=) Market Value: | = | $60,000 | |
| (–) Productivity Loss: | – | $0 | |
| | | -------------------------- | |
| (=) Subtotal: | = | $60,000 | |
| (+) Senior Appraised Value: | + | $0 | |
| (+) Non-Senior Appraised Value: | + | $60,000 | |
| | | -------------------------- | |
| (=) Total Appraised Value: | = | $60,000 | |
| (–) Senior Exemption Loss: | – | $0 | |
| (–) Exemption Loss: | – | $0 | |
| | | -------------------------- | |
| (=) Taxable Value: | = | $60,000 | |
Taxing Jurisdiction
| Owner: | OLIN TTEE, ROBERT F | | |
| % Ownership: | 100.0000000000% | | |
| Total Value: | $60,000 | | |
| Tax Area: | 390 - APPRAISER-Cpvl Schl Dist, Special Dist, improved & less than 1 acre |
| CF | Conservation Futures | 0.0313996660 | $60,000 | $60,000 | $1.88 | | |
| CEM2 | Cemetery #2 | 0.0092609791 | $60,000 | $60,000 | $0.56 | | |
| FIRE5 | Fire & Rescue Dist #5 C Whidbey GEN | 1.1892169230 | $60,000 | $60,000 | $71.35 | | |
| FIRE5BOND | Fire & Rescue Dist #5 C Whidbey BOND | 0.1394359503 | $60,000 | $60,000 | $8.37 | | |
| HOBOND | Hospital BOND | 0.1893405597 | $60,000 | $60,000 | $11.36 | | |
| HOGEN | Hospital GEN | 0.3848777722 | $60,000 | $60,000 | $23.09 | | |
| CE | County Current Expense | 0.3674210519 | $60,000 | $60,000 | $22.05 | | |
| CR | County Roads | 0.4614296361 | $60,000 | $60,000 | $27.69 | | |
| ISLANDEMS | Hospital GEN (EMS) | 0.4952018576 | $60,000 | $60,000 | $29.71 | | |
| LIB | Library Sno-Isle GEN | 0.3039084203 | $60,000 | $60,000 | $18.23 | | |
| LIBCAP | Library Sno-Isle BOND (Cap Fac Imp Area) | 0.0528562629 | $60,000 | $60,000 | $3.17 | | |
| POCOUP | Port of Coupeville GEN | 0.1065226063 | $60,000 | $60,000 | $6.39 | | |
| POCOUPIDD | Port of Coupeville IDD | 0.3353038577 | $60,000 | $60,000 | $20.12 | | |
| COUPSDTECH | School 204 CP (TECH) | 0.1215123397 | $60,000 | $60,000 | $7.29 | | |
| SCH204MO | School 204 Enrichment | 0.6416662518 | $60,000 | $60,000 | $38.50 | | |
| ST | State School | 1.4761226122 | $60,000 | $60,000 | $88.57 | | |
| ST2 | State School Part 2 | 0.7953803475 | $60,000 | $60,000 | $47.72 | | |
| | Total Tax Rate: | 7.1008570943 | | | | | |
| | | | | Taxes w/Current Exemptions: | $426.05 | | |
| | | | | Taxes w/o Exemptions: | $426.05 | | |
Improvement / Building
Sketch
| No sketches available for this property. |
Property Image
Land
| 1 | 13 | SQ (06001-08000) | 0.1700 | 7405.20 | 0.00 | 0.00 | 1.00 | $60,000 | $0 |
Roll Value History
| 2026 | N/A | N/A | N/A | N/A | N/A |
| 2025 | $0 | $60,000 | $0 | $60,000 | $60,000 |
| 2024 | $0 | $50,000 | $0 | $50,000 | $50,000 |
| 2023 | $0 | $70,000 | $0 | $70,000 | $70,000 |
| 2022 | $0 | $40,000 | $0 | $40,000 | $40,000 |
| 2021 | $0 | $30,000 | $0 | $30,000 | $30,000 |
| 2020 | $0 | $25,000 | $0 | $25,000 | $25,000 |
| 2019 | $0 | $35,000 | $0 | $35,000 | $35,000 |
| 2018 | $0 | $35,000 | $0 | $35,000 | $35,000 |
| 2017 | $0 | $30,000 | $0 | $30,000 | $30,000 |
| 2016 | $0 | $30,000 | $0 | $30,000 | $30,000 |
| 2015 | $0 | $30,000 | $0 | $30,000 | $30,000 |
| 2014 | $0 | $30,000 | $0 | $30,000 | $30,000 |
| 2013 | $0 | $30,000 | $0 | $30,000 | $30,000 |
| 2012 | $0 | $21,623 | $0 | $21,623 | $21,623 |
| 2011 | $0 | $21,623 | $0 | $21,623 | $21,623 |
| 2010 | $0 | $21,623 | $0 | $21,623 | $21,623 |
| 2009 | $0 | $45,000 | $0 | $45,000 | $45,000 |
| 2008 | $0 | $25,000 | $0 | $25,000 | $25,000 |
| 2007 | $0 | $7,500 | $0 | $7,500 | $7,500 |
Deed and Sales History
| 1 | 07/18/2022 | WD | Warranty Deed | OLIN, ROBERT | OLIN TTEE, ROBERT F | | | $0.00 | 53823 | 4548380 |
| 2 | 01/12/2007 | WD | Warranty Deed | BOHLING, ALAN W | OLIN, ROBERT | | | $8,000.00 | 70216 | 4192330 |
| 3 | 10/01/1978 | OTHER | Other - Misc. Documents | Unknown | BOHLING, ALAN W | | | $3,500.00 | 85481 | 342710 |
Payout Agreement
| No payout information available.. |