Property
Account |
| Property ID: | 173519 | Abbreviated Legal Description: | ADMIRALS COVE 3 LOT 55 |
| Geographic ID: | S6010-03-00055-0 | Agent Code: | |
| Type: | Real | | |
| Tax Area: | 390 - APPRAISER-Cpvl Schl Dist, Special Dist, improved & less than 1 acre | Land Use Code | 11 |
| Open Space: | N | DFL | N |
| Historic Property: | N | Remodel Property: | N |
| Multi-Family Redevelopment: | N | | |
| Township: | | Section: | |
| Range: | |
Location |
| Address: | 1060 HALSEY DR COUPEVILLE, WA 98239 | Mapsco: | |
| Neighborhood: | Cycle 2 | Map ID: | 59 |
| Neighborhood CD: | 2 |
Owner |
| Name: | 1060 HALSEY DR, LLC | Owner ID: | 315800 |
| Mailing Address: | 7936 129TH PL SE NEWCASTLE, WA 98056 | % Ownership: | 100.0000000000% |
| | | Exemptions: | |
Taxes and Assessment Details
Values
| (+) Improvement Homesite Value: | + | $0 | |
| (+) Improvement Non-Homesite Value: | + | $449,034 | |
| (+) Land Homesite Value: | + | $0 | |
| (+) Land Non-Homesite Value: | + | $205,000 | |
| (+) Curr Use (HS): | + | $0 | $0 |
| (+) Curr Use (NHS): | + | $0 | $0 |
| | | -------------------------- | |
| (=) Market Value: | = | $654,034 | |
| (–) Productivity Loss: | – | $0 | |
| | | -------------------------- | |
| (=) Subtotal: | = | $654,034 | |
| (+) Senior Appraised Value: | + | $0 | |
| (+) Non-Senior Appraised Value: | + | $654,034 | |
| | | -------------------------- | |
| (=) Total Appraised Value: | = | $654,034 | |
| (–) Senior Exemption Loss: | – | $0 | |
| (–) Exemption Loss: | – | $0 | |
| | | -------------------------- | |
| (=) Taxable Value: | = | $654,034 | |
Taxing Jurisdiction
| Owner: | 1060 HALSEY DR, LLC | | |
| % Ownership: | 100.0000000000% | | |
| Total Value: | $654,034 | | |
| Tax Area: | 390 - APPRAISER-Cpvl Schl Dist, Special Dist, improved & less than 1 acre |
| CF | Conservation Futures | 0.0313996660 | $654,034 | $654,034 | $20.54 | | |
| CEM2 | Cemetery #2 | 0.0092609791 | $654,034 | $654,034 | $6.06 | | |
| FIRE5 | Fire & Rescue Dist #5 C Whidbey GEN | 1.1892169230 | $654,034 | $654,034 | $777.79 | | |
| FIRE5BOND | Fire & Rescue Dist #5 C Whidbey BOND | 0.1394359503 | $654,034 | $654,034 | $91.20 | | |
| HOBOND | Hospital BOND | 0.1893405597 | $654,034 | $654,034 | $123.84 | | |
| HOGEN | Hospital GEN | 0.3848777722 | $654,034 | $654,034 | $251.72 | | |
| CE | County Current Expense | 0.3674210519 | $654,034 | $654,034 | $240.31 | | |
| CR | County Roads | 0.4614296361 | $654,034 | $654,034 | $301.79 | | |
| ISLANDEMS | Hospital GEN (EMS) | 0.4952018576 | $654,034 | $654,034 | $323.88 | | |
| LIB | Library Sno-Isle GEN | 0.3039084203 | $654,034 | $654,034 | $198.77 | | |
| LIBCAP | Library Sno-Isle BOND (Cap Fac Imp Area) | 0.0528562629 | $654,034 | $654,034 | $34.57 | | |
| POCOUP | Port of Coupeville GEN | 0.1065226063 | $654,034 | $654,034 | $69.67 | | |
| POCOUPIDD | Port of Coupeville IDD | 0.3353038577 | $654,034 | $654,034 | $219.30 | | |
| COUPSDTECH | School 204 CP (TECH) | 0.1215123397 | $654,034 | $654,034 | $79.47 | | |
| SCH204MO | School 204 Enrichment | 0.6416662518 | $654,034 | $654,034 | $419.67 | | |
| ST | State School | 1.4761226122 | $654,034 | $654,034 | $965.43 | | |
| ST2 | State School Part 2 | 0.7953803475 | $654,034 | $654,034 | $520.21 | | |
| | Total Tax Rate: | 7.1008570943 | | | | | |
| | | | | Taxes w/Current Exemptions: | $4,644.22 | | |
| | | | | Taxes w/o Exemptions: | $4,644.22 | | |
Improvement / Building
| Improvement #1: | RESIDENTIAL | State Code: | Y | 2108.0 sqft | Value: | $449,034 |
| Bathrooms: | 3 | Bedrooms: | 2 | | Ceiling: | DRYWALL PAINTED | Cooling: | HEAT PUMP/CONV/V | | Exterior Wall/Cover: | SHINGLE | Floor Covering: | CERAMIC TILE/HWD 40/60 | | Floor Structure: | WOOD W/SUBFLOOR | Foundation: | CONCRETE | | Interior Finish: | DRYWALL PAINT | Plumbing Fixture Cnt: | 14 | | Roof Slope: | 6" IN 12" | Roof Structure/Cover: | BEAM ALUMINUM HEAVY |
|
| | Type | Description | Class CD | Sub Class CD | Year Built | Area |
| | BAS | BASE/MAIN FLOOR | 4 | 0 | 1995 | 674.0 |
| | OWP | OPEN WOOD PORCH W/STEPS | 4 | 0 | 1995 | 198.6 |
| | OWP | OPEN WOOD PORCH W/STEPS | 4 | 0 | 1995 | 151.8 |
| | UPH | HALF STORY | 4 | 0 | 1995 | 442.0 |
| | DWN | DOWNSTAIRS LIVING AREA | 4 | 0 | 1995 | 572.0 |
| | BAS | BASE/MAIN FLOOR | 4 | 0 | 1995 | 270.0 |
| | UPH | HALF STORY | 4 | 0 | 1995 | 150.0 |
Sketch
Property Image
Land
| 1 | 13 | SQ (06001-08000) | 0.1653 | 7200.47 | 0.00 | 0.00 | 1.00 | $205,000 | $0 |
Roll Value History
| 2026 | N/A | N/A | N/A | N/A | N/A |
| 2025 | $449,034 | $205,000 | $0 | $654,034 | $654,034 |
| 2024 | $443,828 | $195,000 | $0 | $638,828 | $638,828 |
| 2023 | $449,034 | $200,000 | $0 | $649,034 | $649,034 |
| 2022 | $411,318 | $190,000 | $0 | $601,318 | $601,318 |
| 2021 | $358,362 | $130,000 | $0 | $488,362 | $488,362 |
| 2020 | $349,013 | $110,000 | $0 | $459,013 | $459,013 |
| 2019 | $261,726 | $170,000 | $0 | $431,726 | $431,726 |
| 2018 | $191,899 | $140,000 | $0 | $331,899 | $331,899 |
| 2017 | $184,144 | $120,000 | $0 | $304,144 | $304,144 |
| 2016 | $186,260 | $75,000 | $0 | $261,260 | $261,260 |
| 2015 | $188,377 | $65,000 | $0 | $253,377 | $253,377 |
| 2014 | $190,494 | $65,000 | $0 | $255,494 | $255,494 |
| 2013 | $192,609 | $65,000 | $0 | $257,609 | $257,609 |
| 2012 | $159,352 | $61,533 | $0 | $220,885 | $220,885 |
| 2011 | $161,294 | $72,392 | $0 | $233,686 | $233,686 |
| 2010 | $175,575 | $72,392 | $0 | $247,967 | $247,967 |
| 2009 | $182,996 | $100,000 | $0 | $282,996 | $282,996 |
| 2008 | $185,253 | $100,000 | $0 | $285,253 | $285,253 |
| 2007 | $187,511 | $100,000 | $0 | $287,511 | $287,511 |
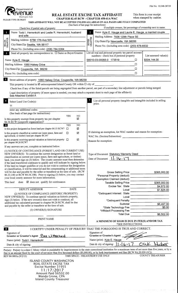
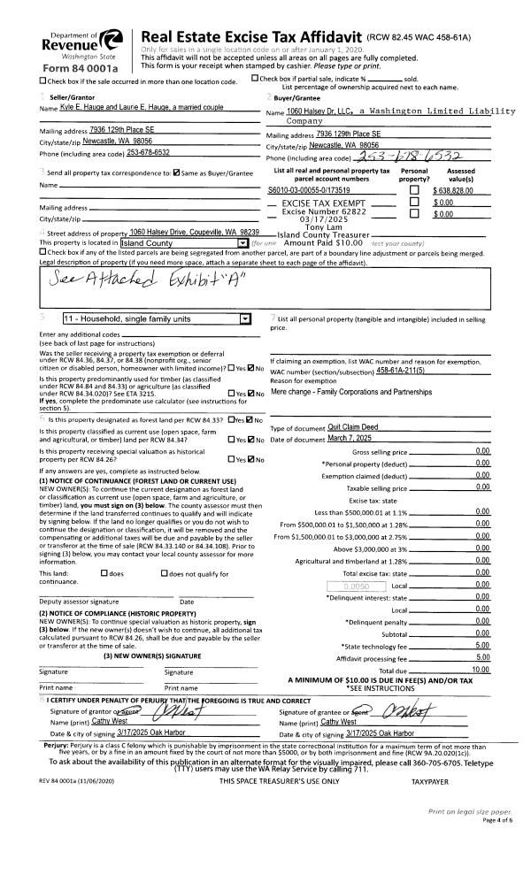
Deed and Sales History
| 1 | 03/07/2025 | QCD | Quit Claim Deed | HAUGE, KYLE E | 1060 HALSEY DR, LLC | | | $0.00 | 62822 | 4583294 |
| 2 | 11/16/2017 | WD | Warranty Deed | HERRENKOHL, TODD I | HAUGE, KYLE E | | | $365,000.00 | 31955 | 4434340 |
| 3 | 10/01/2005 | WD | Warranty Deed | CARR, CHRISTOPHER L | HERRENKOHL, TODD I | | | $340,000.00 | 55106 | 4150239 |
| 4 | 02/01/1998 | WD | Warranty Deed | BELL, SEAN W | CARR, CHRISTOPHER L | | | $173,000.00 | 80587 | 98003095 |
| 5 | 12/01/1993 | WD | Warranty Deed | ANDERSON, LAWRENCE | BELL, SEAN W | | | $21,000.00 | 35180 | 93026880 |
| 6 | 01/01/1900 | OTHER | Other - Misc. Documents | Unknown | ANDERSON, LAWRENCE | | | $4,950.00 | 0 | 0 |
Payout Agreement
| No payout information available.. |