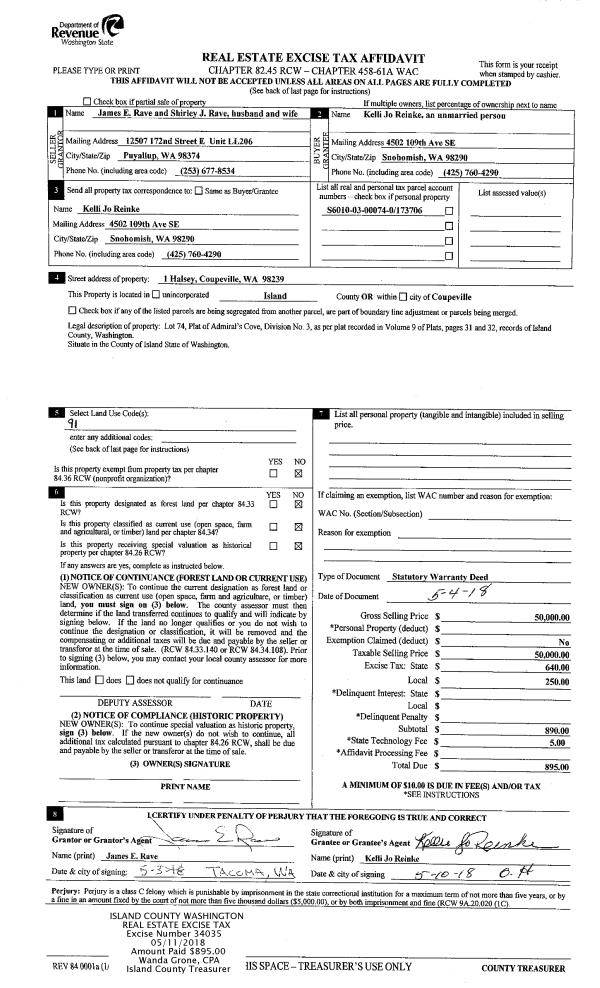
Property
Account |
| Property ID: | 173706 | Abbreviated Legal Description: | ADMIRALS COVE 3 LOT 74 FR 00073-0 |
| Geographic ID: | S6010-03-00074-0 | Agent Code: | |
| Type: | Real | | |
| Tax Area: | 390 - APPRAISER-Cpvl Schl Dist, Special Dist, improved & less than 1 acre | Land Use Code | 11 |
| Open Space: | N | DFL | N |
| Historic Property: | N | Remodel Property: | N |
| Multi-Family Redevelopment: | N | | |
| Township: | | Section: | |
| Range: | |
Location |
| Address: | 1156 HALSEY DR COUPEVILLE, WA 98239 | Mapsco: | |
| Neighborhood: | Cycle 2 | Map ID: | 59 |
| Neighborhood CD: | 2 |
Owner |
| Name: | REINKE, KELLI JO | Owner ID: | 284965 |
| Mailing Address: | PO BOX 1227 COUPEVILLE, WA 98239 | % Ownership: | 100.0000000000% |
| | | Exemptions: | |
Taxes and Assessment Details
Values
| (+) Improvement Homesite Value: | + | $0 | |
| (+) Improvement Non-Homesite Value: | + | $285,789 | |
| (+) Land Homesite Value: | + | $0 | |
| (+) Land Non-Homesite Value: | + | $205,000 | |
| (+) Curr Use (HS): | + | $0 | $0 |
| (+) Curr Use (NHS): | + | $0 | $0 |
| | | -------------------------- | |
| (=) Market Value: | = | $490,789 | |
| (–) Productivity Loss: | – | $0 | |
| | | -------------------------- | |
| (=) Subtotal: | = | $490,789 | |
| (+) Senior Appraised Value: | + | $0 | |
| (+) Non-Senior Appraised Value: | + | $490,789 | |
| | | -------------------------- | |
| (=) Total Appraised Value: | = | $490,789 | |
| (–) Senior Exemption Loss: | – | $0 | |
| (–) Exemption Loss: | – | $0 | |
| | | -------------------------- | |
| (=) Taxable Value: | = | $490,789 | |
Taxing Jurisdiction
| Owner: | REINKE, KELLI JO | | |
| % Ownership: | 100.0000000000% | | |
| Total Value: | $490,789 | | |
| Tax Area: | 390 - APPRAISER-Cpvl Schl Dist, Special Dist, improved & less than 1 acre |
| CF | Conservation Futures | 0.0313996660 | $490,789 | $490,789 | $15.41 | | |
| CEM2 | Cemetery #2 | 0.0092609791 | $490,789 | $490,789 | $4.55 | | |
| FIRE5 | Fire & Rescue Dist #5 C Whidbey GEN | 1.1892169230 | $490,789 | $490,789 | $583.65 | | |
| FIRE5BOND | Fire & Rescue Dist #5 C Whidbey BOND | 0.1394359503 | $490,789 | $490,789 | $68.43 | | |
| HOBOND | Hospital BOND | 0.1893405597 | $490,789 | $490,789 | $92.93 | | |
| HOGEN | Hospital GEN | 0.3848777722 | $490,789 | $490,789 | $188.89 | | |
| CE | County Current Expense | 0.3674210519 | $490,789 | $490,789 | $180.33 | | |
| CR | County Roads | 0.4614296361 | $490,789 | $490,789 | $226.46 | | |
| ISLANDEMS | Hospital GEN (EMS) | 0.4952018576 | $490,789 | $490,789 | $243.04 | | |
| LIB | Library Sno-Isle GEN | 0.3039084203 | $490,789 | $490,789 | $149.15 | | |
| LIBCAP | Library Sno-Isle BOND (Cap Fac Imp Area) | 0.0528562629 | $490,789 | $490,789 | $25.94 | | |
| POCOUP | Port of Coupeville GEN | 0.1065226063 | $490,789 | $490,789 | $52.28 | | |
| POCOUPIDD | Port of Coupeville IDD | 0.3353038577 | $490,789 | $490,789 | $164.56 | | |
| COUPSDTECH | School 204 CP (TECH) | 0.1215123397 | $490,789 | $490,789 | $59.64 | | |
| SCH204MO | School 204 Enrichment | 0.6416662518 | $490,789 | $490,789 | $314.92 | | |
| ST | State School | 1.4761226122 | $490,789 | $490,789 | $724.46 | | |
| ST2 | State School Part 2 | 0.7953803475 | $490,789 | $490,789 | $390.36 | | |
| | Total Tax Rate: | 7.1008570943 | | | | | |
| | | | | Taxes w/Current Exemptions: | $3,485.00 | | |
| | | | | Taxes w/o Exemptions: | $3,485.00 | | |
Improvement / Building
| Improvement #1: | RESIDENTIAL | State Code: | Y | 1440.2 sqft | Value: | $285,789 |
| Bathrooms: | 2 | Bedrooms: | 2 | | Ceiling: | DRYWALL PAINTED | Cooling: | HEAT PUMP/CONV/V | | Exterior Wall/Cover: | PLY/HARDBOARD T-111 | Floor Covering: | CARPET/VINYL 60-40 | | Floor Structure: | WOOD W/SUBFLOOR | Foundation: | CONCRETE | | Interior Finish: | DRYWALL PAINT | Plumbing Fixture Cnt: | 9 | | Roof Slope: | 6" IN 12" | Roof Structure/Cover: | CJ ASPHALT |
|
| | Type | Description | Class CD | Sub Class CD | Year Built | Area |
| | BAS | BASE/MAIN FLOOR | 3 | 0 | 2020 | 932.2 |
| | AGR | ATTACHED GARAGE | 3 | 0 | 2020 | 440.0 |
| | DWN | DOWNSTAIRS LIVING AREA | 3 | 0 | 2020 | 508.0 |
| | OWP | OPEN WOOD PORCH W/STEPS | 3 | 0 | 2020 | 172.0 |
Sketch
Property Image
Land
| 1 | 13 | SQ (06001-08000) | 0.1653 | 7200.47 | 0.00 | 0.00 | 1.00 | $205,000 | $0 |
Roll Value History
| 2026 | N/A | N/A | N/A | N/A | N/A |
| 2025 | $285,789 | $205,000 | $0 | $490,789 | $490,789 |
| 2024 | $288,076 | $195,000 | $0 | $483,076 | $483,076 |
| 2023 | $290,362 | $200,000 | $0 | $490,362 | $490,362 |
| 2022 | $265,683 | $190,000 | $0 | $455,683 | $455,683 |
| 2021 | $235,228 | $130,000 | $0 | $365,228 | $365,228 |
| 2020 | $99,653 | $35,000 | $0 | $134,653 | $134,653 |
| 2019 | $0 | $35,000 | $0 | $35,000 | $35,000 |
| 2018 | $0 | $35,000 | $0 | $35,000 | $35,000 |
| 2017 | $0 | $30,000 | $0 | $30,000 | $30,000 |
| 2016 | $0 | $30,000 | $0 | $30,000 | $30,000 |
| 2015 | $0 | $30,000 | $0 | $30,000 | $30,000 |
| 2014 | $0 | $30,000 | $0 | $30,000 | $30,000 |
| 2013 | $0 | $30,000 | $0 | $30,000 | $30,000 |
| 2012 | $0 | $41,515 | $0 | $41,515 | $41,515 |
| 2011 | $0 | $41,515 | $0 | $41,515 | $41,515 |
| 2010 | $0 | $41,515 | $0 | $41,515 | $41,515 |
| 2009 | $0 | $60,000 | $0 | $60,000 | $60,000 |
| 2008 | $0 | $37,000 | $0 | $37,000 | $37,000 |
| 2007 | $0 | $40,000 | $0 | $40,000 | $40,000 |
Deed and Sales History
| 1 | 07/29/2025 | WD | Warranty Deed | REINKE, KELLI JO | HJELVIK TTEE, SHELBY | | | $432,500.00 | 64332 | 4589008 |
| 2 | 05/04/2018 | WD | Warranty Deed | RAVE, JAMES E | REINKE, KELLI JO | | | $50,000.00 | 34035 | 4444098 |
| 3 | 12/15/1998 | WD | Warranty Deed | MALONEY, JAMES A | RAVE, JAMES E | | | $32,000.00 | 85067 | 98027774 |
| 4 | 06/24/1998 | WD | Warranty Deed | EXE, ANNE M | MALONEY, JAMES A | | | $25,000.00 | 82488 | 98012947 |
| 5 | 10/01/1997 | DECREE | Divorce Decree/Legal Separation | EXE, JAMES M | EXE, ANNE M | | | $0.00 | 73738 | 97017854 |
| 6 | 08/01/1991 | WD | Warranty Deed | WATSON, LYDIA E | EXE, JAMES M | | | $3,800.00 | 13104 | 91013201 |
| 7 | 12/01/1989 | DECREE | Divorce Decree/Legal Separation | WATSON, CLAUDE | WATSON, LYDIA E | | | $0.00 | 905 | 90002955 |
| 8 | 05/01/1978 | OTHER | Other - Misc. Documents | MALONEY, JAMES A | WATSON, CLAUDE | | | $7,500.00 | 82731 | 334431 |
| 9 | 01/01/1900 | OTHER | Other - Misc. Documents | Unknown | MALONEY, JAMES A | | | $0.00 | 82488 | 98012947 |
Payout Agreement
| No payout information available.. |