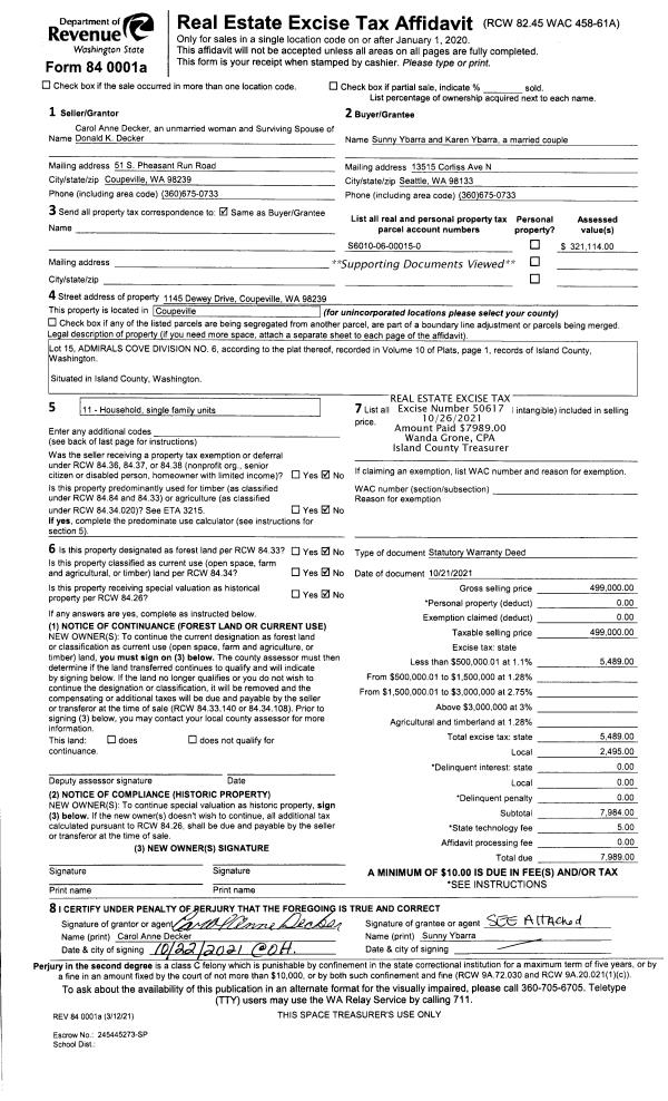
Property
Account |
| Property ID: | 176419 | Abbreviated Legal Description: | ADMIRALS COVE 6 LOT 15 |
| Geographic ID: | S6010-06-00015-0 | Agent Code: | |
| Type: | Real | | |
| Tax Area: | 390 - APPRAISER-Cpvl Schl Dist, Special Dist, improved & less than 1 acre | Land Use Code | 11 |
| Open Space: | N | DFL | N |
| Historic Property: | N | Remodel Property: | N |
| Multi-Family Redevelopment: | N | | |
| Township: | | Section: | |
| Range: | |
Location |
| Address: | 1145 DEWEY DR COUPEVILLE, WA 98239 | Mapsco: | |
| Neighborhood: | Cycle 2 | Map ID: | 59 |
| Neighborhood CD: | 2 |
Owner |
| Name: | YBARRA, SUNNY | Owner ID: | 301787 |
| Mailing Address: | KAREN YBARRA 6820 192ND PL SW LYNWOOD, WA 98036 | % Ownership: | 100.0000000000% |
| | | Exemptions: | |
Taxes and Assessment Details
Values
| (+) Improvement Homesite Value: | + | $0 | |
| (+) Improvement Non-Homesite Value: | + | $306,530 | |
| (+) Land Homesite Value: | + | $0 | |
| (+) Land Non-Homesite Value: | + | $185,000 | |
| (+) Curr Use (HS): | + | $0 | $0 |
| (+) Curr Use (NHS): | + | $0 | $0 |
| | | -------------------------- | |
| (=) Market Value: | = | $491,530 | |
| (–) Productivity Loss: | – | $0 | |
| | | -------------------------- | |
| (=) Subtotal: | = | $491,530 | |
| (+) Senior Appraised Value: | + | $0 | |
| (+) Non-Senior Appraised Value: | + | $491,530 | |
| | | -------------------------- | |
| (=) Total Appraised Value: | = | $491,530 | |
| (–) Senior Exemption Loss: | – | $0 | |
| (–) Exemption Loss: | – | $0 | |
| | | -------------------------- | |
| (=) Taxable Value: | = | $491,530 | |
Taxing Jurisdiction
| Owner: | YBARRA, SUNNY | | |
| % Ownership: | 100.0000000000% | | |
| Total Value: | $491,530 | | |
| Tax Area: | 390 - APPRAISER-Cpvl Schl Dist, Special Dist, improved & less than 1 acre |
| CF | Conservation Futures | 0.0313996660 | $491,530 | $491,530 | $15.43 | | |
| CEM2 | Cemetery #2 | 0.0092609791 | $491,530 | $491,530 | $4.55 | | |
| FIRE5 | Fire & Rescue Dist #5 C Whidbey GEN | 1.1892169230 | $491,530 | $491,530 | $584.54 | | |
| FIRE5BOND | Fire & Rescue Dist #5 C Whidbey BOND | 0.1394359503 | $491,530 | $491,530 | $68.54 | | |
| HOBOND | Hospital BOND | 0.1893405597 | $491,530 | $491,530 | $93.07 | | |
| HOGEN | Hospital GEN | 0.3848777722 | $491,530 | $491,530 | $189.18 | | |
| CE | County Current Expense | 0.3674210519 | $491,530 | $491,530 | $180.60 | | |
| CR | County Roads | 0.4614296361 | $491,530 | $491,530 | $226.81 | | |
| ISLANDEMS | Hospital GEN (EMS) | 0.4952018576 | $491,530 | $491,530 | $243.41 | | |
| LIB | Library Sno-Isle GEN | 0.3039084203 | $491,530 | $491,530 | $149.38 | | |
| LIBCAP | Library Sno-Isle BOND (Cap Fac Imp Area) | 0.0528562629 | $491,530 | $491,530 | $25.98 | | |
| POCOUP | Port of Coupeville GEN | 0.1065226063 | $491,530 | $491,530 | $52.36 | | |
| POCOUPIDD | Port of Coupeville IDD | 0.3353038577 | $491,530 | $491,530 | $164.81 | | |
| COUPSDTECH | School 204 CP (TECH) | 0.1215123397 | $491,530 | $491,530 | $59.73 | | |
| SCH204MO | School 204 Enrichment | 0.6416662518 | $491,530 | $491,530 | $315.40 | | |
| ST | State School | 1.4761226122 | $491,530 | $491,530 | $725.56 | | |
| ST2 | State School Part 2 | 0.7953803475 | $491,530 | $491,530 | $390.95 | | |
| | Total Tax Rate: | 7.1008570943 | | | | | |
| | | | | Taxes w/Current Exemptions: | $3,490.30 | | |
| | | | | Taxes w/o Exemptions: | $3,490.30 | | |
Improvement / Building
| Improvement #1: | RESIDENTIAL | State Code: | Y | 1543.0 sqft | Value: | $306,530 |
| Bathrooms: | 2 | Bedrooms: | 2 | | Ceiling: | TONGUE & GROOVE | Exterior Wall/Cover: | LOG TO 10" | | Floor Covering: | CARPET/VINYL 80-20 | Floor Structure: | WOOD W/SUBFLOOR | | Foundation: | CONCRETE | Heating: | BASEBOARD ELECTRIC | | Interior Finish: | DRYWALL PAINT | Plumbing Fixture Cnt: | 9 | | Roof Slope: | 8" IN 12" | Roof Structure/Cover: | BEAM ALUMINUM HEAVY |
|
| | Type | Description | Class CD | Sub Class CD | Year Built | Area |
| | BAS | BASE/MAIN FLOOR | 4 | 0 | 1986 | 952.0 |
| | OWC | OPEN WOOD PORCH W/STEPS/ROOF/C | 4 | 0 | 1986 | 256.0 |
| | OWP | OPEN WOOD PORCH W/STEPS | 4 | 0 | 1986 | 356.0 |
| | OWC | OPEN WOOD PORCH W/STEPS/ROOF/C | 4 | 0 | 1986 | 72.0 |
| | LOF | LOFT | 4 | 0 | 1986 | 591.0 |
| | UTY | STORAGE/UTILITY | 4 | 0 | 1986 | 390.0 |
Sketch
Property Image
Land
| 1 | 14 | SQ (08001-12000) | 0.2019 | 8794.76 | 0.00 | 0.00 | 1.00 | $185,000 | $0 |
Roll Value History
| 2026 | N/A | N/A | N/A | N/A | N/A |
| 2025 | $306,530 | $185,000 | $0 | $491,530 | $491,530 |
| 2024 | $326,855 | $175,000 | $0 | $501,855 | $501,855 |
| 2023 | $330,828 | $175,000 | $0 | $505,828 | $505,828 |
| 2022 | $303,166 | $160,000 | $0 | $463,166 | $463,166 |
| 2021 | $196,114 | $125,000 | $0 | $321,114 | $321,114 |
| 2020 | $191,414 | $100,000 | $0 | $291,414 | $122,559 |
| 2019 | $140,665 | $140,000 | $0 | $280,665 | $122,559 |
| 2018 | $134,329 | $115,000 | $0 | $249,329 | $122,559 |
| 2017 | $135,174 | $100,000 | $0 | $235,174 | $122,559 |
| 2016 | $136,863 | $65,000 | $0 | $201,863 | $122,559 |
| 2015 | $138,553 | $50,000 | $0 | $188,553 | $122,559 |
| 2014 | $140,243 | $50,000 | $0 | $190,243 | $190,243 |
| 2013 | $141,932 | $50,000 | $0 | $191,932 | $191,932 |
| 2012 | $137,988 | $49,227 | $0 | $187,215 | $187,215 |
| 2011 | $139,831 | $57,914 | $0 | $197,745 | $197,745 |
| 2010 | $144,685 | $57,914 | $0 | $202,599 | $202,599 |
| 2009 | $151,075 | $80,000 | $0 | $231,075 | $231,075 |
| 2008 | $153,084 | $80,000 | $0 | $233,084 | $233,084 |
| 2007 | $155,199 | $80,000 | $0 | $235,199 | $235,199 |
Deed and Sales History
| 1 | 10/21/2021 | WD | Warranty Deed | DECKER, DONALD R | YBARRA, SUNNY | | | $499,000.00 | 50617 | 4532286 |
| 2 | 09/26/2011 | WD | Warranty Deed | JOHNSTON, DONALD D / SHELLEY | DECKER, DONALD R | | | $186,000.00 | 5672 | 4302001 |
| 3 | 03/01/1993 | WD | Warranty Deed | ZAT, BEVERLY J | JOHNSTON, DONALD D | | | $110,000.00 | 30955 | 93005001 |
| 4 | 08/01/1988 | QCD | Quit Claim Deed | ZAT, BEVERLY J | ZAT, BEVERLY J | | | $0.00 | 82729 | 88010297 |
| 5 | 08/01/1988 | QCD | Quit Claim Deed | ZAT, BEVERLY J | ZAT, BEVERLY J | | | $0.00 | 82729 | 88010297 |
| 6 | 07/01/1988 | PRD | Personal Representatives Deed | GRUBB, WESLEY R | ZAT, BEVERLY J | | | $0.00 | 82348 | 88008846 |
| 7 | 10/01/1984 | WD | Warranty Deed | KOETJE, GORDON H | GRUBB, WESLEY R | | | $11,000.00 | 43020 | 84004472 |
| 8 | 08/01/1984 | QCD | Quit Claim Deed | GROWNEY, WILLIAM C | KOETJE, GORDON H | | | $10,350.00 | 42344 | 84001759 |
| 9 | 03/01/1984 | QCD | Quit Claim Deed | GROWNEY, WILLIAM C | GROWNEY, WILLIAM C | | | $0.00 | 40593 | 421834 |
| 10 | 01/01/1982 | CD | DNU - Correction Deed | GROWNEY, WILLIAM C | GROWNEY, WILLIAM C | | | $1.00 | 20067 | 391981 |
| 11 | 07/01/1980 | EZ | Easement | WOOD, JOSEPH E | GROWNEY, WILLIAM C | | | $0.00 | 2184 | 370541 |
| 12 | 01/01/1900 | OTHER | Other - Misc. Documents | Unknown | WOOD, JOSEPH E | | | $0.00 | 0 | 0 |
Payout Agreement
| No payout information available.. |