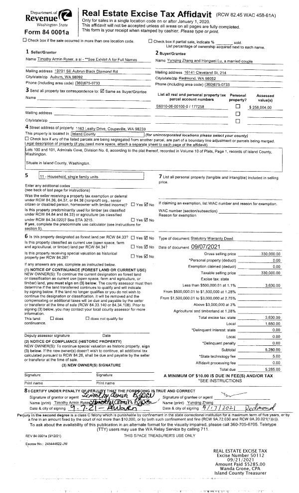
Property
Account |
| Property ID: | 177258 | Abbreviated Legal Description: | ADMIRALS COVE 6 LOTS 100 & 101 |
| Geographic ID: | S6010-06-00100-0 | Agent Code: | |
| Type: | Real | | |
| Tax Area: | 390 - APPRAISER-Cpvl Schl Dist, Special Dist, improved & less than 1 acre | Land Use Code | 11 |
| Open Space: | N | DFL | N |
| Historic Property: | N | Remodel Property: | N |
| Multi-Family Redevelopment: | N | | |
| Township: | | Section: | |
| Range: | |
Location |
| Address: | 1163 LEAHY DR COUPEVILLE, WA 98239 | Mapsco: | |
| Neighborhood: | Cycle 2 | Map ID: | 59 |
| Neighborhood CD: | 2 |
Owner |
| Name: | ZHANG, YUNQING | Owner ID: | 301237 |
| Mailing Address: | HONGWEI LU 13138 129TH AVE NE KIRKLAND, WA 98034-3218 | % Ownership: | 100.0000000000% |
| | | Exemptions: | |
Taxes and Assessment Details
Values
| (+) Improvement Homesite Value: | + | $0 | |
| (+) Improvement Non-Homesite Value: | + | $160,856 | |
| (+) Land Homesite Value: | + | $0 | |
| (+) Land Non-Homesite Value: | + | $185,000 | |
| (+) Curr Use (HS): | + | $0 | $0 |
| (+) Curr Use (NHS): | + | $0 | $0 |
| | | -------------------------- | |
| (=) Market Value: | = | $345,856 | |
| (–) Productivity Loss: | – | $0 | |
| | | -------------------------- | |
| (=) Subtotal: | = | $345,856 | |
| (+) Senior Appraised Value: | + | $0 | |
| (+) Non-Senior Appraised Value: | + | $345,856 | |
| | | -------------------------- | |
| (=) Total Appraised Value: | = | $345,856 | |
| (–) Senior Exemption Loss: | – | $0 | |
| (–) Exemption Loss: | – | $0 | |
| | | -------------------------- | |
| (=) Taxable Value: | = | $345,856 | |
Taxing Jurisdiction
| Owner: | ZHANG, YUNQING | | |
| % Ownership: | 100.0000000000% | | |
| Total Value: | $345,856 | | |
| Tax Area: | 390 - APPRAISER-Cpvl Schl Dist, Special Dist, improved & less than 1 acre |
| CF | Conservation Futures | 0.0313996660 | $345,856 | $345,856 | $10.86 | | |
| CEM2 | Cemetery #2 | 0.0092609791 | $345,856 | $345,856 | $3.20 | | |
| FIRE5 | Fire & Rescue Dist #5 C Whidbey GEN | 1.1892169230 | $345,856 | $345,856 | $411.30 | | |
| FIRE5BOND | Fire & Rescue Dist #5 C Whidbey BOND | 0.1394359503 | $345,856 | $345,856 | $48.22 | | |
| HOBOND | Hospital BOND | 0.1893405597 | $345,856 | $345,856 | $65.48 | | |
| HOGEN | Hospital GEN | 0.3848777722 | $345,856 | $345,856 | $133.11 | | |
| CE | County Current Expense | 0.3674210519 | $345,856 | $345,856 | $127.07 | | |
| CR | County Roads | 0.4614296361 | $345,856 | $345,856 | $159.59 | | |
| ISLANDEMS | Hospital GEN (EMS) | 0.4952018576 | $345,856 | $345,856 | $171.27 | | |
| LIB | Library Sno-Isle GEN | 0.3039084203 | $345,856 | $345,856 | $105.11 | | |
| LIBCAP | Library Sno-Isle BOND (Cap Fac Imp Area) | 0.0528562629 | $345,856 | $345,856 | $18.28 | | |
| POCOUP | Port of Coupeville GEN | 0.1065226063 | $345,856 | $345,856 | $36.84 | | |
| POCOUPIDD | Port of Coupeville IDD | 0.3353038577 | $345,856 | $345,856 | $115.97 | | |
| COUPSDTECH | School 204 CP (TECH) | 0.1215123397 | $345,856 | $345,856 | $42.03 | | |
| SCH204MO | School 204 Enrichment | 0.6416662518 | $345,856 | $345,856 | $221.92 | | |
| ST | State School | 1.4761226122 | $345,856 | $345,856 | $510.53 | | |
| ST2 | State School Part 2 | 0.7953803475 | $345,856 | $345,856 | $275.09 | | |
| | Total Tax Rate: | 7.1008570943 | | | | | |
| | | | | Taxes w/Current Exemptions: | $2,455.87 | | |
| | | | | Taxes w/o Exemptions: | $2,455.87 | | |
Improvement / Building
| Improvement #1: | RESIDENTIAL | State Code: | Y | 950.0 sqft | Value: | $160,856 |
| Bathrooms: | 1 | Bedrooms: | 2 | | Ceiling: | DRY WALL SPRAYED | Exterior Wall/Cover: | PLY/HARDBOARD T-111 | | Floor Covering: | CARPET/VINYL 80-20 | Floor Structure: | WOOD W/SUBFLOOR | | Foundation: | CONCRETE | Heating: | BASEBOARD ELECTRIC | | Interior Finish: | DRYWALL PAINT | Plumbing Fixture Cnt: | 6 | | Roof Slope: | 4" IN 12" | Roof Structure/Cover: | CJ ASPHALT |
|
| | Type | Description | Class CD | Sub Class CD | Year Built | Area |
| | BAS | BASE/MAIN FLOOR | 3 | 0 | 1981 | 950.0 |
| | OCP | OPEN CARPORT | 3 | 0 | 1981 | 552.0 |
| | UTY | STORAGE/UTILITY | 3 | 0 | 1981 | 240.0 |
| | OWP | OPEN WOOD PORCH W/STEPS | 3 | 0 | 1981 | 24.0 |
| | OWP | OPEN WOOD PORCH W/STEPS | 3 | 0 | 1981 | 244.0 |
| | OWR | OPEN WOOD PORCH W/STEPS/ROOF | 3 | 0 | 1981 | 90.0 |
Sketch
Property Image
Land
| 1 | 15 | SQ (12001-21780) | 0.3485 | 15180.66 | 0.00 | 0.00 | 1.00 | $185,000 | $0 |
Roll Value History
| 2026 | N/A | N/A | N/A | N/A | N/A |
| 2025 | $160,856 | $185,000 | $0 | $345,856 | $345,856 |
| 2024 | $161,997 | $175,000 | $0 | $336,997 | $336,997 |
| 2023 | $164,303 | $175,000 | $0 | $339,303 | $339,303 |
| 2022 | $150,872 | $160,000 | $0 | $310,872 | $310,872 |
| 2021 | $133,004 | $125,000 | $0 | $258,004 | $258,004 |
| 2020 | $129,717 | $100,000 | $0 | $229,717 | $229,717 |
| 2019 | $91,880 | $140,000 | $0 | $231,880 | $231,880 |
| 2018 | $89,925 | $115,000 | $0 | $204,925 | $204,925 |
| 2017 | $90,553 | $100,000 | $0 | $190,553 | $190,553 |
| 2016 | $91,812 | $65,000 | $0 | $156,812 | $156,812 |
| 2015 | $93,069 | $65,000 | $0 | $158,069 | $158,069 |
| 2014 | $94,327 | $65,000 | $0 | $159,327 | $159,327 |
| 2013 | $95,583 | $65,000 | $0 | $160,583 | $160,583 |
| 2012 | $85,224 | $59,548 | $0 | $144,772 | $144,772 |
| 2011 | $86,445 | $70,057 | $0 | $156,502 | $156,502 |
| 2010 | $93,148 | $70,057 | $0 | $163,205 | $163,205 |
| 2009 | $97,181 | $90,000 | $0 | $187,181 | $187,181 |
| 2008 | $98,483 | $90,000 | $0 | $188,483 | $188,483 |
| 2007 | $99,766 | $90,000 | $0 | $189,766 | $189,766 |
Deed and Sales History
| 1 | 09/07/2021 | WD | Warranty Deed | RYSER, TIMOTHY ARMIN (60%) | ZHANG, YUNQING | | | $330,000.00 | 50112 | 4529567 |
| 2 | 12/26/2018 | PRD | Personal Representatives Deed | RYSER, VIRGINIA | RYSER, TIMOTHY ARMIN (60%) | | | $0.00 | 37140 | 4457254 |
| 3 | 01/09/2018 | PRD | Personal Representatives Deed | COLES, PHILLIP M | RYSER, VIRGINIA | | | $0.00 | 33448 | 4441544 |
| 4 | 09/19/2002 | WD | Warranty Deed | HENSLEE, JERRY D | COLES, PHILLIP M | | | $136,000.00 | 23879 | 4032790 |
| 5 | 01/01/1997 | WD | Warranty Deed | BRUDIGAM, NELDA J | HENSLEE, JERRY D | | | $108,000.00 | 71085 | 97004922 |
| 6 | 03/01/1990 | OTHER | Other - Misc. Documents | BRUDIGAM, LESLIE M | BRUDIGAM, NELDA J | | | $0.00 | 63554 | 90004067 |
| 7 | 07/01/1980 | EXECUTORD | Executor Deed | KEMP, RICHARD E | BRUDIGAM, LESLIE M | | | $50,000.00 | 2253 | 370720 |
| 8 | 01/01/1900 | OTHER | Other - Misc. Documents | Unknown | KEMP, RICHARD E | | | $0.00 | 72690 | 0 |
Payout Agreement
| No payout information available.. |