Property
Account |
| Property ID: | 177855 | Abbreviated Legal Description: | ADMIRALS COVE 7 LOT 13 |
| Geographic ID: | S6010-07-00013-0 | Agent Code: | |
| Type: | Real | | |
| Tax Area: | 390 - APPRAISER-Cpvl Schl Dist, Special Dist, improved & less than 1 acre | Land Use Code | 11 |
| Open Space: | N | DFL | N |
| Historic Property: | N | Remodel Property: | N |
| Multi-Family Redevelopment: | N | | |
| Township: | | Section: | |
| Range: | |
Location |
| Address: | 1256 MITSCHER DR COUPEVILLE, WA 98239 | Mapsco: | |
| Neighborhood: | Cycle 2 | Map ID: | 495 |
| Neighborhood CD: | 2 |
Owner |
| Name: | DEY JR, WAYNE EARL | Owner ID: | 313748 |
| Mailing Address: | ERIKA ELIZABETH TORRES FIGUEROA 1256 MITSCHER DR COUPEVILLE, WA 98239 | % Ownership: | 100.0000000000% |
| | | Exemptions: | |
Taxes and Assessment Details
Values
| (+) Improvement Homesite Value: | + | $0 | |
| (+) Improvement Non-Homesite Value: | + | $296,263 | |
| (+) Land Homesite Value: | + | $0 | |
| (+) Land Non-Homesite Value: | + | $185,000 | |
| (+) Curr Use (HS): | + | $0 | $0 |
| (+) Curr Use (NHS): | + | $0 | $0 |
| | | -------------------------- | |
| (=) Market Value: | = | $481,263 | |
| (–) Productivity Loss: | – | $0 | |
| | | -------------------------- | |
| (=) Subtotal: | = | $481,263 | |
| (+) Senior Appraised Value: | + | $0 | |
| (+) Non-Senior Appraised Value: | + | $481,263 | |
| | | -------------------------- | |
| (=) Total Appraised Value: | = | $481,263 | |
| (–) Senior Exemption Loss: | – | $0 | |
| (–) Exemption Loss: | – | $0 | |
| | | -------------------------- | |
| (=) Taxable Value: | = | $481,263 | |
Taxing Jurisdiction
| Owner: | DEY JR, WAYNE EARL | | |
| % Ownership: | 100.0000000000% | | |
| Total Value: | $481,263 | | |
| Tax Area: | 390 - APPRAISER-Cpvl Schl Dist, Special Dist, improved & less than 1 acre |
| CF | Conservation Futures | 0.0313996660 | $481,263 | $481,263 | $15.11 | | |
| CEM2 | Cemetery #2 | 0.0092609791 | $481,263 | $481,263 | $4.46 | | |
| FIRE5 | Fire & Rescue Dist #5 C Whidbey GEN | 1.1892169230 | $481,263 | $481,263 | $572.33 | | |
| FIRE5BOND | Fire & Rescue Dist #5 C Whidbey BOND | 0.1394359503 | $481,263 | $481,263 | $67.11 | | |
| HOBOND | Hospital BOND | 0.1893405597 | $481,263 | $481,263 | $91.12 | | |
| HOGEN | Hospital GEN | 0.3848777722 | $481,263 | $481,263 | $185.23 | | |
| CE | County Current Expense | 0.3674210519 | $481,263 | $481,263 | $176.83 | | |
| CR | County Roads | 0.4614296361 | $481,263 | $481,263 | $222.07 | | |
| ISLANDEMS | Hospital GEN (EMS) | 0.4952018576 | $481,263 | $481,263 | $238.32 | | |
| LIB | Library Sno-Isle GEN | 0.3039084203 | $481,263 | $481,263 | $146.26 | | |
| LIBCAP | Library Sno-Isle BOND (Cap Fac Imp Area) | 0.0528562629 | $481,263 | $481,263 | $25.44 | | |
| POCOUP | Port of Coupeville GEN | 0.1065226063 | $481,263 | $481,263 | $51.27 | | |
| POCOUPIDD | Port of Coupeville IDD | 0.3353038577 | $481,263 | $481,263 | $161.37 | | |
| COUPSDTECH | School 204 CP (TECH) | 0.1215123397 | $481,263 | $481,263 | $58.48 | | |
| SCH204MO | School 204 Enrichment | 0.6416662518 | $481,263 | $481,263 | $308.81 | | |
| ST | State School | 1.4761226122 | $481,263 | $481,263 | $710.40 | | |
| ST2 | State School Part 2 | 0.7953803475 | $481,263 | $481,263 | $382.79 | | |
| | Total Tax Rate: | 7.1008570943 | | | | | |
| | | | | Taxes w/Current Exemptions: | $3,417.40 | | |
| | | | | Taxes w/o Exemptions: | $3,417.40 | | |
Improvement / Building
| Improvement #1: | RESIDENTIAL | State Code: | Y | 1558.0 sqft | Value: | $296,263 |
| Bathrooms: | 2.5 | Bedrooms: | 3 | | Ceiling: | DRYWALL PAINTED | Exterior Wall/Cover: | CEMENT FIBER | | Floor Covering: | CARPET/VINYL 80-20 | Floor Structure: | WOOD W/SUBFLOOR | | Foundation: | CONCRETE | Heating: | FHA GAS | | Interior Finish: | DRYWALL PAINT | Plumbing Fixture Cnt: | 12 | | Roof Slope: | 4" IN 12" | Roof Structure/Cover: | CJ ASPHALT |
|
| | Type | Description | Class CD | Sub Class CD | Year Built | Area |
| | BAS | BASE/MAIN FLOOR | 3 | 0 | 2004 | 762.0 |
| | AGR | ATTACHED GARAGE | 3 | 0 | 2004 | 484.0 |
| | UPS | UPPER STORY | 3 | 0 | 2004 | 796.0 |
| | OWP | OPEN WOOD PORCH W/STEPS | 3 | 0 | 2004 | 80.0 |
| | OWC | OPEN WOOD PORCH W/STEPS/ROOF/C | 3 | 0 | 2004 | 115.0 |
Sketch
Property Image
Land
| 1 | 13 | SQ (06001-08000) | 0.1743 | 7592.51 | 0.00 | 0.00 | 1.00 | $185,000 | $0 |
Roll Value History
| 2026 | N/A | N/A | N/A | N/A | N/A |
| 2025 | $296,263 | $185,000 | $0 | $481,263 | $481,263 |
| 2024 | $284,632 | $175,000 | $0 | $459,632 | $459,632 |
| 2023 | $288,010 | $175,000 | $0 | $463,010 | $463,010 |
| 2022 | $263,855 | $160,000 | $0 | $423,855 | $423,855 |
| 2021 | $232,099 | $125,000 | $0 | $357,099 | $357,099 |
| 2020 | $225,526 | $100,000 | $0 | $325,526 | $325,526 |
| 2019 | $161,851 | $140,000 | $0 | $301,851 | $301,851 |
| 2018 | $160,667 | $115,000 | $0 | $275,667 | $275,667 |
| 2017 | $161,574 | $100,000 | $0 | $261,574 | $261,574 |
| 2016 | $163,390 | $65,000 | $0 | $228,390 | $228,390 |
| 2015 | $165,206 | $50,000 | $0 | $215,206 | $215,206 |
| 2014 | $167,020 | $50,000 | $0 | $217,020 | $217,020 |
| 2013 | $168,836 | $50,000 | $0 | $218,836 | $218,836 |
| 2012 | $176,963 | $49,227 | $0 | $226,190 | $226,190 |
| 2011 | $178,909 | $57,914 | $0 | $236,823 | $236,823 |
| 2010 | $183,339 | $57,914 | $0 | $241,253 | $241,253 |
| 2009 | $192,965 | $80,000 | $0 | $272,965 | $272,965 |
| 2008 | $193,110 | $80,000 | $0 | $273,110 | $273,110 |
| 2007 | $195,212 | $80,000 | $0 | $275,212 | $275,212 |
Deed and Sales History
| 1 | 08/22/2024 | WD | Warranty Deed | MORENO, ANTHONY | DEY JR, WAYNE EARL | | | $500,000.00 | 61149 | 4576622 |
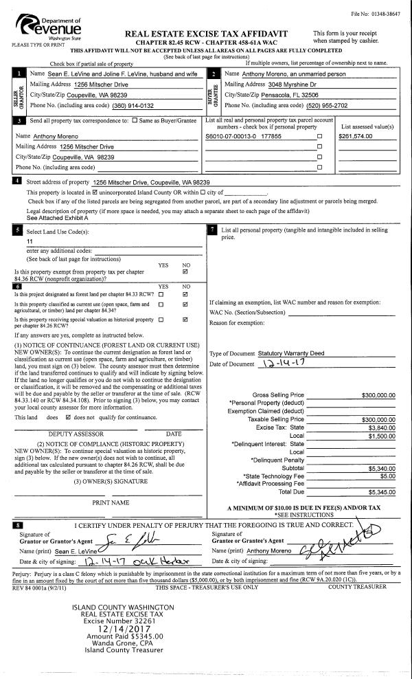
| 2 | 12/14/2017 | WD | Warranty Deed | LEVINE, SEAN E | MORENO, ANTHONY | | | $300,000.00 | 32261 | 4435694 |
| 3 | 05/24/2004 | WD | Warranty Deed | ISLAND HERITAGE LLC, | LE VINE, SEAL E | | | $187,785.00 | 42238 | 4101815 |
| 4 | 12/04/2003 | WD | Warranty Deed | WOOD, DONALD L | ISLAND HERITAGE LLC, | | | $16,000.00 | 35509 | 4085373 |
| 5 | 05/01/1991 | WD | Warranty Deed | WOOD, DONALD L | WOOD, DONALD L | | | $0.00 | 12262 | 91009721 |
| 6 | 08/01/1990 | WD | Warranty Deed | KNUTSON, STEVEN M | WOOD, DONALD L | | | $10,000.00 | 4682 | 90015501 |
| 7 | 08/01/1980 | TRUSTEED | Trustee's Deed | KAUT, GRACE | KNUTSON, STEVEN M | | | $5,500.00 | 2698 | 372349 |
| 8 | 01/01/1900 | OTHER | Other - Misc. Documents | Unknown | KAUT, GRACE | | | $3,350.00 | 0 | 0 |
Payout Agreement
| No payout information available.. |