Property
Account |
| Property ID: | 178006 | Abbreviated Legal Description: | ADMIRALS COVE 7 LOT 28 |
| Geographic ID: | S6010-07-00028-0 | Agent Code: | |
| Type: | Real | | |
| Tax Area: | 390 - APPRAISER-Cpvl Schl Dist, Special Dist, improved & less than 1 acre | Land Use Code | 11 |
| Open Space: | N | DFL | N |
| Historic Property: | N | Remodel Property: | N |
| Multi-Family Redevelopment: | N | | |
| Township: | | Section: | |
| Range: | |
Location |
| Address: | 1255 MITSCHER DR COUPEVILLE, WA 98239 | Mapsco: | |
| Neighborhood: | Cycle 2 | Map ID: | 495 |
| Neighborhood CD: | 2 |
Owner |
| Name: | ROUSE, RICHARD L | Owner ID: | 317045 |
| Mailing Address: | TRUEE A ROUSE 125 MITSCHER DR COUPEVILLE, WA 98239 | % Ownership: | 100.0000000000% |
| | | Exemptions: | |
Taxes and Assessment Details
Values
| (+) Improvement Homesite Value: | + | $0 | |
| (+) Improvement Non-Homesite Value: | + | $312,818 | |
| (+) Land Homesite Value: | + | $0 | |
| (+) Land Non-Homesite Value: | + | $185,000 | |
| (+) Curr Use (HS): | + | $0 | $0 |
| (+) Curr Use (NHS): | + | $0 | $0 |
| | | -------------------------- | |
| (=) Market Value: | = | $497,818 | |
| (–) Productivity Loss: | – | $0 | |
| | | -------------------------- | |
| (=) Subtotal: | = | $497,818 | |
| (+) Senior Appraised Value: | + | $0 | |
| (+) Non-Senior Appraised Value: | + | $497,818 | |
| | | -------------------------- | |
| (=) Total Appraised Value: | = | $497,818 | |
| (–) Senior Exemption Loss: | – | $0 | |
| (–) Exemption Loss: | – | $0 | |
| | | -------------------------- | |
| (=) Taxable Value: | = | $497,818 | |
Taxing Jurisdiction
| Owner: | ROUSE, RICHARD L | | |
| % Ownership: | 100.0000000000% | | |
| Total Value: | $497,818 | | |
| Tax Area: | 390 - APPRAISER-Cpvl Schl Dist, Special Dist, improved & less than 1 acre |
| CF | Conservation Futures | 0.0313996660 | $497,818 | $497,818 | $15.63 | | |
| CEM2 | Cemetery #2 | 0.0092609791 | $497,818 | $497,818 | $4.61 | | |
| FIRE5 | Fire & Rescue Dist #5 C Whidbey GEN | 1.1892169230 | $497,818 | $497,818 | $592.01 | | |
| FIRE5BOND | Fire & Rescue Dist #5 C Whidbey BOND | 0.1394359503 | $497,818 | $497,818 | $69.41 | | |
| HOBOND | Hospital BOND | 0.1893405597 | $497,818 | $497,818 | $94.26 | | |
| HOGEN | Hospital GEN | 0.3848777722 | $497,818 | $497,818 | $191.60 | | |
| CE | County Current Expense | 0.3674210519 | $497,818 | $497,818 | $182.91 | | |
| CR | County Roads | 0.4614296361 | $497,818 | $497,818 | $229.71 | | |
| ISLANDEMS | Hospital GEN (EMS) | 0.4952018576 | $497,818 | $497,818 | $246.52 | | |
| LIB | Library Sno-Isle GEN | 0.3039084203 | $497,818 | $497,818 | $151.29 | | |
| LIBCAP | Library Sno-Isle BOND (Cap Fac Imp Area) | 0.0528562629 | $497,818 | $497,818 | $26.31 | | |
| POCOUP | Port of Coupeville GEN | 0.1065226063 | $497,818 | $497,818 | $53.03 | | |
| POCOUPIDD | Port of Coupeville IDD | 0.3353038577 | $497,818 | $497,818 | $166.92 | | |
| COUPSDTECH | School 204 CP (TECH) | 0.1215123397 | $497,818 | $497,818 | $60.49 | | |
| SCH204MO | School 204 Enrichment | 0.6416662518 | $497,818 | $497,818 | $319.43 | | |
| ST | State School | 1.4761226122 | $497,818 | $497,818 | $734.84 | | |
| ST2 | State School Part 2 | 0.7953803475 | $497,818 | $497,818 | $395.95 | | |
| | Total Tax Rate: | 7.1008570943 | | | | | |
| | | | | Taxes w/Current Exemptions: | $3,534.92 | | |
| | | | | Taxes w/o Exemptions: | $3,534.92 | | |
Improvement / Building
| Improvement #1: | RESIDENTIAL | State Code: | Y | 1622.0 sqft | Value: | $312,818 |
| Bathrooms: | 2 | Bedrooms: | 3 | | Ceiling: | DRYWALL PAINTED | Exterior Wall/Cover: | CEMENT FIBER | | Floor Covering: | VINYL 100% | Floor Structure: | WOOD W/SUBFLOOR | | Foundation: | CONCRETE | Heating: | FHA GAS | | Interior Finish: | DRYWALL PAINT | Plumbing Fixture Cnt: | 11 | | Roof Slope: | 6" IN 12" | Roof Structure/Cover: | CJ ASPHALT |
|
| | Type | Description | Class CD | Sub Class CD | Year Built | Area |
| | BAS | BASE/MAIN FLOOR | 3 | 0 | 2005 | 1622.0 |
| | OP2 | OPEN PORCH W/STEPS | 3 | 0 | 2005 | 20.0 |
| | AGR | ATTACHED GARAGE | 3 | 0 | 2005 | 440.0 |
| | OWP | OPEN WOOD PORCH W/STEPS | 3 | 0 | 2005 | 450.0 |
Sketch
Property Image
Land
| 1 | 13 | SQ (06001-08000) | 0.1746 | 7605.58 | 0.00 | 0.00 | 1.00 | $185,000 | $0 |
Roll Value History
| 2026 | N/A | N/A | N/A | N/A | N/A |
| 2025 | $312,818 | $185,000 | $0 | $497,818 | $497,818 |
| 2024 | $300,482 | $175,000 | $0 | $475,482 | $475,482 |
| 2023 | $304,007 | $175,000 | $0 | $479,007 | $479,007 |
| 2022 | $278,472 | $160,000 | $0 | $438,472 | $438,472 |
| 2021 | $244,927 | $125,000 | $0 | $369,927 | $369,927 |
| 2020 | $238,251 | $100,000 | $0 | $338,251 | $338,251 |
| 2019 | $172,713 | $140,000 | $0 | $312,713 | $312,713 |
| 2018 | $160,450 | $115,000 | $0 | $275,450 | $275,450 |
| 2017 | $161,356 | $100,000 | $0 | $261,356 | $261,356 |
| 2016 | $163,170 | $65,000 | $0 | $228,170 | $228,170 |
| 2015 | $164,982 | $50,000 | $0 | $214,982 | $214,982 |
| 2014 | $166,795 | $50,000 | $0 | $216,795 | $216,795 |
| 2013 | $168,608 | $50,000 | $0 | $218,608 | $218,608 |
| 2012 | $176,761 | $49,227 | $0 | $225,988 | $225,988 |
| 2011 | $178,665 | $57,914 | $0 | $236,579 | $236,579 |
| 2010 | $187,600 | $57,914 | $0 | $245,514 | $245,514 |
| 2009 | $193,514 | $80,000 | $0 | $273,514 | $273,514 |
| 2008 | $195,696 | $80,000 | $0 | $275,696 | $275,696 |
| 2007 | $197,890 | $80,000 | $0 | $277,890 | $277,890 |
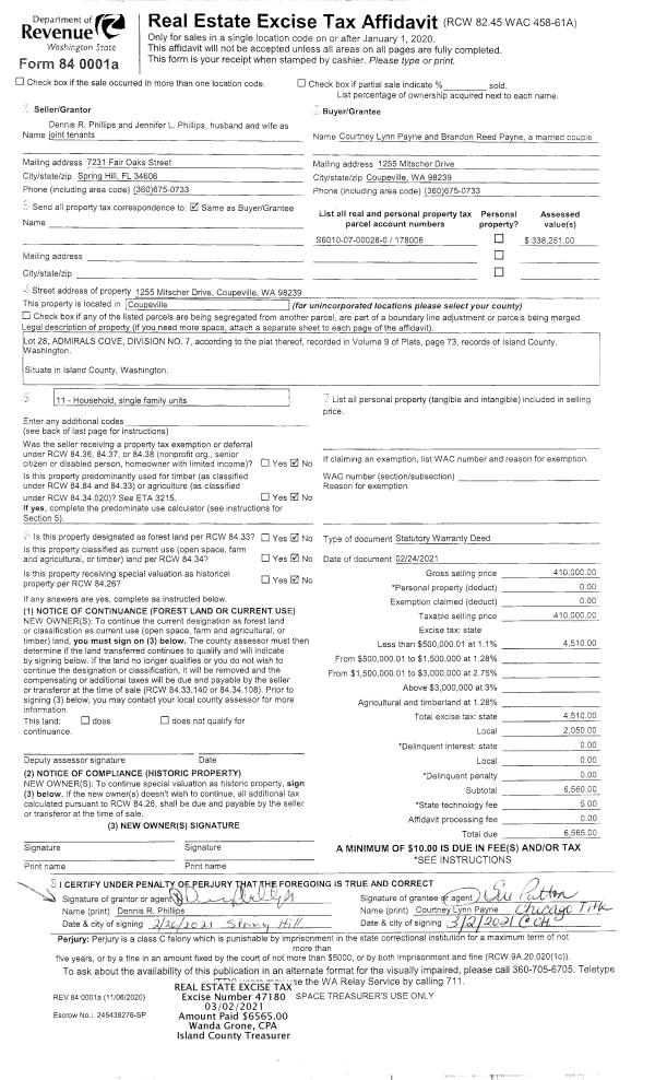
Deed and Sales History
| 1 | 06/19/2025 | WD | Warranty Deed | PAYNE, COURTNEY LYNN | ROUSE, RICHARD L | | | $470,000.00 | 63895 | 4587299 |
| 2 | 02/24/2021 | WD | Warranty Deed | PHILLIPS, DENNIS R | PAYNE, COURTNEY LYNN | | | $410,000.00 | 47180 | 4512482 |
| 3 | 08/20/2018 | WD | Warranty Deed | FARAGE, MICHAEL A | PHILLIPS, DENNIS R | | | $310,000.00 | 35554 | 4450282 |
| 4 | 04/28/2005 | WD | Warranty Deed | M HAWK CONSTRUCTION INC, | FARAGE, MICHAEL A | | | $190,130.00 | 52085 | 4133971 |
| 5 | 09/02/2004 | WD | Warranty Deed | PERRINE, DENNIS | M HAWK CONSTRUCTION INC, | | | $14,000.00 | 44210 | 4112334 |
| 6 | 11/06/2002 | DECREE | Divorce Decree/Legal Separation | PERRINE, DENNIS & | PERRINE, DENNIS | | | $0.00 | 35295 | 4083923 |
| 7 | 11/01/1992 | QCD | Quit Claim Deed | BAILEY, EDNA S | PERRINE, DENNIS & | | | $0.00 | 25023 | 92024792 |
| 8 | 10/01/1991 | OTHER | Other - Misc. Documents | BAILY, GEORGE W | BAILEY, EDNA S | | | $0.00 | 64517 | 0 |
| 9 | 01/01/1900 | OTHER | Other - Misc. Documents | Unknown | BAILY, GEORGE W | | | $0.00 | 0 | 0 |
Payout Agreement
| No payout information available.. |