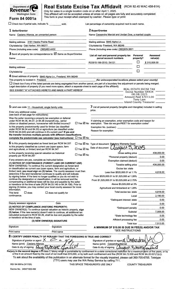
Property
Account |
| Property ID: | 178836 | Abbreviated Legal Description: | ADMIRALTY HGTS LOT 22 |
| Geographic ID: | S6015-00-00022-0 | Agent Code: | |
| Type: | Real | | |
| Tax Area: | 710 - APPRAISER-S Whid Schl Dist, outside Langley, improved & 1 acre or less | Land Use Code | 11 |
| Open Space: | N | DFL | N |
| Historic Property: | N | Remodel Property: | N |
| Multi-Family Redevelopment: | N | | |
| Township: | | Section: | |
| Range: | |
Location |
| Address: | 6454 ADMIRALTY WAY FREELAND, WA 98249 | Mapsco: | |
| Neighborhood: | Cycle 3 | Map ID: | 348 |
| Neighborhood CD: | 3 |
Owner |
| Name: | WILSON, WILLAM F | Owner ID: | 95092 |
| Mailing Address: | CATHERINE M WILSON 6454 ADMIRALTY WAY FREELAND, WA 98249-9569 | % Ownership: | 100.0000000000% |
| | | Exemptions: | |
Taxes and Assessment Details
Values
| (+) Improvement Homesite Value: | + | $0 | |
| (+) Improvement Non-Homesite Value: | + | $213,976 | |
| (+) Land Homesite Value: | + | $0 | |
| (+) Land Non-Homesite Value: | + | $500,000 | |
| (+) Curr Use (HS): | + | $0 | $0 |
| (+) Curr Use (NHS): | + | $0 | $0 |
| | | -------------------------- | |
| (=) Market Value: | = | $713,976 | |
| (–) Productivity Loss: | – | $0 | |
| | | -------------------------- | |
| (=) Subtotal: | = | $713,976 | |
| (+) Senior Appraised Value: | + | $0 | |
| (+) Non-Senior Appraised Value: | + | $713,976 | |
| | | -------------------------- | |
| (=) Total Appraised Value: | = | $713,976 | |
| (–) Senior Exemption Loss: | – | $0 | |
| (–) Exemption Loss: | – | $0 | |
| | | -------------------------- | |
| (=) Taxable Value: | = | $713,976 | |
Taxing Jurisdiction
| Owner: | WILSON, WILLAM F | | |
| % Ownership: | 100.0000000000% | | |
| Total Value: | $713,976 | | |
| Tax Area: | 710 - APPRAISER-S Whid Schl Dist, outside Langley, improved & 1 acre or less |
| CF | Conservation Futures | 0.0313996660 | $713,976 | $713,976 | $22.42 | | |
| FIRE3 | Fire & Rescue Dist #3 S Whidbey GEN | 1.2130821753 | $713,976 | $713,976 | $866.11 | | |
| HOBOND | Hospital BOND | 0.1893405597 | $713,976 | $713,976 | $135.18 | | |
| HOGEN | Hospital GEN | 0.3848777722 | $713,976 | $713,976 | $274.79 | | |
| CE | County Current Expense | 0.3674210519 | $713,976 | $713,976 | $262.33 | | |
| CR | County Roads | 0.4614296361 | $713,976 | $713,976 | $329.45 | | |
| ISLANDEMS | Hospital GEN (EMS) | 0.4952018576 | $713,976 | $713,976 | $353.56 | | |
| LIB | Library Sno-Isle GEN | 0.3039084203 | $713,976 | $713,976 | $216.98 | | |
| PORTWHID | Port of S Whidbey GEN | 0.1086004714 | $713,976 | $713,976 | $77.54 | | |
| SCH206BOND | School 206 BOND | 0.5960237832 | $713,976 | $713,976 | $425.55 | | |
| SCH206CAP | School 206 CP | 0.3066144020 | $713,976 | $713,976 | $218.92 | | |
| SCH206MO | School 206 Enrichment | 0.4808755445 | $713,976 | $713,976 | $343.33 | | |
| ST | State School | 1.4761226122 | $713,976 | $713,976 | $1,053.92 | | |
| ST2 | State School Part 2 | 0.7953803475 | $713,976 | $713,976 | $567.88 | | |
| SWHIDPRBD | P & R S Whidbey BOND | 0.0144185398 | $713,976 | $713,976 | $10.29 | | |
| SWHIDPRBD3 | P & R S Whidbey BOND3 | 0.1483535547 | $713,976 | $713,976 | $105.92 | | |
| SWHIDPRMT | P & R S Whidbey GEN | 0.4600000000 | $713,976 | $713,976 | $328.43 | | |
| | Total Tax Rate: | 7.8330503944 | | | | | |
| | | | | Taxes w/Current Exemptions: | $5,592.60 | | |
| | | | | Taxes w/o Exemptions: | $5,592.60 | | |
Improvement / Building
| Improvement #1: | RESIDENTIAL | State Code: | Y | 1334.0 sqft | Value: | $213,976 |
| Bathrooms: | 2 | Bedrooms: | 1 | | Ceiling: | DRYWALL PAINTED | Exterior Wall/Cover: | PLY/HARDBOARD T-111 | | Floor Covering: | CARPET/VINYL 80-20 | Floor Structure: | WOOD W/SUBFLOOR | | Foundation: | CONCRETE | Heating: | WALL HEAT ELECTRIC | | Interior Finish: | DRYWALL PAINT | Plumbing Fixture Cnt: | 6 | | Roof Slope: | 12" IN 12" | Roof Structure/Cover: | CJ ASPHALT |
|
| | Type | Description | Class CD | Sub Class CD | Year Built | Area |
| | BAS | BASE/MAIN FLOOR | 3 | 0 | 1980 | 812.0 |
| | DGR | DETACHED GARAGE | 3 | 0 | 1980 | 638.0 |
| | UPH | HALF STORY | 3 | 0 | 1980 | 522.0 |
| | OWP | OPEN WOOD PORCH W/STEPS | 3 | 0 | 1980 | 479.7 |
| | OWR | OPEN WOOD PORCH W/STEPS/ROOF | 3 | 0 | 1980 | 168.0 |
Sketch
Property Image
Land
| 1 | HB | HIGH BLUFF | 0.4800 | 20908.80 | 60.00 | 0.00 | 1.00 | $500,000 | $0 |
Roll Value History
| 2026 | N/A | N/A | N/A | N/A | N/A |
| 2025 | $213,976 | $500,000 | $0 | $713,976 | $713,976 |
| 2024 | $216,897 | $500,000 | $0 | $716,897 | $716,897 |
| 2023 | $219,817 | $500,000 | $0 | $719,817 | $719,817 |
| 2022 | $201,693 | $500,000 | $0 | $701,693 | $701,693 |
| 2021 | $177,685 | $325,000 | $0 | $502,685 | $502,685 |
| 2020 | $173,587 | $300,000 | $0 | $473,587 | $473,587 |
| 2019 | $126,991 | $350,000 | $0 | $476,991 | $476,991 |
| 2018 | $127,392 | $300,000 | $0 | $427,392 | $427,392 |
| 2017 | $128,192 | $300,000 | $0 | $428,192 | $428,192 |
| 2016 | $120,406 | $250,000 | $0 | $370,406 | $370,406 |
| 2015 | $98,133 | $250,000 | $0 | $348,133 | $348,133 |
| 2014 | $99,497 | $250,000 | $0 | $349,497 | $349,497 |
| 2013 | $104,545 | $155,653 | $0 | $260,198 | $260,198 |
| 2012 | $106,046 | $155,653 | $0 | $261,699 | $261,699 |
| 2011 | $107,545 | $155,653 | $0 | $263,198 | $263,198 |
| 2010 | $113,377 | $155,653 | $0 | $269,030 | $269,030 |
| 2009 | $118,387 | $166,943 | $0 | $285,330 | $285,330 |
| 2008 | $120,089 | $119,583 | $0 | $239,672 | $239,672 |
| 2007 | $115,004 | $144,695 | $0 | $259,699 | $259,699 |
Deed and Sales History
| 1 | 09/25/2025 | WD | Warranty Deed | WILSON, WILLAM F | FOUR HUNDRED TWENTY FOUR LLC | | | $772,000.00 | 65050 | 4591788 |
| 2 | 02/14/2002 | WD | Warranty Deed | BALL, JOHN F | WILSON, WILLAM F | | | $150,000.00 | 20751 | 4012598 |
| 3 | 06/01/1989 | OTHER | Other - Misc. Documents | BALL, MARGARET D | BALL, JOHN F | | | $0.00 | 63185 | 0 |
| 4 | 04/01/1979 | OTHER | Other - Misc. Documents | Unknown | BALL, MARGARET D | | | $0.00 | 0 | 350303 |
Payout Agreement
| No payout information available.. |