Property
Account |
| Property ID: | 178890 | Abbreviated Legal Description: | ADMIRALTY HTS LOT 28 TGW N30' OF LOT 27 COMB 5/92 |
| Geographic ID: | S6015-00-00028-0 | Agent Code: | |
| Type: | Real | | |
| Tax Area: | 710 - APPRAISER-S Whid Schl Dist, outside Langley, improved & 1 acre or less | Land Use Code | 11 |
| Open Space: | N | DFL | N |
| Historic Property: | N | Remodel Property: | N |
| Multi-Family Redevelopment: | N | | |
| Township: | | Section: | |
| Range: | |
Location |
| Address: | 6430 ADMIRALTY WAY FREELAND, WA 98249 | Mapsco: | |
| Neighborhood: | Cycle 3 | Map ID: | 348 |
| Neighborhood CD: | 3 |
Owner |
| Name: | MCARTHUR, JAY F | Owner ID: | 291108 |
| Mailing Address: | STACY LYNN YOUNG 6430 ADMIRALTY WAY FREELAND, WA 98249 | % Ownership: | 100.0000000000% |
| | | Exemptions: | |
Taxes and Assessment Details
Values
| (+) Improvement Homesite Value: | + | $0 | |
| (+) Improvement Non-Homesite Value: | + | $543,161 | |
| (+) Land Homesite Value: | + | $0 | |
| (+) Land Non-Homesite Value: | + | $500,000 | |
| (+) Curr Use (HS): | + | $0 | $0 |
| (+) Curr Use (NHS): | + | $0 | $0 |
| | | -------------------------- | |
| (=) Market Value: | = | $1,043,161 | |
| (–) Productivity Loss: | – | $0 | |
| | | -------------------------- | |
| (=) Subtotal: | = | $1,043,161 | |
| (+) Senior Appraised Value: | + | $0 | |
| (+) Non-Senior Appraised Value: | + | $1,043,161 | |
| | | -------------------------- | |
| (=) Total Appraised Value: | = | $1,043,161 | |
| (–) Senior Exemption Loss: | – | $0 | |
| (–) Exemption Loss: | – | $0 | |
| | | -------------------------- | |
| (=) Taxable Value: | = | $1,043,161 | |
Taxing Jurisdiction
| Owner: | MCARTHUR, JAY F | | |
| % Ownership: | 100.0000000000% | | |
| Total Value: | $1,043,161 | | |
| Tax Area: | 710 - APPRAISER-S Whid Schl Dist, outside Langley, improved & 1 acre or less |
| CF | Conservation Futures | 0.0313996660 | $1,043,161 | $1,043,161 | $32.75 | | |
| FIRE3 | Fire & Rescue Dist #3 S Whidbey GEN | 1.2130821753 | $1,043,161 | $1,043,161 | $1,265.44 | | |
| HOBOND | Hospital BOND | 0.1893405597 | $1,043,161 | $1,043,161 | $197.51 | | |
| HOGEN | Hospital GEN | 0.3848777722 | $1,043,161 | $1,043,161 | $401.49 | | |
| CE | County Current Expense | 0.3674210519 | $1,043,161 | $1,043,161 | $383.28 | | |
| CR | County Roads | 0.4614296361 | $1,043,161 | $1,043,161 | $481.35 | | |
| ISLANDEMS | Hospital GEN (EMS) | 0.4952018576 | $1,043,161 | $1,043,161 | $516.58 | | |
| LIB | Library Sno-Isle GEN | 0.3039084203 | $1,043,161 | $1,043,161 | $317.03 | | |
| PORTWHID | Port of S Whidbey GEN | 0.1086004714 | $1,043,161 | $1,043,161 | $113.29 | | |
| SCH206BOND | School 206 BOND | 0.5960237832 | $1,043,161 | $1,043,161 | $621.75 | | |
| SCH206CAP | School 206 CP | 0.3066144020 | $1,043,161 | $1,043,161 | $319.85 | | |
| SCH206MO | School 206 Enrichment | 0.4808755445 | $1,043,161 | $1,043,161 | $501.63 | | |
| ST | State School | 1.4761226122 | $1,043,161 | $1,043,161 | $1,539.83 | | |
| ST2 | State School Part 2 | 0.7953803475 | $1,043,161 | $1,043,161 | $829.71 | | |
| SWHIDPRBD | P & R S Whidbey BOND | 0.0144185398 | $1,043,161 | $1,043,161 | $15.04 | | |
| SWHIDPRBD3 | P & R S Whidbey BOND3 | 0.1483535547 | $1,043,161 | $1,043,161 | $154.76 | | |
| SWHIDPRMT | P & R S Whidbey GEN | 0.4600000000 | $1,043,161 | $1,043,161 | $479.85 | | |
| | Total Tax Rate: | 7.8330503944 | | | | | |
| | | | | Taxes w/Current Exemptions: | $8,171.14 | | |
| | | | | Taxes w/o Exemptions: | $8,171.14 | | |
Improvement / Building
| Improvement #1: | RESIDENTIAL | State Code: | Y | 3273.9 sqft | Value: | $543,161 |
| Bathrooms: | 2.75 | Bedrooms: | 2 | | Ceiling: | DRYWALL PAINTED | Cooling: | HEAT PUMP/CONV/V | | Exterior Wall/Cover: | PLY/HARDBOARD T-111 | Floor Covering: | HARDWOOD/CARP 20-80 | | Floor Structure: | WOOD W/SUBFLOOR | Foundation: | CONCRETE | | Interior Finish: | DRYWALL PAINT | Plumbing Fixture Cnt: | 13 | | Roof Slope: | 5" IN 12" | Roof Structure/Cover: | CJ ASPHALT |
|
| | Type | Description | Class CD | Sub Class CD | Year Built | Area |
| | BAS | BASE/MAIN FLOOR | 4 | 0 | 1990 | 1989.1 |
| | OP2 | OPEN PORCH W/STEPS | 4 | 0 | 1990 | 143.0 |
| | OP4 | OPEN PORCH W/CEILING-ROOF | 4 | 0 | 1990 | 135.0 |
| | AGR | ATTACHED GARAGE | 4 | 0 | 1990 | 589.0 |
| | OWP | OPEN WOOD PORCH W/STEPS | 4 | 0 | 1990 | 424.7 |
| | DWN | DOWNSTAIRS LIVING AREA | 4 | 0 | 1990 | 1284.8 |
Sketch
Property Image
Land
| 1 | HB | HIGH BLUFF | 0.8400 | 36590.40 | 90.00 | 0.00 | 1.00 | $500,000 | $0 |
Roll Value History
| 2026 | N/A | N/A | N/A | N/A | N/A |
| 2025 | $543,161 | $500,000 | $0 | $1,043,161 | $1,043,161 |
| 2024 | $549,687 | $500,000 | $0 | $1,049,687 | $1,049,687 |
| 2023 | $556,210 | $500,000 | $0 | $1,056,210 | $1,056,210 |
| 2022 | $509,553 | $500,000 | $0 | $1,009,553 | $1,009,553 |
| 2021 | $448,248 | $350,000 | $0 | $798,248 | $798,248 |
| 2020 | $437,494 | $300,000 | $0 | $737,494 | $737,494 |
| 2019 | $315,621 | $350,000 | $0 | $665,621 | $665,621 |
| 2018 | $316,600 | $300,000 | $0 | $616,600 | $616,600 |
| 2017 | $318,560 | $300,000 | $0 | $618,560 | $618,560 |
| 2016 | $322,480 | $250,000 | $0 | $572,480 | $572,480 |
| 2015 | $326,402 | $250,000 | $0 | $576,402 | $576,402 |
| 2014 | $330,321 | $250,000 | $0 | $580,321 | $580,321 |
| 2013 | $331,551 | $219,470 | $0 | $551,021 | $551,021 |
| 2012 | $335,862 | $219,470 | $0 | $555,332 | $555,332 |
| 2011 | $340,173 | $219,470 | $0 | $559,643 | $559,643 |
| 2010 | $358,401 | $219,470 | $0 | $577,871 | $577,871 |
| 2009 | $374,058 | $235,390 | $0 | $609,448 | $609,448 |
| 2008 | $387,069 | $244,488 | $0 | $631,557 | $631,557 |
| 2007 | $392,251 | $295,830 | $0 | $688,081 | $688,081 |
Deed and Sales History
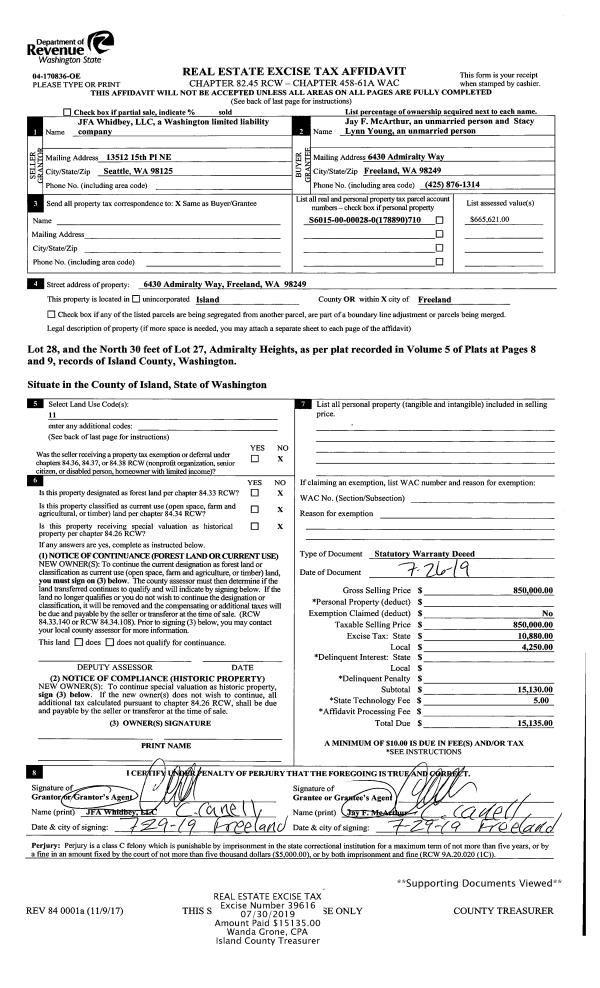
| 1 | 07/26/2019 | WD | Warranty Deed | JFA WHIDBEY, LLC | MCARTHUR, JAY F | | | $850,000.00 | 39616 | 4468252 |
| 2 | 12/22/2017 | WD | Warranty Deed | JAY JR 1/2 INT, EDWARD RONALD | JFA WHIDBEY, LLC | | | $0.00 | 32609 | 4437521 |
| 3 | 03/28/2011 | WD | Warranty Deed | JAY JR 1/2 INT, EDWARD RONALD | JAY JR 1/2 INT, EDWARD RONALD | | | $0.00 | 4352 | 4294810 |
| 4 | 03/28/2011 | WD | Warranty Deed | JAY TRUSTEE, EDWARD R | JAY JR 1/2 INT, EDWARD RONALD | | | $0.00 | 4351 | 4294809 |
| 5 | 06/01/1997 | ESTSEPPROP | Establish Separate Property | JAY, EDWARD R | JAY, EDWARD R | | | $0.00 | 72285 | 97010750 |
| 6 | 10/01/1992 | WD | Warranty Deed | JAY, EDWARD R | JAY, EDWARD R | | | $0.00 | 24177 | 92020360 |
| 7 | 10/01/1992 | WD | Warranty Deed | JAY, EDWARD R | JAY, EDWARD R | | | $0.00 | 24180 | 92020363 |
| 8 | 10/01/1992 | WD | Warranty Deed | JAY, EDWARD R | JAY, EDWARD R | | | $0.00 | 24181 | 92020364 |
| 9 | 05/01/1992 | OTHER | Other - Misc. Documents | JAY, EDWARD R | JAY, EDWARD R | | | $0.00 | 64857 | 92008937 |
| 10 | 01/01/1900 | OTHER | Other - Misc. Documents | Unknown | JAY, EDWARD R | | | $0.00 | 0 | 0 |
Payout Agreement
| No payout information available.. |