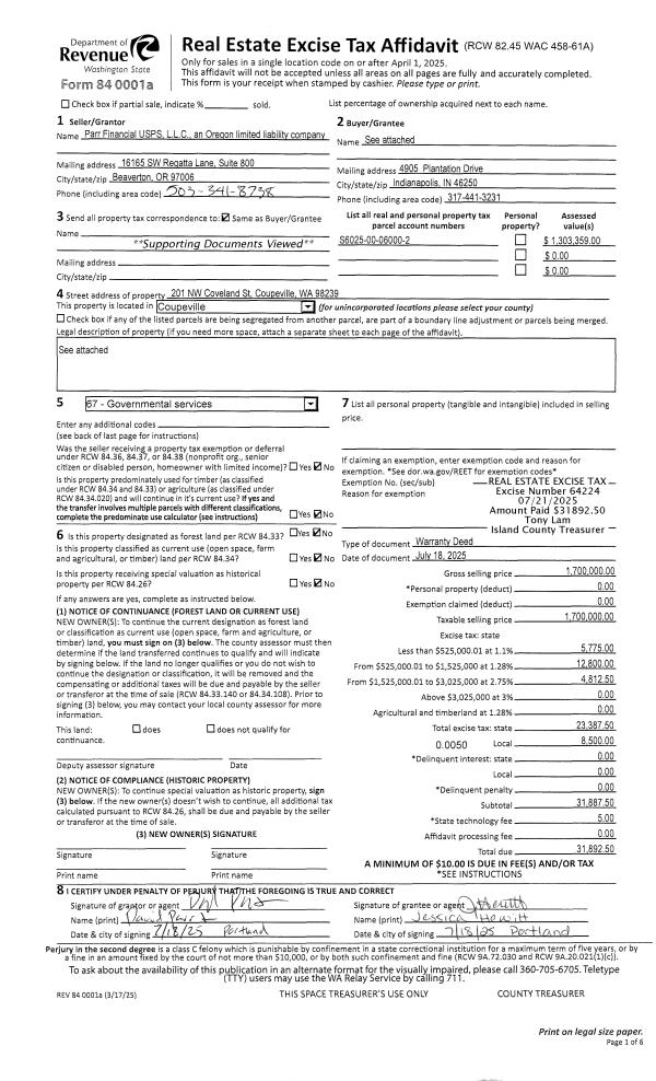
Property
Account |
| Property ID: | 179489 | Abbreviated Legal Description: | ALEX-GLEN LOTS 9 THRU 12, 19, 20, 21 & W11' OF LOT 13 BLK 6 & PT LOTS 8 & 18 BLK 6 LY E OF LN: BG SLN COVELAND ST 938'W OF CLN MAIN ST S200' TERM LN SUB EZ AF#349552 |
| Geographic ID: | S6025-00-06000-2 | Agent Code: | |
| Type: | Real | | |
| Tax Area: | 300 - APPRAISER-Cpvl Schl Dist, in Cpvl | Land Use Code | 67 |
| Open Space: | N | DFL | N |
| Historic Property: | N | Remodel Property: | N |
| Multi-Family Redevelopment: | N | | |
| Township: | | Section: | |
| Range: | |
Location |
| Address: | 201 NW COVELAND ST COUPEVILLE, WA 98239 | Mapsco: | |
| Neighborhood: | Area 2 Commercial North West | Map ID: | 175 |
| Neighborhood CD: | 21cCPwest |
Owner |
| Name: | THE LEVIN GROUP, L.L.C. | Owner ID: | 317453 |
| Mailing Address: | GERALD A LEVIN 4905 PLANTATION DR INDIANAPOLIS, IN 46250 | % Ownership: | 100.0000000000% |
| | | Exemptions: | |
Taxes and Assessment Details
Values
| (+) Improvement Homesite Value: | + | $0 | |
| (+) Improvement Non-Homesite Value: | + | $658,659 | |
| (+) Land Homesite Value: | + | $0 | |
| (+) Land Non-Homesite Value: | + | $644,700 | |
| (+) Curr Use (HS): | + | $0 | $0 |
| (+) Curr Use (NHS): | + | $0 | $0 |
| | | -------------------------- | |
| (=) Market Value: | = | $1,303,359 | |
| (–) Productivity Loss: | – | $0 | |
| | | -------------------------- | |
| (=) Subtotal: | = | $1,303,359 | |
| (+) Senior Appraised Value: | + | $0 | |
| (+) Non-Senior Appraised Value: | + | $1,303,359 | |
| | | -------------------------- | |
| (=) Total Appraised Value: | = | $1,303,359 | |
| (–) Senior Exemption Loss: | – | $0 | |
| (–) Exemption Loss: | – | $0 | |
| | | -------------------------- | |
| (=) Taxable Value: | = | $1,303,359 | |
Taxing Jurisdiction
| Owner: | THE LEVIN GROUP, L.L.C. | | |
| % Ownership: | 100.0000000000% | | |
| Total Value: | $1,303,359 | | |
| Tax Area: | 300 - APPRAISER-Cpvl Schl Dist, in Cpvl |
| CF | Conservation Futures | 0.0313996660 | $1,303,359 | $1,303,359 | $40.93 | | |
| CEM2 | Cemetery #2 | 0.0092609791 | $1,303,359 | $1,303,359 | $12.07 | | |
| COUP | City: Town of Coupeville | 0.8188663519 | $1,303,359 | $1,303,359 | $1,067.28 | | |
| FIRE5 | Fire & Rescue Dist #5 C Whidbey GEN | 1.1892169230 | $1,303,359 | $1,303,359 | $1,549.98 | | |
| FIRE5BOND | Fire & Rescue Dist #5 C Whidbey BOND | 0.1394359503 | $1,303,359 | $1,303,359 | $181.74 | | |
| HOBOND | Hospital BOND | 0.1893405597 | $1,303,359 | $1,303,359 | $246.78 | | |
| HOGEN | Hospital GEN | 0.3848777722 | $1,303,359 | $1,303,359 | $501.63 | | |
| CE | County Current Expense | 0.3674210519 | $1,303,359 | $1,303,359 | $478.88 | | |
| ISLANDEMS | Hospital GEN (EMS) | 0.4952018576 | $1,303,359 | $1,303,359 | $645.43 | | |
| LIB | Library Sno-Isle GEN | 0.3039084203 | $1,303,359 | $1,303,359 | $396.10 | | |
| LIBCAP | Library Sno-Isle BOND (Cap Fac Imp Area) | 0.0528562629 | $1,303,359 | $1,303,359 | $68.89 | | |
| POCOUP | Port of Coupeville GEN | 0.1065226063 | $1,303,359 | $1,303,359 | $138.84 | | |
| POCOUPIDD | Port of Coupeville IDD | 0.3353038577 | $1,303,359 | $1,303,359 | $437.02 | | |
| COUPSDTECH | School 204 CP (TECH) | 0.1215123397 | $1,303,359 | $1,303,359 | $158.37 | | |
| SCH204MO | School 204 Enrichment | 0.6416662518 | $1,303,359 | $1,303,359 | $836.32 | | |
| ST | State School | 1.4761226122 | $1,303,359 | $1,303,359 | $1,923.92 | | |
| ST2 | State School Part 2 | 0.7953803475 | $1,303,359 | $1,303,359 | $1,036.67 | | |
| | Total Tax Rate: | 7.4582938101 | | | | | |
| | | | | Taxes w/Current Exemptions: | $9,720.85 | | |
| | | | | Taxes w/o Exemptions: | $9,720.85 | | |
Improvement / Building
| Improvement #1: | COMMERCIAL | State Code: | F1 | 4368.0 sqft | Value: | $658,659 |
| Bathrooms: | 0 | Bedrooms: | 0 | | Ceiling: | DRYWALL PAINTED | Exterior Wall/Cover: | WD/WD OR STEEL STUDS | | Floor Covering: | VINYL TILE | Floor Structure: | CONCRETE ON GROUND | | Foundation: | SLAB | Heating: | HEAT PUMP | | Interior Finish: | POST OFFICE | Plumbing Fixture Cnt: | 1 | | Roof Structure/Cover: | COMP OPEN WOOD |   |   |
|
| | Type | Description | Class CD | Sub Class CD | Year Built | Area |
| | BAS | BASE/MAIN FLOOR | 3 | 0 | 1985 | 4368.0 |
| | OP4 | OPEN PORCH W/CEILING-ROOF | 3 | 0 | 1985 | 448.0 |
| | OP3 | OPEN PORCH W/ROOF | 3 | 0 | 1985 | 360.0 |
| | OP1 | OPEN PORCH SLAB | 3 | 0 | 1985 | 544.0 |
| | OP1 | OPEN PORCH SLAB | 3 | 0 | 1985 | 432.0 |
| | OP2 | OPEN PORCH W/STEPS | 3 | 0 | 1985 | 188.0 |
| | oLIT | LITE POLE | 3 | 0 | 1985 | 2.0 |
| | oPV1 | PV/ASPH 2" | 3 | 0 | 1985 | 19160.0 |
| | oFN9 | CHN LK 8' | 3 | 0 | 1985 | 304.0 |
Sketch
Property Image
Land
| 1 | 68 | COMMERCIAL RETAIL | 0.7400 | 32235.00 | 0.00 | 0.00 | 1.00 | $644,700 | $0 |
Roll Value History
| 2026 | N/A | N/A | N/A | N/A | N/A |
| 2025 | $658,659 | $644,700 | $0 | $1,303,359 | $1,303,359 |
| 2024 | $549,914 | $644,700 | $0 | $1,194,614 | $1,194,614 |
| 2023 | $576,939 | $644,700 | $0 | $1,221,639 | $1,221,639 |
| 2022 | $468,058 | $644,700 | $0 | $1,112,758 | $1,112,758 |
| 2021 | $463,082 | $644,700 | $0 | $1,107,782 | $1,107,782 |
| 2020 | $462,491 | $644,700 | $0 | $1,107,191 | $1,107,191 |
| 2019 | $428,686 | $644,700 | $0 | $1,073,386 | $1,073,386 |
| 2018 | $369,399 | $805,875 | $0 | $1,175,274 | $1,175,274 |
| 2017 | $369,538 | $177,293 | $0 | $546,831 | $546,831 |
| 2016 | $369,815 | $177,293 | $0 | $547,108 | $547,108 |
| 2015 | $387,038 | $177,293 | $0 | $564,331 | $564,331 |
| 2014 | $347,980 | $177,293 | $0 | $525,273 | $525,273 |
| 2013 | $336,714 | $177,293 | $0 | $514,007 | $514,007 |
| 2012 | $248,973 | $241,763 | $0 | $490,736 | $490,736 |
| 2011 | $248,973 | $241,763 | $0 | $490,736 | $490,736 |
| 2010 | $257,159 | $241,763 | $0 | $498,922 | $498,922 |
| 2009 | $265,396 | $265,616 | $0 | $531,012 | $531,012 |
| 2008 | $269,539 | $265,616 | $0 | $535,155 | $535,155 |
| 2007 | $277,777 | $265,616 | $0 | $543,393 | $543,393 |
Deed and Sales History
| 1 | 07/18/2025 | WD | Warranty Deed | PARR FINANCIAL USPS LLC | THE LEVIN GROUP, L.L.C. | | | $1,700,000.00 | 64224 | 4588569 |
| 2 | 06/11/2002 | WD | Warranty Deed | KOPCZYNSKI, B M | PARR FINANCIAL USPS LLC, | | | $423,101.00 | 22273 | 4022968 |
| 3 | 10/01/1993 | QCD | Quit Claim Deed | KOPCZYNSKI, BERNARD M | KOPCZYNSKI, B M | | | $0.00 | 34157 | 93021647 |
| 4 | 08/01/1984 | WD | Warranty Deed | DUGGAN, RANDOLPH 1 | KOPCZYNSKI, BERNARD M | | | $39,950.00 | 42328 | 84001710 |
| 5 | 02/01/1983 | OTHER | Other - Misc. Documents | DUGGAN, RANDOLPH 1 | DUGGAN, RANDOLPH 1 | | | $0.00 | 59843 | 0 |
| 6 | 08/01/1982 | CD | DNU - Correction Deed | GARRON, DALE & | DUGGAN, RANDOLPH 1 | | | $0.00 | 22045 | 399923 |
| 7 | 09/01/1979 | CD | DNU - Correction Deed | GARRON, DALE | GARRON, DALE & | | | $0.00 | 94488 | 358573 |
| 8 | 08/01/1979 | CD | DNU - Correction Deed | GARRON, DALE | GARRON, DALE | | | $0.00 | 939140 | 3570050 |
| 9 | 05/01/1979 | OTHER | Other - Misc. Documents | GARRON, DALE | GARRON, DALE | | | $34,000.00 | 923930 | 3526350 |
| 10 | 05/01/1979 | OTHER | Other - Misc. Documents | , | GARRON, DALE | | | $34,000.00 | 923930 | 3526350 |
| 11 | 08/01/1978 | OTHER | Other - Misc. Documents | Unknown | , | | | $18,000.00 | 839890 | 3383020 |
Payout Agreement
| No payout information available.. |